Account: R5095886
April 1, 2026
| Account | Parcel | Account Type | Tax Year | Buildings | Actual Value | Local Govt Assessed Value | School Assessed Value |
|---|---|---|---|---|---|---|---|
| R5095886 | 130526211001 | Residential | 2026 | 2 | 340,553 | 21,280 | 24,010 |
| Legal |
|---|
| KEE 8624 L1-2 BLK34 KEENESBURG HTS |
| Subdivision | Block | Lot | Land Economic Area |
|---|---|---|---|
| KEENESBURG TOWN | 34 | 1 | NORTH KEENESBURG |
| Property Address | Property City | Section | Township | Range |
|---|---|---|---|---|
| 90 N MARKET ST | KEENESBURG | 26 | 02 | 64 |
| Account | Parcel | Account Type | Tax Year | Buildings | Actual Value | Local Govt Assessed Value | School Assessed Value |
|---|---|---|---|---|---|---|---|
| R5095886 | 130526211001 | Residential | 2026 | 2 | 340,553 | 21,280 | 24,010 |
| Account | Owner Name | Address |
|---|---|---|
| R5095886 | WARE BRYANT | 90 N MARKET ST KEENESBURG, CO 806435006 |
| R5095886 | WARE KIMBERLY L |
| Account | Parcel | Account Type | Tax Year | Buildings | Actual Value | Local Govt Assessed Value | School Assessed Value |
|---|---|---|---|---|---|---|---|
| R5095886 | 130526211001 | Residential | 2026 | 2 | 340,553 | 21,280 | 24,010 |
| Reception | Rec Date | Type | Grantor | Grantee | Doc Fee | Sale Date | Sale Price |
|---|---|---|---|---|---|---|---|
| 01727508 | 08-15-1977 | WDN | 0.00 | 01-01-1900 | 0 | ||
| 02382491 | 04-07-1994 | QCN | 0.00 | 04-05-1994 | 0 | ||
| 2115003 | 09-21-1987 | WD | HOFF GORDON E & MARLENE L | QUIMBY DELLA M & DOUGLAS R | 5.20 | 09-14-1987 | 52,000 |
| 301664 | NA | SUB | SUBDIVISION | KEENESBURG HEIGHTS | 0.00 | NA | 0 |
| 4266009 | 12-29-2016 | PRD | QUIMBY DOUGLAS R; QUIMBY DELLA MAE | QUIMBY DOUGLAS R (PR); QUIMBY DELLA MAE | 15.51 | 12-24-2016 | 155,100 |
| 4266010 | 12-29-2016 | WD | QUIMBY DOUGLAS R (PR); QUIMBY DELLA M | GREENING KAYLEE K | 15.50 | 12-27-2016 | 155,070 |
| 4828606 | 05-18-2022 | SWD | GREENING KAYLEE K | WARE BRYANT; WARE KIMBERLY L | 34.70 | 05-18-2022 | 347,000 |
| 4847621 | 08-10-2022 | AFFD | GREENING KAYLEE K | WARE BRYANT; WARE KIMBERLY L | 0.00 | 08-10-2022 | 0 |
*If the hyperlink for the reception number does not work, try a manual search in the Clerk and Recorder records. Use the Grantor or Grantee in your search.
| Account | Parcel | Account Type | Tax Year | Buildings | Actual Value | Local Govt Assessed Value | School Assessed Value |
|---|---|---|---|---|---|---|---|
| R5095886 | 130526211001 | Residential | 2026 | 2 | 340,553 | 21,280 | 24,010 |
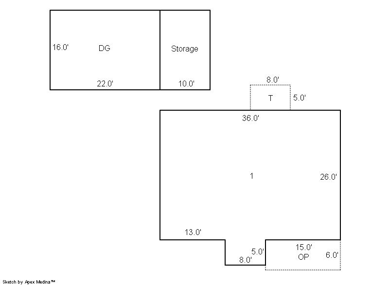
Building 1
| AccountNo | Building ID | Occupancy |
|---|---|---|
| R5095886 | 1 | Single Family Residential |
| ID | Type | NBHD | Occupancy | % Complete | Bedrooms | Baths |
|---|---|---|---|---|---|---|
| 1 | Residential | 5K0007 | Single Family Residential | 100 | 2 | 1.00 |
| ID | Exterior | Roof Cover | Interior | HVAC | Perimeter | Units | Unit Type | Make |
|---|---|---|---|---|---|---|---|---|
| 1 | Frame Siding | Composition Shingle | Drywall | Forced Air | 0 | 0 | NA | NA |
| ID | Square Ft | Condo SF | Total Basement SF | Finished Basement SF | Garage SF | Carport SF | Balcony SF | Porch SF |
|---|---|---|---|---|---|---|---|---|
| 1 | 976 | 0 | 0 | 0 | 352 | 0 | 0 | 90 |
| ID | Built As | Square Ft | Year Built | Stories | Length | Width |
|---|---|---|---|---|---|---|
| 1.00 | Ranch 1 Story | 976 | 1955 | 1 | 0 | 0 |
| ID | Detail Type | Description | Units |
|---|---|---|---|
| 1 | Fixture | Full Bath | 1.00 |
| 1 | Garage | Detached | 352.00 |
| 1 | Porch | Open Slab | 40.00 |
| 1 | Porch | Slab Roof Ceil | 90.00 |
| 1 | Storage | Wood | 160.00 |
Building 2
| AccountNo | Building ID | Occupancy |
|---|---|---|
| R5095886 | 2 | Utility Building |
| ID | Type | NBHD | Occupancy | % Complete | Bedrooms | Baths |
|---|---|---|---|---|---|---|
| 2 | Out Building | NA | Utility Building | 100 | NA | 0.00 |
| ID | Exterior | Roof Cover | Interior | HVAC | Perimeter | Units | Unit Type | Make |
|---|---|---|---|---|---|---|---|---|
| 2 | NA | NA | NA | NA | 120 | 0 | NA | NA |
| ID | Square Ft | Condo SF | Total Basement SF | Finished Basement SF | Garage SF | Carport SF | Balcony SF | Porch SF |
|---|---|---|---|---|---|---|---|---|
| 2 | 900 | 0 | 0 | 0 | 0 | 0 | 0 | 0 |
| ID | Built As | Square Ft | Year Built | Stories | Length | Width |
|---|---|---|---|---|---|---|
| 2.00 | Utility Building | 900 | 2023 | 1 | 30 | 30 |
No Additional Details for Building 2
| Account | Parcel | Account Type | Tax Year | Buildings | Actual Value | Local Govt Assessed Value | School Assessed Value |
|---|---|---|---|---|---|---|---|
| R5095886 | 130526211001 | Residential | 2026 | 2 | 340,553 | 21,280 | 24,010 |
| Type | Code | Description | Actual Value | Local Govt Assessed Value | School Assessed Value | Acres | Land SqFt |
|---|---|---|---|---|---|---|---|
| Improvement | 1212 | SINGLE FAMILY RESIDENTIAL IMPROVEMENTS | 303,053 | 18,940 | 21,370 | 0.000 | 0 |
| Land | 1112 | SINGLE FAMILY RESIDENTIAL-LAND | 37,500 | 2,340 | 2,640 | 0.172 | 7,500 |
| Totals | - | - | 340,553 | 21,280 | 24,010 | 0.172 | 7,500 |
Comparable sales for your Residential or Commercial property may be found using our SALES SEARCH TOOL
Values are updated annually on May 1st for Real Property and June 15th for Personal Property and Oil and Gas.
| Account | Parcel | Account Type | Tax Year | Buildings | Actual Value | Local Govt Assessed Value | School Assessed Value |
|---|---|---|---|---|---|---|---|
| R5095886 | 130526211001 | Residential | 2026 | 2 | 340,553 | 21,280 | 24,010 |
| Tax Area | District ID | District Name | Local Govt Mill Levy |
School Mill Levy |
Estimated Taxes |
|---|---|---|---|---|---|
| 0303 | 0700 | AIMS JUNIOR COLLEGE | 6.313 | 0.000 | $134.34 |
| 0303 | 0302 | CENTRAL COLORADO WATER (CCW) | 0.980 | 0.000 | $20.85 |
| 0303 | 1050 | HIGH PLAINS LIBRARY | 3.044 | 0.000 | $64.78 |
| 0303 | 0415 | KEENESBURG TOWN | 22.000 | 0.000 | $468.16 |
| 0303 | 0308 | LOST CREEK GROUNDWATER (LCGW) | 0.945 | 0.000 | $20.11 |
| 0303 | 0518 | S. E. WELD FIRE | 10.470 | 0.000 | $222.80 |
| 0303 | 0203 | SCHOOL DIST RE3J-KEENESBURG | 0.000 | 15.822 | $379.89 |
| 0303 | 0100 | WELD COUNTY | 15.956 | 0.000 | $339.54 |
| Total | - | - | 59.708 | 15.822 | $1,650.47 |
The estimate of tax is based on the prior year mill levy and the 2025 projected assessment rates. Mill levies and tax estimates will be updated yearly on December 22nd for the current year. Additional information can be found at https://assessor.weld.gov



