Account: R5119386

April 1, 2026

Account Parcel Account Type Tax Year Buildings Actual Value Local Govt Assessed Value School Assessed Value
R5119386 130526402004 Residential 2026 2 406,045 25,380 28,630

Legal
KEE 8508 L15-16-17 TIMBERS SUB NW4NW4SE4 26 2 64

Subdivision Block Lot Land Economic Area
TIMBERS SUB 15 KEENESBURG SOUTH

Property Address Property City Section Township Range
90 S STEWART ST KEENESBURG 26 02 64




Account Parcel Account Type Tax Year Buildings Actual Value Local Govt Assessed Value School Assessed Value
R5119386 130526402004 Residential 2026 2 406,045 25,380 28,630

Account Owner Name Address
R5119386 REYNOLDS SAMUEL T PO BOX 528 KEENESBURG, CO 806430528
R5119386 REYNOLDS RHONDA M


Account Parcel Account Type Tax Year Buildings Actual Value Local Govt Assessed Value School Assessed Value
R5119386 130526402004 Residential 2026 2 406,045 25,380 28,630

Reception Rec Date Type Grantor Grantee Doc Fee Sale Date Sale Price
02131053 02-17-1988 QCN 0.00 02-10-1988 0
2296649 07-22-1992 WD HAWKINS CAROL ANN DEAN KRISTI 6.40 07-21-1992 64,000
2643222 09-29-1998 WD DEAN KRISTI REYNOLDS SAMUEL T & RHONDA M 12.25 09-16-1998 122,500
328961 NA SUB SUBDIVISION TIMBERS 0.00 NA 0



Account Parcel Account Type Tax Year Buildings Actual Value Local Govt Assessed Value School Assessed Value
R5119386 130526402004 Residential 2026 2 406,045 25,380 28,630

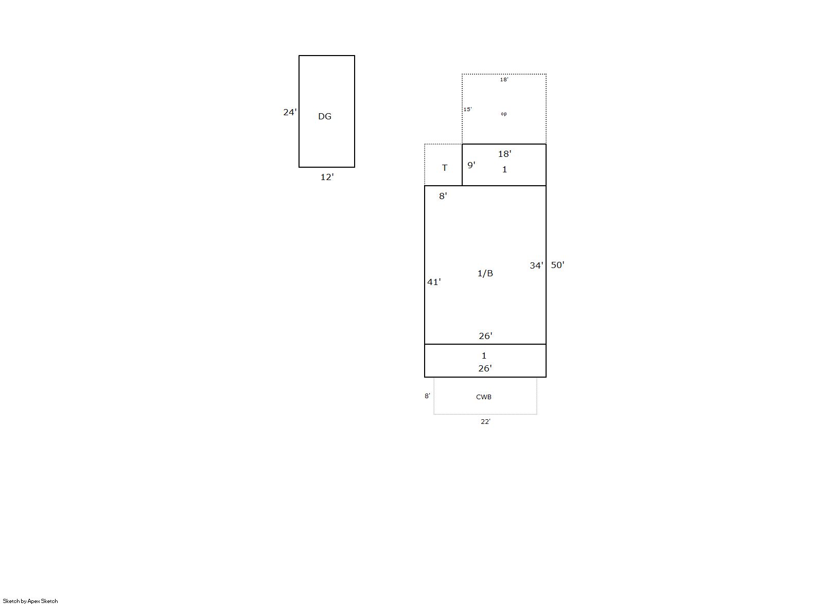
Building 1

AccountNo Building ID Occupancy
R5119386 1 Single Family Residential


ID Type NBHD Occupancy % Complete Bedrooms Baths
1 Residential 5K0007 Single Family Residential 100 2 1.00


ID Exterior Roof Cover Interior HVAC Perimeter Units Unit Type Make
1 Frame Siding Composition Shingle Drywall Hot Water Baseboard 152 0 NA NA


ID Square Ft Condo SF Total Basement SF Finished Basement SF Garage SF Carport SF Balcony SF Porch SF
1 1,228 0 884 884 288 0 176 72


Built As Details for Building 1
ID Built As Square Ft Year Built Stories Length Width
1.00 Ranch 1 Story 1,228 1926 1 0 0


Additional Details for Building 1
ID Detail Type Description Units
1 Add On Flue Only 1.00
1 Balcony Cover Wood Balc 176.00
1 Basement Finished 884.00
1 Basement Total Basement SF 884.00
1 Fixture Full Bath 1.00
1 Garage Detached 288.00
1 Porch Open Slab 72.00
1 Porch Slab Roof Ceil 270.00



Building 2

AccountNo Building ID Occupancy
R5119386 2 Utility Building


ID Type NBHD Occupancy % Complete Bedrooms Baths
2 Out Building NA Utility Building 100 0 0.00


ID Exterior Roof Cover Interior HVAC Perimeter Units Unit Type Make
2 NA NA NA None 56 0 NA NA


ID Square Ft Condo SF Total Basement SF Finished Basement SF Garage SF Carport SF Balcony SF Porch SF
2 192 0 0 0 0 0 0 0


Built As Details for Building 2
ID Built As Square Ft Year Built Stories Length Width
2.00 Utility Building 192 2005 1 16 12

No Additional Details for Building 2






Account Parcel Account Type Tax Year Buildings Actual Value Local Govt Assessed Value School Assessed Value
R5119386 130526402004 Residential 2026 2 406,045 25,380 28,630

Type Code Description Actual Value Local Govt Assessed Value School Assessed Value Acres Land SqFt
Improvement 1212 SINGLE FAMILY RESIDENTIAL IMPROVEMENTS 336,045 21,000 23,690 0.000 0
Land 1112 SINGLE FAMILY RESIDENTIAL-LAND 70,000 4,380 4,940 0.321 14,000
Totals - - 406,045 25,380 28,630 0.321 14,000


Account Parcel Account Type Tax Year Buildings Actual Value Local Govt Assessed Value School Assessed Value
R5119386 130526402004 Residential 2026 2 406,045 25,380 28,630

Tax Area District ID District Name Local Govt
Mill Levy
School
Mill Levy
Estimated
Taxes
0303 0700 AIMS JUNIOR COLLEGE 6.313 0.000 $160.22
0303 0302 CENTRAL COLORADO WATER (CCW) 0.980 0.000 $24.87
0303 1050 HIGH PLAINS LIBRARY 3.044 0.000 $77.26
0303 0415 KEENESBURG TOWN 22.000 0.000 $558.36
0303 0308 LOST CREEK GROUNDWATER (LCGW) 0.945 0.000 $23.98
0303 0518 S. E. WELD FIRE 10.470 0.000 $265.73
0303 0203 SCHOOL DIST RE3J-KEENESBURG 0.000 15.822 $452.98
0303 0100 WELD COUNTY 15.956 0.000 $404.96
Total - - 59.708 15.822 $1,968.37


The estimate of tax is based on the prior year mill levy and the 2025 projected assessment rates. Mill levies and tax estimates will be updated yearly on December 22nd for the current year. Additional information can be found at https://assessor.weld.gov










Select Reports to Print: