Account: R5132986

April 1, 2026

Account Parcel Account Type Tax Year Buildings Actual Value Local Govt Assessed Value School Assessed Value
R5132986 130707401004 Agricultural 2026 4 662,627 42,930 48,170

Legal
1WS-13 L13 WIESNER SUB 1ST FILING

Subdivision Block Lot Land Economic Area
WIESNER SUB 1ST FG 13 WEISNER

Property Address Property City Section Township Range
18983 COUNTY ROAD 22 WELD 07 02 65




Account Parcel Account Type Tax Year Buildings Actual Value Local Govt Assessed Value School Assessed Value
R5132986 130707401004 Agricultural 2026 4 662,627 42,930 48,170

Account Owner Name Address
R5132986 RODRIGUEZ EFREN GUTIERREZ 18983 COUNTY ROAD 22 FORT LUPTON, CO 806219423


Account Parcel Account Type Tax Year Buildings Actual Value Local Govt Assessed Value School Assessed Value
R5132986 130707401004 Agricultural 2026 4 662,627 42,930 48,170

Reception Rec Date Type Grantor Grantee Doc Fee Sale Date Sale Price
01951679 12-30-1983 CONT 0.00 01-01-1900 0
02205107 02-12-1990 QCN 0.00 02-09-1990 0
02256382 07-16-1991 QCN 0.00 07-15-1991 0
1553347 NA SUB SUBDIVISION WIESNER 1ST FG 0.00 NA 0
1706657 12-22-1976 COZ WELD COUNTY ZONING CASE: Z-165* ZONING R-1 0.00 NA 0
2651144 11-03-1998 SHD WALKER GORDON F WALKER AVA M 0.00 11-03-1998 0
2716867 08-27-1999 WD WALKER AVA M ROBINSON VERNON P 11.00 08-23-1999 110,000
2908627 12-13-2001 PTD ROBINSON VERNON P WESTSTAR BANK 0.00 12-12-2001 0
2962759 06-20-2002 WD WESTSTAR BANK GIBLIN TIMOTHY J & 26.50 06-12-2002 265,000
4315469 07-05-2017 WD GIBLIN LUCINDA S; GIBLIN TIMOTHY J HOLBROOK MATTHEW 50.50 06-30-2017 505,000
4574771 03-13-2020 QCN HOLBROOK MATTHEW BASELINE PROPERTY HOLDINGS LLC 0.00 02-27-2020 0
4973481 07-29-2024 WD BASELINE PROPERTY HOLDINGS LLC RODRIGUEZ EFREN GUTIERREZ 88.50 07-22-2024 885,000
X0012124 12-30-1983 CON WIESNER FRED L 2.00 12-30-1983 20,000



Account Parcel Account Type Tax Year Buildings Actual Value Local Govt Assessed Value School Assessed Value
R5132986 130707401004 Agricultural 2026 4 662,627 42,930 48,170

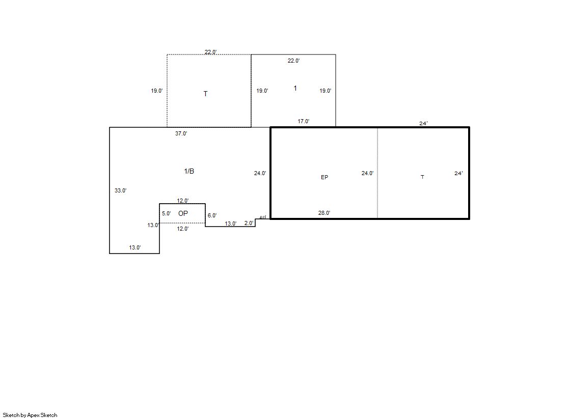
Building 1

AccountNo Building ID Occupancy
R5132986 1 Single Family Residential on Ag


ID Type NBHD Occupancy % Complete Bedrooms Baths
1 Residential 5R0008 Single Family Residential on Ag 100 4 3.00


ID Exterior Roof Cover Interior HVAC Perimeter Units Unit Type Make
1 Frame Siding Composition Shingle Drywall Hot Water Radiant 234 0 NA NA


ID Square Ft Condo SF Total Basement SF Finished Basement SF Garage SF Carport SF Balcony SF Porch SF
1 1,521 0 1,103 1,103 0 0 0 672


Built As Details for Building 1
ID Built As Square Ft Year Built Stories Length Width
1.00 Ranch 1 Story 1,521 2001 1 0 0


Additional Details for Building 1
ID Detail Type Description Units
1 Add On Finished Attic 1248.00
1 Add On Fireplace Gas 1.00
1 Add On Heat Evaporative Coolers 1.00
1 Basement Finished 1103.00
1 Basement Total Basement SF 1103.00
1 Fixture Full Bath 3.00
1 Porch Encl Solid Wall 672.00
1 Porch Open Slab 994.00
1 Porch Slab Roof Ceil 60.00



Building 2

AccountNo Building ID Occupancy
R5132986 2 Utility Building


ID Type NBHD Occupancy % Complete Bedrooms Baths
2 Out Building NA Utility Building 100 NA 0.00


ID Exterior Roof Cover Interior HVAC Perimeter Units Unit Type Make
2 NA NA NA NA 32 0 NA NA


ID Square Ft Condo SF Total Basement SF Finished Basement SF Garage SF Carport SF Balcony SF Porch SF
2 64 0 0 0 0 0 0 0


Built As Details for Building 2
ID Built As Square Ft Year Built Stories Length Width
2.00 Utility Building 64 2008 1 8 8

No Additional Details for Building 2




Building 3

AccountNo Building ID Occupancy
R5132986 3 Utility Building


ID Type NBHD Occupancy % Complete Bedrooms Baths
3 Out Building NA Utility Building 100 NA 0.00


ID Exterior Roof Cover Interior HVAC Perimeter Units Unit Type Make
3 NA NA NA NA 124 0 NA NA


ID Square Ft Condo SF Total Basement SF Finished Basement SF Garage SF Carport SF Balcony SF Porch SF
3 912 0 0 0 0 0 0 0


Built As Details for Building 3
ID Built As Square Ft Year Built Stories Length Width
3.00 Utility Building 912 2008 1 38 24

No Additional Details for Building 3




Building 4

AccountNo Building ID Occupancy
R5132986 4 Utility Building


ID Type NBHD Occupancy % Complete Bedrooms Baths
4 Out Building NA Utility Building 100 NA 0.00


ID Exterior Roof Cover Interior HVAC Perimeter Units Unit Type Make
4 NA NA NA NA 62 0 NA NA


ID Square Ft Condo SF Total Basement SF Finished Basement SF Garage SF Carport SF Balcony SF Porch SF
4 228 0 0 0 0 0 0 0


Built As Details for Building 4
ID Built As Square Ft Year Built Stories Length Width
4.00 Utility Building 228 2008 1 19 12

No Additional Details for Building 4






Account Parcel Account Type Tax Year Buildings Actual Value Local Govt Assessed Value School Assessed Value
R5132986 130707401004 Agricultural 2026 4 662,627 42,930 48,170

Type Code Description Actual Value Local Govt Assessed Value School Assessed Value Acres Land SqFt
Improvement 4277 FARM/RANCH RESIDENCE-IMPS 655,312 40,960 46,200 0.000 0
Improvement 4279 FARM RANCH SUPPORT BLDGS 6,930 1,870 1,870 0.000 0
Land 4147 GRAZING LAND-AGRICULTURAL 385 100 100 18.470 804,553
Totals - - 662,627 42,930 48,170 18.470 804,553


Account Parcel Account Type Tax Year Buildings Actual Value Local Govt Assessed Value School Assessed Value
R5132986 130707401004 Agricultural 2026 4 662,627 42,930 48,170

Tax Area District ID District Name Local Govt
Mill Levy
School
Mill Levy
Estimated
Taxes
2218 0700 AIMS JUNIOR COLLEGE 6.313 0.000 $271.02
2218 0302 CENTRAL COLORADO WATER (CCW) 0.980 0.000 $42.07
2218 1050 HIGH PLAINS LIBRARY 3.044 0.000 $130.68
2218 0509 HUDSON FIRE 12.237 0.000 $525.33
2218 1201 PLATTE VALLEY CONSERVATION 0.000 0.000 $0.00
2218 0203 SCHOOL DIST RE3J-KEENESBURG 0.000 15.822 $762.15
2218 0100 WELD COUNTY 15.956 0.000 $684.99
Total - - 38.53 15.822 $2,416.24


The estimate of tax is based on the prior year mill levy and the 2025 projected assessment rates. Mill levies and tax estimates will be updated yearly on December 22nd for the current year. Additional information can be found at https://assessor.weld.gov










Select Reports to Print: