Account: R5231886
April 4, 2026
| Account | Parcel | Account Type | Tax Year | Buildings | Actual Value | Local Govt Assessed Value | School Assessed Value |
|---|---|---|---|---|---|---|---|
| R5231886 | 130927305006 | Residential | 2026 | 2 | 734,970 | 45,930 | 51,810 |
| Legal |
|---|
| 2AR41-1 L1 BLK41 2ND ARISTOCRAT RANCHETTES |
| Subdivision | Block | Lot | Land Economic Area |
|---|---|---|---|
| ARISTOCRAT RANCHETTES 2ND FG | 41 | 1 | ARISTOCRAT |
| Property Address | Property City | Section | Township | Range |
|---|---|---|---|---|
| 7437 RICHARD ST | WELD | 27 | 02 | 66 |
| Account | Parcel | Account Type | Tax Year | Buildings | Actual Value | Local Govt Assessed Value | School Assessed Value |
|---|---|---|---|---|---|---|---|
| R5231886 | 130927305006 | Residential | 2026 | 2 | 734,970 | 45,930 | 51,810 |
| Account | Owner Name | Address |
|---|---|---|
| R5231886 | BOWEN MARK K | 7437 RICHARD AVE FORT LUPTON, CO 806214123 |
| R5231886 | BOWEN DIANE |
| Account | Parcel | Account Type | Tax Year | Buildings | Actual Value | Local Govt Assessed Value | School Assessed Value |
|---|---|---|---|---|---|---|---|
| R5231886 | 130927305006 | Residential | 2026 | 2 | 734,970 | 45,930 | 51,810 |
| Reception | Rec Date | Type | Grantor | Grantee | Doc Fee | Sale Date | Sale Price |
|---|---|---|---|---|---|---|---|
| 01650459 | 12-18-1974 | DN | NELSON JOHN MCCONAHAY TRUST AGREEMENT | MCCONAHAY N J | 0.00 | 12-18-1974 | 0 |
| 02144784 | 06-15-1988 | WDN | 0.00 | 01-18-1988 | 0 | ||
| 1401906 | NA | SUB | SUBDIVISION | ARISTOCRAT RANCHETTES 2ND FG | 0.00 | NA | 0 |
| 1403875 | 12-30-1987 | COZ | WELD COUNTY ZONING | CASE: S-21* ZONING A | 0.00 | NA | 0 |
| 2616378 | 06-01-1998 | DTHC | SITTINGDOWN RICHARD K & DORIS J | SITTINGDOWN RICHARD K HEIRS OF & DORIS J | 0.00 | 01-01-1900 | 0 |
| 2729255 | 10-27-1999 | WD | SITTINGDOWN DORIS K | ORBACK FERN L & ROBERT ALVIN J | 5.50 | 10-25-1999 | 55,000 |
| 2773053 | 06-06-2000 | WD | ORBACK FERN L & ROBERT ALVIN J | BOWEN MARK K & DIANE | 9.30 | 06-02-2000 | 93,000 |
*If the hyperlink for the reception number does not work, try a manual search in the Clerk and Recorder records. Use the Grantor or Grantee in your search.
| Account | Parcel | Account Type | Tax Year | Buildings | Actual Value | Local Govt Assessed Value | School Assessed Value |
|---|---|---|---|---|---|---|---|
| R5231886 | 130927305006 | Residential | 2026 | 2 | 734,970 | 45,930 | 51,810 |
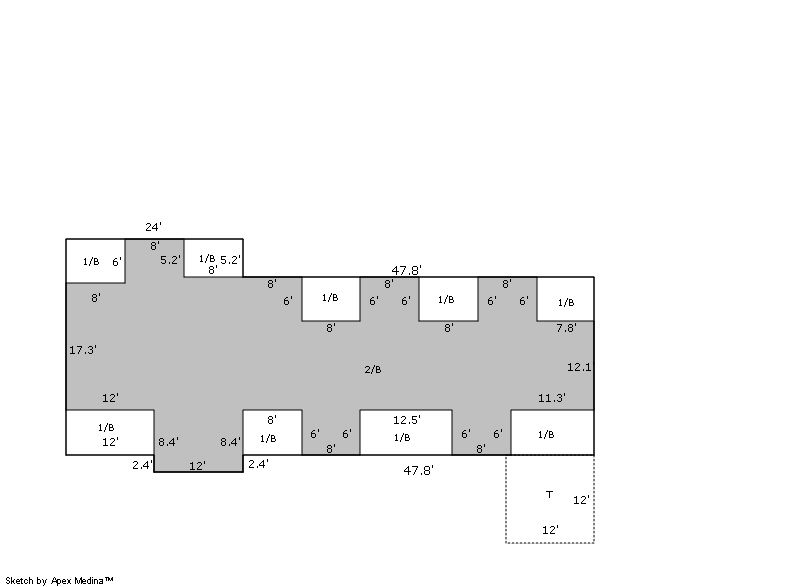
Building 1
| AccountNo | Building ID | Occupancy |
|---|---|---|
| R5231886 | 1 | Single Family Residential |
| ID | Type | NBHD | Occupancy | % Complete | Bedrooms | Baths |
|---|---|---|---|---|---|---|
| 1 | Residential | 4R0001 | Single Family Residential | 100 | 3 | 4.00 |
| ID | Exterior | Roof Cover | Interior | HVAC | Perimeter | Units | Unit Type | Make |
|---|---|---|---|---|---|---|---|---|
| 1 | Frame Hardboard | Composition Shingle | Drywall | Forced Air | 0 | 0 | NA | NA |
| ID | Square Ft | Condo SF | Total Basement SF | Finished Basement SF | Garage SF | Carport SF | Balcony SF | Porch SF |
|---|---|---|---|---|---|---|---|---|
| 1 | 3,273 | 0 | 1,884 | 0 | 0 | 0 | 0 | 144 |
| ID | Built As | Square Ft | Year Built | Stories | Length | Width |
|---|---|---|---|---|---|---|
| 1.00 | 2 Story | 3,273 | 2008 | 2 | 0 | 0 |
| ID | Detail Type | Description | Units |
|---|---|---|---|
| 1 | Add On | Fireplace Gas | 1.00 |
| 1 | Basement | Total Basement SF | 1884.00 |
| 1 | Fixture | Full Bath | 4.00 |
| 1 | Porch | Open Slab | 144.00 |
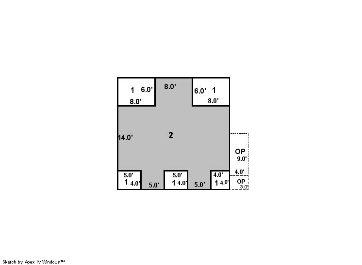
Building 2
| AccountNo | Building ID | Occupancy |
|---|---|---|
| R5231886 | 2 | Secondary Single Family Res |
| ID | Type | NBHD | Occupancy | % Complete | Bedrooms | Baths |
|---|---|---|---|---|---|---|
| 2 | Residential | 4R0001 | Secondary Single Family Res | 100 | 1 | 1.00 |
| ID | Exterior | Roof Cover | Interior | HVAC | Perimeter | Units | Unit Type | Make |
|---|---|---|---|---|---|---|---|---|
| 2 | Frame Hardboard | Composition Shingle | Drywall | Electric Baseboard | 0 | 0 | NA | NA |
| ID | Square Ft | Condo SF | Total Basement SF | Finished Basement SF | Garage SF | Carport SF | Balcony SF | Porch SF |
|---|---|---|---|---|---|---|---|---|
| 2 | 1,000 | 0 | 0 | 0 | 0 | 0 | 0 | 36 |
| ID | Built As | Square Ft | Year Built | Stories | Length | Width |
|---|---|---|---|---|---|---|
| 2.00 | 2 Story | 1,000 | 2003 | 1 | 0 | 0 |
| ID | Detail Type | Description | Units |
|---|---|---|---|
| 2 | Add On | Fireplace Gas | 1.00 |
| 2 | Fixture | Full Bath | 1.00 |
| 2 | Porch | Slab Roof | 36.00 |
| 2 | Porch | Slab Roof Ceil | 12.00 |
| Account | Parcel | Account Type | Tax Year | Buildings | Actual Value | Local Govt Assessed Value | School Assessed Value |
|---|---|---|---|---|---|---|---|
| R5231886 | 130927305006 | Residential | 2026 | 2 | 734,970 | 45,930 | 51,810 |
| Type | Code | Description | Actual Value | Local Govt Assessed Value | School Assessed Value | Acres | Land SqFt |
|---|---|---|---|---|---|---|---|
| Improvement | 1212 | SINGLE FAMILY RESIDENTIAL IMPROVEMENTS | 569,970 | 35,620 | 40,180 | 0.000 | 0 |
| Land | 1112 | SINGLE FAMILY RESIDENTIAL-LAND | 165,000 | 10,310 | 11,630 | 0.990 | 43,124 |
| Totals | - | - | 734,970 | 45,930 | 51,810 | 0.990 | 43,124 |
Comparable sales for your Residential or Commercial property may be found using our SALES SEARCH TOOL
Values are updated annually on May 1st for Real Property and June 15th for Personal Property and Oil and Gas.
| Account | Parcel | Account Type | Tax Year | Buildings | Actual Value | Local Govt Assessed Value | School Assessed Value |
|---|---|---|---|---|---|---|---|
| R5231886 | 130927305006 | Residential | 2026 | 2 | 734,970 | 45,930 | 51,810 |
| Tax Area | District ID | District Name | Local Govt Mill Levy |
School Mill Levy |
Estimated Taxes |
|---|---|---|---|---|---|
| 2241 | 0700 | AIMS JUNIOR COLLEGE | 6.313 | 0.000 | $289.96 |
| 2241 | 0302 | CENTRAL COLORADO WATER (CCW) | 0.980 | 0.000 | $45.01 |
| 2241 | 0506 | FORT LUPTON FIRE | 9.357 | 0.000 | $429.77 |
| 2241 | 1050 | HIGH PLAINS LIBRARY | 3.044 | 0.000 | $139.81 |
| 2241 | 0301 | NORTHERN COLORADO WATER (NCW) | 1.000 | 0.000 | $45.93 |
| 2241 | 1201 | PLATTE VALLEY CONSERVATION | 0.000 | 0.000 | $0.00 |
| 2241 | 0208 | SCHOOL DIST RE8-FORT LUPTON AND DACONO | 0.000 | 18.198 | $942.84 |
| 2241 | 0100 | WELD COUNTY | 15.956 | 0.000 | $732.86 |
| Total | - | - | 36.65 | 18.198 | $2,626.17 |
The estimate of tax is based on the prior year mill levy and the 2025 projected assessment rates. Mill levies and tax estimates will be updated yearly on December 22nd for the current year. Additional information can be found at https://assessor.weld.gov




