*If the hyperlink for the reception number does not work, try a manual search in the Clerk and Recorder records. Use the Grantor or Grantee in your search.
Account
Parcel
Account Type
Tax Year
Buildings
Actual Value
Local Govt Assessed Value
School Assessed Value
R5232986
130927306006
Residential
2026
5
485,051
30,310
34,190
Building 1
AccountNo
Building ID
Occupancy
R5232986
1
Single Family Residential
ID
Type
NBHD
Occupancy
% Complete
Bedrooms
Baths
1
Manufactured Hm
4R0001
Single Family Residential
100
2
3.00
ID
Exterior
Roof Cover
Interior
HVAC
Perimeter
Units
Unit Type
Make
1
Hardboard Sheet
Shingle Comp
Drywall
Forced Air
158
0
NA
Champion
ID
Square Ft
Condo SF
Total Basement SF
Finished Basement SF
Garage SF
Carport SF
Balcony SF
Porch SF
1
1,404
0
0
0
0
0
0
868
Built As Details for Building 1
ID
Built As
Square Ft
Year Built
Stories
Length
Width
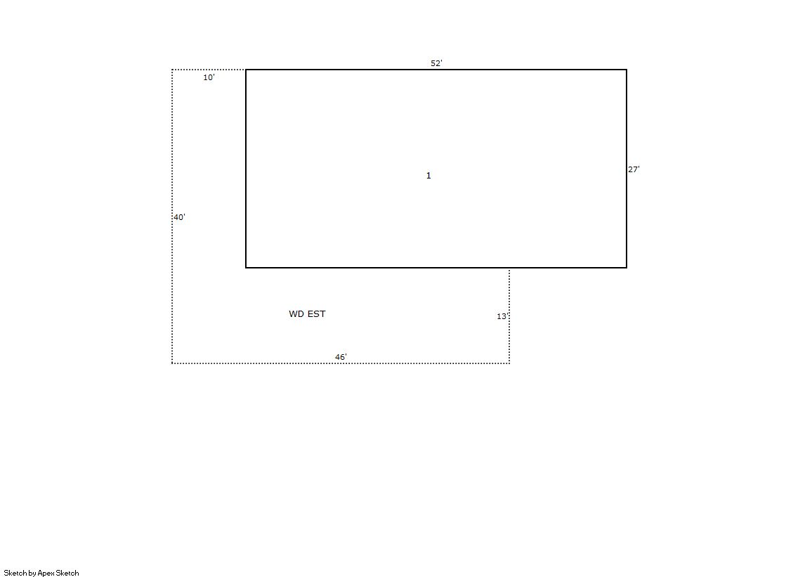
1.00
Mnfctrd Home 1 Story
1,404
1996
1
52
27
Additional Details for Building 1
ID
Detail Type
Description
Units
1
Add On
Shed Alumium
136.00
1
Add On
Shed Frame
120.00
1
Fixture
Full Bath
2.00
1
Porch
Wood Deck
868.00
Building 2
AccountNo
Building ID
Occupancy
R5232986
2
Utility Building
ID
Type
NBHD
Occupancy
% Complete
Bedrooms
Baths
2
Out Building
NA
Utility Building
100
0
0.00
ID
Exterior
Roof Cover
Interior
HVAC
Perimeter
Units
Unit Type
Make
2
NA
NA
NA
NA
112
0
NA
NA
ID
Square Ft
Condo SF
Total Basement SF
Finished Basement SF
Garage SF
Carport SF
Balcony SF
Porch SF
2
1,543
0
0
0
0
0
0
0
Built As Details for Building 2
ID
Built As
Square Ft
Year Built
Stories
Length
Width
2.00
Stable
384
2002
1
24
16
2.00
Utility Building
775
2002
1
0
0
2.00
Utility Building
384
2002
1
16
24
No Additional Details for Building 2
Building 3
AccountNo
Building ID
Occupancy
R5232986
3
Shed - Utility
ID
Type
NBHD
Occupancy
% Complete
Bedrooms
Baths
3
Out Building
NA
Shed - Utility
100
NA
0.00
ID
Exterior
Roof Cover
Interior
HVAC
Perimeter
Units
Unit Type
Make
3
NA
NA
NA
NA
66
0
NA
NA
ID
Square Ft
Condo SF
Total Basement SF
Finished Basement SF
Garage SF
Carport SF
Balcony SF
Porch SF
3
270
0
0
0
0
0
0
0
Built As Details for Building 3
ID
Built As
Square Ft
Year Built
Stories
Length
Width
3.00
Shed - Utility
270
2022
1
18
15
No Additional Details for Building 3
Building 4
AccountNo
Building ID
Occupancy
R5232986
4
Shed - Cattle
ID
Type
NBHD
Occupancy
% Complete
Bedrooms
Baths
4
Out Building
NA
Shed - Cattle
100
NA
0.00
ID
Exterior
Roof Cover
Interior
HVAC
Perimeter
Units
Unit Type
Make
4
NA
NA
NA
NA
48
0
NA
NA
ID
Square Ft
Condo SF
Total Basement SF
Finished Basement SF
Garage SF
Carport SF
Balcony SF
Porch SF
4
128
0
0
0
0
0
0
0
Built As Details for Building 4
ID
Built As
Square Ft
Year Built
Stories
Length
Width
4.00
Shed - Cattle
128
2022
1
8
16
No Additional Details for Building 4
Building 5
AccountNo
Building ID
Occupancy
R5232986
5
Shed - Utility
ID
Type
NBHD
Occupancy
% Complete
Bedrooms
Baths
5
Out Building
NA
Shed - Utility
100
NA
0.00
ID
Exterior
Roof Cover
Interior
HVAC
Perimeter
Units
Unit Type
Make
5
NA
NA
NA
NA
50
0
NA
NA
ID
Square Ft
Condo SF
Total Basement SF
Finished Basement SF
Garage SF
Carport SF
Balcony SF
Porch SF
5
150
0
0
0
0
0
0
0
Built As Details for Building 5
ID
Built As
Square Ft
Year Built
Stories
Length
Width
5.00
Shed - Utility
150
2022
1
10
15
No Additional Details for Building 5
Account
Parcel
Account Type
Tax Year
Buildings
Actual Value
Local Govt Assessed Value
School Assessed Value
R5232986
130927306006
Residential
2026
5
485,051
30,310
34,190
Type
Code
Description
Actual Value
Local Govt Assessed Value
School Assessed Value
Acres
Land SqFt
Improvement
1212
SINGLE FAMILY RESIDENTIAL IMPROVEMENTS
320,051
20,000
22,560
0.000
0
Land
1135
MANUFACTURED HOUSING-LAND
165,000
10,310
11,630
0.990
43,124
Totals
-
-
485,051
30,310
34,190
0.990
43,124
Comparable sales for your Residential or Commercial property may be found using our SALES SEARCH TOOL
Values are updated annually on May 1st for Real Property and June 15th for Personal Property and Oil and Gas.
Account
Parcel
Account Type
Tax Year
Buildings
Actual Value
Local Govt Assessed Value
School Assessed Value
R5232986
130927306006
Residential
2026
5
485,051
30,310
34,190
Tax Area
District ID
District Name
Local Govt Mill Levy
School Mill Levy
Estimated Taxes
2241
0700
AIMS JUNIOR COLLEGE
6.313
0.000
$191.35
2241
0302
CENTRAL COLORADO WATER (CCW)
0.980
0.000
$29.70
2241
0506
FORT LUPTON FIRE
9.357
0.000
$283.61
2241
1050
HIGH PLAINS LIBRARY
3.044
0.000
$92.26
2241
0301
NORTHERN COLORADO WATER (NCW)
1.000
0.000
$30.31
2241
1201
PLATTE VALLEY CONSERVATION
0.000
0.000
$0.00
2241
0208
SCHOOL DIST RE8-FORT LUPTON AND DACONO
0.000
18.198
$622.19
2241
0100
WELD COUNTY
15.956
0.000
$483.63
Total
-
-
36.65
18.198
$1,733.05
The estimate of tax is based on the prior year mill levy and the 2025 projected assessment rates. Mill levies and tax estimates will be updated yearly on December 22nd for the current year. Additional information can be found at https://assessor.weld.gov