Account: R5245286

April 5, 2026

Account Parcel Account Type Tax Year Buildings Actual Value Local Govt Assessed Value School Assessed Value
R5245286 130927318004 Residential 2026 1 559,901 34,990 39,470

Legal
2AR65-7 L7 BLK65 2ND ARISTOCRAT RANCHETTES

Subdivision Block Lot Land Economic Area
ARISTOCRAT RANCHETTES 2ND FG 65 7 ARISTOCRAT

Property Address Property City Section Township Range
15333 BARLEY AVE WELD 27 02 66




Account Parcel Account Type Tax Year Buildings Actual Value Local Govt Assessed Value School Assessed Value
R5245286 130927318004 Residential 2026 1 559,901 34,990 39,470

Account Owner Name Address
R5245286 MORALES ELVIA 15333 BARLEY AVE FORT LUPTON, CO 806214605
R5245286 MORALES CARLOS


Account Parcel Account Type Tax Year Buildings Actual Value Local Govt Assessed Value School Assessed Value
R5245286 130927318004 Residential 2026 1 559,901 34,990 39,470

Reception Rec Date Type Grantor Grantee Doc Fee Sale Date Sale Price
01698988 09-14-1976 WDN 0.00 01-01-1900 0
02138298 04-19-1988 DTHC 0.00 12-19-1987 0
1401906 NA SUB SUBDIVISION ARISTOCRAT RANCHETTES 2ND FG 0.00 NA 0
1403875 12-30-1987 COZ WELD COUNTY ZONING CASE: S-21* ZONING A 0.00 NA 0
2714865 08-18-1999 WD SMITH VIRGINIA KATHERINE DESANTIS VIRGINIA L 4.20 08-13-1999 42,000
2936589 03-26-2002 PTD DESANTIS VIRGINIA L FEDERAL NATIONAL MORTGAGE ASSOC 0.00 03-26-2002 0
2962567 06-19-2002 SWD FEDERAL NATIONAL MORTGAGE ASSOC BARRON JOSE LUIS 17.69 06-14-2002 176,900
3164273 03-24-2004 WD FEDERAL NATIONAL MORTGAGE ASSOC BARRON JOSE LUIS 21.40 03-19-2004 214,000
3569500 07-31-2008 PTD CHAVEZ HUGO ELIZONDO NATIONAL CITY BANK 0.00 07-30-2008 0
3572999 08-19-2008 SWDN NATIONAL CITY BANK SECRETARY OF HOUSING AND URBAN DEVELOPME 0.00 08-05-2008 0
3593312 12-05-2008 SWD USA HUD MORALES ELVIA 0.00 12-02-2008 150,000



Account Parcel Account Type Tax Year Buildings Actual Value Local Govt Assessed Value School Assessed Value
R5245286 130927318004 Residential 2026 1 559,901 34,990 39,470

Building 1

AccountNo Building ID Occupancy
R5245286 1 Single Family Residential


ID Type NBHD Occupancy % Complete Bedrooms Baths
1 Manufactured Hm 4R0001 Single Family Residential 100 4 3.00


ID Exterior Roof Cover Interior HVAC Perimeter Units Unit Type Make
1 Hardboard Sheet Composition Shingle Drywall Forced Air 0 0 NA NA


ID Square Ft Condo SF Total Basement SF Finished Basement SF Garage SF Carport SF Balcony SF Porch SF
1 2,016 0 0 0 400 0 0 160


Built As Details for Building 1
ID Built As Square Ft Year Built Stories Length Width
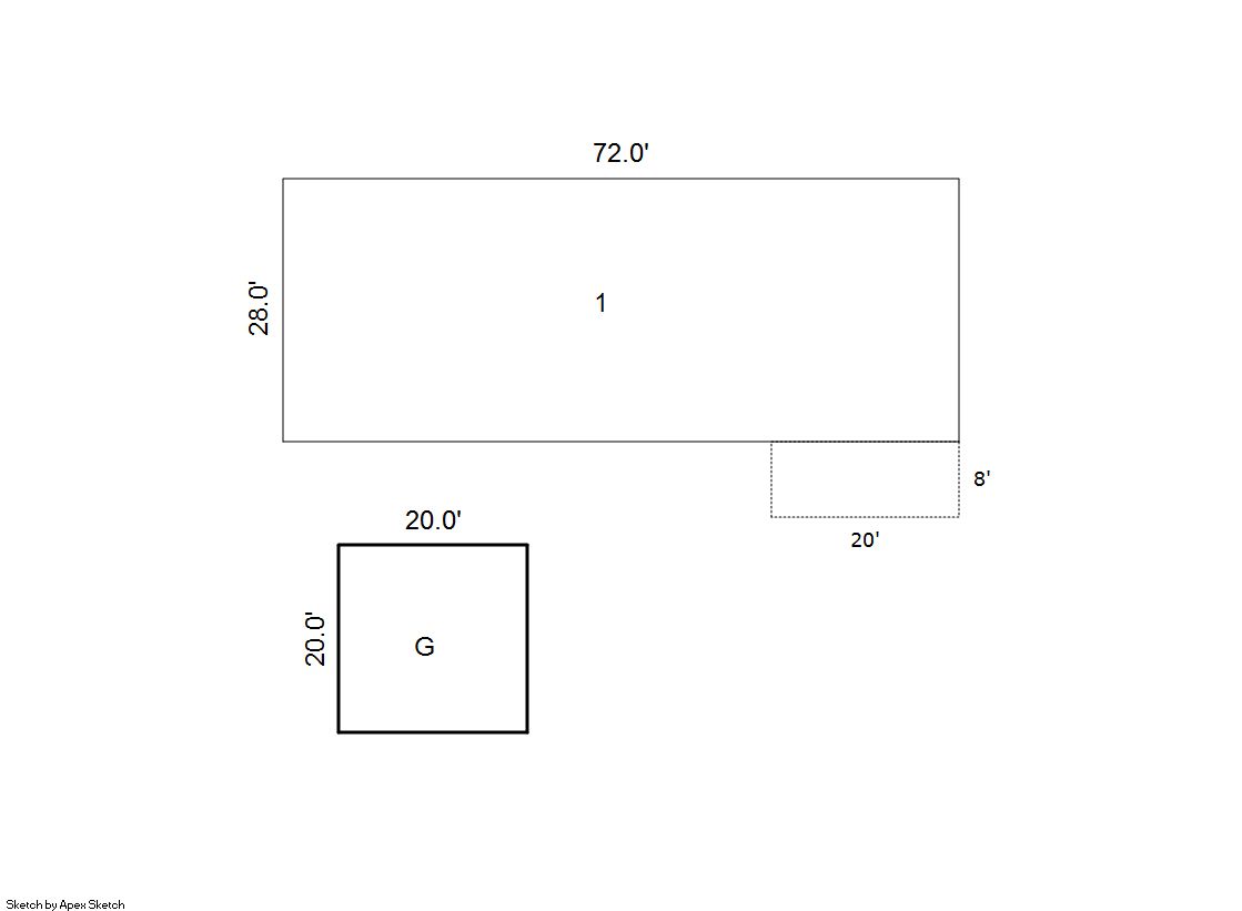
1.00 Mnfctrd Home 1 Story 2,016 1999 1 72 28


Additional Details for Building 1
ID Detail Type Description Units
1 Fixture Full Bath 2.00
1 Fixture Half Bath 1.00
1 Garage Detached 400.00
1 Porch Slab Roof Ceil 160.00





Account Parcel Account Type Tax Year Buildings Actual Value Local Govt Assessed Value School Assessed Value
R5245286 130927318004 Residential 2026 1 559,901 34,990 39,470

Type Code Description Actual Value Local Govt Assessed Value School Assessed Value Acres Land SqFt
Improvement 1212 SINGLE FAMILY RESIDENTIAL IMPROVEMENTS 394,901 24,680 27,840 0.000 0
Land 1112 SINGLE FAMILY RESIDENTIAL-LAND 165,000 10,310 11,630 1.150 50,094
Totals - - 559,901 34,990 39,470 1.150 50,094


Account Parcel Account Type Tax Year Buildings Actual Value Local Govt Assessed Value School Assessed Value
R5245286 130927318004 Residential 2026 1 559,901 34,990 39,470

Tax Area District ID District Name Local Govt
Mill Levy
School
Mill Levy
Estimated
Taxes
2241 0700 AIMS JUNIOR COLLEGE 6.313 0.000 $220.89
2241 0302 CENTRAL COLORADO WATER (CCW) 0.980 0.000 $34.29
2241 0506 FORT LUPTON FIRE 9.357 0.000 $327.40
2241 1050 HIGH PLAINS LIBRARY 3.044 0.000 $106.51
2241 0301 NORTHERN COLORADO WATER (NCW) 1.000 0.000 $34.99
2241 1201 PLATTE VALLEY CONSERVATION 0.000 0.000 $0.00
2241 0208 SCHOOL DIST RE8-FORT LUPTON AND DACONO 0.000 18.198 $718.28
2241 0100 WELD COUNTY 15.956 0.000 $558.30
Total - - 36.65 18.198 $2,000.66


The estimate of tax is based on the prior year mill levy and the 2025 projected assessment rates. Mill levies and tax estimates will be updated yearly on December 22nd for the current year. Additional information can be found at https://assessor.weld.gov










Select Reports to Print: