Account: R5283286

April 1, 2026

Account Parcel Account Type Tax Year Buildings Actual Value Local Govt Assessed Value School Assessed Value
R5283286 130931409009 Residential 2026 4 1,547,280 96,700 109,090

Legal
FTL 15690 L1 THRU 8 BLK4 PHILPOTTS (KISSLERS)

Subdivision Block Lot Land Economic Area
PHILPOTT ADD 4 1 KISSLERS MH PARK

Property Address Property City Section Township Range
931 DENVER AVE FORT LUPTON 31 02 66




Account Parcel Account Type Tax Year Buildings Actual Value Local Govt Assessed Value School Assessed Value
R5283286 130931409009 Residential 2026 4 1,547,280 96,700 109,090

Account Owner Name Address
R5283286 3430 8TH AVENUE DENVER LLC 6409 S OURAY WAY AURORA, CO 800165006


Account Parcel Account Type Tax Year Buildings Actual Value Local Govt Assessed Value School Assessed Value
R5283286 130931409009 Residential 2026 4 1,547,280 96,700 109,090

Reception Rec Date Type Grantor Grantee Doc Fee Sale Date Sale Price
01771844 11-03-1978 WDN 0.00 01-01-1900 0
2296122 07-20-1992 WD PICKETT DARRYL C & JEANENNE K PICKETT GREGORY L 29.00 07-17-1992 290,000
3191532 06-22-2004 QCN PICKETT LINDA PICKETT GREGORY L 0.00 06-16-2004 0
330173 NA SUB SUBDIVISION PHILPOTT ADD 0.00 NA 0
4088431 03-06-2015 SURV SURVEY SURVEY 0.00 02-11-2015 0
4161575 12-01-2015 WD PICKETT GREGORY L 931 DENVER AVENUE LLC 80.00 11-25-2015 800,000
4342949 10-10-2017 WD 931 DENVER AVENUE LLC ZJH LLC 110.00 10-06-2017 1,100,000
4348367 10-31-2017 SURV SURVEY SURVEY 0.00 10-31-2017 0
4890441 04-04-2023 WD ZJH LLC 3430 8TH AVENUE DENVER LLC 73.00 03-31-2023 730,000



Account Parcel Account Type Tax Year Buildings Actual Value Local Govt Assessed Value School Assessed Value
R5283286 130931409009 Residential 2026 4 1,547,280 96,700 109,090

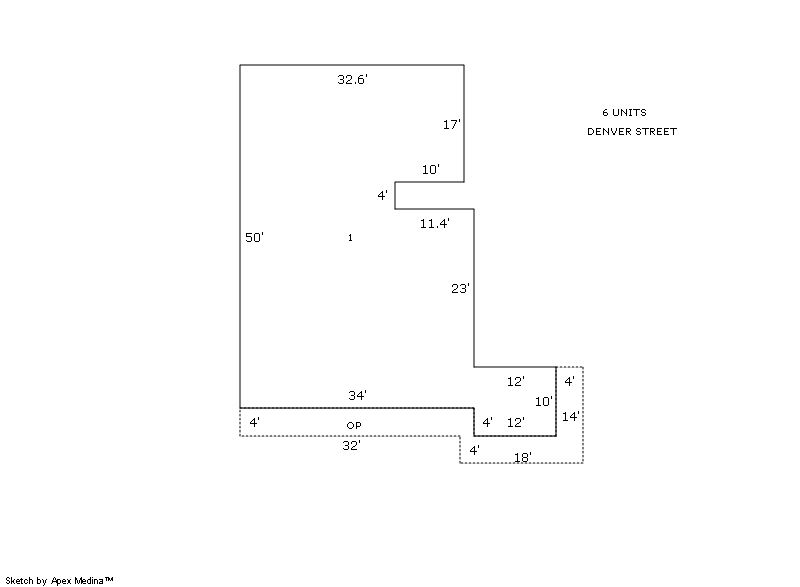
Building 1

AccountNo Building ID Occupancy
R5283286 1 Apartment w/4-8 Units - Larger Complex


ID Type NBHD Occupancy % Complete Bedrooms Baths
1 Multiple Unit 4F1005 Apartment w/4-8 Units - Larger Complex 100 0 6.00


ID Exterior Roof Cover Interior HVAC Perimeter Units Unit Type Make
1 Frame Siding Composition Shingle Drywall Forced Air 0 3 NA NA


ID Square Ft Condo SF Total Basement SF Finished Basement SF Garage SF Carport SF Balcony SF Porch SF
1 1,939 0 0 0 0 0 0 0


Built As Details for Building 1
ID Built As Square Ft Year Built Stories Length Width
1.00 Apartment <= 3 Stories 1,939 1930 1 0 0


Additional Details for Building 1
ID Detail Type Description Units
1 Fixture Full Bath 6.00



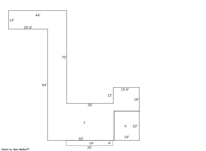
Building 2

AccountNo Building ID Occupancy
R5283286 2 Apartment w/4-8 Units - Larger Complex


ID Type NBHD Occupancy % Complete Bedrooms Baths
2 Multiple Unit 4F1005 Apartment w/4-8 Units - Larger Complex 100 0 6.00


ID Exterior Roof Cover Interior HVAC Perimeter Units Unit Type Make
2 Frame Siding Composition Shingle Drywall Floor/Wall Furnace 0 4 NA NA


ID Square Ft Condo SF Total Basement SF Finished Basement SF Garage SF Carport SF Balcony SF Porch SF
2 1,751 0 0 0 0 0 0 248


Built As Details for Building 2
ID Built As Square Ft Year Built Stories Length Width
2.00 Apartment <= 3 Stories 1,751 1930 1 0 0


Additional Details for Building 2
ID Detail Type Description Units
2 Fixture Full Bath 6.00
2 Porch Slab Roof Ceil 248.00



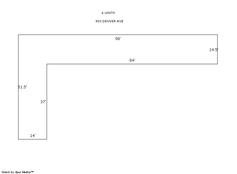
Building 3

AccountNo Building ID Occupancy
R5283286 3 Apartment w/4-8 Units - Larger Complex


ID Type NBHD Occupancy % Complete Bedrooms Baths
3 Multiple Unit 4F1005 Apartment w/4-8 Units - Larger Complex 100 6 6.00


ID Exterior Roof Cover Interior HVAC Perimeter Units Unit Type Make
3 Frame Siding Composition Shingle Drywall Floor/Wall Furnace 0 6 NA NA


ID Square Ft Condo SF Total Basement SF Finished Basement SF Garage SF Carport SF Balcony SF Porch SF
3 3,172 0 0 0 418 0 0 140


Built As Details for Building 3
ID Built As Square Ft Year Built Stories Length Width
3.00 Apartment <= 3 Stories 3,172 1930 1 0 0


Additional Details for Building 3
ID Detail Type Description Units
3 Fixture Full Bath 6.00
3 Garage Attached 418.00
3 Porch Slab Roof Ceil 140.00



Building 4

AccountNo Building ID Occupancy
R5283286 4 Shed - Utility


ID Type NBHD Occupancy % Complete Bedrooms Baths
4 Out Building NA Shed - Utility 100 0 0.00


ID Exterior Roof Cover Interior HVAC Perimeter Units Unit Type Make
4 Wood Frame Siding NA NA Space Heater 100 0 NA NA


ID Square Ft Condo SF Total Basement SF Finished Basement SF Garage SF Carport SF Balcony SF Porch SF
4 800 0 0 0 0 0 0 0


Built As Details for Building 4
ID Built As Square Ft Year Built Stories Length Width
4.00 Shed - Utility 800 1930 1 0 0

No Additional Details for Building 4






Account Parcel Account Type Tax Year Buildings Actual Value Local Govt Assessed Value School Assessed Value
R5283286 130931409009 Residential 2026 4 1,547,280 96,700 109,090

Type Code Description Actual Value Local Govt Assessed Value School Assessed Value Acres Land SqFt
Improvement 1212 SINGLE FAMILY RESIDENTIAL IMPROVEMENTS 4,049 250 290 0.000 0
Improvement 1220 MULTI-UNITS(4-8)-IMPRVMTS 663,231 41,450 46,760 0.000 0
Land 1125 MULTI-UNITS(9 +)-LAND 180,000 11,250 12,690 0.517 22,500
Land 1140 MANUFACTURED HOUSING PARK-LAND 700,000 43,750 49,350 1.298 56,550
Totals - - 1,547,280 96,700 109,090 1.815 79,050


Account Parcel Account Type Tax Year Buildings Actual Value Local Govt Assessed Value School Assessed Value
R5283286 130931409009 Residential 2026 4 1,547,280 96,700 109,090

Tax Area District ID District Name Local Govt
Mill Levy
School
Mill Levy
Estimated
Taxes
5392 0700 AIMS JUNIOR COLLEGE 6.313 0.000 $610.47
5392 0407 FORT LUPTON CITY 42.931 0.000 $4,151.43
5392 0506 FORT LUPTON FIRE 9.357 0.000 $904.82
5392 0951 FORT LUPTON URBAN RENEWAL AUTHORITY (FLURA) 0.000 0.000 $0.00
5392 1050 HIGH PLAINS LIBRARY 3.044 0.000 $294.35
5392 0301 NORTHERN COLORADO WATER (NCW) 1.000 0.000 $96.70
5392 0208 SCHOOL DIST RE8-FORT LUPTON AND DACONO 0.000 18.198 $1,985.22
5392 0100 WELD COUNTY 15.956 0.000 $1,542.95
Total - - 78.601 18.198 $9,585.94


The estimate of tax is based on the prior year mill levy and the 2025 projected assessment rates. Mill levies and tax estimates will be updated yearly on December 22nd for the current year. Additional information can be found at https://assessor.weld.gov










Select Reports to Print: