Account: R5285586
April 2, 2026
| Account | Parcel | Account Type | Tax Year | Buildings | Actual Value | Local Govt Assessed Value | School Assessed Value |
|---|---|---|---|---|---|---|---|
| R5285586 | 130931410009 | Residential | 2026 | 2 | 507,292 | 31,710 | 35,760 |
| Legal |
|---|
| FTL 15676 L1-2 BLK3 PHILPOTT'S ADD |
| Subdivision | Block | Lot | Land Economic Area |
|---|---|---|---|
| PHILPOTT ADD | 3 | 1 | OLD FORT LUPTON |
| Property Address | Property City | Section | Township | Range |
|---|---|---|---|---|
| 911 PARK AVE | FORT LUPTON | 31 | 02 | 66 |
| Account | Parcel | Account Type | Tax Year | Buildings | Actual Value | Local Govt Assessed Value | School Assessed Value |
|---|---|---|---|---|---|---|---|
| R5285586 | 130931410009 | Residential | 2026 | 2 | 507,292 | 31,710 | 35,760 |
| Account | Owner Name | Address |
|---|---|---|
| R5285586 | FIGUEROA MANUEL P | 9617 BOUNTIFUL ST FIRESTONE, CO 805045943 |
| R5285586 | FIGUEROA COLLEEN LYNN |
| Account | Parcel | Account Type | Tax Year | Buildings | Actual Value | Local Govt Assessed Value | School Assessed Value |
|---|---|---|---|---|---|---|---|
| R5285586 | 130931410009 | Residential | 2026 | 2 | 507,292 | 31,710 | 35,760 |
| Reception | Rec Date | Type | Grantor | Grantee | Doc Fee | Sale Date | Sale Price |
|---|---|---|---|---|---|---|---|
| 2372531 | 02-07-1994 | WD | GLOVER JONATHAN W & GWENDOLYN | HERNANDEZ TROY & DANA KAYE | 6.95 | 11-16-1993 | 69,500 |
| 2939337 | 04-02-2002 | WD | HERNANDEZ TROY & DANA KAYE | CARRILLO BRAD L & DONNA M | 16.50 | 03-29-2002 | 165,000 |
| 330173 | NA | SUB | SUBDIVISION | PHILPOTT ADD | 0.00 | NA | 0 |
| 3416238 | 08-31-2006 | PTD | CARRILLO BRAD L & | SECRETARY OF HOUSING & URBAN DEV | 0.00 | 08-31-2006 | 0 |
| 3442514 | 12-18-2006 | SWD | SECRETARY OF HOUSING & URBAN DEV | MALOCSAY BRENT & | 0.00 | 12-13-2006 | 118,000 |
| 4415428 | 07-16-2018 | WD | GLOVER WOODROW L; MALOCSAY BRENT | HOLMES GEORGIA ANN | 33.00 | 07-12-2018 | 330,000 |
| 4459760 | 01-14-2019 | QCN | HOLMES GEORGIA ANN | MEANS MICHELLE FAYE; HOLMES GEORGIA ANN | 0.00 | 01-06-2019 | 0 |
| 4657704 | 12-07-2020 | SWD | HOLMES GEORGIA ANN; MEANS MICHELLE FAYE | FIGUEROA MANUEL P; FIGUEROA COLLEEN LYNN | 31.70 | 11-30-2020 | 317,000 |
*If the hyperlink for the reception number does not work, try a manual search in the Clerk and Recorder records. Use the Grantor or Grantee in your search.
| Account | Parcel | Account Type | Tax Year | Buildings | Actual Value | Local Govt Assessed Value | School Assessed Value |
|---|---|---|---|---|---|---|---|
| R5285586 | 130931410009 | Residential | 2026 | 2 | 507,292 | 31,710 | 35,760 |
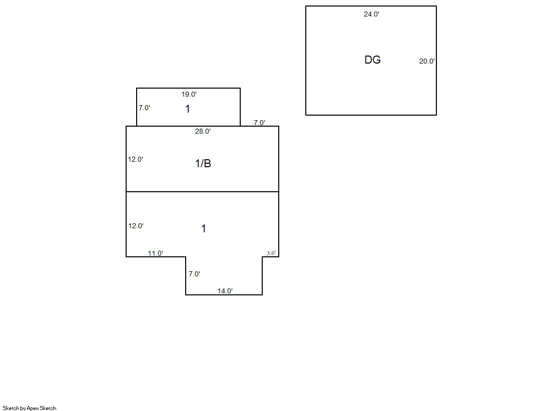
Building 1
| AccountNo | Building ID | Occupancy |
|---|---|---|
| R5285586 | 1 | Single Family Residential |
| ID | Type | NBHD | Occupancy | % Complete | Bedrooms | Baths |
|---|---|---|---|---|---|---|
| 1 | Residential | 4F1005 | Single Family Residential | 100 | 2 | 1.00 |
| ID | Exterior | Roof Cover | Interior | HVAC | Perimeter | Units | Unit Type | Make |
|---|---|---|---|---|---|---|---|---|
| 1 | Frame Hardboard | Composition Shingle | Plaster | Floor/Wall Furnace | 132 | 0 | NA | NA |
| ID | Square Ft | Condo SF | Total Basement SF | Finished Basement SF | Garage SF | Carport SF | Balcony SF | Porch SF |
|---|---|---|---|---|---|---|---|---|
| 1 | 903 | 0 | 336 | 0 | 480 | 0 | 0 | 0 |
| ID | Built As | Square Ft | Year Built | Stories | Length | Width |
|---|---|---|---|---|---|---|
| 1.00 | Ranch 1 Story | 903 | 1918 | 1 | 0 | 0 |
| ID | Detail Type | Description | Units |
|---|---|---|---|
| 1 | Add On | Fireplace Wood | 1.00 |
| 1 | Basement | Total Basement SF | 336.00 |
| 1 | Fixture | Full Bath | 1.00 |
| 1 | Garage | Detached | 480.00 |
Building 2
| AccountNo | Building ID | Occupancy |
|---|---|---|
| R5285586 | 2 | Secondary Single Family Res |
| ID | Type | NBHD | Occupancy | % Complete | Bedrooms | Baths |
|---|---|---|---|---|---|---|
| 2 | Residential | 4F1005 | Secondary Single Family Res | 100 | 1 | 1.00 |
| ID | Exterior | Roof Cover | Interior | HVAC | Perimeter | Units | Unit Type | Make |
|---|---|---|---|---|---|---|---|---|
| 2 | Frame Hardboard | Composition Shingle | Plaster | Forced Air | 133 | 0 | NA | NA |
| ID | Square Ft | Condo SF | Total Basement SF | Finished Basement SF | Garage SF | Carport SF | Balcony SF | Porch SF |
|---|---|---|---|---|---|---|---|---|
| 2 | 739 | 0 | 0 | 0 | 0 | 0 | 0 | 0 |
| ID | Built As | Square Ft | Year Built | Stories | Length | Width |
|---|---|---|---|---|---|---|
| 2.00 | Ranch 1 Story | 739 | 1940 | 1 | 0 | 0 |
| ID | Detail Type | Description | Units |
|---|---|---|---|
| 2 | Fixture | Full Bath | 1.00 |
| Account | Parcel | Account Type | Tax Year | Buildings | Actual Value | Local Govt Assessed Value | School Assessed Value |
|---|---|---|---|---|---|---|---|
| R5285586 | 130931410009 | Residential | 2026 | 2 | 507,292 | 31,710 | 35,760 |
| Type | Code | Description | Actual Value | Local Govt Assessed Value | School Assessed Value | Acres | Land SqFt |
|---|---|---|---|---|---|---|---|
| Improvement | 1212 | SINGLE FAMILY RESIDENTIAL IMPROVEMENTS | 394,192 | 24,640 | 27,790 | 0.000 | 0 |
| Land | 1112 | SINGLE FAMILY RESIDENTIAL-LAND | 113,100 | 7,070 | 7,970 | 0.325 | 14,138 |
| Totals | - | - | 507,292 | 31,710 | 35,760 | 0.325 | 14,138 |
Comparable sales for your Residential or Commercial property may be found using our SALES SEARCH TOOL
Values are updated annually on May 1st for Real Property and June 15th for Personal Property and Oil and Gas.
| Account | Parcel | Account Type | Tax Year | Buildings | Actual Value | Local Govt Assessed Value | School Assessed Value |
|---|---|---|---|---|---|---|---|
| R5285586 | 130931410009 | Residential | 2026 | 2 | 507,292 | 31,710 | 35,760 |
| Tax Area | District ID | District Name | Local Govt Mill Levy |
School Mill Levy |
Estimated Taxes |
|---|---|---|---|---|---|
| 5392 | 0700 | AIMS JUNIOR COLLEGE | 6.313 | 0.000 | $200.19 |
| 5392 | 0407 | FORT LUPTON CITY | 42.931 | 0.000 | $1,361.34 |
| 5392 | 0506 | FORT LUPTON FIRE | 9.357 | 0.000 | $296.71 |
| 5392 | 0951 | FORT LUPTON URBAN RENEWAL AUTHORITY (FLURA) | 0.000 | 0.000 | $0.00 |
| 5392 | 1050 | HIGH PLAINS LIBRARY | 3.044 | 0.000 | $96.53 |
| 5392 | 0301 | NORTHERN COLORADO WATER (NCW) | 1.000 | 0.000 | $31.71 |
| 5392 | 0208 | SCHOOL DIST RE8-FORT LUPTON AND DACONO | 0.000 | 18.198 | $650.76 |
| 5392 | 0100 | WELD COUNTY | 15.956 | 0.000 | $505.96 |
| Total | - | - | 78.601 | 18.198 | $3,143.20 |
The estimate of tax is based on the prior year mill levy and the 2025 projected assessment rates. Mill levies and tax estimates will be updated yearly on December 22nd for the current year. Additional information can be found at https://assessor.weld.gov


