Account: R5288886
April 1, 2026
| Account | Parcel | Account Type | Tax Year | Buildings | Actual Value | Local Govt Assessed Value | School Assessed Value |
|---|---|---|---|---|---|---|---|
| R5288886 | 130931413009 | Residential | 2026 | 1 | 448,116 | 28,010 | 31,590 |
| Legal |
|---|
| FTL 59-13A LOT A A RESUB OF L3 & PT L1-2 BLK1 NORTHWEST ADD |
| Subdivision | Block | Lot | Land Economic Area |
|---|---|---|---|
| NORTH WEST ADD | 1 | 1 | OLD FORT LUPTON |
| Property Address | Property City | Section | Township | Range |
|---|---|---|---|---|
| 930 BROADWAY AVE | FORT LUPTON | 31 | 02 | 66 |
| Account | Parcel | Account Type | Tax Year | Buildings | Actual Value | Local Govt Assessed Value | School Assessed Value |
|---|---|---|---|---|---|---|---|
| R5288886 | 130931413009 | Residential | 2026 | 1 | 448,116 | 28,010 | 31,590 |
| Account | Owner Name | Address |
|---|---|---|
| R5288886 | HERRERA DAGO BERTO JR | 930 BROADWAY AVE FORT LUPTON, CO 806212611 |
| R5288886 | SANCHEZ LIZSET A |
| Account | Parcel | Account Type | Tax Year | Buildings | Actual Value | Local Govt Assessed Value | School Assessed Value |
|---|---|---|---|---|---|---|---|
| R5288886 | 130931413009 | Residential | 2026 | 1 | 448,116 | 28,010 | 31,590 |
| Reception | Rec Date | Type | Grantor | Grantee | Doc Fee | Sale Date | Sale Price |
|---|---|---|---|---|---|---|---|
| 01990201 | 11-29-1984 | PLT | 0.00 | 01-01-1900 | 0 | ||
| 1311022 | NA | SUB | SUBDIVISION | NORTH WEST ADD | 0.00 | NA | 0 |
| 2199100 | 12-01-1989 | WD | BUENO ANTHONY & PHYLLIS | BUELTEL ALAN C | 7.55 | 11-29-1989 | 75,500 |
| 2992714 | 10-02-2002 | WD | BUELTEL ALAN C | HEINRICH ALAN C | 18.00 | 09-26-2002 | 180,000 |
| 4229768 | 08-22-2016 | PRD | HEINRICH ALAN C | HERRERA DAGO BERTO JR | 25.50 | 08-19-2016 | 255,000 |
| 4480814 | 04-12-2019 | QCN | HERRERA DAGO BERTO JR | SANCHEZ LIZSET A | 0.00 | 04-05-2019 | 0 |
*If the hyperlink for the reception number does not work, try a manual search in the Clerk and Recorder records. Use the Grantor or Grantee in your search.
| Account | Parcel | Account Type | Tax Year | Buildings | Actual Value | Local Govt Assessed Value | School Assessed Value |
|---|---|---|---|---|---|---|---|
| R5288886 | 130931413009 | Residential | 2026 | 1 | 448,116 | 28,010 | 31,590 |
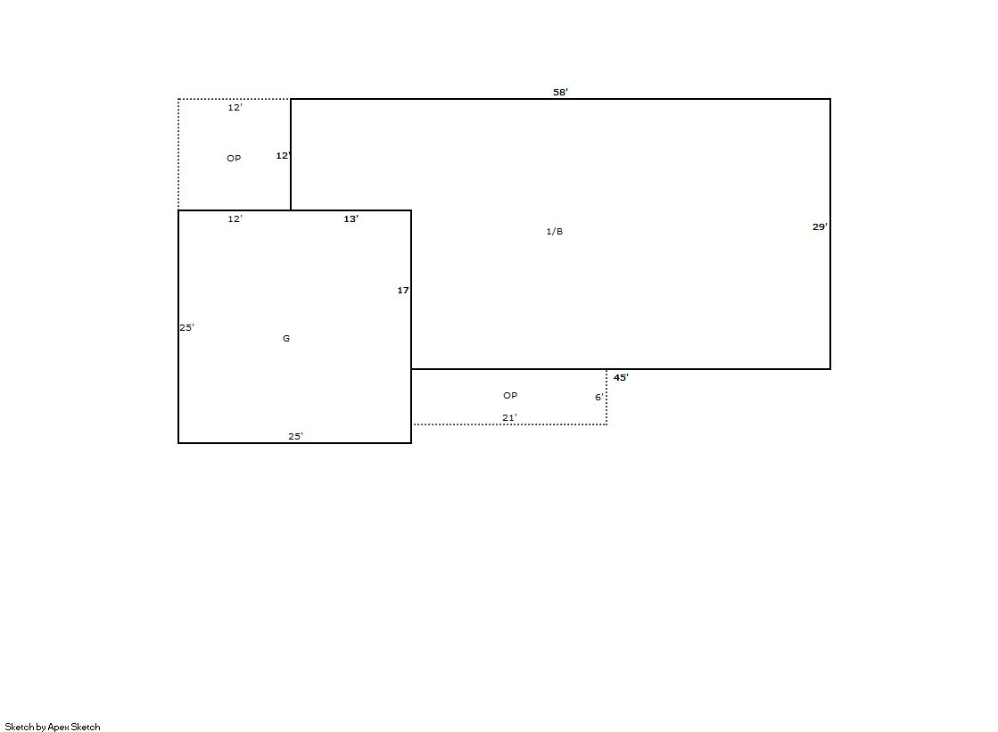
Building 1
| AccountNo | Building ID | Occupancy |
|---|---|---|
| R5288886 | 1 | Single Family Residential |
| ID | Type | NBHD | Occupancy | % Complete | Bedrooms | Baths |
|---|---|---|---|---|---|---|
| 1 | Residential | 4F1005 | Single Family Residential | 100 | 5 | 3.00 |
| ID | Exterior | Roof Cover | Interior | HVAC | Perimeter | Units | Unit Type | Make |
|---|---|---|---|---|---|---|---|---|
| 1 | Frame Masonry Veneer | Composition Shingle | Drywall | Forced Air | 174 | 0 | NA | NA |
| ID | Square Ft | Condo SF | Total Basement SF | Finished Basement SF | Garage SF | Carport SF | Balcony SF | Porch SF |
|---|---|---|---|---|---|---|---|---|
| 1 | 1,461 | 0 | 1,461 | 1,461 | 625 | 0 | 0 | 270 |
| ID | Built As | Square Ft | Year Built | Stories | Length | Width |
|---|---|---|---|---|---|---|
| 1.00 | Ranch 1 Story | 1,461 | 1985 | 1 | 0 | 0 |
| ID | Detail Type | Description | Units |
|---|---|---|---|
| 1 | Add On | Porches Open | 72.00 |
| 1 | Add On | Shed Frame | 120.00 |
| 1 | Basement | Finished | 1461.00 |
| 1 | Basement | Total Basement SF | 1461.00 |
| 1 | Fixture | Full Bath | 3.00 |
| 1 | Garage | Attached | 625.00 |
| 1 | Porch | Slab Roof Ceil | 270.00 |
| Account | Parcel | Account Type | Tax Year | Buildings | Actual Value | Local Govt Assessed Value | School Assessed Value |
|---|---|---|---|---|---|---|---|
| R5288886 | 130931413009 | Residential | 2026 | 1 | 448,116 | 28,010 | 31,590 |
| Type | Code | Description | Actual Value | Local Govt Assessed Value | School Assessed Value | Acres | Land SqFt |
|---|---|---|---|---|---|---|---|
| Improvement | 1212 | SINGLE FAMILY RESIDENTIAL IMPROVEMENTS | 383,604 | 23,980 | 27,040 | 0.000 | 0 |
| Land | 1112 | SINGLE FAMILY RESIDENTIAL-LAND | 64,512 | 4,030 | 4,550 | 0.185 | 8,064 |
| Totals | - | - | 448,116 | 28,010 | 31,590 | 0.185 | 8,064 |
Comparable sales for your Residential or Commercial property may be found using our SALES SEARCH TOOL
Values are updated annually on May 1st for Real Property and June 15th for Personal Property and Oil and Gas.
| Account | Parcel | Account Type | Tax Year | Buildings | Actual Value | Local Govt Assessed Value | School Assessed Value |
|---|---|---|---|---|---|---|---|
| R5288886 | 130931413009 | Residential | 2026 | 1 | 448,116 | 28,010 | 31,590 |
| Tax Area | District ID | District Name | Local Govt Mill Levy |
School Mill Levy |
Estimated Taxes |
|---|---|---|---|---|---|
| 5392 | 0700 | AIMS JUNIOR COLLEGE | 6.313 | 0.000 | $176.83 |
| 5392 | 0407 | FORT LUPTON CITY | 42.931 | 0.000 | $1,202.50 |
| 5392 | 0506 | FORT LUPTON FIRE | 9.357 | 0.000 | $262.09 |
| 5392 | 0951 | FORT LUPTON URBAN RENEWAL AUTHORITY (FLURA) | 0.000 | 0.000 | $0.00 |
| 5392 | 1050 | HIGH PLAINS LIBRARY | 3.044 | 0.000 | $85.26 |
| 5392 | 0301 | NORTHERN COLORADO WATER (NCW) | 1.000 | 0.000 | $28.01 |
| 5392 | 0208 | SCHOOL DIST RE8-FORT LUPTON AND DACONO | 0.000 | 18.198 | $574.87 |
| 5392 | 0100 | WELD COUNTY | 15.956 | 0.000 | $446.93 |
| Total | - | - | 78.601 | 18.198 | $2,776.49 |
The estimate of tax is based on the prior year mill levy and the 2025 projected assessment rates. Mill levies and tax estimates will be updated yearly on December 22nd for the current year. Additional information can be found at https://assessor.weld.gov


