Account: R5289486

April 1, 2026

Account Parcel Account Type Tax Year Buildings Actual Value Local Govt Assessed Value School Assessed Value
R5289486 130931414007 Residential 2026 2 454,990 28,440 32,080

Legal
FTL 59-16A W2 L3 BLK2 NORTHWEST

Subdivision Block Lot Land Economic Area
NORTHWEST ADD 2 3 OLD FORT LUPTON

Property Address Property City Section Township Range
930 GRAND AVE FORT LUPTON 31 02 66




Account Parcel Account Type Tax Year Buildings Actual Value Local Govt Assessed Value School Assessed Value
R5289486 130931414007 Residential 2026 2 454,990 28,440 32,080

Account Owner Name Address
R5289486 RUIZ ESTELLA 930 GRAND AVE FORT LUPTON, CO 806212609
R5289486 RUIZ RAYMOND


Account Parcel Account Type Tax Year Buildings Actual Value Local Govt Assessed Value School Assessed Value
R5289486 130931414007 Residential 2026 2 454,990 28,440 32,080

Reception Rec Date Type Grantor Grantee Doc Fee Sale Date Sale Price
01829069 07-02-1980 WDN 0.00 01-01-1900 0
02242059 02-22-1991 QCN 0.00 02-19-1991 0
1311022 NA SUB SUBDIVISION NORTH WEST ADD 0.00 NA 0
2088777 02-18-1987 WD LEBSCAK JACQUELINE M & H DAVID FORMBY STEVE G 8.00 02-13-1987 80,000
2158419 10-13-1988 WD FORMBY STEVE G FORMBY ANTHONY J 7.46 10-07-1988 74,600
2190464 09-01-1989 WD FORMBY ANTHONY J ARCHULETA JOHN S & BRENDA 8.59 08-30-1989 85,900
2454038 09-01-1995 WD FORMBY ANTHONY J RUIZ RAYMOND & ESTELLA 10.00 08-30-1995 100,000
3086698 07-23-2003 QCN RUIZ RAYMOND & ESTELLA RUIZ ESTELLA 0.00 07-11-2003 0
3139669 12-29-2003 QCN RUIZ ESTELLA RUIZ ESTELLA & 0.00 12-10-2003 0
3251887 01-11-2005 QCN RUIZ ESTELLA & RUIZ ESTELLA 0.00 12-09-2004 0
3610353 03-12-2009 QCN RUIZ ESTELLA RUIZ ESTELLA 0.00 03-12-2009 0



Account Parcel Account Type Tax Year Buildings Actual Value Local Govt Assessed Value School Assessed Value
R5289486 130931414007 Residential 2026 2 454,990 28,440 32,080

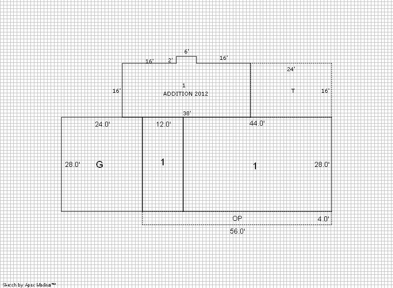
Building 1

AccountNo Building ID Occupancy
R5289486 1 Single Family Residential


ID Type NBHD Occupancy % Complete Bedrooms Baths
1 Residential 4F1005 Single Family Residential 100 3 3.00


ID Exterior Roof Cover Interior HVAC Perimeter Units Unit Type Make
1 Frame Masonry Veneer Composition Shingle Drywall Central Air to Air 0 0 NA NA


ID Square Ft Condo SF Total Basement SF Finished Basement SF Garage SF Carport SF Balcony SF Porch SF
1 2,188 0 0 0 672 0 0 224


Built As Details for Building 1
ID Built As Square Ft Year Built Stories Length Width
1.00 Ranch 1 Story 2,188 1974 1 0 0


Additional Details for Building 1
ID Detail Type Description Units
1 Add On Fireplace Wood 1.00
1 Fixture Full Bath 2.00
1 Fixture Half Bath 1.00
1 Garage Attached 672.00
1 Porch Open Slab 384.00
1 Porch Slab Roof Ceil 224.00



Building 2

AccountNo Building ID Occupancy
R5289486 2 Utility Building


ID Type NBHD Occupancy % Complete Bedrooms Baths
2 Out Building NA Utility Building 100 0 0.00


ID Exterior Roof Cover Interior HVAC Perimeter Units Unit Type Make
2 NA NA NA None 108 0 NA NA


ID Square Ft Condo SF Total Basement SF Finished Basement SF Garage SF Carport SF Balcony SF Porch SF
2 608 0 0 0 0 0 0 0


Built As Details for Building 2
ID Built As Square Ft Year Built Stories Length Width
2.00 Utility Building 608 2011 1 38 16

No Additional Details for Building 2






Account Parcel Account Type Tax Year Buildings Actual Value Local Govt Assessed Value School Assessed Value
R5289486 130931414007 Residential 2026 2 454,990 28,440 32,080

Type Code Description Actual Value Local Govt Assessed Value School Assessed Value Acres Land SqFt
Improvement 1212 SINGLE FAMILY RESIDENTIAL IMPROVEMENTS 372,590 23,290 26,270 0.000 0
Land 1112 SINGLE FAMILY RESIDENTIAL-LAND 82,400 5,150 5,810 0.237 10,300
Totals - - 454,990 28,440 32,080 0.237 10,300


Account Parcel Account Type Tax Year Buildings Actual Value Local Govt Assessed Value School Assessed Value
R5289486 130931414007 Residential 2026 2 454,990 28,440 32,080

Tax Area District ID District Name Local Govt
Mill Levy
School
Mill Levy
Estimated
Taxes
5392 0700 AIMS JUNIOR COLLEGE 6.313 0.000 $179.54
5392 0407 FORT LUPTON CITY 42.931 0.000 $1,220.96
5392 0506 FORT LUPTON FIRE 9.357 0.000 $266.11
5392 0951 FORT LUPTON URBAN RENEWAL AUTHORITY (FLURA) 0.000 0.000 $0.00
5392 1050 HIGH PLAINS LIBRARY 3.044 0.000 $86.57
5392 0301 NORTHERN COLORADO WATER (NCW) 1.000 0.000 $28.44
5392 0208 SCHOOL DIST RE8-FORT LUPTON AND DACONO 0.000 18.198 $583.79
5392 0100 WELD COUNTY 15.956 0.000 $453.79
Total - - 78.601 18.198 $2,819.20


The estimate of tax is based on the prior year mill levy and the 2025 projected assessment rates. Mill levies and tax estimates will be updated yearly on December 22nd for the current year. Additional information can be found at https://assessor.weld.gov










Select Reports to Print: