Account: R5291786
April 1, 2026
| Account | Parcel | Account Type | Tax Year | Buildings | Actual Value | Local Govt Assessed Value | School Assessed Value |
|---|---|---|---|---|---|---|---|
| R5291786 | 130932000019 | Industrial | 2026 | 1 | 8,227,830 | 2,221,510 | 2,221,510 |
| Legal |
|---|
| FTL 16264 PT S2NW4 32 2 66 LYING E OF UPRR EXC PT LYING E OF C/L OF SHORT LINE DITCH (12RR 1R 1D) |
| Subdivision | Block | Lot | Land Economic Area |
|---|---|---|---|
| FORT LUPTON CENTRAL INDUSTRIAL |
| Property Address | Property City | Section | Township | Range |
|---|---|---|---|---|
| 1011 E 14TH ST | FORT LUPTON | 32 | 02 | 66 |
| Account | Parcel | Account Type | Tax Year | Buildings | Actual Value | Local Govt Assessed Value | School Assessed Value |
|---|---|---|---|---|---|---|---|
| R5291786 | 130932000019 | Industrial | 2026 | 1 | 8,227,830 | 2,221,510 | 2,221,510 |
| Account | Owner Name | Address |
|---|---|---|
| R5291786 | 1011 FORT LLC | 8591 E 136TH AVE BRIGHTON, CO 806028585 |
| Account | Parcel | Account Type | Tax Year | Buildings | Actual Value | Local Govt Assessed Value | School Assessed Value |
|---|---|---|---|---|---|---|---|
| R5291786 | 130932000019 | Industrial | 2026 | 1 | 8,227,830 | 2,221,510 | 2,221,510 |
| Reception | Rec Date | Type | Grantor | Grantee | Doc Fee | Sale Date | Sale Price |
|---|---|---|---|---|---|---|---|
| 01705753 | 12-13-1976 | WDN | 0.00 | 01-01-1900 | 0 | ||
| 2401278 | 08-05-1994 | SPWD | R H PIERCE MANUFACTURING CO | PDKD INC | 75.00 | 08-03-1994 | 750,000 |
| 2529785 | 01-17-1997 | WD | PDKD INC | RADER PROPERTIES LLC | 120.00 | 01-09-1997 | 1,200,000 |
| 3647822 | 09-10-2009 | SWD | RADER PROPERTIES LLC | BACH COMPOSITE COLORADO INC | 260.00 | 09-02-2009 | 2,600,000 |
| 3647823 | 09-10-2009 | BSDN | RADER PROPERTIES LLC | BACH COMPOSITE COLORADO INC | 0.00 | 09-10-2009 | 0 |
| 3773740 | 06-13-2011 | SURV | SURVEY | SURVEY | 0.00 | 06-13-2011 | 0 |
| 4167098 | 12-22-2015 | SWD | BACH COMPOSITE COLORADO INC | 1011 FORT LLC | 600.00 | 12-21-2015 | 6,000,000 |
*If the hyperlink for the reception number does not work, try a manual search in the Clerk and Recorder records. Use the Grantor or Grantee in your search.
| Account | Parcel | Account Type | Tax Year | Buildings | Actual Value | Local Govt Assessed Value | School Assessed Value |
|---|---|---|---|---|---|---|---|
| R5291786 | 130932000019 | Industrial | 2026 | 1 | 8,227,830 | 2,221,510 | 2,221,510 |
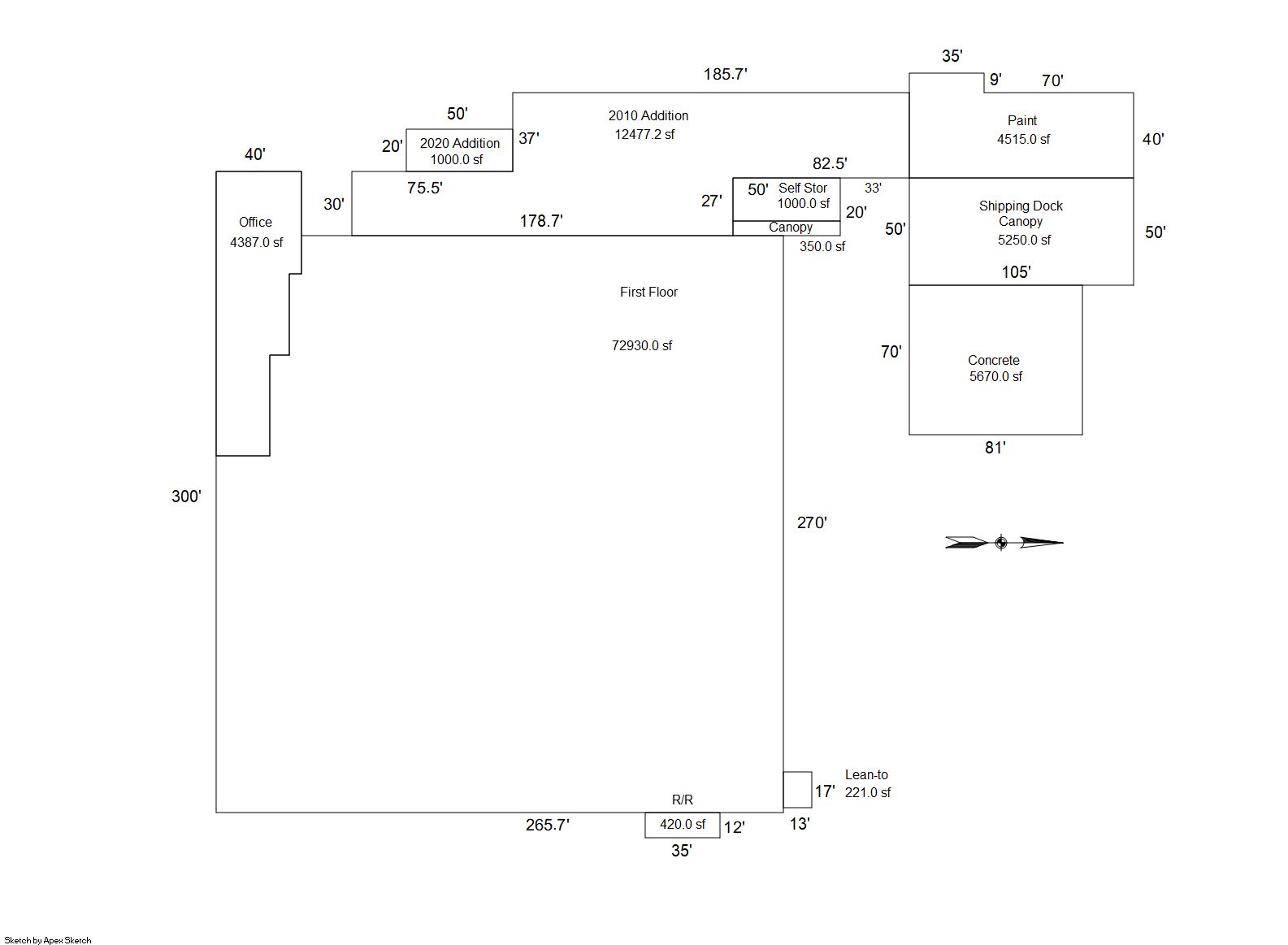
Building 1
| AccountNo | Building ID | Occupancy |
|---|---|---|
| R5291786 | 1 | Warehouse |
| ID | Type | NBHD | Occupancy | % Complete | Bedrooms | Baths |
|---|---|---|---|---|---|---|
| 1 | Commercial | 4907 | Warehouse | 100 | 0 | 0.00 |
| ID | Exterior | Roof Cover | Interior | HVAC | Perimeter | Units | Unit Type | Make |
|---|---|---|---|---|---|---|---|---|
| 1 | NA | NA | NA | Space Heater | 1078 | 0 | NA | NA |
| ID | Square Ft | Condo SF | Total Basement SF | Finished Basement SF | Garage SF | Carport SF | Balcony SF | Porch SF |
|---|---|---|---|---|---|---|---|---|
| 1 | 96,798 | 0 | 0 | 0 | 0 | 0 | 0 | 0 |
| ID | Built As | Square Ft | Year Built | Stories | Length | Width |
|---|---|---|---|---|---|---|
| 1.00 | Light Industrial Shell Buildings | 13,477 | 1973 | 1 | 0 | 0 |
| 1.00 | Light Industrial Shell Buildings | 64,352 | 1973 | 1 | 0 | 0 |
| 1.00 | Light Industrial Shell Buildings | 1,000 | 2020 | 1 | 0 | 0 |
| 1.00 | Office Building | 13,454 | 2010 | 2 | 0 | 0 |
| 1.00 | Light Commercial Utility | 4,515 | 1973 | 1 | 0 | 0 |
| ID | Detail Type | Description | Units |
|---|---|---|---|
| 1 | Add On | Asphalt Average | 23850.00 |
| 1 | Add On | Chain Link Fence 6Ft. | 2500.00 |
| 1 | Add On | Com Canopies Steel Average | 6388.00 |
| 1 | Add On | Com Shed Frame Ave | 221.00 |
| 1 | Add On | Concrete Slab Average | 4850.00 |
| 1 | Add On | Loading Wells Excavated Conc Walls & Floor | 5670.00 |
| Account | Parcel | Account Type | Tax Year | Buildings | Actual Value | Local Govt Assessed Value | School Assessed Value |
|---|---|---|---|---|---|---|---|
| R5291786 | 130932000019 | Industrial | 2026 | 1 | 8,227,830 | 2,221,510 | 2,221,510 |
| Type | Code | Description | Actual Value | Local Govt Assessed Value | School Assessed Value | Acres | Land SqFt |
|---|---|---|---|---|---|---|---|
| Improvement | 3215 | MANUFACTURED PROCESSING-IMPS | 6,936,630 | 1,872,890 | 1,872,890 | 0.000 | 0 |
| Land | 3115 | MANUFACTURED/PROCESSING-LAND | 1,291,200 | 348,620 | 348,620 | 16.140 | 703,058 |
| Totals | - | - | 8,227,830 | 2,221,510 | 2,221,510 | 16.140 | 703,058 |
Comparable sales for your Residential or Commercial property may be found using our SALES SEARCH TOOL
Values are updated annually on May 1st for Real Property and June 15th for Personal Property and Oil and Gas.
| Account | Parcel | Account Type | Tax Year | Buildings | Actual Value | Local Govt Assessed Value | School Assessed Value |
|---|---|---|---|---|---|---|---|
| R5291786 | 130932000019 | Industrial | 2026 | 1 | 8,227,830 | 2,221,510 | 2,221,510 |
| Tax Area | District ID | District Name | Local Govt Mill Levy |
School Mill Levy |
Estimated Taxes |
|---|---|---|---|---|---|
| 0882 | 0700 | AIMS JUNIOR COLLEGE | 6.313 | 0.000 | $14,024.39 |
| 0882 | 0302 | CENTRAL COLORADO WATER (CCW) | 0.980 | 0.000 | $2,177.08 |
| 0882 | 0309 | CENTRAL COLORADO WATER SUBDISTRICT (CCS) | 1.462 | 0.000 | $3,247.85 |
| 0882 | 0407 | FORT LUPTON CITY | 42.931 | 0.000 | $95,371.65 |
| 0882 | 0506 | FORT LUPTON FIRE | 9.357 | 0.000 | $20,786.67 |
| 0882 | 1050 | HIGH PLAINS LIBRARY | 3.044 | 0.000 | $6,762.28 |
| 0882 | 0301 | NORTHERN COLORADO WATER (NCW) | 1.000 | 0.000 | $2,221.51 |
| 0882 | 0208 | SCHOOL DIST RE8-FORT LUPTON AND DACONO | 0.000 | 18.198 | $40,427.04 |
| 0882 | 0100 | WELD COUNTY | 15.956 | 0.000 | $35,446.41 |
| Total | - | - | 81.043 | 18.198 | $220,464.87 |
The estimate of tax is based on the prior year mill levy and the 2025 projected assessment rates. Mill levies and tax estimates will be updated yearly on December 22nd for the current year. Additional information can be found at https://assessor.weld.gov


