Account: R5344086

April 2, 2026

Account Parcel Account Type Tax Year Buildings Actual Value Local Govt Assessed Value School Assessed Value
R5344086 130932406013 Residential 2026 1 386,757 24,170 27,270

Legal
FTL MS6-13 L13 BLK6 MOUNTVIEW SUB

Subdivision Block Lot Land Economic Area
MOUNTVIEW SUB 6 13 MOUNTVIEW

Property Address Property City Section Township Range
901 GREENWOOD CT FORT LUPTON 32 02 66




Account Parcel Account Type Tax Year Buildings Actual Value Local Govt Assessed Value School Assessed Value
R5344086 130932406013 Residential 2026 1 386,757 24,170 27,270

Account Owner Name Address
R5344086 RODRIGUEZ ALBERTO 901 GREENWOOD CT FORT LUPTON, CO 806212302
R5344086 RODRIGUEZ VICTORIA GRACE


Account Parcel Account Type Tax Year Buildings Actual Value Local Govt Assessed Value School Assessed Value
R5344086 130932406013 Residential 2026 1 386,757 24,170 27,270

Reception Rec Date Type Grantor Grantee Doc Fee Sale Date Sale Price
02008284 05-03-1985 WDN HOMECRAFT REALTY CORPORATION BRALY HENRY; BRISNEHAN ROBERT B; REITER J W 0.00 03-28-1985 0
02213680 05-14-1990 QCN BRALY HENRY; BRISNEHAN ROBERT B; REITER J W BRALY HENRY; REITER J W 0.00 05-02-1990 0
02294497 07-07-1992 QCN REITER J W BRALY HENRY 0.00 07-01-1992 0
02398168 07-18-1994 WD BRALY HENRY LIFESTYLE HOMES INC 15.90 07-15-1994 159,000
2099749 NA SUB SUBDIVISION MOUNTVIEW 0.00 NA 0
2432568 04-04-1995 WD LIFESTYLE HOMES INC GILES RUSSELL L & PATRICIA A 9.23 03-31-1995 92,300
3172855 04-22-2004 QCN GILES RUSSELL L & PATRICIA A GILES RUSSELL L 0.00 04-15-2004 0
3437763 11-28-2006 PTD GILES RUSSELL L DEUTSCHE BANK NATIONAL TRUST COMPANY 0.00 11-28-2006 0
3574218 08-25-2008 SWD DEUTSCHE BANK NATIONAL TRUST COMPANY SOUNDVIEW HOM CLARK RANDE 8.80 08-14-2008 88,000
3855493 06-28-2012 QCN CLARK RANDE CLARK RANDE 0.00 06-13-2012 0
3988137 01-06-2014 WD CLARK BEVERLY GRESS AUDREY A 15.90 01-06-2014 159,000
4137725 08-28-2015 WD GRESS AUDREY A VOGELSANG JAMES; VOGELSANG WINONA 22.00 08-26-2015 220,000
4379595 03-05-2018 QCN VOGELSANG JAMES; VOGELSANG WINONA VOGELSANG JAMES LEE; VOGELSANG WINONA 0.00 02-26-2018 0
4813960 03-29-2022 DTHC VOGELSANG JAMES LEE VOGELSANG WINONA 0.00 04-09-2018 0
4814026 03-29-2022 AFFD VOGELSANG JAMES LEE VOGELSANG WINONA 0.00 03-24-2022 0
4814028 03-29-2022 SWD VOGELSANG WINONA RODRIGUEZ ALBERTO; RODRIGUEZ VICTORIA GRACE 39.60 03-24-2022 396,000



Account Parcel Account Type Tax Year Buildings Actual Value Local Govt Assessed Value School Assessed Value
R5344086 130932406013 Residential 2026 1 386,757 24,170 27,270

Building 1

AccountNo Building ID Occupancy
R5344086 1 Single Family Residential


ID Type NBHD Occupancy % Complete Bedrooms Baths
1 Residential 4F2003 Single Family Residential 100 3 2.00


ID Exterior Roof Cover Interior HVAC Perimeter Units Unit Type Make
1 Frame Hardboard Composition Shingle Drywall Central Air to Air 130 0 NA NA


ID Square Ft Condo SF Total Basement SF Finished Basement SF Garage SF Carport SF Balcony SF Porch SF
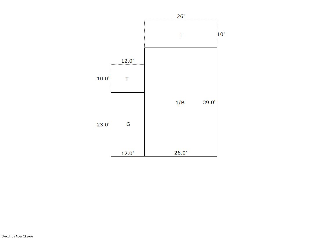
1 1,014 0 1,014 0 276 0 0 380


Built As Details for Building 1
ID Built As Square Ft Year Built Stories Length Width
1.00 Ranch 1 Story 1,014 1995 1 0 0


Additional Details for Building 1
ID Detail Type Description Units
1 Add On Shed Frame 120.00
1 Basement Total Basement SF 1014.00
1 Fixture Full Bath 1.00
1 Fixture Half Bath 1.00
1 Garage Attached 276.00
1 Porch Open Slab 380.00





Account Parcel Account Type Tax Year Buildings Actual Value Local Govt Assessed Value School Assessed Value
R5344086 130932406013 Residential 2026 1 386,757 24,170 27,270

Type Code Description Actual Value Local Govt Assessed Value School Assessed Value Acres Land SqFt
Improvement 1212 SINGLE FAMILY RESIDENTIAL IMPROVEMENTS 306,757 19,170 21,630 0.000 0
Land 1112 SINGLE FAMILY RESIDENTIAL-LAND 80,000 5,000 5,640 0.189 8,216
Totals - - 386,757 24,170 27,270 0.189 8,216


Account Parcel Account Type Tax Year Buildings Actual Value Local Govt Assessed Value School Assessed Value
R5344086 130932406013 Residential 2026 1 386,757 24,170 27,270

Tax Area District ID District Name Local Govt
Mill Levy
School
Mill Levy
Estimated
Taxes
0882 0700 AIMS JUNIOR COLLEGE 6.313 0.000 $152.59
0882 0302 CENTRAL COLORADO WATER (CCW) 0.980 0.000 $23.69
0882 0309 CENTRAL COLORADO WATER SUBDISTRICT (CCS) 1.462 0.000 $35.34
0882 0407 FORT LUPTON CITY 42.931 0.000 $1,037.64
0882 0506 FORT LUPTON FIRE 9.357 0.000 $226.16
0882 1050 HIGH PLAINS LIBRARY 3.044 0.000 $73.57
0882 0301 NORTHERN COLORADO WATER (NCW) 1.000 0.000 $24.17
0882 0208 SCHOOL DIST RE8-FORT LUPTON AND DACONO 0.000 18.198 $496.26
0882 0100 WELD COUNTY 15.956 0.000 $385.66
Total - - 81.043 18.198 $2,455.07


The estimate of tax is based on the prior year mill levy and the 2025 projected assessment rates. Mill levies and tax estimates will be updated yearly on December 22nd for the current year. Additional information can be found at https://assessor.weld.gov










Select Reports to Print: