Account: R5344286

April 2, 2026

Account Parcel Account Type Tax Year Buildings Actual Value Local Govt Assessed Value School Assessed Value
R5344286 130932406015 Residential 2026 1 405,971 25,370 28,620

Legal
FTL MS6-15 L15 BLK6 MOUNTVIEW SUB

Subdivision Block Lot Land Economic Area
MOUNTVIEW SUB 6 15 MOUNTVIEW

Property Address Property City Section Township Range
905 GREENWOOD CT FORT LUPTON 32 02 66




Account Parcel Account Type Tax Year Buildings Actual Value Local Govt Assessed Value School Assessed Value
R5344286 130932406015 Residential 2026 1 405,971 25,370 28,620

Account Owner Name Address
R5344286 CASTILLO ARTURO 905 GREENWOOD CT FORT LUPTON, CO 806212302
R5344286 CASTILLO ELSA


Account Parcel Account Type Tax Year Buildings Actual Value Local Govt Assessed Value School Assessed Value
R5344286 130932406015 Residential 2026 1 405,971 25,370 28,620

Reception Rec Date Type Grantor Grantee Doc Fee Sale Date Sale Price
02008284 05-03-1985 WDN HOMECRAFT REALTY CORPORATION BRALY HENRY; BRISNEHAN ROBERT B; REITER J W 0.00 03-28-1985 0
02213680 05-14-1990 QCN BRALY HENRY; BRISNEHAN ROBERT B; REITER J W BRALY HENRY; REITER J W 0.00 05-02-1990 0
02294497 07-07-1992 QCN REITER J W BRALY HENRY 0.00 07-01-1992 0
02398168 07-18-1994 WD BRALY HENRY LIFESTYLE HOMES INC 15.90 07-15-1994 159,000
2099749 NA SUB SUBDIVISION MOUNTVIEW 0.00 NA 0
2444524 06-29-1995 WD LIFESTYLE HOMES INC MONTELONGO ARTURO CASTILLO 9.15 06-27-1995 91,500
3119583 10-22-2003 QCN MONTELONGO ARTURO CASTILLO MONTELONGO ARTURO CASTILLO & 0.00 10-13-2003 0
3346519 12-12-2005 QCN MONTELONGO ARTURO CASTILLO & CASTILLO ARTURO & 0.00 11-28-2005 0



Account Parcel Account Type Tax Year Buildings Actual Value Local Govt Assessed Value School Assessed Value
R5344286 130932406015 Residential 2026 1 405,971 25,370 28,620

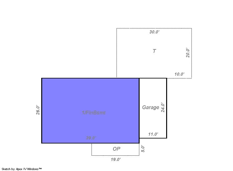
Building 1

AccountNo Building ID Occupancy
R5344286 1 Single Family Residential


ID Type NBHD Occupancy % Complete Bedrooms Baths
1 Residential 4F2003 Single Family Residential 100 5 2.00


ID Exterior Roof Cover Interior HVAC Perimeter Units Unit Type Make
1 Frame Hardboard Composition Shingle Drywall Forced Air 0 0 NA NA


ID Square Ft Condo SF Total Basement SF Finished Basement SF Garage SF Carport SF Balcony SF Porch SF
1 1,014 0 1,014 1,014 264 0 0 95


Built As Details for Building 1
ID Built As Square Ft Year Built Stories Length Width
1.00 Ranch 1 Story 1,014 1995 1 0 0


Additional Details for Building 1
ID Detail Type Description Units
1 Basement Finished 1014.00
1 Basement Total Basement SF 1014.00
1 Fixture Full Bath 2.00
1 Garage Attached 264.00
1 Porch Open Slab 600.00
1 Porch Slab Roof 95.00
1 Storage Wood 80.00





Account Parcel Account Type Tax Year Buildings Actual Value Local Govt Assessed Value School Assessed Value
R5344286 130932406015 Residential 2026 1 405,971 25,370 28,620

Type Code Description Actual Value Local Govt Assessed Value School Assessed Value Acres Land SqFt
Improvement 1212 SINGLE FAMILY RESIDENTIAL IMPROVEMENTS 325,971 20,370 22,980 0.000 0
Land 1112 SINGLE FAMILY RESIDENTIAL-LAND 80,000 5,000 5,640 0.142 6,204
Totals - - 405,971 25,370 28,620 0.142 6,204


Account Parcel Account Type Tax Year Buildings Actual Value Local Govt Assessed Value School Assessed Value
R5344286 130932406015 Residential 2026 1 405,971 25,370 28,620

Tax Area District ID District Name Local Govt
Mill Levy
School
Mill Levy
Estimated
Taxes
0882 0700 AIMS JUNIOR COLLEGE 6.313 0.000 $160.16
0882 0302 CENTRAL COLORADO WATER (CCW) 0.980 0.000 $24.86
0882 0309 CENTRAL COLORADO WATER SUBDISTRICT (CCS) 1.462 0.000 $37.09
0882 0407 FORT LUPTON CITY 42.931 0.000 $1,089.16
0882 0506 FORT LUPTON FIRE 9.357 0.000 $237.39
0882 1050 HIGH PLAINS LIBRARY 3.044 0.000 $77.23
0882 0301 NORTHERN COLORADO WATER (NCW) 1.000 0.000 $25.37
0882 0208 SCHOOL DIST RE8-FORT LUPTON AND DACONO 0.000 18.198 $520.83
0882 0100 WELD COUNTY 15.956 0.000 $404.80
Total - - 81.043 18.198 $2,576.89


The estimate of tax is based on the prior year mill levy and the 2025 projected assessment rates. Mill levies and tax estimates will be updated yearly on December 22nd for the current year. Additional information can be found at https://assessor.weld.gov










Select Reports to Print: