Account: R5379186

April 5, 2026

Account Parcel Account Type Tax Year Buildings Actual Value Local Govt Assessed Value School Assessed Value
R5379186 131108303003 Residential 2026 2 564,437 35,280 39,790

Legal
EH-26 L26 ENCHANTED HILLS

Subdivision Block Lot Land Economic Area
ENCHANTED HILLS 26 RANCHETTE SUBDIVISIONS

Property Address Property City Section Township Range
7106 MAPLE ST WELD 08 02 67




Account Parcel Account Type Tax Year Buildings Actual Value Local Govt Assessed Value School Assessed Value
R5379186 131108303003 Residential 2026 2 564,437 35,280 39,790

Account Owner Name Address
R5379186 CROWFOOT SHIRLEY E 7106 MAPLE ST LONGMONT, CO 805045401
R5379186 CROWFOOT KAREN M


Account Parcel Account Type Tax Year Buildings Actual Value Local Govt Assessed Value School Assessed Value
R5379186 131108303003 Residential 2026 2 564,437 35,280 39,790

Reception Rec Date Type Grantor Grantee Doc Fee Sale Date Sale Price
08-08-1990 USR USE BY SPECIAL REVIEW USR-912 WELDING & REPAIR FAC. 0.00 NA 0
01656328 03-19-1975 WDN 0.00 01-01-1900 0
02219050 07-05-1990 QCN 0.00 01-01-1900 0
1519825 NA SUB SUBDIVISION ENCHANTED HILLS 0.00 NA 0
2269693 11-19-1991 WD PIERRO MICHAEL A ALTHOUSE CONNIE RUTH 8.45 11-15-1991 84,500
2821347 01-25-2001 WD ALTHOUSE CONNIE RUTH CHRISMAN STEPHEN C & LINDA M 22.50 01-04-2001 225,000
3155146 02-18-2004 QCN CHRISMAN STEPHEN C & LINDA M CHRISMAN LINDA M 0.00 02-03-2004 0
3224334 10-04-2004 QCN CHRISMAN LINDA M HOOSON LINDA M 0.00 09-15-2004 0
3231820 10-29-2004 BSDN HOOSON LINDA M 7106 MAPLE ST LLC 0.00 10-14-2004 0
3450609 01-24-2007 BOSN 7106 MAPLE ST LLC HOOSON LINDA M 0.00 01-23-2007 0
3488599 07-06-2007 WD HOOSON LINDA M CROWFOOT SHIRLEY E & 30.30 07-05-2007 303,000



Account Parcel Account Type Tax Year Buildings Actual Value Local Govt Assessed Value School Assessed Value
R5379186 131108303003 Residential 2026 2 564,437 35,280 39,790

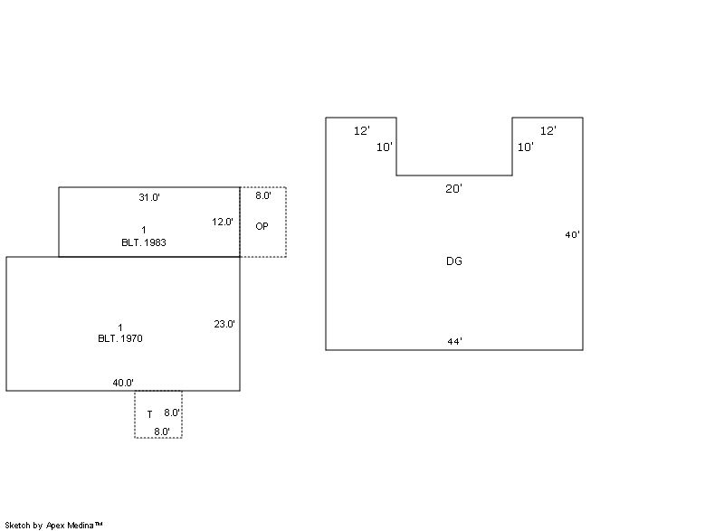
Building 1

AccountNo Building ID Occupancy
R5379186 1 Single Family Residential


ID Type NBHD Occupancy % Complete Bedrooms Baths
1 Residential 3F1035 Single Family Residential 100 3 2.00


ID Exterior Roof Cover Interior HVAC Perimeter Units Unit Type Make
1 Frame Hardboard Composition Shingle Drywall Forced Air 0 0 NA NA


ID Square Ft Condo SF Total Basement SF Finished Basement SF Garage SF Carport SF Balcony SF Porch SF
1 1,292 0 0 0 1,560 0 0 64


Built As Details for Building 1
ID Built As Square Ft Year Built Stories Length Width
1.00 Modular 1 Story 1,292 1970 1 0 0


Additional Details for Building 1
ID Detail Type Description Units
1 Fixture Full Bath 1.00
1 Fixture Half Bath 1.00
1 Garage Detached 1560.00
1 Porch Open Slab 64.00
1 Porch Slab Roof Ceil 96.00



Building 8

AccountNo Building ID Occupancy
R5379186 8 Shed - Utility


ID Type NBHD Occupancy % Complete Bedrooms Baths
8 Out Building NA Shed - Utility 100 0 0.00


ID Exterior Roof Cover Interior HVAC Perimeter Units Unit Type Make
8 NA NA NA None 168 0 NA NA


ID Square Ft Condo SF Total Basement SF Finished Basement SF Garage SF Carport SF Balcony SF Porch SF
8 420 0 0 0 0 0 0 0


Built As Details for Building 8
ID Built As Square Ft Year Built Stories Length Width
8.00 Shed - Utility 420 2003 1 21 20

No Additional Details for Building 8






Account Parcel Account Type Tax Year Buildings Actual Value Local Govt Assessed Value School Assessed Value
R5379186 131108303003 Residential 2026 2 564,437 35,280 39,790

Type Code Description Actual Value Local Govt Assessed Value School Assessed Value Acres Land SqFt
Improvement 1212 SINGLE FAMILY RESIDENTIAL IMPROVEMENTS 290,651 18,170 20,490 0.000 0
Land 1112 SINGLE FAMILY RESIDENTIAL-LAND 273,786 17,110 19,300 2.240 97,574
Totals - - 564,437 35,280 39,790 2.240 97,574


Account Parcel Account Type Tax Year Buildings Actual Value Local Govt Assessed Value School Assessed Value
R5379186 131108303003 Residential 2026 2 564,437 35,280 39,790

Tax Area District ID District Name Local Govt
Mill Levy
School
Mill Levy
Estimated
Taxes
2269 0700 AIMS JUNIOR COLLEGE 6.313 0.000 $222.72
2269 0900 CARBON VALLEY REC 4.427 0.000 $156.18
2269 0305 CENTRAL WELD COUNTY WATER (CWC) 0.000 0.000 $0.00
2269 1050 HIGH PLAINS LIBRARY 3.044 0.000 $107.39
2269 1202 LONGMONT CONSERVATION 0.000 0.000 $0.00
2269 0512 MOUNTAIN VIEW FIRE PROTECTION DISTRICT 16.342 0.000 $576.55
2269 0301 NORTHERN COLORADO WATER (NCW) 1.000 0.000 $35.28
2269 0201 SCHOOL DIST RE1-GILCREST 0.000 15.382 $612.05
2269 0100 WELD COUNTY 15.956 0.000 $562.93
Total - - 47.082 15.382 $2,273.10


The estimate of tax is based on the prior year mill levy and the 2025 projected assessment rates. Mill levies and tax estimates will be updated yearly on December 22nd for the current year. Additional information can be found at https://assessor.weld.gov










Select Reports to Print: