Account: R5399786

April 2, 2026

Account Parcel Account Type Tax Year Buildings Actual Value Local Govt Assessed Value School Assessed Value
R5399786 131117001016 Residential 2026 3 662,531 41,410 46,700

Legal
CA2-16 L16 BLK2 CASAGRANDE ESTATES

Subdivision Block Lot Land Economic Area
CASAGRANDE ESTATES 2 16 RANCHETTE SUBDIVISIONS

Property Address Property City Section Township Range
9711 SIERRA VISTA RD WELD 17 02 67




Account Parcel Account Type Tax Year Buildings Actual Value Local Govt Assessed Value School Assessed Value
R5399786 131117001016 Residential 2026 3 662,531 41,410 46,700

Account Owner Name Address
R5399786 KINCH ERIC 9711 SIERRA VISTA RD LONGMONT, CO 805049429
R5399786 KINCH LORI


Account Parcel Account Type Tax Year Buildings Actual Value Local Govt Assessed Value School Assessed Value
R5399786 131117001016 Residential 2026 3 662,531 41,410 46,700

Reception Rec Date Type Grantor Grantee Doc Fee Sale Date Sale Price
01883142 02-16-1982 WDN 0.00 01-01-1900 0
1588467 NA SUB SUBDIVISION CASAGRANDE ESTATES 0.00 NA 0
2765736 05-03-2000 DTHC HAMM ROBERT H & SUSANNE G HAMM SUSANNE G 0.00 08-10-1999 0
2765737 05-03-2000 WD HAMM SUSANNE G VON RAEDER ERIC S & PEGGY C 24.47 04-28-2000 244,700
2882297 09-10-2001 WD VON RAEDER ERIC S & PEGGY C NATAL MICHELLE A & FABIO 27.55 08-31-2001 275,500
3880012 10-11-2012 WD NATAL FABIO KINCH ERIC 22.00 09-24-2012 220,000



Account Parcel Account Type Tax Year Buildings Actual Value Local Govt Assessed Value School Assessed Value
R5399786 131117001016 Residential 2026 3 662,531 41,410 46,700

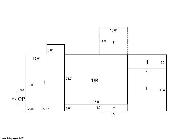
Building 1

AccountNo Building ID Occupancy
R5399786 1 Single Family Residential


ID Type NBHD Occupancy % Complete Bedrooms Baths
1 Residential 3F1035 Single Family Residential 100 4 3.00


ID Exterior Roof Cover Interior HVAC Perimeter Units Unit Type Make
1 Frame Hardboard Composition Shingle Drywall Central Air to Air 0 0 NA NA


ID Square Ft Condo SF Total Basement SF Finished Basement SF Garage SF Carport SF Balcony SF Porch SF
1 2,476 0 1,008 0 0 0 0 40


Built As Details for Building 1
ID Built As Square Ft Year Built Stories Length Width
1.00 Ranch 1 Story 2,476 1973 1 0 0


Additional Details for Building 1
ID Detail Type Description Units
1 Add On Fireplace Wood 1.00
1 Basement Total Basement SF 1008.00
1 Fixture Full Bath 3.00
1 Porch Open Slab 316.00
1 Porch Slab Roof Ceil 40.00
1 Rough In Rough In 1.00



Building 2

AccountNo Building ID Occupancy
R5399786 2 Shed - Utility


ID Type NBHD Occupancy % Complete Bedrooms Baths
2 Out Building NA Shed - Utility 100 0 0.00


ID Exterior Roof Cover Interior HVAC Perimeter Units Unit Type Make
2 NA NA NA None 87 0 NA NA


ID Square Ft Condo SF Total Basement SF Finished Basement SF Garage SF Carport SF Balcony SF Porch SF
2 490 0 0 0 0 0 0 0


Built As Details for Building 2
ID Built As Square Ft Year Built Stories Length Width
2.00 Shed - Utility 490 1980 1 35 14

No Additional Details for Building 2




Building 3

AccountNo Building ID Occupancy
R5399786 3 Equipment Building


ID Type NBHD Occupancy % Complete Bedrooms Baths
3 Out Building NA Equipment Building 100 0 0.00


ID Exterior Roof Cover Interior HVAC Perimeter Units Unit Type Make
3 NA NA NA None 160 0 NA NA


ID Square Ft Condo SF Total Basement SF Finished Basement SF Garage SF Carport SF Balcony SF Porch SF
3 1,600 0 0 0 0 0 0 0


Built As Details for Building 3
ID Built As Square Ft Year Built Stories Length Width
3.00 Equipment Building 1,600 2013 1 40 40

No Additional Details for Building 3






Account Parcel Account Type Tax Year Buildings Actual Value Local Govt Assessed Value School Assessed Value
R5399786 131117001016 Residential 2026 3 662,531 41,410 46,700

Type Code Description Actual Value Local Govt Assessed Value School Assessed Value Acres Land SqFt
Improvement 1212 SINGLE FAMILY RESIDENTIAL IMPROVEMENTS 466,440 29,150 32,880 0.000 0
Land 1112 SINGLE FAMILY RESIDENTIAL-LAND 196,091 12,260 13,820 0.950 41,382
Totals - - 662,531 41,410 46,700 0.950 41,382


Account Parcel Account Type Tax Year Buildings Actual Value Local Govt Assessed Value School Assessed Value
R5399786 131117001016 Residential 2026 3 662,531 41,410 46,700

Tax Area District ID District Name Local Govt
Mill Levy
School
Mill Levy
Estimated
Taxes
2298 0900 CARBON VALLEY REC 4.427 0.000 $183.32
2298 0305 CENTRAL WELD COUNTY WATER (CWC) 0.000 0.000 $0.00
2298 0507 FREDERICK-FIRESTONE FIRE 15.559 0.000 $644.30
2298 1050 HIGH PLAINS LIBRARY 3.044 0.000 $126.05
2298 1202 LONGMONT CONSERVATION 0.000 0.000 $0.00
2298 0301 NORTHERN COLORADO WATER (NCW) 1.000 0.000 $41.41
2298 0213 SCHOOL DIST RE1J-LONGMONT 0.000 57.717 $2,695.38
2298 0100 WELD COUNTY 15.956 0.000 $660.74
Total - - 39.986 57.717 $4,351.20


The estimate of tax is based on the prior year mill levy and the 2025 projected assessment rates. Mill levies and tax estimates will be updated yearly on December 22nd for the current year. Additional information can be found at https://assessor.weld.gov










Select Reports to Print: