Account: R5401886
April 1, 2026
| Account | Parcel | Account Type | Tax Year | Buildings | Actual Value | Local Govt Assessed Value | School Assessed Value |
|---|---|---|---|---|---|---|---|
| R5401886 | 131117003003 | Residential | 2026 | 2 | 450,000 | 28,130 | 31,720 |
| Legal |
|---|
| CA3-3 L3 BLK3 CASAGRANDE ESTATES |
| Subdivision | Block | Lot | Land Economic Area |
|---|---|---|---|
| CASAGRANDE ESTATES | 3 | 3 | RANCHETTE SUBDIVISIONS |
| Property Address | Property City | Section | Township | Range |
|---|---|---|---|---|
| 9652 SIERRA VISTA RD | WELD | 17 | 02 | 67 |
| Account | Parcel | Account Type | Tax Year | Buildings | Actual Value | Local Govt Assessed Value | School Assessed Value |
|---|---|---|---|---|---|---|---|
| R5401886 | 131117003003 | Residential | 2026 | 2 | 450,000 | 28,130 | 31,720 |
| Account | Owner Name | Address |
|---|---|---|
| R5401886 | HUGHES STEVEN K | 9652 SIERRA VISTA RD LONGMONT, CO 805045408 |
| R5401886 | HUGHES LOUISE H |
| Account | Parcel | Account Type | Tax Year | Buildings | Actual Value | Local Govt Assessed Value | School Assessed Value |
|---|---|---|---|---|---|---|---|
| R5401886 | 131117003003 | Residential | 2026 | 2 | 450,000 | 28,130 | 31,720 |
| Reception | Rec Date | Type | Grantor | Grantee | Doc Fee | Sale Date | Sale Price |
|---|---|---|---|---|---|---|---|
| 07-16-1986 | USR | USE BY SPECIAL REVIEW | USR-743 SMALL ENGINE REPAIR, HOME BUS. | 0.00 | NA | 0 | |
| 01723375 | 06-30-1977 | WDN | 0.00 | 01-01-1900 | 0 | ||
| 1588467 | NA | SUB | SUBDIVISION | CASAGRANDE ESTATES | 0.00 | NA | 0 |
| 2705710 | 07-12-1999 | WD | HANSON ORIN S | HUGHES STEVEN K & LOUISE H | 21.27 | 07-08-1999 | 212,700 |
*If the hyperlink for the reception number does not work, try a manual search in the Clerk and Recorder records. Use the Grantor or Grantee in your search.
| Account | Parcel | Account Type | Tax Year | Buildings | Actual Value | Local Govt Assessed Value | School Assessed Value |
|---|---|---|---|---|---|---|---|
| R5401886 | 131117003003 | Residential | 2026 | 2 | 450,000 | 28,130 | 31,720 |
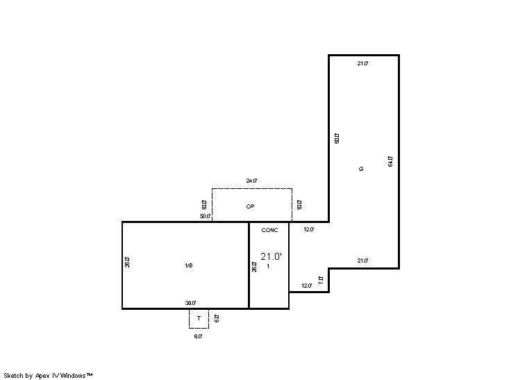
Building 1
| AccountNo | Building ID | Occupancy |
|---|---|---|
| R5401886 | 1 | Single Family Residential |
| ID | Type | NBHD | Occupancy | % Complete | Bedrooms | Baths |
|---|---|---|---|---|---|---|
| 1 | Residential | 3F1035 | Single Family Residential | 100 | 4 | 2.00 |
| ID | Exterior | Roof Cover | Interior | HVAC | Perimeter | Units | Unit Type | Make |
|---|---|---|---|---|---|---|---|---|
| 1 | Frame Hardboard | Wood Shake | Drywall | Forced Air | 0 | 0 | NA | NA |
| ID | Square Ft | Condo SF | Total Basement SF | Finished Basement SF | Garage SF | Carport SF | Balcony SF | Porch SF |
|---|---|---|---|---|---|---|---|---|
| 1 | 1,300 | 0 | 988 | 988 | 1,596 | 0 | 0 | 240 |
| ID | Built As | Square Ft | Year Built | Stories | Length | Width |
|---|---|---|---|---|---|---|
| 1.00 | Ranch 1 Story | 1,300 | 1974 | 1 | 0 | 0 |
| ID | Detail Type | Description | Units |
|---|---|---|---|
| 1 | Add On | Fireplace Wood | 1.00 |
| 1 | Basement | Finished | 988.00 |
| 1 | Basement | Total Basement SF | 988.00 |
| 1 | Fixture | Full Bath | 2.00 |
| 1 | Garage | Attached | 1596.00 |
| 1 | Porch | Open Slab | 36.00 |
| 1 | Porch | Slab Roof Ceil | 240.00 |
Building 2
| AccountNo | Building ID | Occupancy |
|---|---|---|
| R5401886 | 2 | Shed - Utility |
| ID | Type | NBHD | Occupancy | % Complete | Bedrooms | Baths |
|---|---|---|---|---|---|---|
| 2 | Out Building | NA | Shed - Utility | 100 | 0 | 0.00 |
| ID | Exterior | Roof Cover | Interior | HVAC | Perimeter | Units | Unit Type | Make |
|---|---|---|---|---|---|---|---|---|
| 2 | NA | NA | NA | None | 76 | 0 | NA | NA |
| ID | Square Ft | Condo SF | Total Basement SF | Finished Basement SF | Garage SF | Carport SF | Balcony SF | Porch SF |
|---|---|---|---|---|---|---|---|---|
| 2 | 325 | 0 | 0 | 0 | 0 | 0 | 0 | 0 |
| ID | Built As | Square Ft | Year Built | Stories | Length | Width |
|---|---|---|---|---|---|---|
| 2.00 | Shed - Utility | 325 | 1977 | 1 | 0 | 0 |
No Additional Details for Building 2
| Account | Parcel | Account Type | Tax Year | Buildings | Actual Value | Local Govt Assessed Value | School Assessed Value |
|---|---|---|---|---|---|---|---|
| R5401886 | 131117003003 | Residential | 2026 | 2 | 450,000 | 28,130 | 31,720 |
| Type | Code | Description | Actual Value | Local Govt Assessed Value | School Assessed Value | Acres | Land SqFt |
|---|---|---|---|---|---|---|---|
| Improvement | 1212 | SINGLE FAMILY RESIDENTIAL IMPROVEMENTS | 253,909 | 15,870 | 17,900 | 0.000 | 0 |
| Land | 1112 | SINGLE FAMILY RESIDENTIAL-LAND | 196,091 | 12,260 | 13,820 | 0.950 | 41,382 |
| Totals | - | - | 450,000 | 28,130 | 31,720 | 0.950 | 41,382 |
Comparable sales for your Residential or Commercial property may be found using our SALES SEARCH TOOL
Values are updated annually on May 1st for Real Property and June 15th for Personal Property and Oil and Gas.
| Account | Parcel | Account Type | Tax Year | Buildings | Actual Value | Local Govt Assessed Value | School Assessed Value |
|---|---|---|---|---|---|---|---|
| R5401886 | 131117003003 | Residential | 2026 | 2 | 450,000 | 28,130 | 31,720 |
| Tax Area | District ID | District Name | Local Govt Mill Levy |
School Mill Levy |
Estimated Taxes |
|---|---|---|---|---|---|
| 2298 | 0900 | CARBON VALLEY REC | 4.427 | 0.000 | $124.53 |
| 2298 | 0305 | CENTRAL WELD COUNTY WATER (CWC) | 0.000 | 0.000 | $0.00 |
| 2298 | 0507 | FREDERICK-FIRESTONE FIRE | 15.559 | 0.000 | $437.67 |
| 2298 | 1050 | HIGH PLAINS LIBRARY | 3.044 | 0.000 | $85.63 |
| 2298 | 1202 | LONGMONT CONSERVATION | 0.000 | 0.000 | $0.00 |
| 2298 | 0301 | NORTHERN COLORADO WATER (NCW) | 1.000 | 0.000 | $28.13 |
| 2298 | 0213 | SCHOOL DIST RE1J-LONGMONT | 0.000 | 57.717 | $1,830.78 |
| 2298 | 0100 | WELD COUNTY | 15.956 | 0.000 | $448.84 |
| Total | - | - | 39.986 | 57.717 | $2,955.59 |
The estimate of tax is based on the prior year mill levy and the 2025 projected assessment rates. Mill levies and tax estimates will be updated yearly on December 22nd for the current year. Additional information can be found at https://assessor.weld.gov



