Account: R5403786
April 1, 2026
| Account | Parcel | Account Type | Tax Year | Buildings | Actual Value | Local Govt Assessed Value | School Assessed Value |
|---|---|---|---|---|---|---|---|
| R5403786 | 131117005015 | Residential | 2026 | 2 | 796,015 | 49,750 | 56,120 |
| Legal |
|---|
| 1CA-3 L3 CASAGRANDE ESTATES 1ST ADDITION 9206 DEL CAMINO LN WELD 00000 |
| Subdivision | Block | Lot | Land Economic Area |
|---|---|---|---|
| CASAGRANDE ESTATES 1ST ADD | 3 | RANCHETTE SUBDIVISIONS |
| Property Address | Property City | Section | Township | Range |
|---|---|---|---|---|
| 9206 DEL CAMINO LN | WELD | 17 | 02 | 67 |
| Account | Parcel | Account Type | Tax Year | Buildings | Actual Value | Local Govt Assessed Value | School Assessed Value |
|---|---|---|---|---|---|---|---|
| R5403786 | 131117005015 | Residential | 2026 | 2 | 796,015 | 49,750 | 56,120 |
| Account | Owner Name | Address |
|---|---|---|
| R5403786 | 5M STAR DESTINATION LLC | 9908 BUFFALO ST FIRESTONE, CO 805045933 |
| Account | Parcel | Account Type | Tax Year | Buildings | Actual Value | Local Govt Assessed Value | School Assessed Value |
|---|---|---|---|---|---|---|---|
| R5403786 | 131117005015 | Residential | 2026 | 2 | 796,015 | 49,750 | 56,120 |
| Reception | Rec Date | Type | Grantor | Grantee | Doc Fee | Sale Date | Sale Price |
|---|---|---|---|---|---|---|---|
| 01772288 | 11-08-1978 | WDN | 0.00 | 01-01-1900 | 0 | ||
| 1601380 | NA | SUB | SUBDIVISION | CASAGRANDE ESTATES 1ST ADD | 0.00 | NA | 0 |
| 3990504 | 01-16-2014 | DTHC | LOVE EMMA O | LOVE EMMA O | 0.00 | 09-27-2013 | 0 |
| 4187021 | 03-10-2016 | AFFD | LOVE EMMA O | LOVE EMMA O | 0.00 | 03-08-2016 | 0 |
| 4187022 | 03-10-2016 | WD | LOVE RICHARD C | FAULKNER ROBERT | 47.00 | 03-08-2016 | 470,000 |
| 4697359 | 03-26-2021 | WD | FAULKNER ROBERT | SAYE TUCKER ALLEN; SAYE CALLY KIRSTEN | 71.93 | 03-22-2021 | 719,300 |
| 4981926 | 09-11-2024 | SWD | SAYE TUCKER ALLEN; SAYE CALLY KIRSTEN | 5M STAR DESTINATION LLC | 82.50 | 09-05-2024 | 825,000 |
*If the hyperlink for the reception number does not work, try a manual search in the Clerk and Recorder records. Use the Grantor or Grantee in your search.
| Account | Parcel | Account Type | Tax Year | Buildings | Actual Value | Local Govt Assessed Value | School Assessed Value |
|---|---|---|---|---|---|---|---|
| R5403786 | 131117005015 | Residential | 2026 | 2 | 796,015 | 49,750 | 56,120 |
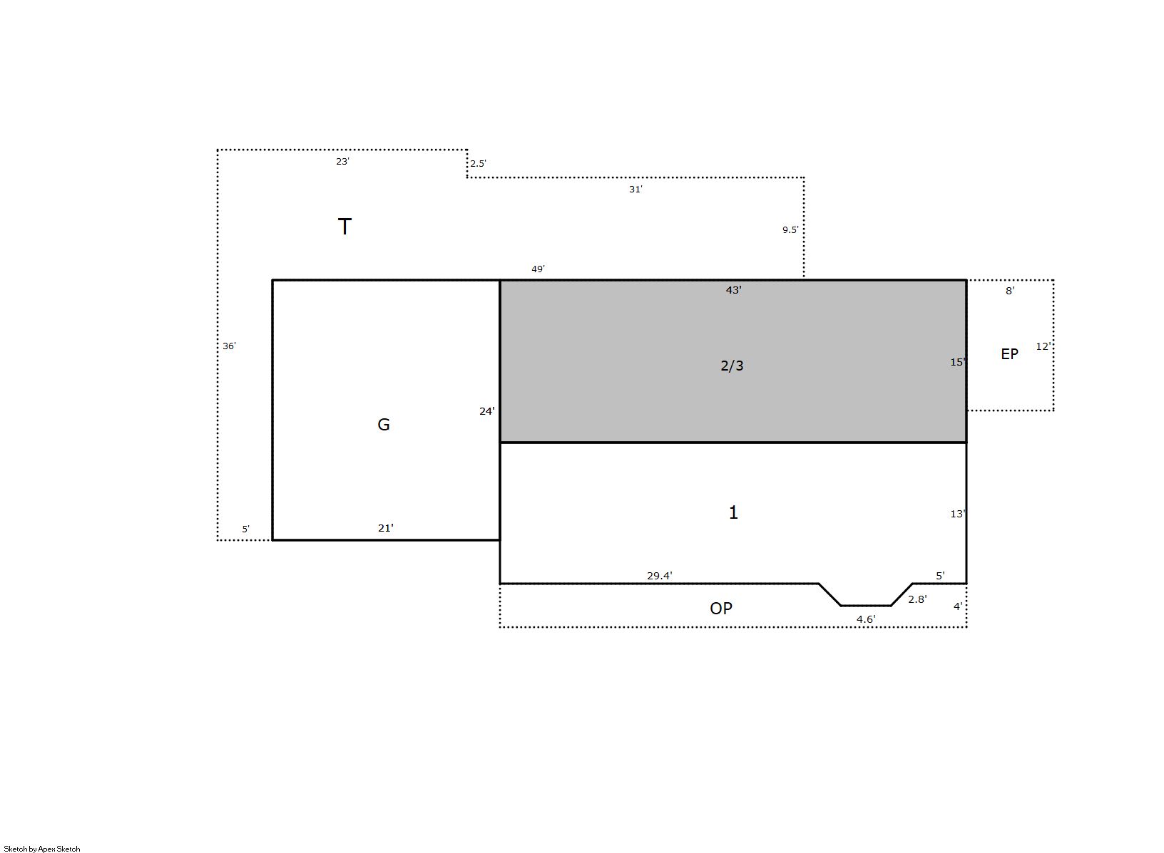
Building 1
| AccountNo | Building ID | Occupancy |
|---|---|---|
| R5403786 | 1 | Single Family Residential |
| ID | Type | NBHD | Occupancy | % Complete | Bedrooms | Baths |
|---|---|---|---|---|---|---|
| 1 | Residential | 3F1035 | Single Family Residential | 100 | 4 | 2.00 |
| ID | Exterior | Roof Cover | Interior | HVAC | Perimeter | Units | Unit Type | Make |
|---|---|---|---|---|---|---|---|---|
| 1 | Frame Hardboard | Composition Shingle | Drywall | Central Air to Air | 346 | 0 | NA | NA |
| ID | Square Ft | Condo SF | Total Basement SF | Finished Basement SF | Garage SF | Carport SF | Balcony SF | Porch SF |
|---|---|---|---|---|---|---|---|---|
| 1 | 1,862 | 0 | 0 | 0 | 504 | 0 | 0 | 691 |
| ID | Built As | Square Ft | Year Built | Stories | Length | Width |
|---|---|---|---|---|---|---|
| 1.00 | Split Level | 1,862 | 1975 | 1 | 0 | 0 |
| ID | Detail Type | Description | Units |
|---|---|---|---|
| 1 | Add On | Fireplace Wood | 1.00 |
| 1 | Add On | Flue Only | 1.00 |
| 1 | Fixture | Full Bath | 2.00 |
| 1 | Garage | Attached | 504.00 |
| 1 | Porch | Encl Solid Wall | 96.00 |
| 1 | Porch | Open Slab | 691.00 |
| 1 | Porch | Slab Roof Ceil | 159.00 |
Building 2
| AccountNo | Building ID | Occupancy |
|---|---|---|
| R5403786 | 2 | Barn |
| ID | Type | NBHD | Occupancy | % Complete | Bedrooms | Baths |
|---|---|---|---|---|---|---|
| 2 | Out Building | NA | Barn | 100 | 0 | 0.00 |
| ID | Exterior | Roof Cover | Interior | HVAC | Perimeter | Units | Unit Type | Make |
|---|---|---|---|---|---|---|---|---|
| 2 | Wood Frame Siding | NA | NA | None | 160 | 0 | NA | NA |
| ID | Square Ft | Condo SF | Total Basement SF | Finished Basement SF | Garage SF | Carport SF | Balcony SF | Porch SF |
|---|---|---|---|---|---|---|---|---|
| 2 | 1,536 | 0 | 0 | 0 | 0 | 0 | 0 | 0 |
| ID | Built As | Square Ft | Year Built | Stories | Length | Width |
|---|---|---|---|---|---|---|
| 2.00 | Barn | 1,536 | 1979 | 1 | 0 | 0 |
No Additional Details for Building 2
| Account | Parcel | Account Type | Tax Year | Buildings | Actual Value | Local Govt Assessed Value | School Assessed Value |
|---|---|---|---|---|---|---|---|
| R5403786 | 131117005015 | Residential | 2026 | 2 | 796,015 | 49,750 | 56,120 |
| Type | Code | Description | Actual Value | Local Govt Assessed Value | School Assessed Value | Acres | Land SqFt |
|---|---|---|---|---|---|---|---|
| Improvement | 1212 | SINGLE FAMILY RESIDENTIAL IMPROVEMENTS | 407,090 | 25,440 | 28,700 | 0.000 | 0 |
| Land | 1112 | SINGLE FAMILY RESIDENTIAL-LAND | 388,925 | 24,310 | 27,420 | 5.090 | 221,720 |
| Totals | - | - | 796,015 | 49,750 | 56,120 | 5.090 | 221,720 |
Comparable sales for your Residential or Commercial property may be found using our SALES SEARCH TOOL
Values are updated annually on May 1st for Real Property and June 15th for Personal Property and Oil and Gas.
| Account | Parcel | Account Type | Tax Year | Buildings | Actual Value | Local Govt Assessed Value | School Assessed Value |
|---|---|---|---|---|---|---|---|
| R5403786 | 131117005015 | Residential | 2026 | 2 | 796,015 | 49,750 | 56,120 |
| Tax Area | District ID | District Name | Local Govt Mill Levy |
School Mill Levy |
Estimated Taxes |
|---|---|---|---|---|---|
| 2298 | 0900 | CARBON VALLEY REC | 4.427 | 0.000 | $220.24 |
| 2298 | 0305 | CENTRAL WELD COUNTY WATER (CWC) | 0.000 | 0.000 | $0.00 |
| 2298 | 0507 | FREDERICK-FIRESTONE FIRE | 15.559 | 0.000 | $774.06 |
| 2298 | 1050 | HIGH PLAINS LIBRARY | 3.044 | 0.000 | $151.44 |
| 2298 | 1202 | LONGMONT CONSERVATION | 0.000 | 0.000 | $0.00 |
| 2298 | 0301 | NORTHERN COLORADO WATER (NCW) | 1.000 | 0.000 | $49.75 |
| 2298 | 0213 | SCHOOL DIST RE1J-LONGMONT | 0.000 | 57.717 | $3,239.08 |
| 2298 | 0100 | WELD COUNTY | 15.956 | 0.000 | $793.81 |
| Total | - | - | 39.986 | 57.717 | $5,228.38 |
The estimate of tax is based on the prior year mill levy and the 2025 projected assessment rates. Mill levies and tax estimates will be updated yearly on December 22nd for the current year. Additional information can be found at https://assessor.weld.gov


