Account: R5410986

April 1, 2026

Account Parcel Account Type Tax Year Buildings Actual Value Local Govt Assessed Value School Assessed Value
R5410986 131119301002 Residential 2026 1 611,003 38,190 43,070

Legal
FIR WV1-2 L2 BLK1 THE ZADEL RANCH-WESTWIND VILLAGE

Subdivision Block Lot Land Economic Area
ZADEL RANCH WESTWIND VILLAGE SUB 1 2 ZADEL RANCH WESTWOOD DEV

Property Address Property City Section Township Range
321 GRANT AVE FIRESTONE 19 02 67




Account Parcel Account Type Tax Year Buildings Actual Value Local Govt Assessed Value School Assessed Value
R5410986 131119301002 Residential 2026 1 611,003 38,190 43,070

Account Owner Name Address
R5410986 VITEMB GARY W PO BOX 351 FIRESTONE, CO 805200351
R5410986 VITEMB JENNIFER L


Account Parcel Account Type Tax Year Buildings Actual Value Local Govt Assessed Value School Assessed Value
R5410986 131119301002 Residential 2026 1 611,003 38,190 43,070

Reception Rec Date Type Grantor Grantee Doc Fee Sale Date Sale Price
02007245 04-26-1985 PTD 0.00 01-01-1900 0
02146518 06-30-1988 QCN 0.00 06-27-1988 0
02183149 06-20-1989 QCN 0.00 06-13-1989 0
02242399 02-27-1991 WD MORAN GREGG A & EASTPARK III 8.48 02-22-1991 84,800
1756842 NA SUB SUBDIVISION ZADEL RANCH WESTWIND VILLAGE 0.00 NA 0
2443459 06-21-1995 WD EASTPARK III WAGNER GREGORY W 0.70 06-15-1995 7,000
2448210 07-25-1995 WD WAGNER GREGORY W YOUNG HARVEY C 0.70 06-28-1995 7,000
2750763 02-22-2000 WD YOUNG HARVEY C HUTYRA RICHARD & ERIKA 4.80 02-18-2000 48,000
2797947 10-04-2000 QCN HUTYRA RICHARD & ERIKA HUTYRA ROBERT & JANA M 0.00 04-24-2000 0
3552004 05-06-2008 WD HUTYRA ROBERT & OLSON ROBERT L & 21.75 04-10-2008 217,500
3942300 06-24-2013 WDE OLSON ROBERT L VITEMB GARY W 29.30 06-20-2013 293,000



Account Parcel Account Type Tax Year Buildings Actual Value Local Govt Assessed Value School Assessed Value
R5410986 131119301002 Residential 2026 1 611,003 38,190 43,070

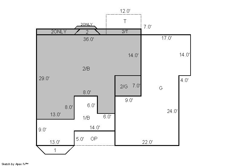
Building 1

AccountNo Building ID Occupancy
R5410986 1 Single Family Residential


ID Type NBHD Occupancy % Complete Bedrooms Baths
1 Residential 3R2031 Single Family Residential 100 4 4.00


ID Exterior Roof Cover Interior HVAC Perimeter Units Unit Type Make
1 Frame Stucco Composition Shingle Drywall Hot Water Baseboard 0 0 NA NA


ID Square Ft Condo SF Total Basement SF Finished Basement SF Garage SF Carport SF Balcony SF Porch SF
1 2,101 0 1,082 1,082 766 0 0 84


Built As Details for Building 1
ID Built As Square Ft Year Built Stories Length Width
1.00 2 Story 2,101 2000 2 0 0


Additional Details for Building 1
ID Detail Type Description Units
1 Add On Fireplace Gas 1.00
1 Add On Heat Evaporative Coolers 1.00
1 Basement Finished 1082.00
1 Basement Total Basement SF 1082.00
1 Basement Walkout 1.00
1 Fixture Full Bath 3.00
1 Fixture Half Bath 1.00
1 Fixture Wet Bar 1.00
1 Garage Attached 766.00
1 Porch Open Slab 84.00
1 Porch Slab Roof Ceil 70.00





Account Parcel Account Type Tax Year Buildings Actual Value Local Govt Assessed Value School Assessed Value
R5410986 131119301002 Residential 2026 1 611,003 38,190 43,070

Type Code Description Actual Value Local Govt Assessed Value School Assessed Value Acres Land SqFt
Improvement 1212 SINGLE FAMILY RESIDENTIAL IMPROVEMENTS 529,682 33,110 37,340 0.000 0
Land 1112 SINGLE FAMILY RESIDENTIAL-LAND 81,321 5,080 5,730 0.347 15,123
Totals - - 611,003 38,190 43,070 0.347 15,123


Account Parcel Account Type Tax Year Buildings Actual Value Local Govt Assessed Value School Assessed Value
R5410986 131119301002 Residential 2026 1 611,003 38,190 43,070

Tax Area District ID District Name Local Govt
Mill Levy
School
Mill Levy
Estimated
Taxes
2556 0900 CARBON VALLEY REC 4.427 0.000 $169.07
2556 0406 FIRESTONE TOWN 6.805 0.000 $259.88
2556 0507 FREDERICK-FIRESTONE FIRE 15.559 0.000 $594.20
2556 1050 HIGH PLAINS LIBRARY 3.044 0.000 $116.25
2556 0301 NORTHERN COLORADO WATER (NCW) 1.000 0.000 $38.19
2556 0213 SCHOOL DIST RE1J-LONGMONT 0.000 57.717 $2,485.87
2556 0620 ST VRAIN SANITATION 0.316 0.000 $12.07
2556 0100 WELD COUNTY 15.956 0.000 $609.36
Total - - 47.107 57.717 $4,284.89


The estimate of tax is based on the prior year mill levy and the 2025 projected assessment rates. Mill levies and tax estimates will be updated yearly on December 22nd for the current year. Additional information can be found at https://assessor.weld.gov










Select Reports to Print: