Account: R5412286
April 1, 2026
| Account | Parcel | Account Type | Tax Year | Buildings | Actual Value | Local Govt Assessed Value | School Assessed Value |
|---|---|---|---|---|---|---|---|
| R5412286 | 131119401007 | Residential | 2026 | 1 | 545,690 | 34,100 | 38,470 |
| Legal |
|---|
| FIR WV1-7 L7 BLK1 ZADEL RANCH-WESTWIND VILLAGESUB |
| Subdivision | Block | Lot | Land Economic Area |
|---|---|---|---|
| ZADEL RANCH WESTWIND VILLAGE SUB | 1 | 7 | ZADEL RANCH WESTWOOD DEV |
| Property Address | Property City | Section | Township | Range |
|---|---|---|---|---|
| 433 SHERILYNN CIR | FIRESTONE | 19 | 02 | 67 |
| Account | Parcel | Account Type | Tax Year | Buildings | Actual Value | Local Govt Assessed Value | School Assessed Value |
|---|---|---|---|---|---|---|---|
| R5412286 | 131119401007 | Residential | 2026 | 1 | 545,690 | 34,100 | 38,470 |
| Account | Owner Name | Address |
|---|---|---|
| R5412286 | JELINEK RODNEY R | 433 SHERILYNN CIR PO BOX 679 FIRESTONE, CO 805200679 |
| Account | Parcel | Account Type | Tax Year | Buildings | Actual Value | Local Govt Assessed Value | School Assessed Value |
|---|---|---|---|---|---|---|---|
| R5412286 | 131119401007 | Residential | 2026 | 1 | 545,690 | 34,100 | 38,470 |
| Reception | Rec Date | Type | Grantor | Grantee | Doc Fee | Sale Date | Sale Price |
|---|---|---|---|---|---|---|---|
| 01937308 | 08-16-1983 | WDN | 0.00 | 01-01-1900 | 0 | ||
| 1756842 | NA | SUB | SUBDIVISION | ZADEL RANCH WESTWIND VILLAGE | 0.00 | NA | 0 |
| 2221609 | 07-30-1990 | WD | HARTIGAN DARRELL P & CATHERINE | CLAXTON THURMAN J & PATRICIA E | 8.70 | 07-30-1990 | 87,000 |
| 2353117 | 10-04-1993 | WD | CLAXTON THURMAN J & PATRICIA E | JELINEK RODNEY R & JAYNE C | 12.80 | 09-29-1993 | 128,000 |
| 4326796 | 08-14-2017 | AFFD | JELINEK RODNEY R; JELINEK JAYNE C | JELINEK RODNEY R; JELINEK JAYNE C | 0.00 | 08-02-2017 | 0 |
| 4326797 | 08-14-2017 | DTHC | JELINEK JAYNE C | JELINEK RODNEY R | 0.00 | 06-21-2017 | 0 |
| X0012602 | 08-16-1983 | CON | HARTIGAN DARRELL P & CATHERINE | 2.55 | 08-16-1983 | 25,500 |
*If the hyperlink for the reception number does not work, try a manual search in the Clerk and Recorder records. Use the Grantor or Grantee in your search.
| Account | Parcel | Account Type | Tax Year | Buildings | Actual Value | Local Govt Assessed Value | School Assessed Value |
|---|---|---|---|---|---|---|---|
| R5412286 | 131119401007 | Residential | 2026 | 1 | 545,690 | 34,100 | 38,470 |
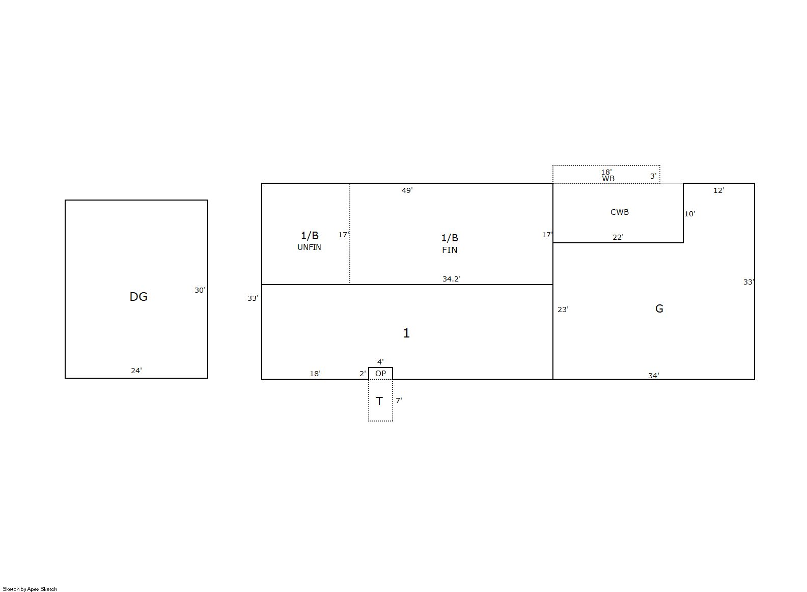
Building 1
| AccountNo | Building ID | Occupancy |
|---|---|---|
| R5412286 | 1 | Single Family Residential |
| ID | Type | NBHD | Occupancy | % Complete | Bedrooms | Baths |
|---|---|---|---|---|---|---|
| 1 | Residential | 3R2031 | Single Family Residential | 100 | 3 | 2.00 |
| ID | Exterior | Roof Cover | Interior | HVAC | Perimeter | Units | Unit Type | Make |
|---|---|---|---|---|---|---|---|---|
| 1 | Frame Masonry Veneer | Composition Shingle | Drywall | Forced Air | 168 | 0 | NA | NA |
| ID | Square Ft | Condo SF | Total Basement SF | Finished Basement SF | Garage SF | Carport SF | Balcony SF | Porch SF |
|---|---|---|---|---|---|---|---|---|
| 1 | 1,609 | 0 | 833 | 581 | 720 | 0 | 54 | 8 |
| ID | Built As | Square Ft | Year Built | Stories | Length | Width |
|---|---|---|---|---|---|---|
| 1.00 | Ranch 1 Story | 1,609 | 1984 | 1 | 0 | 0 |
| ID | Detail Type | Description | Units |
|---|---|---|---|
| 1 | Add On | Shed Frame | 120.00 |
| 1 | Balcony | Cover Wood Balc | 220.00 |
| 1 | Balcony | Wood Wood Fin | 54.00 |
| 1 | Basement | Finished | 581.00 |
| 1 | Basement | Total Basement SF | 833.00 |
| 1 | Fixture | Full Bath | 2.00 |
| 1 | Garage | Attached | 902.00 |
| 1 | Garage | Detached | 720.00 |
| 1 | Porch | Open Slab | 28.00 |
| 1 | Porch | Slab Roof Ceil | 8.00 |
| Account | Parcel | Account Type | Tax Year | Buildings | Actual Value | Local Govt Assessed Value | School Assessed Value |
|---|---|---|---|---|---|---|---|
| R5412286 | 131119401007 | Residential | 2026 | 1 | 545,690 | 34,100 | 38,470 |
| Type | Code | Description | Actual Value | Local Govt Assessed Value | School Assessed Value | Acres | Land SqFt |
|---|---|---|---|---|---|---|---|
| Improvement | 1212 | SINGLE FAMILY RESIDENTIAL IMPROVEMENTS | 451,068 | 28,190 | 31,800 | 0.000 | 0 |
| Land | 1112 | SINGLE FAMILY RESIDENTIAL-LAND | 94,622 | 5,910 | 6,670 | 0.464 | 20,209 |
| Totals | - | - | 545,690 | 34,100 | 38,470 | 0.464 | 20,209 |
Comparable sales for your Residential or Commercial property may be found using our SALES SEARCH TOOL
Values are updated annually on May 1st for Real Property and June 15th for Personal Property and Oil and Gas.
| Account | Parcel | Account Type | Tax Year | Buildings | Actual Value | Local Govt Assessed Value | School Assessed Value |
|---|---|---|---|---|---|---|---|
| R5412286 | 131119401007 | Residential | 2026 | 1 | 545,690 | 34,100 | 38,470 |
| Tax Area | District ID | District Name | Local Govt Mill Levy |
School Mill Levy |
Estimated Taxes |
|---|---|---|---|---|---|
| 2084 | 0900 | CARBON VALLEY REC | 4.427 | 0.000 | $150.96 |
| 2084 | 0305 | CENTRAL WELD COUNTY WATER (CWC) | 0.000 | 0.000 | $0.00 |
| 2084 | 0406 | FIRESTONE TOWN | 6.805 | 0.000 | $232.05 |
| 2084 | 0507 | FREDERICK-FIRESTONE FIRE | 15.559 | 0.000 | $530.56 |
| 2084 | 1050 | HIGH PLAINS LIBRARY | 3.044 | 0.000 | $103.80 |
| 2084 | 0301 | NORTHERN COLORADO WATER (NCW) | 1.000 | 0.000 | $34.10 |
| 2084 | 0213 | SCHOOL DIST RE1J-LONGMONT | 0.000 | 57.717 | $2,220.37 |
| 2084 | 0620 | ST VRAIN SANITATION | 0.316 | 0.000 | $10.78 |
| 2084 | 0100 | WELD COUNTY | 15.956 | 0.000 | $544.10 |
| Total | - | - | 47.107 | 57.717 | $3,826.72 |
The estimate of tax is based on the prior year mill levy and the 2025 projected assessment rates. Mill levies and tax estimates will be updated yearly on December 22nd for the current year. Additional information can be found at https://assessor.weld.gov


