Account: R5412886

April 1, 2026

Account Parcel Account Type Tax Year Buildings Actual Value Local Govt Assessed Value School Assessed Value
R5412886 131119401013 Residential 2026 1 674,585 42,170 47,560

Legal
FIR WV1-13 L13 BLK1 THE ZADEL RANCH-WESTWIND VILLAGE

Subdivision Block Lot Land Economic Area
ZADEL RANCH WESTWIND VILLAGE SUB 1 13 ZADEL RANCH WESTWOOD DEV

Property Address Property City Section Township Range
541 SHERILYNN CIR FIRESTONE 19 02 67




Account Parcel Account Type Tax Year Buildings Actual Value Local Govt Assessed Value School Assessed Value
R5412886 131119401013 Residential 2026 1 674,585 42,170 47,560

Account Owner Name Address
R5412886 PARKER BENJAMIN CODY PO BOX 35 FIRESTONE, CO 805200035
R5412886 PARKER JODY LYNN


Account Parcel Account Type Tax Year Buildings Actual Value Local Govt Assessed Value School Assessed Value
R5412886 131119401013 Residential 2026 1 674,585 42,170 47,560

Reception Rec Date Type Grantor Grantee Doc Fee Sale Date Sale Price
02007245 04-26-1985 PTD 0.00 01-01-1900 0
02146518 06-30-1988 QCN 0.00 06-27-1988 0
02183149 06-20-1989 QCN 0.00 06-13-1989 0
02242399 02-27-1991 WD MORAN GREGG A & EASTPARK III 8.48 02-22-1991 84,800
1756842 NA SUB SUBDIVISION ZADEL RANCH WESTWIND VILLAGE 0.00 NA 0
2311914 11-20-1992 WD EASTPARK III SHARON MARVIN D & DEANNA K 1.35 11-17-1992 13,500
2890849 10-10-2001 QCN SHARON MARVIN D & DEANNA K SHARON MARVIN D & DEANNA K 0.00 10-08-2001 0
2957754 06-04-2002 WD SHARON MARVIN D & DEANNA K BILES FLOYD E & CONNIE R 32.50 06-03-2002 325,000
4374108 02-08-2018 DTHC BILES FLOYD E; BILES CONNIE R BILES FLOYD E 0.00 12-04-2017 0
4578870 03-31-2020 DTHC BILES FLOYD E BILES FLOYD E (HEIRS OF) 0.00 01-16-2019 0
4578872 03-31-2020 PRD BILES FLOYD E (HEIRS OF) PARKER BENJAMIN CODY; PARKER JODY LYNN 49.60 01-07-2020 496,000



Account Parcel Account Type Tax Year Buildings Actual Value Local Govt Assessed Value School Assessed Value
R5412886 131119401013 Residential 2026 1 674,585 42,170 47,560

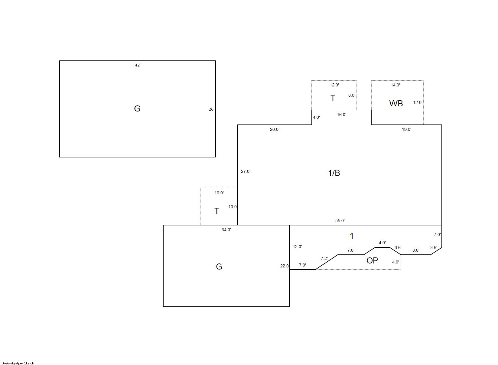
Building 1

AccountNo Building ID Occupancy
R5412886 1 Single Family Residential


ID Type NBHD Occupancy % Complete Bedrooms Baths
1 Residential 3R2031 Single Family Residential 100 4 4.00


ID Exterior Roof Cover Interior HVAC Perimeter Units Unit Type Make
1 Frame Siding Composition Shingle Drywall Central Air to Air 193 0 NA NA


ID Square Ft Condo SF Total Basement SF Finished Basement SF Garage SF Carport SF Balcony SF Porch SF
1 1,900 0 1,549 1,549 1,092 0 168 196


Built As Details for Building 1
ID Built As Square Ft Year Built Stories Length Width
1.00 Ranch 1 Story 1,900 1993 1 0 0


Additional Details for Building 1
ID Detail Type Description Units
1 Add On Fireplace Gas 1.00
1 Balcony Wood Wood Fin 168.00
1 Basement Finished 1549.00
1 Basement Total Basement SF 1549.00
1 Fixture Full Bath 3.00
1 Fixture Half Bath 1.00
1 Fixture Wet Bar 1.00
1 Garage Attached 748.00
1 Garage Detached 1092.00
1 Porch Open Slab 196.00
1 Porch Slab Roof Ceil 94.00





Account Parcel Account Type Tax Year Buildings Actual Value Local Govt Assessed Value School Assessed Value
R5412886 131119401013 Residential 2026 1 674,585 42,170 47,560

Type Code Description Actual Value Local Govt Assessed Value School Assessed Value Acres Land SqFt
Improvement 1212 SINGLE FAMILY RESIDENTIAL IMPROVEMENTS 579,620 36,230 40,860 0.000 0
Land 1112 SINGLE FAMILY RESIDENTIAL-LAND 94,965 5,940 6,700 0.467 20,347
Totals - - 674,585 42,170 47,560 0.467 20,347


Account Parcel Account Type Tax Year Buildings Actual Value Local Govt Assessed Value School Assessed Value
R5412886 131119401013 Residential 2026 1 674,585 42,170 47,560

Tax Area District ID District Name Local Govt
Mill Levy
School
Mill Levy
Estimated
Taxes
2084 0900 CARBON VALLEY REC 4.427 0.000 $186.69
2084 0305 CENTRAL WELD COUNTY WATER (CWC) 0.000 0.000 $0.00
2084 0406 FIRESTONE TOWN 6.805 0.000 $286.97
2084 0507 FREDERICK-FIRESTONE FIRE 15.559 0.000 $656.12
2084 1050 HIGH PLAINS LIBRARY 3.044 0.000 $128.37
2084 0301 NORTHERN COLORADO WATER (NCW) 1.000 0.000 $42.17
2084 0213 SCHOOL DIST RE1J-LONGMONT 0.000 57.717 $2,745.02
2084 0620 ST VRAIN SANITATION 0.316 0.000 $13.33
2084 0100 WELD COUNTY 15.956 0.000 $672.86
Total - - 47.107 57.717 $4,731.52


The estimate of tax is based on the prior year mill levy and the 2025 projected assessment rates. Mill levies and tax estimates will be updated yearly on December 22nd for the current year. Additional information can be found at https://assessor.weld.gov










Select Reports to Print: