Account: R5611786
April 5, 2026
| Account | Parcel | Account Type | Tax Year | Buildings | Actual Value | Local Govt Assessed Value | School Assessed Value |
|---|---|---|---|---|---|---|---|
| R5611786 | 131311000057 | Commercial | 2026 | 2 | 9,079,272 | 2,451,410 | 2,451,410 |
| Legal |
|---|
| PT SW4 11-2-68 LOT A AMD REC EXEMPT RE-248 EXC 1.114 AC DEEDED TO CDOT |
| Subdivision | Block | Lot | Land Economic Area |
|---|---|---|---|
| FIRESTONE DEL CAMINO CENTRAL |
| Property Address | Property City | Section | Township | Range |
|---|---|---|---|---|
| 10500 E INTERSTATE 25 FRONTAGE RD | WELD | 11 | 02 | 68 |
| Account | Parcel | Account Type | Tax Year | Buildings | Actual Value | Local Govt Assessed Value | School Assessed Value |
|---|---|---|---|---|---|---|---|
| R5611786 | 131311000057 | Commercial | 2026 | 2 | 9,079,272 | 2,451,410 | 2,451,410 |
| Account | Owner Name | Address |
|---|---|---|
| R5611786 | BNK PROPERTIES LLC | 1911 N GARFIELD AVE LOVELAND, CO 805383847 |
| Account | Parcel | Account Type | Tax Year | Buildings | Actual Value | Local Govt Assessed Value | School Assessed Value |
|---|---|---|---|---|---|---|---|
| R5611786 | 131311000057 | Commercial | 2026 | 2 | 9,079,272 | 2,451,410 | 2,451,410 |
| Reception | Rec Date | Type | Grantor | Grantee | Doc Fee | Sale Date | Sale Price |
|---|---|---|---|---|---|---|---|
| 05-03-1988 | SPR | SITE PLAN REVIEW | SPR-104 | 0.00 | NA | 0 | |
| 06-09-1993 | SPR | SITE PLAN REVIEW | SPR-201 | 0.00 | NA | 0 | |
| 02010311 | 05-20-1985 | PRDN | 0.00 | 05-20-1985 | 0 | ||
| 02193340 | 09-29-1989 | QCN | 0.00 | 09-28-1989 | 0 | ||
| 1706448 | 12-21-1976 | COZ | WELD COUNTY ZONING | CASE: Z-106* ZONING C-3 | 0.00 | NA | 0 |
| 1713981 | 05-17-1977 | RE | RECORDED EXEMPTION | RE-248 AM | 0.00 | NA | 0 |
| 2010311 | 05-20-1989 | PRDN | TRUST U/W CARL R OSWALD | 0.00 | 01-01-1900 | 0 | |
| 2599113 | 03-11-1998 | WD | TRUST U/W CARL R OSWALD | DEPARTMENT OF TRANSPORTATION | 13.90 | 03-06-1998 | 139,000 |
| 2718072 | 09-02-1999 | BSDN | TRUST U/W CARL R OSWALD | OSWALD CARL R TRUST LLC | 0.00 | 07-21-1999 | 0 |
| 3695783 | 05-26-2010 | SWD | CARL R OSWALD TRUST LLC | BNK PROPERTIES LLC | 304.94 | 05-26-2010 | 3,049,400 |
| 4556587 | 01-08-2020 | SURV | SURVEY | SURVEY | 0.00 | 01-08-2020 | 0 |
*If the hyperlink for the reception number does not work, try a manual search in the Clerk and Recorder records. Use the Grantor or Grantee in your search.
| Account | Parcel | Account Type | Tax Year | Buildings | Actual Value | Local Govt Assessed Value | School Assessed Value |
|---|---|---|---|---|---|---|---|
| R5611786 | 131311000057 | Commercial | 2026 | 2 | 9,079,272 | 2,451,410 | 2,451,410 |
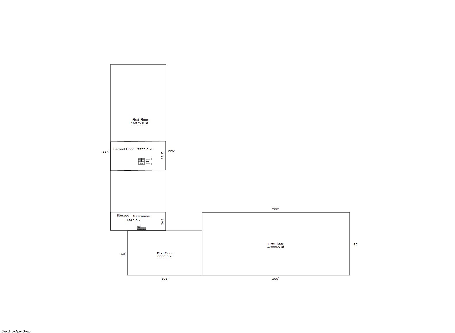
Building 1
| AccountNo | Building ID | Occupancy |
|---|---|---|
| R5611786 | 1 | Warehouse |
| ID | Type | NBHD | Occupancy | % Complete | Bedrooms | Baths |
|---|---|---|---|---|---|---|
| 1 | Commercial | 3917 | Warehouse | 100 | 0 | 0.00 |
| ID | Exterior | Roof Cover | Interior | HVAC | Perimeter | Units | Unit Type | Make |
|---|---|---|---|---|---|---|---|---|
| 1 | NA | NA | NA | Space Heater | 372 | 0 | NA | NA |
| ID | Square Ft | Condo SF | Total Basement SF | Finished Basement SF | Garage SF | Carport SF | Balcony SF | Porch SF |
|---|---|---|---|---|---|---|---|---|
| 1 | 3,780 | 0 | 0 | 0 | 0 | 0 | 0 | 0 |
| ID | Built As | Square Ft | Year Built | Stories | Length | Width |
|---|---|---|---|---|---|---|
| 1.00 | Light Commercial Utility | 3,780 | 1977 | 1 | 0 | 0 |
No Additional Details for Building 1
Building 3
| AccountNo | Building ID | Occupancy |
|---|---|---|
| R5611786 | 3 | Complete Auto Dealership |
| ID | Type | NBHD | Occupancy | % Complete | Bedrooms | Baths |
|---|---|---|---|---|---|---|
| 3 | Commercial | 3917 | Complete Auto Dealership | 100 | NA | 0.00 |
| ID | Exterior | Roof Cover | Interior | HVAC | Perimeter | Units | Unit Type | Make |
|---|---|---|---|---|---|---|---|---|
| 3 | NA | NA | NA | Package Unit | 1721 | 0 | NA | NA |
| ID | Square Ft | Condo SF | Total Basement SF | Finished Basement SF | Garage SF | Carport SF | Balcony SF | Porch SF |
|---|---|---|---|---|---|---|---|---|
| 3 | 42,890 | 0 | 0 | 0 | 0 | 0 | 0 | 0 |
| ID | Built As | Square Ft | Year Built | Stories | Length | Width |
|---|---|---|---|---|---|---|
| 3.00 | Complete Auto Dealership | 42,890 | 2021 | 2 | 0 | 0 |
| ID | Detail Type | Description | Units |
|---|---|---|---|
| 3 | Mezzanine | Storage | 1845.00 |
| Account | Parcel | Account Type | Tax Year | Buildings | Actual Value | Local Govt Assessed Value | School Assessed Value |
|---|---|---|---|---|---|---|---|
| R5611786 | 131311000057 | Commercial | 2026 | 2 | 9,079,272 | 2,451,410 | 2,451,410 |
| Type | Code | Description | Actual Value | Local Govt Assessed Value | School Assessed Value | Acres | Land SqFt |
|---|---|---|---|---|---|---|---|
| Improvement | 2230 | SPECIAL PURPOSE-IMPROVEMENTS | 6,041,019 | 1,631,080 | 1,631,080 | 0.000 | 0 |
| Improvement | 2235 | WAREHOUSE/STORAGE-IMPS | 240,154 | 64,840 | 64,840 | 0.000 | 0 |
| Land | 2130 | SPECIAL PURPOSE-LAND | 2,798,099 | 755,490 | 755,490 | 9.180 | 399,728 |
| Totals | - | - | 9,079,272 | 2,451,410 | 2,451,410 | 9.180 | 399,728 |
Comparable sales for your Residential or Commercial property may be found using our SALES SEARCH TOOL
Values are updated annually on May 1st for Real Property and June 15th for Personal Property and Oil and Gas.
| Account | Parcel | Account Type | Tax Year | Buildings | Actual Value | Local Govt Assessed Value | School Assessed Value |
|---|---|---|---|---|---|---|---|
| R5611786 | 131311000057 | Commercial | 2026 | 2 | 9,079,272 | 2,451,410 | 2,451,410 |
| Tax Area | District ID | District Name | Local Govt Mill Levy |
School Mill Levy |
Estimated Taxes |
|---|---|---|---|---|---|
| 2337 | 0900 | CARBON VALLEY REC | 4.427 | 0.000 | $10,852.39 |
| 2337 | 0305 | CENTRAL WELD COUNTY WATER (CWC) | 0.000 | 0.000 | $0.00 |
| 2337 | 1050 | HIGH PLAINS LIBRARY | 3.044 | 0.000 | $7,462.09 |
| 2337 | 1202 | LONGMONT CONSERVATION | 0.000 | 0.000 | $0.00 |
| 2337 | 0512 | MOUNTAIN VIEW FIRE PROTECTION DISTRICT | 16.342 | 0.000 | $40,060.94 |
| 2337 | 0301 | NORTHERN COLORADO WATER (NCW) | 1.000 | 0.000 | $2,451.41 |
| 2337 | 0213 | SCHOOL DIST RE1J-LONGMONT | 0.000 | 57.717 | $141,488.03 |
| 2337 | 0620 | ST VRAIN SANITATION | 0.316 | 0.000 | $774.65 |
| 2337 | 0100 | WELD COUNTY | 15.956 | 0.000 | $39,114.70 |
| Total | - | - | 41.085 | 57.717 | $242,204.21 |
The estimate of tax is based on the prior year mill levy and the 2025 projected assessment rates. Mill levies and tax estimates will be updated yearly on December 22nd for the current year. Additional information can be found at https://assessor.weld.gov



