Account: R5616786
April 1, 2026
| Account | Parcel | Account Type | Tax Year | Buildings | Actual Value | Local Govt Assessed Value | School Assessed Value |
|---|---|---|---|---|---|---|---|
| R5616786 | 131313101010 | Residential | 2026 | 3 | 782,306 | 48,890 | 55,160 |
| Legal |
|---|
| BA-11 L11 BUFFALO ACRES EXC BEG NW COR S16D10'E 312.35' W86.96' N300' TO BEG |
| Subdivision | Block | Lot | Land Economic Area |
|---|---|---|---|
| BUFFALO ACRES SUB | 11 | BUFFALO ACRES |
| Property Address | Property City | Section | Township | Range |
|---|---|---|---|---|
| 9703 COLORADO BLVD | WELD | 13 | 02 | 68 |
| Account | Parcel | Account Type | Tax Year | Buildings | Actual Value | Local Govt Assessed Value | School Assessed Value |
|---|---|---|---|---|---|---|---|
| R5616786 | 131313101010 | Residential | 2026 | 3 | 782,306 | 48,890 | 55,160 |
| Account | Owner Name | Address |
|---|---|---|
| R5616786 | AYMOND JUSTIN | 9703 COUNTY ROAD 13 LONGMONT, CO 805049448 |
| R5616786 | AYMOND MEGAN |
| Account | Parcel | Account Type | Tax Year | Buildings | Actual Value | Local Govt Assessed Value | School Assessed Value |
|---|---|---|---|---|---|---|---|
| R5616786 | 131313101010 | Residential | 2026 | 3 | 782,306 | 48,890 | 55,160 |
| Reception | Rec Date | Type | Grantor | Grantee | Doc Fee | Sale Date | Sale Price |
|---|---|---|---|---|---|---|---|
| 09-19-1989 | USR | USE BY SPECIAL REVIEW | USR-833 ANIMAL TRAINING FAC & ACCESSOR | 0.00 | NA | 0 | |
| 01913827 | 01-10-1983 | WDN | 0.00 | 01-01-1900 | 0 | ||
| 1512542 | NA | SUB | SUBDIVISION | BUFFALO ACRES | 0.00 | NA | 0 |
| 2130389 | 02-08-1988 | WD | SIMPSON S P | JEFFRES STEPHEN T & MICHELLE A | 10.35 | 02-03-1988 | 103,500 |
| 3080772 | 07-07-2003 | WDN | BUFFALO ACRES TRUST | BUFFALO ACRES TRUST | 0.00 | 06-16-2003 | 0 |
| 3080773 | 07-07-2003 | WD | BUFFALO ACRES TRUST | STEWARDSON ROBERTA SUE | 46.80 | 06-16-2003 | 468,000 |
| 3084628 | 07-17-2003 | PTD | JEFFRES STEPHEN T & MICHELLE A | BUFFALO ACRES TRUST | 0.00 | 07-17-2003 | 0 |
| 3259426 | 02-07-2005 | WDN | STEWARDSON ROBERTA SUE | 9703 WCR 13 TRUST | 0.00 | 02-03-2004 | 0 |
| 3432551 | 11-03-2006 | WD | 9703 WCR 13 TRUST | JEFFRES MICHELLE A & | 39.34 | 10-18-2006 | 393,400 |
| 3908470 | 02-07-2013 | PTDE | JEFFRES MICHELLE A | ARROWHEAD PROPERTIES LLC | 0.00 | 02-06-2013 | 0 |
| 3979916 | 11-22-2013 | SWD | ARROWHEAD PROPERTIES LLC | CAIRES WILLIAM S | 38.88 | 11-22-2013 | 388,800 |
| 4275547 | 02-03-2017 | QCN | CAIRES WILLIAM S; DURAN DARIN R | CAIRES WILLIAM S | 0.00 | 02-02-2017 | 0 |
| 4321492 | 07-26-2017 | SWD | CAIRES WILLIAM S | AYMOND JUSTIN; AYMOND MEGAN | 55.00 | 07-24-2017 | 550,000 |
| X0012920 | 01-10-1983 | CON | SIMPSON S P | JEFFRES STEPHEN T & MICHELLE A | 10.00 | 01-10-1983 | 100,000 |
*If the hyperlink for the reception number does not work, try a manual search in the Clerk and Recorder records. Use the Grantor or Grantee in your search.
| Account | Parcel | Account Type | Tax Year | Buildings | Actual Value | Local Govt Assessed Value | School Assessed Value |
|---|---|---|---|---|---|---|---|
| R5616786 | 131313101010 | Residential | 2026 | 3 | 782,306 | 48,890 | 55,160 |
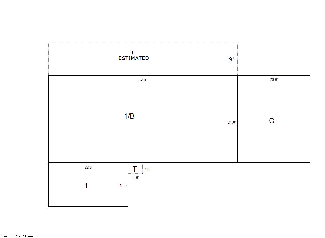
Building 1
| AccountNo | Building ID | Occupancy |
|---|---|---|
| R5616786 | 1 | Single Family Residential |
| ID | Type | NBHD | Occupancy | % Complete | Bedrooms | Baths |
|---|---|---|---|---|---|---|
| 1 | Residential | 3R2031 | Single Family Residential | 100 | 3 | 3.00 |
| ID | Exterior | Roof Cover | Interior | HVAC | Perimeter | Units | Unit Type | Make |
|---|---|---|---|---|---|---|---|---|
| 1 | Frame Siding | Composition Shingle | Drywall | Electric Radiant | 0 | 0 | NA | NA |
| ID | Square Ft | Condo SF | Total Basement SF | Finished Basement SF | Garage SF | Carport SF | Balcony SF | Porch SF |
|---|---|---|---|---|---|---|---|---|
| 1 | 1,512 | 0 | 1,248 | 0 | 480 | 0 | 0 | 480 |
| ID | Built As | Square Ft | Year Built | Stories | Length | Width |
|---|---|---|---|---|---|---|
| 1.00 | Ranch 1 Story | 1,512 | 1978 | 1 | 0 | 0 |
| ID | Detail Type | Description | Units |
|---|---|---|---|
| 1 | Add On | Flue Only | 1.00 |
| 1 | Add On | Heat Central Air to Air | 1512.00 |
| 1 | Basement | Total Basement SF | 1248.00 |
| 1 | Fixture | Full Bath | 2.00 |
| 1 | Fixture | Half Bath | 1.00 |
| 1 | Garage | Attached | 480.00 |
| 1 | Porch | Open Slab | 480.00 |
| 1 | Rough In | Rough In | 1.00 |
Building 2
| AccountNo | Building ID | Occupancy |
|---|---|---|
| R5616786 | 2 | Stable |
| ID | Type | NBHD | Occupancy | % Complete | Bedrooms | Baths |
|---|---|---|---|---|---|---|
| 2 | Out Building | NA | Stable | 100 | 0 | 0.00 |
| ID | Exterior | Roof Cover | Interior | HVAC | Perimeter | Units | Unit Type | Make |
|---|---|---|---|---|---|---|---|---|
| 2 | NA | NA | NA | None | 204 | 0 | NA | NA |
| ID | Square Ft | Condo SF | Total Basement SF | Finished Basement SF | Garage SF | Carport SF | Balcony SF | Porch SF |
|---|---|---|---|---|---|---|---|---|
| 2 | 2,160 | 0 | 0 | 0 | 0 | 0 | 0 | 0 |
| ID | Built As | Square Ft | Year Built | Stories | Length | Width |
|---|---|---|---|---|---|---|
| 2.00 | Stable | 2,160 | 1988 | 1 | 72 | 30 |
No Additional Details for Building 2
Building 3
| AccountNo | Building ID | Occupancy |
|---|---|---|
| R5616786 | 3 | Equipment Building |
| ID | Type | NBHD | Occupancy | % Complete | Bedrooms | Baths |
|---|---|---|---|---|---|---|
| 3 | Out Building | NA | Equipment Building | 100 | 0 | 0.00 |
| ID | Exterior | Roof Cover | Interior | HVAC | Perimeter | Units | Unit Type | Make |
|---|---|---|---|---|---|---|---|---|
| 3 | NA | NA | NA | None | 308 | 0 | NA | NA |
| ID | Square Ft | Condo SF | Total Basement SF | Finished Basement SF | Garage SF | Carport SF | Balcony SF | Porch SF |
|---|---|---|---|---|---|---|---|---|
| 3 | 5,220 | 0 | 0 | 0 | 0 | 0 | 0 | 0 |
| ID | Built As | Square Ft | Year Built | Stories | Length | Width |
|---|---|---|---|---|---|---|
| 3.00 | Equipment Building | 5,220 | 1997 | 1 | 0 | 0 |
No Additional Details for Building 3
| Account | Parcel | Account Type | Tax Year | Buildings | Actual Value | Local Govt Assessed Value | School Assessed Value |
|---|---|---|---|---|---|---|---|
| R5616786 | 131313101010 | Residential | 2026 | 3 | 782,306 | 48,890 | 55,160 |
| Type | Code | Description | Actual Value | Local Govt Assessed Value | School Assessed Value | Acres | Land SqFt |
|---|---|---|---|---|---|---|---|
| Improvement | 1212 | SINGLE FAMILY RESIDENTIAL IMPROVEMENTS | 462,782 | 28,920 | 32,630 | 0.000 | 0 |
| Land | 1112 | SINGLE FAMILY RESIDENTIAL-LAND | 319,524 | 19,970 | 22,530 | 3.240 | 141,134 |
| Totals | - | - | 782,306 | 48,890 | 55,160 | 3.240 | 141,134 |
Comparable sales for your Residential or Commercial property may be found using our SALES SEARCH TOOL
Values are updated annually on May 1st for Real Property and June 15th for Personal Property and Oil and Gas.
| Account | Parcel | Account Type | Tax Year | Buildings | Actual Value | Local Govt Assessed Value | School Assessed Value |
|---|---|---|---|---|---|---|---|
| R5616786 | 131313101010 | Residential | 2026 | 3 | 782,306 | 48,890 | 55,160 |
| Tax Area | District ID | District Name | Local Govt Mill Levy |
School Mill Levy |
Estimated Taxes |
|---|---|---|---|---|---|
| 2297 | 0900 | CARBON VALLEY REC | 4.427 | 0.000 | $216.44 |
| 2297 | 0507 | FREDERICK-FIRESTONE FIRE | 15.559 | 0.000 | $760.68 |
| 2297 | 1050 | HIGH PLAINS LIBRARY | 3.044 | 0.000 | $148.82 |
| 2297 | 1202 | LONGMONT CONSERVATION | 0.000 | 0.000 | $0.00 |
| 2297 | 0301 | NORTHERN COLORADO WATER (NCW) | 1.000 | 0.000 | $48.89 |
| 2297 | 0213 | SCHOOL DIST RE1J-LONGMONT | 0.000 | 57.717 | $3,183.67 |
| 2297 | 0100 | WELD COUNTY | 15.956 | 0.000 | $780.09 |
| Total | - | - | 39.986 | 57.717 | $5,138.59 |
The estimate of tax is based on the prior year mill levy and the 2025 projected assessment rates. Mill levies and tax estimates will be updated yearly on December 22nd for the current year. Additional information can be found at https://assessor.weld.gov



