Account: R5618686
April 1, 2026
| Account | Parcel | Account Type | Tax Year | Buildings | Actual Value | Local Govt Assessed Value | School Assessed Value |
|---|---|---|---|---|---|---|---|
| R5618686 | 131314000018 | Exempt | 2026 | 3 | 2,601,978 | 638,240 | 640,720 |
| Legal |
|---|
| 25129A N2NE4NE4NE4 14-2-68 (.5R) |
| Subdivision | Block | Lot | Land Economic Area |
|---|---|---|---|
| FIRESTONE RURAL |
| Property Address | Property City | Section | Township | Range |
|---|---|---|---|---|
| 9993 COUNTY ROAD 11 | WELD | 14 | 02 | 68 |
| Account | Parcel | Account Type | Tax Year | Buildings | Actual Value | Local Govt Assessed Value | School Assessed Value |
|---|---|---|---|---|---|---|---|
| R5618686 | 131314000018 | Exempt | 2026 | 3 | 2,601,978 | 638,240 | 640,720 |
| Account | Owner Name | Address |
|---|---|---|
| R5618686 | PRAIRIE RIDGE COMMUNITY CHURCH INC | 9993 COUNTY ROAD 11 LONGMONT, CO 805045422 |
| Account | Parcel | Account Type | Tax Year | Buildings | Actual Value | Local Govt Assessed Value | School Assessed Value |
|---|---|---|---|---|---|---|---|
| R5618686 | 131314000018 | Exempt | 2026 | 3 | 2,601,978 | 638,240 | 640,720 |
| Reception | Rec Date | Type | Grantor | Grantee | Doc Fee | Sale Date | Sale Price |
|---|---|---|---|---|---|---|---|
| 01769135 | 10-10-1978 | WDN | 0.00 | 01-01-1900 | 0 | ||
| 02440805 | 06-01-1995 | OTH | 0.00 | 05-18-1995 | 0 | ||
| 2174995 | 03-31-1989 | WD | SEILER DANIEL RICHARD & CAROL | COGGINS THOMAS H & LINDA J | 13.50 | 03-27-1989 | 135,000 |
| 2379362 | 03-21-1994 | WD | COGGINS THOMAS H & LINDA J | BRENNAN JOHN W | 16.75 | 03-17-1994 | 167,500 |
| 2579912 | 11-19-1997 | WD | BRENNAN JOHN W | PHILLIPS WAYNE E & JULIA R | 20.86 | 11-14-1997 | 208,600 |
| 2884130 | 09-17-2001 | WD | PHILLIPS WAYNE E & JULIA R | SOUTHWESTERN ASSOCIATION OF NORTH | 35.00 | 09-07-2001 | 350,000 |
| 3227316 | 10-31-2004 | WD | SOUTHWESTERN ASSOCIATION OF NORTH | PRAIRIE RIDGE COMM CHURCH INC | 46.00 | 10-31-2004 | 460,000 |
| 4019303 | 05-29-2014 | SURV | SURVEY | SURVEY | 0.00 | 05-29-2014 | 0 |
| 4040761 | 08-25-2014 | SURV | SURVEY | SURVEY | 0.00 | 03-14-2014 | 0 |
| 4071932 | 12-30-2014 | SURV | SURVEY | SURVEY | 0.00 | 12-30-2014 | 0 |
| 4288151 | 03-23-2017 | USR | USE BY SPECIAL REVIEW | USR15-0036 CHURCH, PRIV SCHOOL, CHLD CARE | 0.00 | NA | 0 |
| 4288151 | 03-23-2017 | USR | SURVEY | SURVEY | 0.00 | 03-07-2017 | 0 |
*If the hyperlink for the reception number does not work, try a manual search in the Clerk and Recorder records. Use the Grantor or Grantee in your search.
| Account | Parcel | Account Type | Tax Year | Buildings | Actual Value | Local Govt Assessed Value | School Assessed Value |
|---|---|---|---|---|---|---|---|
| R5618686 | 131314000018 | Exempt | 2026 | 3 | 2,601,978 | 638,240 | 640,720 |
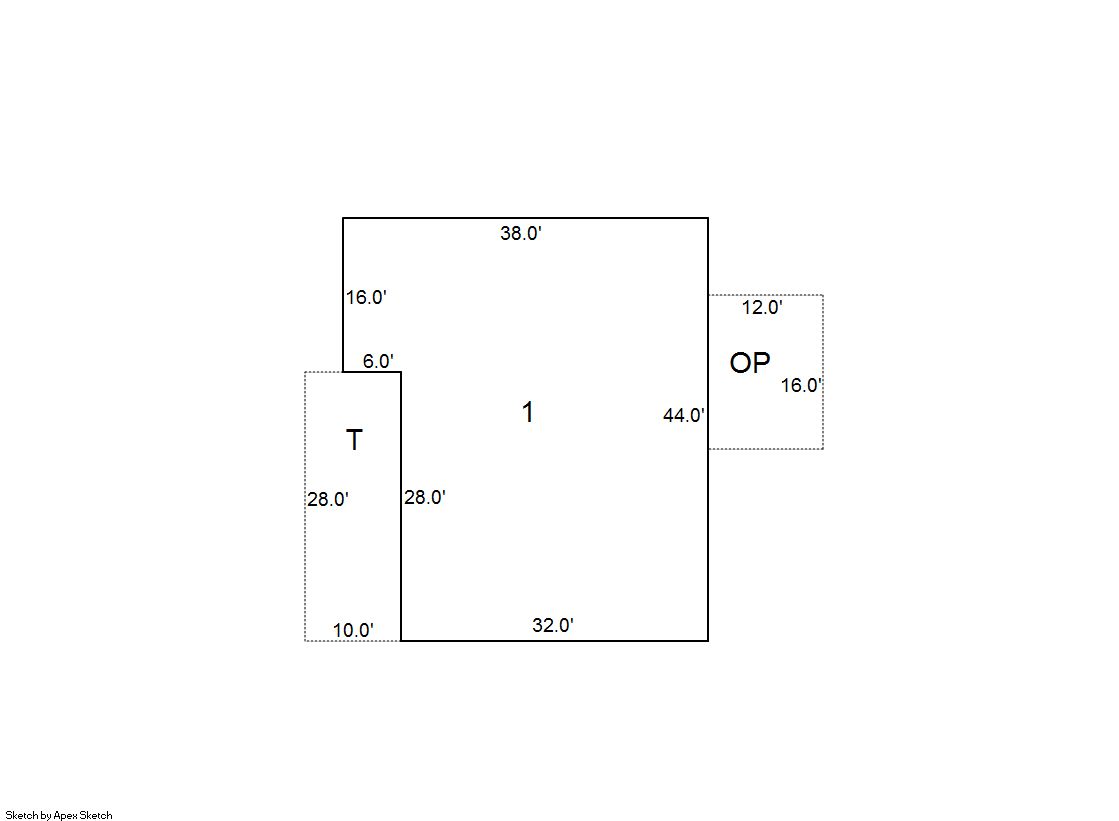
Building 1
| AccountNo | Building ID | Occupancy |
|---|---|---|
| R5618686 | 1 | Office Building |
| ID | Type | NBHD | Occupancy | % Complete | Bedrooms | Baths |
|---|---|---|---|---|---|---|
| 1 | Commercial | 3905 | Office Building | 100 | 3 | 2.00 |
| ID | Exterior | Roof Cover | Interior | HVAC | Perimeter | Units | Unit Type | Make |
|---|---|---|---|---|---|---|---|---|
| 1 | Frame Hardboard | Composition Shingle | Drywall | Forced Air | 164 | 0 | NA | NA |
| ID | Square Ft | Condo SF | Total Basement SF | Finished Basement SF | Garage SF | Carport SF | Balcony SF | Porch SF |
|---|---|---|---|---|---|---|---|---|
| 1 | 1,504 | 0 | 0 | 0 | 0 | 0 | 0 | 280 |
| ID | Built As | Square Ft | Year Built | Stories | Length | Width |
|---|---|---|---|---|---|---|
| 1.00 | Ranch 1 Story | 1,504 | 1973 | 1 | 0 | 0 |
| ID | Detail Type | Description | Units |
|---|---|---|---|
| 1 | Add On | Fireplace Wood | 1.00 |
| 1 | Fixture | Full Bath | 2.00 |
| 1 | Porch | Open Slab | 280.00 |
| 1 | Porch | Slab Roof Ceil | 192.00 |
Building 2
| AccountNo | Building ID | Occupancy |
|---|---|---|
| R5618686 | 2 | Office Building |
| ID | Type | NBHD | Occupancy | % Complete | Bedrooms | Baths |
|---|---|---|---|---|---|---|
| 2 | Commercial | 3905 | Office Building | 100 | NA | 0.00 |
| ID | Exterior | Roof Cover | Interior | HVAC | Perimeter | Units | Unit Type | Make |
|---|---|---|---|---|---|---|---|---|
| 2 | NA | NA | NA | None | 186 | 0 | NA | NA |
| ID | Square Ft | Condo SF | Total Basement SF | Finished Basement SF | Garage SF | Carport SF | Balcony SF | Porch SF |
|---|---|---|---|---|---|---|---|---|
| 2 | 1,594 | 0 | 0 | 0 | 0 | 0 | 0 | 0 |
| ID | Built As | Square Ft | Year Built | Stories | Length | Width |
|---|---|---|---|---|---|---|
| 2.00 | Utility Building | 1,594 | 1973 | 1 | 63 | 30 |
No Additional Details for Building 2
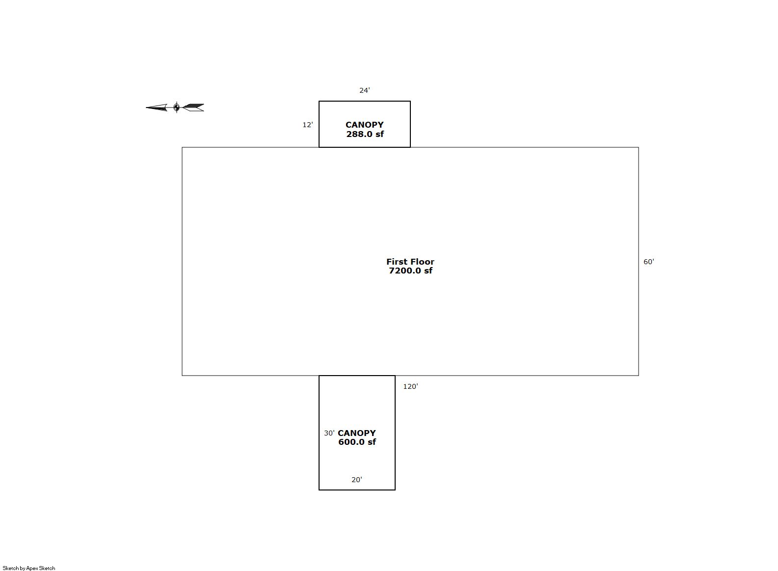
Building 4
| AccountNo | Building ID | Occupancy |
|---|---|---|
| R5618686 | 4 | Church |
| ID | Type | NBHD | Occupancy | % Complete | Bedrooms | Baths |
|---|---|---|---|---|---|---|
| 4 | Commercial | 3905 | Church | 100 | NA | 0.00 |
| ID | Exterior | Roof Cover | Interior | HVAC | Perimeter | Units | Unit Type | Make |
|---|---|---|---|---|---|---|---|---|
| 4 | NA | NA | NA | Package Unit | 344 | 0 | NA | NA |
| ID | Square Ft | Condo SF | Total Basement SF | Finished Basement SF | Garage SF | Carport SF | Balcony SF | Porch SF |
|---|---|---|---|---|---|---|---|---|
| 4 | 7,200 | 0 | 0 | 0 | 0 | 0 | 0 | 0 |
| ID | Built As | Square Ft | Year Built | Stories | Length | Width |
|---|---|---|---|---|---|---|
| 4.00 | Church | 7,200 | 2020 | 1 | 0 | 0 |
| ID | Detail Type | Description | Units |
|---|---|---|---|
| 4 | Add On | Com Canopies Wood Average | 888.00 |
| Account | Parcel | Account Type | Tax Year | Buildings | Actual Value | Local Govt Assessed Value | School Assessed Value |
|---|---|---|---|---|---|---|---|
| R5618686 | 131314000018 | Exempt | 2026 | 3 | 2,601,978 | 638,240 | 640,720 |
| Type | Code | Description | Actual Value | Local Govt Assessed Value | School Assessed Value | Acres | Land SqFt |
|---|---|---|---|---|---|---|---|
| Improvement | 9259 | EXEMPT/RELIGIOUS NON RESIDENTIAL IMPS | 2,292,160 | 618,880 | 618,880 | 0.000 | 0 |
| Land | 9150 | EXEMPT/RELIGIOUS RESIDENTIAL LAND | 309,818 | 19,360 | 21,840 | 4.500 | 196,020 |
| Totals | - | - | 2,601,978 | 638,240 | 640,720 | 4.500 | 196,020 |
Comparable sales for your Residential or Commercial property may be found using our SALES SEARCH TOOL
Values are updated annually on May 1st for Real Property and June 15th for Personal Property and Oil and Gas.
| Account | Parcel | Account Type | Tax Year | Buildings | Actual Value | Local Govt Assessed Value | School Assessed Value |
|---|---|---|---|---|---|---|---|
| R5618686 | 131314000018 | Exempt | 2026 | 3 | 2,601,978 | 638,240 | 640,720 |
| Tax Area | District ID | District Name | Local Govt Mill Levy |
School Mill Levy |
Estimated Taxes |
|---|---|---|---|---|---|
| 2298 | 0900 | CARBON VALLEY REC | 4.427 | 0.000 | $2,825.49 |
| 2298 | 0305 | CENTRAL WELD COUNTY WATER (CWC) | 0.000 | 0.000 | $0.00 |
| 2298 | 0507 | FREDERICK-FIRESTONE FIRE | 15.559 | 0.000 | $9,930.38 |
| 2298 | 1050 | HIGH PLAINS LIBRARY | 3.044 | 0.000 | $1,942.80 |
| 2298 | 1202 | LONGMONT CONSERVATION | 0.000 | 0.000 | $0.00 |
| 2298 | 0301 | NORTHERN COLORADO WATER (NCW) | 1.000 | 0.000 | $638.24 |
| 2298 | 0213 | SCHOOL DIST RE1J-LONGMONT | 0.000 | 57.717 | $36,980.44 |
| 2298 | 0100 | WELD COUNTY | 15.956 | 0.000 | $10,183.76 |
| Total | - | - | 39.986 | 57.717 | $62,501.10 |
The estimate of tax is based on the prior year mill levy and the 2025 projected assessment rates. Mill levies and tax estimates will be updated yearly on December 22nd for the current year. Additional information can be found at https://assessor.weld.gov


