Account: R5738886
April 1, 2026
| Account | Parcel | Account Type | Tax Year | Buildings | Actual Value | Local Govt Assessed Value | School Assessed Value |
|---|---|---|---|---|---|---|---|
| R5738886 | 146718213007 | Residential | 2026 | 1 | 680,438 | 42,530 | 47,970 |
| Legal |
|---|
| ERI 24634 L7-8-9 BLK30 WEST ADD |
| Subdivision | Block | Lot | Land Economic Area |
|---|---|---|---|
| WEST ADD | 30 | 7 | ERIE TOWN |
| Property Address | Property City | Section | Township | Range |
|---|---|---|---|---|
| 744 HOLBROOK ST | ERIE | 18 | 01 | 68 |
| Account | Parcel | Account Type | Tax Year | Buildings | Actual Value | Local Govt Assessed Value | School Assessed Value |
|---|---|---|---|---|---|---|---|
| R5738886 | 146718213007 | Residential | 2026 | 1 | 680,438 | 42,530 | 47,970 |
| Account | Owner Name | Address |
|---|---|---|
| R5738886 | ADLER SHIRLEY L | 744 HOLBROOK STREET PO BOX 281 ERIE, CO 805160281 |
| Account | Parcel | Account Type | Tax Year | Buildings | Actual Value | Local Govt Assessed Value | School Assessed Value |
|---|---|---|---|---|---|---|---|
| R5738886 | 146718213007 | Residential | 2026 | 1 | 680,438 | 42,530 | 47,970 |
| Reception | Rec Date | Type | Grantor | Grantee | Doc Fee | Sale Date | Sale Price |
|---|---|---|---|---|---|---|---|
| 01981526 | 09-13-1984 | QCN | 0.00 | 01-01-1900 | 0 | ||
| 10256 | NA | SUB | SUBDIVISION | WEST ADD | 0.00 | NA | 0 |
| 2344876 | 08-05-1993 | WD | CHUGHTAI MARLA | CHUGHTAI SHIRIN M | 5.50 | 08-03-1993 | 55,000 |
| 2950654 | 05-10-2002 | QCN | CHUGHTAI SHIRIN M | KOLLAR SHIRIN M & DAVID A | 0.00 | 05-08-2002 | 0 |
| 3775804 | 06-23-2011 | WD | KOLLAR SHIRIN M | ADLER SHIRLEY L | 26.00 | 06-22-2011 | 260,000 |
| X0013106 | 09-13-1984 | CON | CHUGHTAI MARLA | 5.10 | 09-13-1984 | 51,000 |
*If the hyperlink for the reception number does not work, try a manual search in the Clerk and Recorder records. Use the Grantor or Grantee in your search.
| Account | Parcel | Account Type | Tax Year | Buildings | Actual Value | Local Govt Assessed Value | School Assessed Value |
|---|---|---|---|---|---|---|---|
| R5738886 | 146718213007 | Residential | 2026 | 1 | 680,438 | 42,530 | 47,970 |
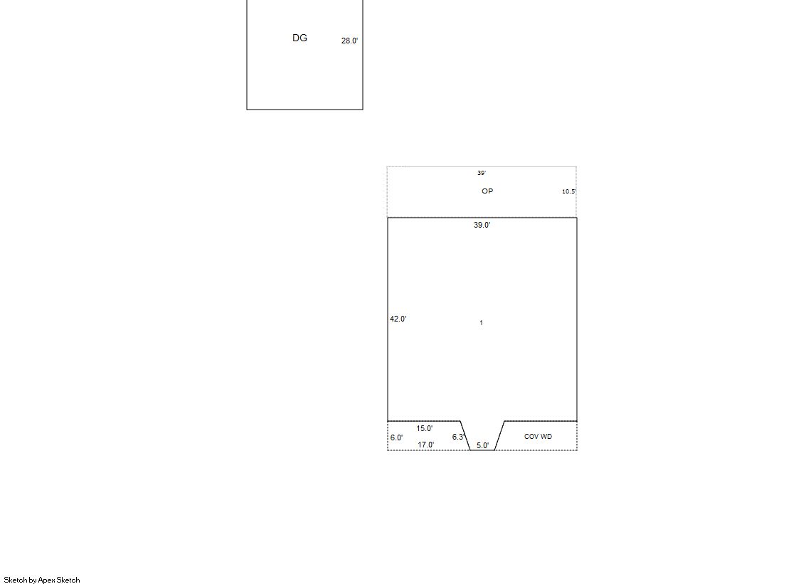
Building 1
| AccountNo | Building ID | Occupancy |
|---|---|---|
| R5738886 | 1 | Single Family Residential |
| ID | Type | NBHD | Occupancy | % Complete | Bedrooms | Baths |
|---|---|---|---|---|---|---|
| 1 | Residential | 3E0009 | Single Family Residential | 100 | 3 | 3.00 |
| ID | Exterior | Roof Cover | Interior | HVAC | Perimeter | Units | Unit Type | Make |
|---|---|---|---|---|---|---|---|---|
| 1 | Frame Vinyl | Composition Shingle | Drywall | Central Air to Air | 171 | 0 | NA | NA |
| ID | Square Ft | Condo SF | Total Basement SF | Finished Basement SF | Garage SF | Carport SF | Balcony SF | Porch SF |
|---|---|---|---|---|---|---|---|---|
| 1 | 1,680 | 0 | 0 | 0 | 672 | 0 | 0 | 410 |
| ID | Built As | Square Ft | Year Built | Stories | Length | Width |
|---|---|---|---|---|---|---|
| 1.00 | Ranch 1 Story | 1,680 | 1888 | 1 | 0 | 0 |
| ID | Detail Type | Description | Units |
|---|---|---|---|
| 1 | Fixture | Full Bath | 2.00 |
| 1 | Fixture | Half Bath | 1.00 |
| 1 | Garage | Detached | 672.00 |
| 1 | Porch | Cvrd Wood Deck | 192.00 |
| 1 | Porch | Slab Roof Ceil | 410.00 |
| Account | Parcel | Account Type | Tax Year | Buildings | Actual Value | Local Govt Assessed Value | School Assessed Value |
|---|---|---|---|---|---|---|---|
| R5738886 | 146718213007 | Residential | 2026 | 1 | 680,438 | 42,530 | 47,970 |
| Type | Code | Description | Actual Value | Local Govt Assessed Value | School Assessed Value | Acres | Land SqFt |
|---|---|---|---|---|---|---|---|
| Improvement | 1212 | SINGLE FAMILY RESIDENTIAL IMPROVEMENTS | 466,688 | 29,170 | 32,900 | 0.000 | 0 |
| Land | 1112 | SINGLE FAMILY RESIDENTIAL-LAND | 213,750 | 13,360 | 15,070 | 0.327 | 14,250 |
| Totals | - | - | 680,438 | 42,530 | 47,970 | 0.327 | 14,250 |
Comparable sales for your Residential or Commercial property may be found using our SALES SEARCH TOOL
Values are updated annually on May 1st for Real Property and June 15th for Personal Property and Oil and Gas.
| Account | Parcel | Account Type | Tax Year | Buildings | Actual Value | Local Govt Assessed Value | School Assessed Value |
|---|---|---|---|---|---|---|---|
| R5738886 | 146718213007 | Residential | 2026 | 1 | 680,438 | 42,530 | 47,970 |
| Tax Area | District ID | District Name | Local Govt Mill Levy |
School Mill Levy |
Estimated Taxes |
|---|---|---|---|---|---|
| 5379 | 0949 | ERIE HISTORIC URBAN RENEWAL | 0.000 | 0.000 | $0.00 |
| 5379 | 0404 | ERIE TOWN | 13.237 | 0.000 | $562.97 |
| 5379 | 1050 | HIGH PLAINS LIBRARY | 3.044 | 0.000 | $129.46 |
| 5379 | 0512 | MOUNTAIN VIEW FIRE PROTECTION DISTRICT | 16.342 | 0.000 | $695.03 |
| 5379 | 0301 | NORTHERN COLORADO WATER (NCW) | 1.000 | 0.000 | $42.53 |
| 5379 | 1360 | RTD | 0.000 | 0.000 | $0.00 |
| 5379 | 0213 | SCHOOL DIST RE1J-LONGMONT | 0.000 | 57.717 | $2,768.68 |
| 5379 | 0100 | WELD COUNTY | 15.956 | 0.000 | $678.61 |
| Total | - | - | 49.579 | 57.717 | $4,877.28 |
The estimate of tax is based on the prior year mill levy and the 2025 projected assessment rates. Mill levies and tax estimates will be updated yearly on December 22nd for the current year. Additional information can be found at https://assessor.weld.gov


