Account: R5755886
April 5, 2026
| Account | Parcel | Account Type | Tax Year | Buildings | Actual Value | Local Govt Assessed Value | School Assessed Value |
|---|---|---|---|---|---|---|---|
| R5755886 | 146718310013 | Residential | 2026 | 1 | 385,466 | 24,100 | 27,180 |
| Legal |
|---|
| ERI 24522 L10 BLK22 |
| Subdivision | Block | Lot | Land Economic Area |
|---|---|---|---|
| ERIE TOWN | 22 | 10 | ERIE TOWN |
| Property Address | Property City | Section | Township | Range |
|---|---|---|---|---|
| 560 PIERCE ST | ERIE | 18 | 01 | 68 |
| Account | Parcel | Account Type | Tax Year | Buildings | Actual Value | Local Govt Assessed Value | School Assessed Value |
|---|---|---|---|---|---|---|---|
| R5755886 | 146718310013 | Residential | 2026 | 1 | 385,466 | 24,100 | 27,180 |
| Account | Owner Name | Address |
|---|---|---|
| R5755886 | EVANGELISTA STANLEY | 560 PIERCE ST ERIE, CO 805165066 |
| Account | Parcel | Account Type | Tax Year | Buildings | Actual Value | Local Govt Assessed Value | School Assessed Value |
|---|---|---|---|---|---|---|---|
| R5755886 | 146718310013 | Residential | 2026 | 1 | 385,466 | 24,100 | 27,180 |
| Reception | Rec Date | Type | Grantor | Grantee | Doc Fee | Sale Date | Sale Price |
|---|---|---|---|---|---|---|---|
| 01804211 | 09-24-1979 | WDN | 0.00 | 01-01-1900 | 0 | ||
| 02366586 | 12-29-1993 | QCN | 0.00 | 12-20-1993 | 0 | ||
| 2738562 | 12-15-1999 | WD | SPRADLING KATHERINE M | HUMPHREYS MARION K | 13.00 | 12-10-1999 | 130,000 |
| 2967143 | 07-08-2002 | WD | HUMPHREYS MARION K | YOUNG PATTI A | 15.45 | 06-27-2002 | 154,500 |
| 4542232 | 11-18-2019 | WD | YOUNG PATTI A | EVANGELISTA STANLEY | 30.00 | 11-14-2019 | 300,000 |
| 552708 | NA | SUB | SUBDIVISION | ERIE | 0.00 | NA | 0 |
*If the hyperlink for the reception number does not work, try a manual search in the Clerk and Recorder records. Use the Grantor or Grantee in your search.
| Account | Parcel | Account Type | Tax Year | Buildings | Actual Value | Local Govt Assessed Value | School Assessed Value |
|---|---|---|---|---|---|---|---|
| R5755886 | 146718310013 | Residential | 2026 | 1 | 385,466 | 24,100 | 27,180 |
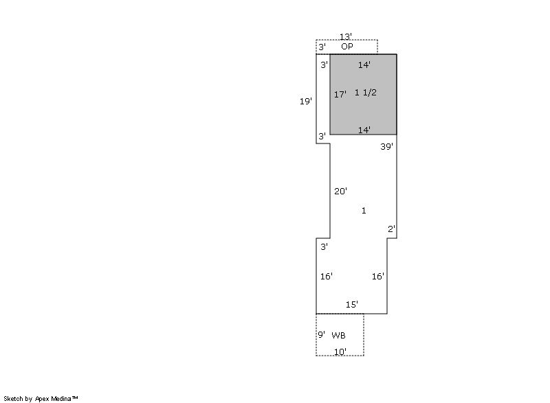
Building 1
| AccountNo | Building ID | Occupancy |
|---|---|---|
| R5755886 | 1 | Single Family Residential |
| ID | Type | NBHD | Occupancy | % Complete | Bedrooms | Baths |
|---|---|---|---|---|---|---|
| 1 | Residential | 3E0009 | Single Family Residential | 100 | 2 | 1.00 |
| ID | Exterior | Roof Cover | Interior | HVAC | Perimeter | Units | Unit Type | Make |
|---|---|---|---|---|---|---|---|---|
| 1 | Frame Siding | Composition Shingle | Drywall | Forced Air | 0 | 0 | NA | NA |
| ID | Square Ft | Condo SF | Total Basement SF | Finished Basement SF | Garage SF | Carport SF | Balcony SF | Porch SF |
|---|---|---|---|---|---|---|---|---|
| 1 | 1,081 | 0 | 0 | 0 | 0 | 0 | 90 | 39 |
| ID | Built As | Square Ft | Year Built | Stories | Length | Width |
|---|---|---|---|---|---|---|
| 1.00 | 1 1/2 Story Fin | 1,081 | 1927 | 2 | 0 | 0 |
| ID | Detail Type | Description | Units |
|---|---|---|---|
| 1 | Add On | Flue Only | 1.00 |
| 1 | Balcony | Wood Wood Fin | 90.00 |
| 1 | Fixture | Full Bath | 1.00 |
| 1 | Porch | Slab Roof Ceil | 39.00 |
| Account | Parcel | Account Type | Tax Year | Buildings | Actual Value | Local Govt Assessed Value | School Assessed Value |
|---|---|---|---|---|---|---|---|
| R5755886 | 146718310013 | Residential | 2026 | 1 | 385,466 | 24,100 | 27,180 |
| Type | Code | Description | Actual Value | Local Govt Assessed Value | School Assessed Value | Acres | Land SqFt |
|---|---|---|---|---|---|---|---|
| Improvement | 1212 | SINGLE FAMILY RESIDENTIAL IMPROVEMENTS | 329,216 | 20,580 | 23,210 | 0.000 | 0 |
| Land | 1112 | SINGLE FAMILY RESIDENTIAL-LAND | 56,250 | 3,520 | 3,970 | 0.086 | 3,750 |
| Totals | - | - | 385,466 | 24,100 | 27,180 | 0.086 | 3,750 |
Comparable sales for your Residential or Commercial property may be found using our SALES SEARCH TOOL
Values are updated annually on May 1st for Real Property and June 15th for Personal Property and Oil and Gas.
| Account | Parcel | Account Type | Tax Year | Buildings | Actual Value | Local Govt Assessed Value | School Assessed Value |
|---|---|---|---|---|---|---|---|
| R5755886 | 146718310013 | Residential | 2026 | 1 | 385,466 | 24,100 | 27,180 |
| Tax Area | District ID | District Name | Local Govt Mill Levy |
School Mill Levy |
Estimated Taxes |
|---|---|---|---|---|---|
| 5379 | 0949 | ERIE HISTORIC URBAN RENEWAL | 0.000 | 0.000 | $0.00 |
| 5379 | 0404 | ERIE TOWN | 13.237 | 0.000 | $319.01 |
| 5379 | 1050 | HIGH PLAINS LIBRARY | 3.044 | 0.000 | $73.36 |
| 5379 | 0512 | MOUNTAIN VIEW FIRE PROTECTION DISTRICT | 16.342 | 0.000 | $393.84 |
| 5379 | 0301 | NORTHERN COLORADO WATER (NCW) | 1.000 | 0.000 | $24.10 |
| 5379 | 1360 | RTD | 0.000 | 0.000 | $0.00 |
| 5379 | 0213 | SCHOOL DIST RE1J-LONGMONT | 0.000 | 57.717 | $1,568.75 |
| 5379 | 0100 | WELD COUNTY | 15.956 | 0.000 | $384.54 |
| Total | - | - | 49.579 | 57.717 | $2,763.60 |
The estimate of tax is based on the prior year mill levy and the 2025 projected assessment rates. Mill levies and tax estimates will be updated yearly on December 22nd for the current year. Additional information can be found at https://assessor.weld.gov



