Account: R5784986
April 1, 2026
| Account | Parcel | Account Type | Tax Year | Buildings | Actual Value | Local Govt Assessed Value | School Assessed Value |
|---|---|---|---|---|---|---|---|
| R5784986 | 146718336006 | Residential | 2026 | 1 | 577,098 | 36,070 | 40,690 |
| Legal |
|---|
| ERI S2-15E SEC E REPLAT L15 BLK2 SPARKS SUB |
| Subdivision | Block | Lot | Land Economic Area |
|---|---|---|---|
| SPARKS SUB RPLT L15 B2 | 2 | 15 | ERIE TOWN |
| Property Address | Property City | Section | Township | Range |
|---|---|---|---|---|
| 165 LAWLEY DR | ERIE | 18 | 01 | 68 |
| Account | Parcel | Account Type | Tax Year | Buildings | Actual Value | Local Govt Assessed Value | School Assessed Value |
|---|---|---|---|---|---|---|---|
| R5784986 | 146718336006 | Residential | 2026 | 1 | 577,098 | 36,070 | 40,690 |
| Account | Owner Name | Address |
|---|---|---|
| R5784986 | 165 LAWLEY DRIVE LLC | 165 LAWLEY DR ERIE, CO 805165004 |
| Account | Parcel | Account Type | Tax Year | Buildings | Actual Value | Local Govt Assessed Value | School Assessed Value |
|---|---|---|---|---|---|---|---|
| R5784986 | 146718336006 | Residential | 2026 | 1 | 577,098 | 36,070 | 40,690 |
| Reception | Rec Date | Type | Grantor | Grantee | Doc Fee | Sale Date | Sale Price |
|---|---|---|---|---|---|---|---|
| 01794165 | 06-19-1979 | WDN | 0.00 | 01-01-1900 | 0 | ||
| 1661956 | NA | SUB | SUBDIVISION | SPARKS RPLT LOT 15 BLK 2 | 0.00 | NA | 0 |
| 2216487 | 06-08-1990 | WD | MONARES DANIEL A & DARLENE S | PASCHEN WILLIAM P & MARYANNE | 7.50 | 05-31-1990 | 75,000 |
| 3974551 | 10-30-2013 | DTHC | PASCHEN MARYANNE EVELYN | PASCHEN MARYANNE EVELYN | 0.00 | 02-28-2013 | 0 |
| 4310956 | 06-16-2017 | AFFD | PASCHEN WILLIAM P; PASCHEN EVELYN | PASCHEN WILLIAM P | 0.00 | 06-15-2017 | 0 |
| 4310957 | 06-16-2017 | WDE | PASCHEN WILLIAM P | CHAVEZ WILLIAM H; CHAVEZ LUAN H | 23.50 | 06-15-2017 | 235,000 |
| 4720922 | 06-02-2021 | WD | CHAVEZ WILLIAM H; CHAVEZ LUAN H | GONZALES ZACHARY | 53.50 | 05-27-2021 | 535,000 |
| 4938260 | 01-03-2024 | WDN | GONZALES ZACHARY | 165 LAWLEY DRIVE LLC | 0.00 | 01-03-2024 | 0 |
*If the hyperlink for the reception number does not work, try a manual search in the Clerk and Recorder records. Use the Grantor or Grantee in your search.
| Account | Parcel | Account Type | Tax Year | Buildings | Actual Value | Local Govt Assessed Value | School Assessed Value |
|---|---|---|---|---|---|---|---|
| R5784986 | 146718336006 | Residential | 2026 | 1 | 577,098 | 36,070 | 40,690 |
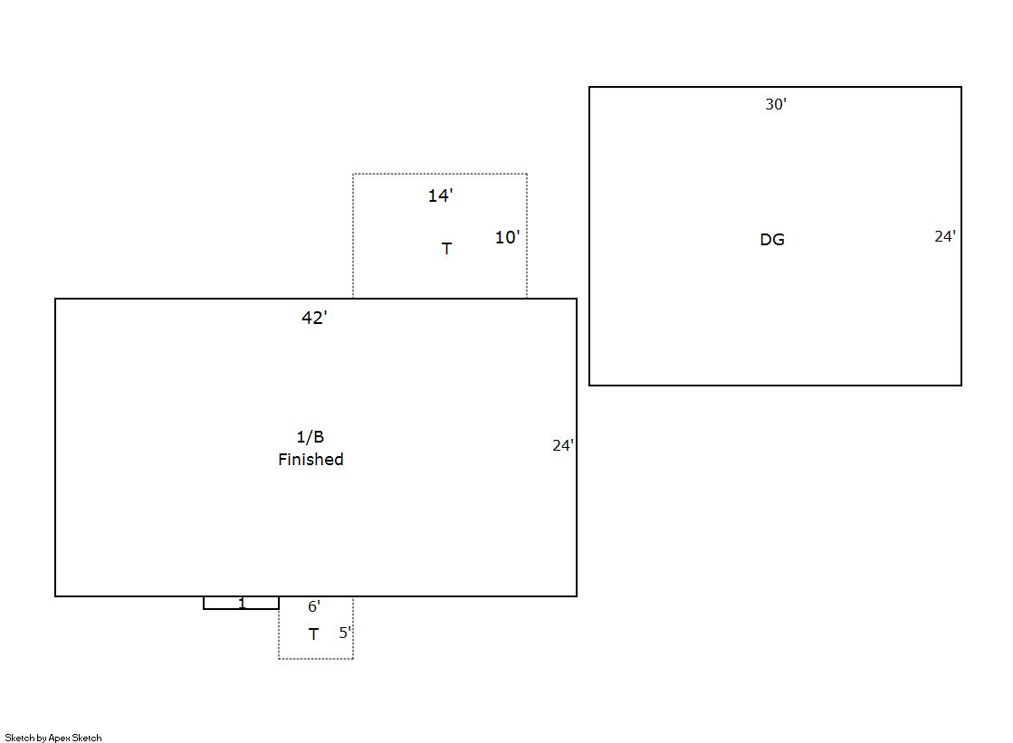
Building 1
| AccountNo | Building ID | Occupancy |
|---|---|---|
| R5784986 | 1 | Single Family Residential |
| ID | Type | NBHD | Occupancy | % Complete | Bedrooms | Baths |
|---|---|---|---|---|---|---|
| 1 | Residential | 3E0009 | Single Family Residential | 100 | 3 | 2.00 |
| ID | Exterior | Roof Cover | Interior | HVAC | Perimeter | Units | Unit Type | Make |
|---|---|---|---|---|---|---|---|---|
| 1 | Frame Hardboard | Composition Shingle | Drywall | Hot Water Baseboard | 0 | 0 | NA | NA |
| ID | Square Ft | Condo SF | Total Basement SF | Finished Basement SF | Garage SF | Carport SF | Balcony SF | Porch SF |
|---|---|---|---|---|---|---|---|---|
| 1 | 1,014 | 0 | 1,008 | 1,008 | 720 | 0 | 0 | 170 |
| ID | Built As | Square Ft | Year Built | Stories | Length | Width |
|---|---|---|---|---|---|---|
| 1.00 | Ranch 1 Story | 1,014 | 1976 | 1 | 0 | 0 |
| ID | Detail Type | Description | Units |
|---|---|---|---|
| 1 | Add On | Flue Only | 1.00 |
| 1 | Basement | Finished | 1008.00 |
| 1 | Basement | Total Basement SF | 1008.00 |
| 1 | Fixture | Full Bath | 2.00 |
| 1 | Garage | Detached | 720.00 |
| 1 | Porch | Open Slab | 170.00 |
| Account | Parcel | Account Type | Tax Year | Buildings | Actual Value | Local Govt Assessed Value | School Assessed Value |
|---|---|---|---|---|---|---|---|
| R5784986 | 146718336006 | Residential | 2026 | 1 | 577,098 | 36,070 | 40,690 |
| Type | Code | Description | Actual Value | Local Govt Assessed Value | School Assessed Value | Acres | Land SqFt |
|---|---|---|---|---|---|---|---|
| Improvement | 1212 | SINGLE FAMILY RESIDENTIAL IMPROVEMENTS | 437,523 | 27,350 | 30,850 | 0.000 | 0 |
| Land | 1112 | SINGLE FAMILY RESIDENTIAL-LAND | 139,575 | 8,720 | 9,840 | 0.214 | 9,305 |
| Totals | - | - | 577,098 | 36,070 | 40,690 | 0.214 | 9,305 |
Comparable sales for your Residential or Commercial property may be found using our SALES SEARCH TOOL
Values are updated annually on May 1st for Real Property and June 15th for Personal Property and Oil and Gas.
| Account | Parcel | Account Type | Tax Year | Buildings | Actual Value | Local Govt Assessed Value | School Assessed Value |
|---|---|---|---|---|---|---|---|
| R5784986 | 146718336006 | Residential | 2026 | 1 | 577,098 | 36,070 | 40,690 |
| Tax Area | District ID | District Name | Local Govt Mill Levy |
School Mill Levy |
Estimated Taxes |
|---|---|---|---|---|---|
| 5379 | 0949 | ERIE HISTORIC URBAN RENEWAL | 0.000 | 0.000 | $0.00 |
| 5379 | 0404 | ERIE TOWN | 13.237 | 0.000 | $477.46 |
| 5379 | 1050 | HIGH PLAINS LIBRARY | 3.044 | 0.000 | $109.80 |
| 5379 | 0512 | MOUNTAIN VIEW FIRE PROTECTION DISTRICT | 16.342 | 0.000 | $589.46 |
| 5379 | 0301 | NORTHERN COLORADO WATER (NCW) | 1.000 | 0.000 | $36.07 |
| 5379 | 1360 | RTD | 0.000 | 0.000 | $0.00 |
| 5379 | 0213 | SCHOOL DIST RE1J-LONGMONT | 0.000 | 57.717 | $2,348.50 |
| 5379 | 0100 | WELD COUNTY | 15.956 | 0.000 | $575.53 |
| Total | - | - | 49.579 | 57.717 | $4,136.82 |
The estimate of tax is based on the prior year mill levy and the 2025 projected assessment rates. Mill levies and tax estimates will be updated yearly on December 22nd for the current year. Additional information can be found at https://assessor.weld.gov



