Account: R5840486

April 2, 2026

Account Parcel Account Type Tax Year Buildings Actual Value Local Govt Assessed Value School Assessed Value
R5840486 146733101009 Agricultural 2026 3 432,796 29,320 32,690

Legal
RE1-A N160' E160' L1 RANCH EGGS INC SUB

Subdivision Block Lot Land Economic Area
RANCH EGGS INC SUB RANCH EGGS

Property Address Property City Section Township Range
923 COUNTY ROAD 7 WELD 33 01 68




Account Parcel Account Type Tax Year Buildings Actual Value Local Govt Assessed Value School Assessed Value
R5840486 146733101009 Agricultural 2026 3 432,796 29,320 32,690

Account Owner Name Address
R5840486 RANCH EGGS LLC 12460 1ST ST PO BOX 247 EASTLAKE, CO 806140247


Account Parcel Account Type Tax Year Buildings Actual Value Local Govt Assessed Value School Assessed Value
R5840486 146733101009 Agricultural 2026 3 432,796 29,320 32,690

Reception Rec Date Type Grantor Grantee Doc Fee Sale Date Sale Price
02059434 07-02-1986 QCN CAMPBALL GWENDOLYN R; AKA ZWECK GWENDOLYN R ZWECK JOHN L 0.00 06-30-1986 0
1488869 NA SUB SUBDIVISION RANCH EGGS INC 0.00 NA 0
2689652 04-27-1999 QCN ZWECK JOHN L ZWECK KATHY K 0.00 04-26-1999 0
3295321 06-16-2005 WD ZWECK KATHY K GARRETT JACK ROBERT; GARRETT KATHY ANNE 45.20 06-13-2005 452,000
4534997 10-23-2019 SWD GARRETT JACK ROBERT; GARRETT KATHY ANNE C CITY LLC 83.00 10-16-2019 830,000
4581535 04-09-2020 SWD C CITY LLC CARLSON TAVIA; CARLSON NIA; CARLSON TATE C; CARLSON ANYA; CARLSON ZANE K 45.03 03-10-2020 450,300
4593830 05-27-2020 SWD C CITY LLC CARLSON KENT D (9% INT); K&H LAND INVESTMENTS LLC (18% INT) 45.03 05-07-2020 450,300
4900689 05-30-2023 SWD C CITY LLC (73% INT); C CITY LLC (20%) C CITY LLC (4.4% INT); CARLSON KENT D (19% INT); ET ALL 21.39 04-28-2023 213,900
5073648 12-22-2025 SWD CARLSON KENT D (19% INT); K&H LAND INVESTMENTS LLC (23.6% INT); CARLSON T et al. RANCH EGGS LLC 0.00 07-23-2023 450,301



Account Parcel Account Type Tax Year Buildings Actual Value Local Govt Assessed Value School Assessed Value
R5840486 146733101009 Agricultural 2026 3 432,796 29,320 32,690

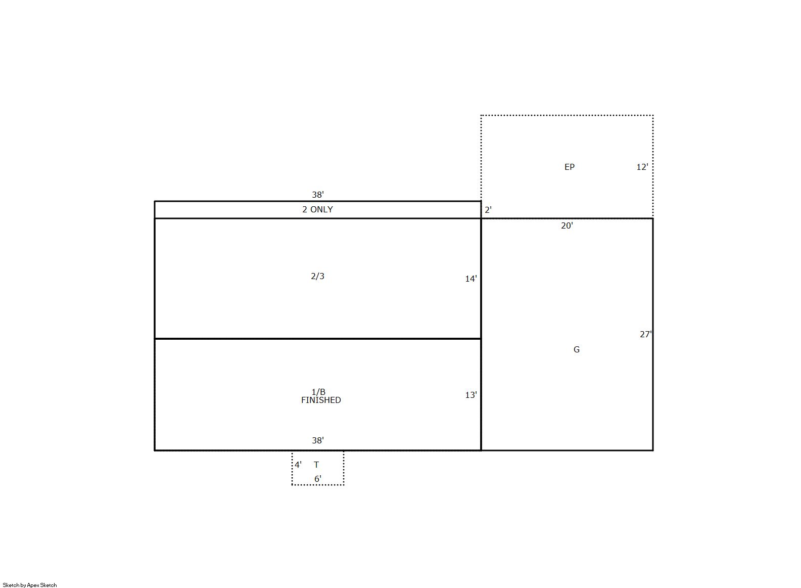
Building 1

AccountNo Building ID Occupancy
R5840486 1 Single Family Residential on Ag


ID Type NBHD Occupancy % Complete Bedrooms Baths
1 Residential 3R0005 Single Family Residential on Ag 100 4 2.00


ID Exterior Roof Cover Interior HVAC Perimeter Units Unit Type Make
1 Frame Masonry Veneer Composition Shingle Drywall Hot Water Baseboard 314 0 NA NA


ID Square Ft Condo SF Total Basement SF Finished Basement SF Garage SF Carport SF Balcony SF Porch SF
1 1,634 0 494 494 540 0 0 24


Built As Details for Building 1
ID Built As Square Ft Year Built Stories Length Width
1.00 Split Level 1,634 1966 1 0 0


Additional Details for Building 1
ID Detail Type Description Units
1 Add On Flue Only 1.00
1 Basement Finished 494.00
1 Basement Total Basement SF 494.00
1 Fixture Full Bath 2.00
1 Garage Attached 540.00
1 Porch Encl Solid Wall 240.00
1 Porch Open Slab 24.00



Building 2

AccountNo Building ID Occupancy
R5840486 2 Utility Building


ID Type NBHD Occupancy % Complete Bedrooms Baths
2 Out Building NA Utility Building 100 0 0.00


ID Exterior Roof Cover Interior HVAC Perimeter Units Unit Type Make
2 NA NA NA None 140 0 NA NA


ID Square Ft Condo SF Total Basement SF Finished Basement SF Garage SF Carport SF Balcony SF Porch SF
2 1,200 0 0 0 0 0 0 0


Built As Details for Building 2
ID Built As Square Ft Year Built Stories Length Width
2.00 Utility Building 1,200 1974 0 40 30


Additional Details for Building 2
ID Detail Type Description Units
2 Add On Shed Alumium 320.00



Building 3

AccountNo Building ID Occupancy
R5840486 3 Shed - Cattle


ID Type NBHD Occupancy % Complete Bedrooms Baths
3 Out Building NA Shed - Cattle 100 NA 0.00


ID Exterior Roof Cover Interior HVAC Perimeter Units Unit Type Make
3 NA NA NA NA 31 0 NA NA


ID Square Ft Condo SF Total Basement SF Finished Basement SF Garage SF Carport SF Balcony SF Porch SF
3 117 0 0 0 0 0 0 0


Built As Details for Building 3
ID Built As Square Ft Year Built Stories Length Width
3.00 Shed - Cattle 117 2000 1 13 9

No Additional Details for Building 3






Account Parcel Account Type Tax Year Buildings Actual Value Local Govt Assessed Value School Assessed Value
R5840486 146733101009 Agricultural 2026 3 432,796 29,320 32,690

Type Code Description Actual Value Local Govt Assessed Value School Assessed Value Acres Land SqFt
Improvement 4277 FARM/RANCH RESIDENCE-IMPS 421,838 26,360 29,740 0.000 0
Improvement 4279 FARM RANCH SUPPORT BLDGS 10,941 2,950 2,950 0.000 0
Land 4147 GRAZING LAND-AGRICULTURAL 17 10 0 1.000 43,560
Totals - - 432,796 29,320 32,690 1.000 43,560


Account Parcel Account Type Tax Year Buildings Actual Value Local Govt Assessed Value School Assessed Value
R5840486 146733101009 Agricultural 2026 3 432,796 29,320 32,690

Tax Area District ID District Name Local Govt
Mill Levy
School
Mill Levy
Estimated
Taxes
2390 1204 BOULDER VALLEY CONSERVATION 0.000 0.000 $0.00
2390 1050 HIGH PLAINS LIBRARY 3.044 0.000 $89.25
2390 0311 LEFT HAND WATER 0.000 0.000 $0.00
2390 0512 MOUNTAIN VIEW FIRE PROTECTION DISTRICT 16.342 0.000 $479.15
2390 0301 NORTHERN COLORADO WATER (NCW) 1.000 0.000 $29.32
2390 0213 SCHOOL DIST RE1J-LONGMONT 0.000 57.717 $1,886.77
2390 0100 WELD COUNTY 15.956 0.000 $467.83
Total - - 36.342 57.717 $2,952.32


The estimate of tax is based on the prior year mill levy and the 2025 projected assessment rates. Mill levies and tax estimates will be updated yearly on December 22nd for the current year. Additional information can be found at https://assessor.weld.gov










Select Reports to Print: