Account: R5845486
April 2, 2026
| Account | Parcel | Account Type | Tax Year | Buildings | Actual Value | Local Govt Assessed Value | School Assessed Value |
|---|---|---|---|---|---|---|---|
| R5845486 | 146734202018 | Residential | 2026 | 2 | 1,053,951 | 129,560 | 135,550 |
| Legal |
|---|
| 2RE1-1 L1 BLK1 RANCH EGGS INC SUB FILING #2 |
| Subdivision | Block | Lot | Land Economic Area |
|---|---|---|---|
| RANCH EGGS INC SUB FG#2 | 1 | 1 | RANCH EGGS |
| Property Address | Property City | Section | Township | Range |
|---|---|---|---|---|
| 984 COUNTY ROAD 7 | WELD | 34 | 01 | 68 |
| Account | Parcel | Account Type | Tax Year | Buildings | Actual Value | Local Govt Assessed Value | School Assessed Value |
|---|---|---|---|---|---|---|---|
| R5845486 | 146734202018 | Residential | 2026 | 2 | 1,053,951 | 129,560 | 135,550 |
| Account | Owner Name | Address |
|---|---|---|
| R5845486 | ROCKY MOUNTAIN HOUSE RABBIT RESCUE | PO BOX 1434 BROOMFIELD, CO 800381434 |
| Account | Parcel | Account Type | Tax Year | Buildings | Actual Value | Local Govt Assessed Value | School Assessed Value |
|---|---|---|---|---|---|---|---|
| R5845486 | 146734202018 | Residential | 2026 | 2 | 1,053,951 | 129,560 | 135,550 |
| Reception | Rec Date | Type | Grantor | Grantee | Doc Fee | Sale Date | Sale Price |
|---|---|---|---|---|---|---|---|
| 09-11-2006 | USR | USE BY SPECIAL REVIEW | USR-1359 HOME BUS. TROPHY COMPONENTS | 0.00 | NA | 0 | |
| 1505143 | NA | SUB | SUBDIVISION | RANCH EGGS INC FG#2 | 0.00 | NA | 0 |
| 2281601 | 03-20-1992 | WD | CURTIS RANCH INC | SUITTS GARY THOMAS & ROBIN ANN | 11.50 | 03-17-1992 | 115,000 |
| 2851509 | 05-25-2001 | WD | SUITTS GARY THOMAS & ROBIN ANN | TRAUPE RUTH & JOHN LEO | 32.00 | 05-17-2001 | 320,000 |
| 4076975 | 01-20-2015 | QCN | TRAUPE JOHN LEO; TRAUPE RUTH | WCR 7 LLC | 0.00 | 01-15-2015 | 0 |
| 4749587 | 08-25-2021 | SWD | WCR 7 LLC | ROCKY MOUNTAIN HOUSE RABBIT RESCUE | 93.80 | 08-23-2021 | 938,000 |
| 4820828 | 04-21-2022 | OTH | ZPAG21-0029 | ZPAG21-0029 | 0.00 | 04-21-2022 | 0 |
*If the hyperlink for the reception number does not work, try a manual search in the Clerk and Recorder records. Use the Grantor or Grantee in your search.
| Account | Parcel | Account Type | Tax Year | Buildings | Actual Value | Local Govt Assessed Value | School Assessed Value |
|---|---|---|---|---|---|---|---|
| R5845486 | 146734202018 | Residential | 2026 | 2 | 1,053,951 | 129,560 | 135,550 |
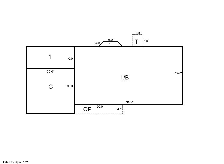
Building 1
| AccountNo | Building ID | Occupancy |
|---|---|---|
| R5845486 | 1 | Single Family Residential |
| ID | Type | NBHD | Occupancy | % Complete | Bedrooms | Baths |
|---|---|---|---|---|---|---|
| 1 | Residential | 3R0005 | Single Family Residential | 100 | 3 | 3.00 |
| ID | Exterior | Roof Cover | Interior | HVAC | Perimeter | Units | Unit Type | Make |
|---|---|---|---|---|---|---|---|---|
| 1 | Frame Masonry Veneer | Composition Shingle | Drywall | Central Air to Air | 0 | 0 | NA | NA |
| ID | Square Ft | Condo SF | Total Basement SF | Finished Basement SF | Garage SF | Carport SF | Balcony SF | Porch SF |
|---|---|---|---|---|---|---|---|---|
| 1 | 1,276 | 0 | 1,080 | 0 | 380 | 0 | 0 | 80 |
| ID | Built As | Square Ft | Year Built | Stories | Length | Width |
|---|---|---|---|---|---|---|
| 1.00 | Ranch 1 Story | 1,276 | 1967 | 1 | 0 | 0 |
| ID | Detail Type | Description | Units |
|---|---|---|---|
| 1 | Basement | Total Basement SF | 1080.00 |
| 1 | Fixture | Full Bath | 2.00 |
| 1 | Fixture | Half Bath | 1.00 |
| 1 | Garage | Attached | 380.00 |
| 1 | Porch | Open Slab | 20.00 |
| 1 | Porch | Slab Roof Ceil | 80.00 |
| 1 | Rough In | Rough In | 1.00 |
Building 2
| AccountNo | Building ID | Occupancy |
|---|---|---|
| R5845486 | 2 | Warehouse |
| ID | Type | NBHD | Occupancy | % Complete | Bedrooms | Baths |
|---|---|---|---|---|---|---|
| 2 | Commercial | NA | Warehouse | 100 | 0 | 0.00 |
| ID | Exterior | Roof Cover | Interior | HVAC | Perimeter | Units | Unit Type | Make |
|---|---|---|---|---|---|---|---|---|
| 2 | NA | NA | NA | Space Heater | 775 | 0 | NA | NA |
| ID | Square Ft | Condo SF | Total Basement SF | Finished Basement SF | Garage SF | Carport SF | Balcony SF | Porch SF |
|---|---|---|---|---|---|---|---|---|
| 2 | 11,672 | 0 | 0 | 0 | 0 | 0 | 0 | 0 |
| ID | Built As | Square Ft | Year Built | Stories | Length | Width |
|---|---|---|---|---|---|---|
| 2.00 | Storage Warehouse | 9,760 | 1971 | 1 | 0 | 0 |
| 2.00 | Storage Warehouse | 1,392 | 1983 | 1 | 0 | 0 |
| 2.00 | Storage Warehouse | 520 | 1979 | 1 | 0 | 0 |
| ID | Detail Type | Description | Units |
|---|---|---|---|
| 2 | Add On | Concrete Slab Average | 1500.00 |
| 2 | Add On | Finished Space in OutBldg | 1912.00 |
| 2 | Add On | Loading Docks Filled Conc Walls & Floor | 1000.00 |
| 2 | Add On | OB Plumbing Fixture | 3.00 |
| Account | Parcel | Account Type | Tax Year | Buildings | Actual Value | Local Govt Assessed Value | School Assessed Value |
|---|---|---|---|---|---|---|---|
| R5845486 | 146734202018 | Residential | 2026 | 2 | 1,053,951 | 129,560 | 135,550 |
| Type | Code | Description | Actual Value | Local Govt Assessed Value | School Assessed Value | Acres | Land SqFt |
|---|---|---|---|---|---|---|---|
| Improvement | 1212 | SINGLE FAMILY RESIDENTIAL IMPROVEMENTS | 410,623 | 25,660 | 28,950 | 0.000 | 0 |
| Improvement | 2235 | WAREHOUSE/STORAGE-IMPS | 145,803 | 39,370 | 39,370 | 0.000 | 0 |
| Land | 1112 | SINGLE FAMILY RESIDENTIAL-LAND | 336,388 | 21,020 | 23,720 | 3.000 | 130,680 |
| Land | 2135 | WAREHOUSE/STORAGE-LAND | 161,137 | 43,510 | 43,510 | 1.000 | 43,560 |
| Totals | - | - | 1,053,951 | 129,560 | 135,550 | 4.000 | 174,240 |
Comparable sales for your Residential or Commercial property may be found using our SALES SEARCH TOOL
Values are updated annually on May 1st for Real Property and June 15th for Personal Property and Oil and Gas.
| Account | Parcel | Account Type | Tax Year | Buildings | Actual Value | Local Govt Assessed Value | School Assessed Value |
|---|---|---|---|---|---|---|---|
| R5845486 | 146734202018 | Residential | 2026 | 2 | 1,053,951 | 129,560 | 135,550 |
| Tax Area | District ID | District Name | Local Govt Mill Levy |
School Mill Levy |
Estimated Taxes |
|---|---|---|---|---|---|
| 2390 | 1204 | BOULDER VALLEY CONSERVATION | 0.000 | 0.000 | $0.00 |
| 2390 | 1050 | HIGH PLAINS LIBRARY | 3.044 | 0.000 | $394.38 |
| 2390 | 0311 | LEFT HAND WATER | 0.000 | 0.000 | $0.00 |
| 2390 | 0512 | MOUNTAIN VIEW FIRE PROTECTION DISTRICT | 16.342 | 0.000 | $2,117.27 |
| 2390 | 0301 | NORTHERN COLORADO WATER (NCW) | 1.000 | 0.000 | $129.56 |
| 2390 | 0213 | SCHOOL DIST RE1J-LONGMONT | 0.000 | 57.717 | $7,823.54 |
| 2390 | 0100 | WELD COUNTY | 15.956 | 0.000 | $2,067.26 |
| Total | - | - | 36.342 | 57.717 | $12,532.01 |
The estimate of tax is based on the prior year mill levy and the 2025 projected assessment rates. Mill levies and tax estimates will be updated yearly on December 22nd for the current year. Additional information can be found at https://assessor.weld.gov



