Account: R5891986

April 1, 2026

Account Parcel Account Type Tax Year Buildings Actual Value Local Govt Assessed Value School Assessed Value
R5891986 146906104048 Residential 2026 1 213,393 13,340 15,040

Legal
DAC 2GL-142 L142 UNIT #2 GLENS OF DACONO EXC BEG SW COR L142 N31D32'W 100' TO NW COR LOT N58D27'E 9.66' S26D01'E 100.46' TO POB

Subdivision Block Lot Land Economic Area
GLENS OF DACONO UNIT #2 142 GLEN OF DACONO

Property Address Property City Section Township Range
913 GLEN MOOR ST DACONO 06 01 67




Account Parcel Account Type Tax Year Buildings Actual Value Local Govt Assessed Value School Assessed Value
R5891986 146906104048 Residential 2026 1 213,393 13,340 15,040

Account Owner Name Address
R5891986 FELTON PAUL G 913 GLEN MOOR ST DACONO, CO 805149510


Account Parcel Account Type Tax Year Buildings Actual Value Local Govt Assessed Value School Assessed Value
R5891986 146906104048 Residential 2026 1 213,393 13,340 15,040

Reception Rec Date Type Grantor Grantee Doc Fee Sale Date Sale Price
01627585 01-02-1974 WDN 0.00 01-01-1900 0
1553195 NA SUB SUBDIVISION GLENS OF DACONO #2 0.00 NA 0
3787297 08-22-2011 WD WHITEHEAD LYLE M JO ENTERPRISES LLLP 3.80 08-19-2011 38,000
3794416 09-23-2011 WD JO ENTERPRISES LLLP MUCKLER DONNA LIVING TRUST 6.00 09-22-2011 60,000
3996450 02-14-2014 WD MUCKLER DONNA LIVING TRUST CONNELLY ROGER R 5.70 02-14-2014 57,000
4227877 08-15-2016 WD CONNELLY ROGER R; CONNELLY PAIGE L FELTON PAUL G 9.40 08-10-2016 94,000



Account Parcel Account Type Tax Year Buildings Actual Value Local Govt Assessed Value School Assessed Value
R5891986 146906104048 Residential 2026 1 213,393 13,340 15,040

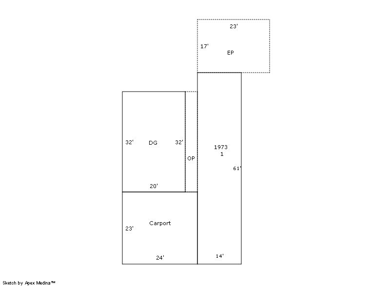
Building 1

AccountNo Building ID Occupancy
R5891986 1 Single Family Residential


ID Type NBHD Occupancy % Complete Bedrooms Baths
1 Manufactured Hm 3D0002 Single Family Residential 100 2 1.00


ID Exterior Roof Cover Interior HVAC Perimeter Units Unit Type Make
1 Metal Siding Metal Ribbed Paneling Central Air to Air 0 0 NA Detroiter


ID Square Ft Condo SF Total Basement SF Finished Basement SF Garage SF Carport SF Balcony SF Porch SF
1 854 0 0 0 640 552 0 391


Built As Details for Building 1
ID Built As Square Ft Year Built Stories Length Width
1.00 Mnfctrd Home 1 Story 854 1973 0 61 14


Additional Details for Building 1
ID Detail Type Description Units
1 Add On MH Flue Only 1.00
1 Add On MH Swamp Cooler 1.00
1 Carport Carport 552.00
1 Fixture Full Bath 1.00
1 Garage Detached 640.00
1 Porch Encl Solid Wall 391.00
1 Porch Slab Roof Ceil 128.00





Account Parcel Account Type Tax Year Buildings Actual Value Local Govt Assessed Value School Assessed Value
R5891986 146906104048 Residential 2026 1 213,393 13,340 15,040

Type Code Description Actual Value Local Govt Assessed Value School Assessed Value Acres Land SqFt
Improvement 1212 SINGLE FAMILY RESIDENTIAL IMPROVEMENTS 113,393 7,090 7,990 0.000 0
Land 1112 SINGLE FAMILY RESIDENTIAL-LAND 100,000 6,250 7,050 0.099 4,307
Totals - - 213,393 13,340 15,040 0.099 4,307


Account Parcel Account Type Tax Year Buildings Actual Value Local Govt Assessed Value School Assessed Value
R5891986 146906104048 Residential 2026 1 213,393 13,340 15,040

Tax Area District ID District Name Local Govt
Mill Levy
School
Mill Levy
Estimated
Taxes
2954 0900 CARBON VALLEY REC 4.427 0.000 $59.06
2954 0402 DACONO TOWN 22.491 0.000 $300.03
2954 0512 MOUNTAIN VIEW FIRE PROTECTION DISTRICT 16.342 0.000 $218.00
2954 0301 NORTHERN COLORADO WATER (NCW) 1.000 0.000 $13.34
2954 0213 SCHOOL DIST RE1J-LONGMONT 0.000 57.717 $868.06
2954 0620 ST VRAIN SANITATION 0.316 0.000 $4.22
2954 0100 WELD COUNTY 15.956 0.000 $212.85
Total - - 60.532 57.717 $1,675.56


The estimate of tax is based on the prior year mill levy and the 2025 projected assessment rates. Mill levies and tax estimates will be updated yearly on December 22nd for the current year. Additional information can be found at https://assessor.weld.gov










Select Reports to Print: