Account: R5937486

April 1, 2026

Account Parcel Account Type Tax Year Buildings Actual Value Local Govt Assessed Value School Assessed Value
R5937486 146906115002 Residential 2026 1 217,186 13,570 15,310

Legal
DAC 3GL1-58 L58 BLK1 GLENS OF DACONO UNIT #3

Subdivision Block Lot Land Economic Area
GLENS OF DACONO UNIT #3 1 58 GLEN OF DACONO

Property Address Property City Section Township Range
1034 GLEN DALE CIR DACONO 06 01 67




Account Parcel Account Type Tax Year Buildings Actual Value Local Govt Assessed Value School Assessed Value
R5937486 146906115002 Residential 2026 1 217,186 13,570 15,310

Account Owner Name Address
R5937486 ALLOWAY RITA PO BOX 113 DACONO, CO 805140113


Account Parcel Account Type Tax Year Buildings Actual Value Local Govt Assessed Value School Assessed Value
R5937486 146906115002 Residential 2026 1 217,186 13,570 15,310

Reception Rec Date Type Grantor Grantee Doc Fee Sale Date Sale Price
01753562 05-16-1978 WDN 0.00 01-01-1900 0
02185064 07-12-1989 PTD 0.00 07-11-1989 0
02221258 07-26-1990 QCN 0.00 07-17-1990 0
02221261 07-26-1990 SWDN 0.00 07-19-1990 0
02247200 04-16-1991 QCN 0.00 03-18-1991 0
1584213 NA SUB SUBDIVISION GLENS OF DACONO #3 0.00 NA 0
2269350 11-15-1991 QCN SCHERER RICHARD MARTIN GENEVA F 3.95 11-10-1991 39,500
3378296 04-11-2006 QCN MARTIN GENEVA F ALLOWAY RITA 0.00 01-01-2006 0
4765528 10-14-2021 MHN ALLOWAY RITA; ALLOWAY RITA E ALLOWAY RITA; ALLOWAY RITA E 0.00 09-27-2021 0
4765555 10-14-2021 MHN ALLOWAY RITA ALLOWAY RITA 0.00 09-27-2021 0



Account Parcel Account Type Tax Year Buildings Actual Value Local Govt Assessed Value School Assessed Value
R5937486 146906115002 Residential 2026 1 217,186 13,570 15,310

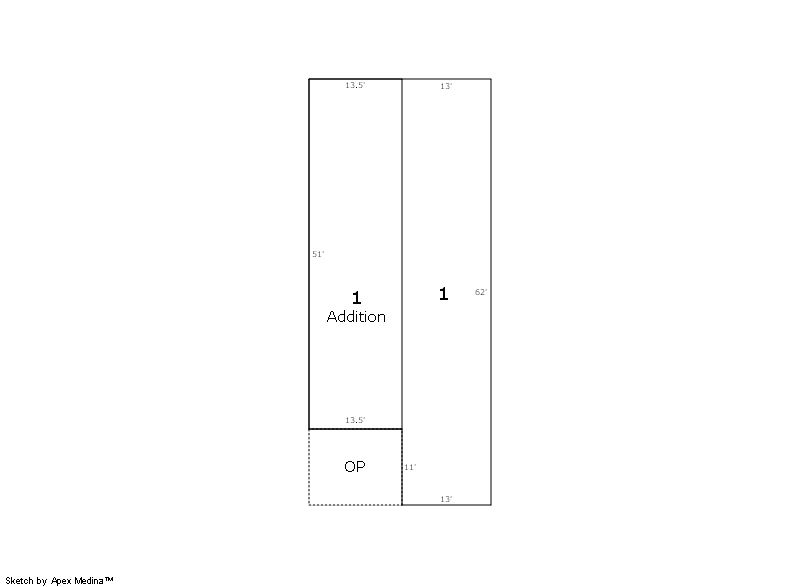
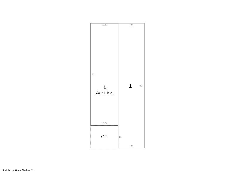
Building 1

AccountNo Building ID Occupancy
R5937486 1 Single Family Residential


ID Type NBHD Occupancy % Complete Bedrooms Baths
1 Manufactured Hm 3D0002 Single Family Residential 100 3 2.00


ID Exterior Roof Cover Interior HVAC Perimeter Units Unit Type Make
1 Vinyl Siding Shingle Comp Paneling Forced Air 0 0 NA Kirkwood


ID Square Ft Condo SF Total Basement SF Finished Basement SF Garage SF Carport SF Balcony SF Porch SF
1 1,494 0 0 0 0 0 0 148


Built As Details for Building 1
ID Built As Square Ft Year Built Stories Length Width
1.00 Mnfctrd Home 1 Story w/ Additions 1,494 1973 0 55 24


Additional Details for Building 1
ID Detail Type Description Units
1 Fixture Full Bath 2.00
1 Porch Slab Roof Ceil 148.00





Account Parcel Account Type Tax Year Buildings Actual Value Local Govt Assessed Value School Assessed Value
R5937486 146906115002 Residential 2026 1 217,186 13,570 15,310

Type Code Description Actual Value Local Govt Assessed Value School Assessed Value Acres Land SqFt
Improvement 1212 SINGLE FAMILY RESIDENTIAL IMPROVEMENTS 117,186 7,320 8,260 0.000 0
Land 1112 SINGLE FAMILY RESIDENTIAL-LAND 100,000 6,250 7,050 0.121 5,250
Totals - - 217,186 13,570 15,310 0.121 5,250


Account Parcel Account Type Tax Year Buildings Actual Value Local Govt Assessed Value School Assessed Value
R5937486 146906115002 Residential 2026 1 217,186 13,570 15,310

Tax Area District ID District Name Local Govt
Mill Levy
School
Mill Levy
Estimated
Taxes
2954 0900 CARBON VALLEY REC 4.427 0.000 $60.07
2954 0402 DACONO TOWN 22.491 0.000 $305.20
2954 0512 MOUNTAIN VIEW FIRE PROTECTION DISTRICT 16.342 0.000 $221.76
2954 0301 NORTHERN COLORADO WATER (NCW) 1.000 0.000 $13.57
2954 0213 SCHOOL DIST RE1J-LONGMONT 0.000 57.717 $883.65
2954 0620 ST VRAIN SANITATION 0.316 0.000 $4.29
2954 0100 WELD COUNTY 15.956 0.000 $216.52
Total - - 60.532 57.717 $1,705.07


The estimate of tax is based on the prior year mill levy and the 2025 projected assessment rates. Mill levies and tax estimates will be updated yearly on December 22nd for the current year. Additional information can be found at https://assessor.weld.gov










Select Reports to Print: