Account: R5991686
April 1, 2026
| Account | Parcel | Account Type | Tax Year | Buildings | Actual Value | Local Govt Assessed Value | School Assessed Value |
|---|---|---|---|---|---|---|---|
| R5991686 | 146906126015 | Residential | 2026 | 1 | 340,069 | 21,250 | 23,970 |
| Legal |
|---|
| DAC 3GL10-48 L48-A BLK10 REPLAT GLENS OF DACONO UNIT #3 |
| Subdivision | Block | Lot | Land Economic Area |
|---|---|---|---|
| GLENS OF DACONO UNIT #3 RPLT | 10 | 48A | GLEN OF DACONO |
| Property Address | Property City | Section | Township | Range |
|---|---|---|---|---|
| 1201 MAC LAUGHLIN CT | DACONO | 06 | 01 | 67 |
| Account | Parcel | Account Type | Tax Year | Buildings | Actual Value | Local Govt Assessed Value | School Assessed Value |
|---|---|---|---|---|---|---|---|
| R5991686 | 146906126015 | Residential | 2026 | 1 | 340,069 | 21,250 | 23,970 |
| Account | Owner Name | Address |
|---|---|---|
| R5991686 | 1201 MACLAUGHLIN COURT TRUST | 90 W 84TH AVE THORNTON, CO 802604808 |
| Account | Parcel | Account Type | Tax Year | Buildings | Actual Value | Local Govt Assessed Value | School Assessed Value |
|---|---|---|---|---|---|---|---|
| R5991686 | 146906126015 | Residential | 2026 | 1 | 340,069 | 21,250 | 23,970 |
| Reception | Rec Date | Type | Grantor | Grantee | Doc Fee | Sale Date | Sale Price |
|---|---|---|---|---|---|---|---|
| 01985129 | 10-15-1984 | QCN | 0.00 | 01-01-1900 | 0 | ||
| 02163892 | 12-05-1988 | QCN | 0.00 | 01-01-1900 | 0 | ||
| 02205470 | 02-15-1990 | QCN | 0.00 | 01-31-1990 | 0 | ||
| 02240795 | 02-07-1991 | QCN | 0.00 | 02-05-1991 | 0 | ||
| 1948106 | NA | SUB | SUBDIVISION | GLENS OF DACONO #3 RPLT LOTS 48-49 BLK 10 | 0.00 | NA | 0 |
| 2172172 | 03-01-1989 | WD | STAGE LLEWELLYN A/K/A L M OGL | RAMSEY GEORGE & JAMES L & PATR | 1.30 | 02-23-1989 | 13,000 |
| 2668714 | 01-22-1999 | PRDN | RAMSEY GENEVIE | MITCHELL JUDY C | 0.00 | 12-29-1998 | 0 |
| 2691364 | 05-04-1999 | WD | MITCHELL JUDY C | VERNON ARTHUR H JR & ELSIE M | 9.79 | 04-29-1999 | 97,900 |
| 2870623 | 08-01-2001 | WD | VERNON ARTHUR H JR & ELSIE M | FOWLER RALPH W & KAREN L | 14.24 | 07-27-2001 | 142,400 |
| 3395465 | 06-12-2006 | PTD | FOWLER RALPH W & KAREN L | US BANK NA | 0.00 | 06-12-2006 | 0 |
| 3411017 | 08-10-2006 | SWDN | US BANK NA | SECRETARY OF HOUSING & URBAN DEV | 0.00 | 08-01-2006 | 0 |
| 3444680 | 01-02-2007 | SWD | SECRETARY OF HOUSING & URBAN DEV | DREILING MICHAEL R | 0.00 | 12-15-2006 | 70,965 |
| 3803797 | 11-04-2011 | QCN | DREILING MICHAEL R | EVERSMAN MARY K | 0.00 | 07-18-2011 | 0 |
| 4342804 | 10-10-2017 | WD | EVERSMAN MARY K; MEDINA SANDRA L | ZARECOR MICHAEL J; ZARECOR BRENDA | 14.00 | 10-06-2017 | 140,000 |
| 4577698 | 03-25-2020 | WDN | ZARECOR MICHAEL J; ZARECOR BRENDA | EVERSMAN MARY K; MEDINA SANDRA L | 0.00 | 03-13-2020 | 0 |
| 4748456 | 08-23-2021 | WD | EVERSMAN MARY K; MEDINA SANDRA L | 1201 MACLAUGHLIN COURT TRUST | 20.00 | 08-12-2021 | 200,000 |
*If the hyperlink for the reception number does not work, try a manual search in the Clerk and Recorder records. Use the Grantor or Grantee in your search.
| Account | Parcel | Account Type | Tax Year | Buildings | Actual Value | Local Govt Assessed Value | School Assessed Value |
|---|---|---|---|---|---|---|---|
| R5991686 | 146906126015 | Residential | 2026 | 1 | 340,069 | 21,250 | 23,970 |
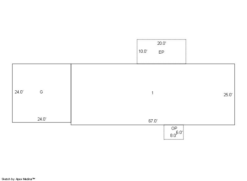
Building 2
| AccountNo | Building ID | Occupancy |
|---|---|---|
| R5991686 | 2 | Single Family Residential |
| ID | Type | NBHD | Occupancy | % Complete | Bedrooms | Baths |
|---|---|---|---|---|---|---|
| 2 | Manufactured Hm | 3D0002 | Single Family Residential | 100 | 3 | 2.00 |
| ID | Exterior | Roof Cover | Interior | HVAC | Perimeter | Units | Unit Type | Make |
|---|---|---|---|---|---|---|---|---|
| 2 | Hardboard Sheet | Shingle Comp | Paneling | Forced Air | 0 | 0 | NA | Unknown |
| ID | Square Ft | Condo SF | Total Basement SF | Finished Basement SF | Garage SF | Carport SF | Balcony SF | Porch SF |
|---|---|---|---|---|---|---|---|---|
| 2 | 1,675 | 0 | 0 | 0 | 576 | 0 | 0 | 48 |
| ID | Built As | Square Ft | Year Built | Stories | Length | Width |
|---|---|---|---|---|---|---|
| 2.00 | Mnfctrd Home 1 Story | 1,675 | 1980 | 1 | 67 | 26 |
| ID | Detail Type | Description | Units |
|---|---|---|---|
| 2 | Add On | MH Flue Only | 1.00 |
| 2 | Add On | MH Swamp Cooler | 1.00 |
| 2 | Fixture | Full Bath | 2.00 |
| 2 | Garage | Attached | 576.00 |
| 2 | Porch | Encl Solid Wall | 200.00 |
| 2 | Porch | Slab Roof Ceil | 48.00 |
| Account | Parcel | Account Type | Tax Year | Buildings | Actual Value | Local Govt Assessed Value | School Assessed Value |
|---|---|---|---|---|---|---|---|
| R5991686 | 146906126015 | Residential | 2026 | 1 | 340,069 | 21,250 | 23,970 |
| Type | Code | Description | Actual Value | Local Govt Assessed Value | School Assessed Value | Acres | Land SqFt |
|---|---|---|---|---|---|---|---|
| Improvement | 1212 | SINGLE FAMILY RESIDENTIAL IMPROVEMENTS | 240,069 | 15,000 | 16,920 | 0.000 | 0 |
| Land | 1112 | SINGLE FAMILY RESIDENTIAL-LAND | 100,000 | 6,250 | 7,050 | 0.314 | 13,660 |
| Totals | - | - | 340,069 | 21,250 | 23,970 | 0.314 | 13,660 |
Comparable sales for your Residential or Commercial property may be found using our SALES SEARCH TOOL
Values are updated annually on May 1st for Real Property and June 15th for Personal Property and Oil and Gas.
| Account | Parcel | Account Type | Tax Year | Buildings | Actual Value | Local Govt Assessed Value | School Assessed Value |
|---|---|---|---|---|---|---|---|
| R5991686 | 146906126015 | Residential | 2026 | 1 | 340,069 | 21,250 | 23,970 |
| Tax Area | District ID | District Name | Local Govt Mill Levy |
School Mill Levy |
Estimated Taxes |
|---|---|---|---|---|---|
| 2954 | 0900 | CARBON VALLEY REC | 4.427 | 0.000 | $94.07 |
| 2954 | 0402 | DACONO TOWN | 22.491 | 0.000 | $477.93 |
| 2954 | 0512 | MOUNTAIN VIEW FIRE PROTECTION DISTRICT | 16.342 | 0.000 | $347.27 |
| 2954 | 0301 | NORTHERN COLORADO WATER (NCW) | 1.000 | 0.000 | $21.25 |
| 2954 | 0213 | SCHOOL DIST RE1J-LONGMONT | 0.000 | 57.717 | $1,383.48 |
| 2954 | 0620 | ST VRAIN SANITATION | 0.316 | 0.000 | $6.72 |
| 2954 | 0100 | WELD COUNTY | 15.956 | 0.000 | $339.07 |
| Total | - | - | 60.532 | 57.717 | $2,669.78 |
The estimate of tax is based on the prior year mill levy and the 2025 projected assessment rates. Mill levies and tax estimates will be updated yearly on December 22nd for the current year. Additional information can be found at https://assessor.weld.gov



