Account: R6024986

April 1, 2026

Account Parcel Account Type Tax Year Buildings Actual Value Local Govt Assessed Value School Assessed Value
R6024986 146906403006 Residential 2026 1 261,902 16,370 18,460

Legal
DAC 3GL12-44 L44 BLK12 GLENS OF DACONO UNIT #3

Subdivision Block Lot Land Economic Area
GLENS OF DACONO UNIT #3 12 44 GLEN OF DACONO

Property Address Property City Section Township Range
1069 GLEN CREIGHTON DR DACONO 06 01 67




Account Parcel Account Type Tax Year Buildings Actual Value Local Govt Assessed Value School Assessed Value
R6024986 146906403006 Residential 2026 1 261,902 16,370 18,460

Account Owner Name Address
R6024986 1069 GCDR LLC 1073 GLEN CREIGHTON DR DACONO, CO 805149501


Account Parcel Account Type Tax Year Buildings Actual Value Local Govt Assessed Value School Assessed Value
R6024986 146906403006 Residential 2026 1 261,902 16,370 18,460

Reception Rec Date Type Grantor Grantee Doc Fee Sale Date Sale Price
01802401 09-06-1979 SWDN 0.00 01-01-1900 0
02135033 03-23-1988 DTHC 0.00 05-08-1987 0
1584213 NA SUB SUBDIVISION GLENS OF DACONO #3 0.00 NA 0
3577612 09-10-2008 PRDN WATSON NELSON H BENA LINDA I 0.00 07-28-2008 0
3579057 09-18-2008 PRDN WATSON NELSON H BENA LINDA I 0.00 07-28-2008 0
4914401 08-10-2023 WD BENA LINDA I 1069 GCDR LLC 12.50 08-07-2023 125,000



Account Parcel Account Type Tax Year Buildings Actual Value Local Govt Assessed Value School Assessed Value
R6024986 146906403006 Residential 2026 1 261,902 16,370 18,460

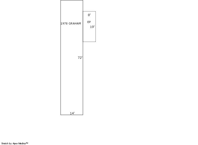
Building 1

AccountNo Building ID Occupancy
R6024986 1 Single Family Residential


ID Type NBHD Occupancy % Complete Bedrooms Baths
1 Manufactured Hm 3D0002 Single Family Residential 100 2 2.00


ID Exterior Roof Cover Interior HVAC Perimeter Units Unit Type Make
1 Vinyl Siding Metal Ribbed Paneling Forced Air 0 0 NA Graham


ID Square Ft Condo SF Total Basement SF Finished Basement SF Garage SF Carport SF Balcony SF Porch SF
1 1,008 0 0 0 0 0 0 152


Built As Details for Building 1
ID Built As Square Ft Year Built Stories Length Width
1.00 Mnfctrd Home 1 Story 1,008 1978 0 72 14


Additional Details for Building 1
ID Detail Type Description Units
1 Add On MH Fireplace Gas 1.00
1 Add On MH Swamp Cooler 1.00
1 Fixture Full Bath 2.00
1 Porch Encl Solid Wall 152.00





Account Parcel Account Type Tax Year Buildings Actual Value Local Govt Assessed Value School Assessed Value
R6024986 146906403006 Residential 2026 1 261,902 16,370 18,460

Type Code Description Actual Value Local Govt Assessed Value School Assessed Value Acres Land SqFt
Improvement 1212 SINGLE FAMILY RESIDENTIAL IMPROVEMENTS 161,902 10,120 11,410 0.000 0
Land 1135 MANUFACTURED HOUSING-LAND 100,000 6,250 7,050 0.115 5,000
Totals - - 261,902 16,370 18,460 0.115 5,000


Account Parcel Account Type Tax Year Buildings Actual Value Local Govt Assessed Value School Assessed Value
R6024986 146906403006 Residential 2026 1 261,902 16,370 18,460

Tax Area District ID District Name Local Govt
Mill Levy
School
Mill Levy
Estimated
Taxes
2954 0900 CARBON VALLEY REC 4.427 0.000 $72.47
2954 0402 DACONO TOWN 22.491 0.000 $368.18
2954 0512 MOUNTAIN VIEW FIRE PROTECTION DISTRICT 16.342 0.000 $267.52
2954 0301 NORTHERN COLORADO WATER (NCW) 1.000 0.000 $16.37
2954 0213 SCHOOL DIST RE1J-LONGMONT 0.000 57.717 $1,065.46
2954 0620 ST VRAIN SANITATION 0.316 0.000 $5.17
2954 0100 WELD COUNTY 15.956 0.000 $261.20
Total - - 60.532 57.717 $2,056.36


The estimate of tax is based on the prior year mill levy and the 2025 projected assessment rates. Mill levies and tax estimates will be updated yearly on December 22nd for the current year. Additional information can be found at https://assessor.weld.gov










Select Reports to Print: