Account: R6141686

April 1, 2026

Account Parcel Account Type Tax Year Buildings Actual Value Local Govt Assessed Value School Assessed Value
R6141686 147106111001 Residential 2026 1 312,584 19,530 22,040

Legal
FTL 15514 L19-20 BLK D WULFEKUHLERS REPLAT

Subdivision Block Lot Land Economic Area
WULFEKUHLERS ADD D 19 OLD FORT LUPTON

Property Address Property City Section Township Range
412 7TH ST FORT LUPTON 06 01 66




Account Parcel Account Type Tax Year Buildings Actual Value Local Govt Assessed Value School Assessed Value
R6141686 147106111001 Residential 2026 1 312,584 19,530 22,040

Account Owner Name Address
R6141686 SCHONING MARK 412 7TH ST FORT LUPTON, CO 806212115


Account Parcel Account Type Tax Year Buildings Actual Value Local Govt Assessed Value School Assessed Value
R6141686 147106111001 Residential 2026 1 312,584 19,530 22,040

Reception Rec Date Type Grantor Grantee Doc Fee Sale Date Sale Price
2279506 02-28-1992 WD WEBER JOHN A & DORIS MAE LENZIE RUSSELL T 4.40 02-27-1992 44,000
3025783 01-21-2003 QCN LENZIE RUSSELL T LENZIE RUSSELL T TRUSTEE OF 0.00 01-16-2003 0
3035389 02-24-2003 QCN LENZIE FAMILY TRUST WILEY JEANETTE M & MCSTAY NANCY 1/2 INT 0.00 02-19-2003 0
3064290 05-20-2003 QCN WILEY JEANNETTE M & MCSTAY NANCY WILEY JEANNETTE M 0.00 05-19-2003 0
3130102 11-26-2003 DTHC LENZIE RUSSELL THOMAS 0.00 01-27-2003 0
3130104 11-26-2003 WD LENZIE FAMILY TRUST (1/2 INT) & SCHONING MARK 12.40 11-18-2003 124,000
351631 NA SUB SUBDIVISION WULFEKUHLERS RPLT 0.00 NA 0



Account Parcel Account Type Tax Year Buildings Actual Value Local Govt Assessed Value School Assessed Value
R6141686 147106111001 Residential 2026 1 312,584 19,530 22,040

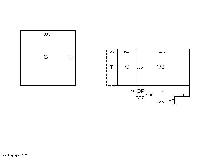
Building 1

AccountNo Building ID Occupancy
R6141686 1 Single Family Residential


ID Type NBHD Occupancy % Complete Bedrooms Baths
1 Residential 4F1005 Single Family Residential 100 2 1.00


ID Exterior Roof Cover Interior HVAC Perimeter Units Unit Type Make
1 Frame Hardboard Composition Shingle Drywall Floor/Wall Furnace 0 0 NA NA


ID Square Ft Condo SF Total Basement SF Finished Basement SF Garage SF Carport SF Balcony SF Porch SF
1 788 0 580 0 200 0 0 120


Built As Details for Building 1
ID Built As Square Ft Year Built Stories Length Width
1.00 Ranch 1 Story 788 1948 1 0 0


Additional Details for Building 1
ID Detail Type Description Units
1 Basement Total Basement SF 580.00
1 Fixture Full Bath 1.00
1 Garage Attached 200.00
1 Garage Detached 900.00
1 Porch Open Slab 120.00
1 Porch Slab Roof Ceil 30.00





Account Parcel Account Type Tax Year Buildings Actual Value Local Govt Assessed Value School Assessed Value
R6141686 147106111001 Residential 2026 1 312,584 19,530 22,040

Type Code Description Actual Value Local Govt Assessed Value School Assessed Value Acres Land SqFt
Improvement 1212 SINGLE FAMILY RESIDENTIAL IMPROVEMENTS 259,584 16,220 18,300 0.000 0
Land 1112 SINGLE FAMILY RESIDENTIAL-LAND 53,000 3,310 3,740 0.152 6,625
Totals - - 312,584 19,530 22,040 0.152 6,625


Account Parcel Account Type Tax Year Buildings Actual Value Local Govt Assessed Value School Assessed Value
R6141686 147106111001 Residential 2026 1 312,584 19,530 22,040

Tax Area District ID District Name Local Govt
Mill Levy
School
Mill Levy
Estimated
Taxes
5392 0700 AIMS JUNIOR COLLEGE 6.313 0.000 $123.29
5392 0407 FORT LUPTON CITY 42.931 0.000 $838.44
5392 0506 FORT LUPTON FIRE 9.357 0.000 $182.74
5392 0951 FORT LUPTON URBAN RENEWAL AUTHORITY (FLURA) 0.000 0.000 $0.00
5392 1050 HIGH PLAINS LIBRARY 3.044 0.000 $59.45
5392 0301 NORTHERN COLORADO WATER (NCW) 1.000 0.000 $19.53
5392 0208 SCHOOL DIST RE8-FORT LUPTON AND DACONO 0.000 18.198 $401.08
5392 0100 WELD COUNTY 15.956 0.000 $311.62
Total - - 78.601 18.198 $1,936.16


The estimate of tax is based on the prior year mill levy and the 2025 projected assessment rates. Mill levies and tax estimates will be updated yearly on December 22nd for the current year. Additional information can be found at https://assessor.weld.gov










Select Reports to Print: