Account: R6143286

April 4, 2026

Account Parcel Account Type Tax Year Buildings Actual Value Local Govt Assessed Value School Assessed Value
R6143286 147106112008 Residential 2026 1 338,575 21,160 23,870

Legal
FTL 15517 L5-6 BLK4 TWOMBLYS

Subdivision Block Lot Land Economic Area
TWOMBLYS ADD 4 5 OLD FORT LUPTON

Property Address Property City Section Township Range
623 PARK AVE FORT LUPTON 06 01 66




Account Parcel Account Type Tax Year Buildings Actual Value Local Govt Assessed Value School Assessed Value
R6143286 147106112008 Residential 2026 1 338,575 21,160 23,870

Account Owner Name Address
R6143286 NICHOLS ALYSSA NICOLE 623 PARK AVE FORT LUPTON, CO 806212142
R6143286 RAMOS-SOLEDAD LORENZO


Account Parcel Account Type Tax Year Buildings Actual Value Local Govt Assessed Value School Assessed Value
R6143286 147106112008 Residential 2026 1 338,575 21,160 23,870

Reception Rec Date Type Grantor Grantee Doc Fee Sale Date Sale Price
01891040 05-10-1982 QCN 0.00 01-01-1900 0
02112025 08-27-1987 WDN 0.00 08-26-1987 0
2112026 08-27-1987 WD GARCIA VIVIAN J & LUCERO PAUL DICKINSON STEPHEN G & DIANTHA 4.40 08-21-1987 44,000
4992880 11-05-2024 DTHC DICKINSON DIANTHA D DICKINSON STEPHEN G 0.00 01-08-2023 0
4992882 11-05-2024 SWD DICKINSON STEPHEN G NICHOLS ALYSSA NICOLE; RAMOS-SOLEDAD LORENZO 38.00 11-04-2024 380,000
88833 NA SUB SUBDIVISION TWOMBLYS ADD 0.00 NA 0



Account Parcel Account Type Tax Year Buildings Actual Value Local Govt Assessed Value School Assessed Value
R6143286 147106112008 Residential 2026 1 338,575 21,160 23,870

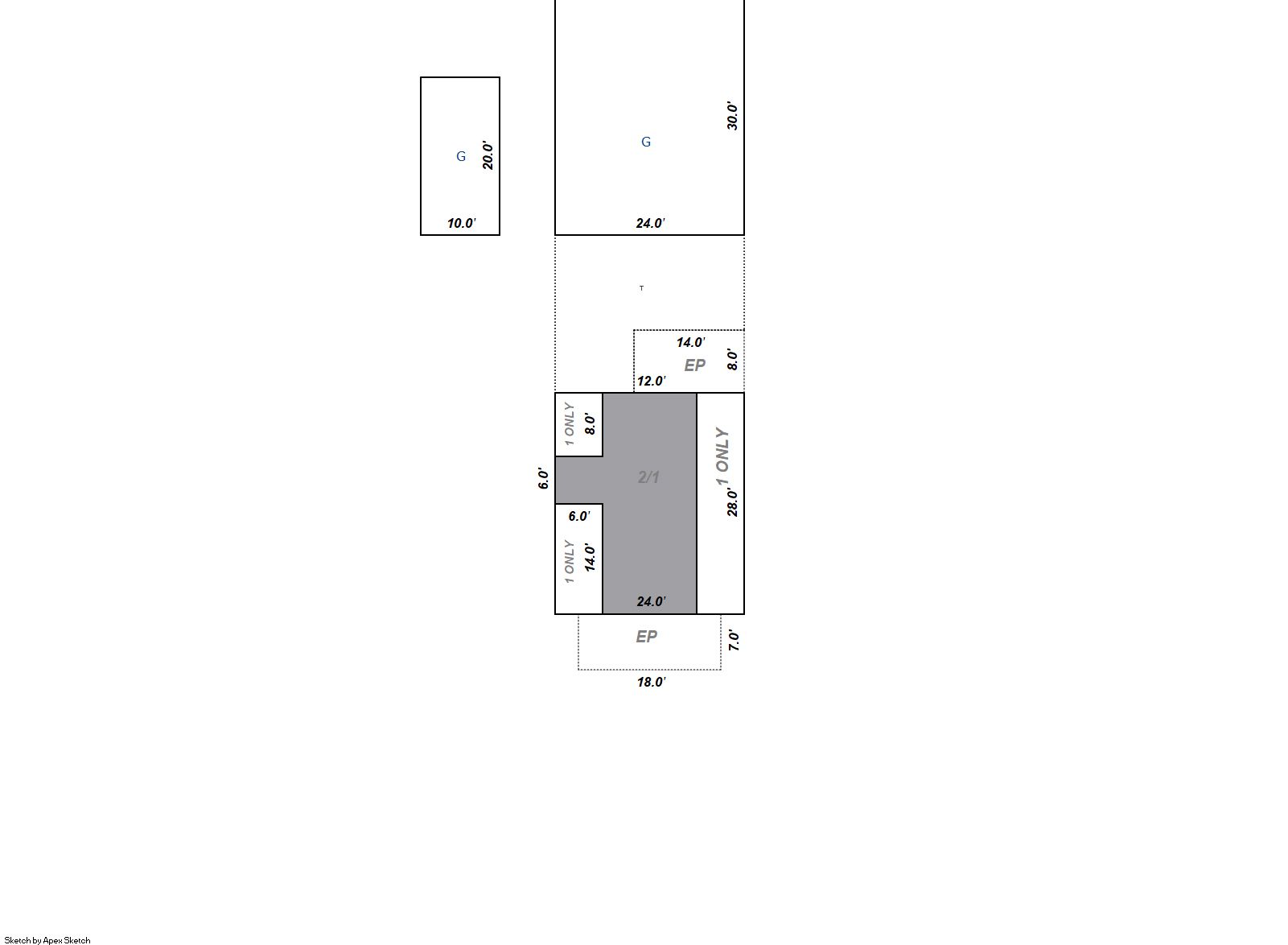
Building 1

AccountNo Building ID Occupancy
R6143286 1 Single Family Residential


ID Type NBHD Occupancy % Complete Bedrooms Baths
1 Residential 4F1005 Single Family Residential 100 3 1.00


ID Exterior Roof Cover Interior HVAC Perimeter Units Unit Type Make
1 Frame Siding Composition Shingle Drywall Central Air to Air 196 0 NA NA


ID Square Ft Condo SF Total Basement SF Finished Basement SF Garage SF Carport SF Balcony SF Porch SF
1 1,044 0 0 0 920 0 0 368


Built As Details for Building 1
ID Built As Square Ft Year Built Stories Length Width
1.00 1 1/2 Story Fin 1,044 1908 2 0 0


Additional Details for Building 1
ID Detail Type Description Units
1 Add On Flue Only 1.00
1 Fixture Full Bath 1.00
1 Garage Detached 920.00
1 Porch Encl Solid Wall 238.00
1 Porch Open Slab 368.00





Account Parcel Account Type Tax Year Buildings Actual Value Local Govt Assessed Value School Assessed Value
R6143286 147106112008 Residential 2026 1 338,575 21,160 23,870

Type Code Description Actual Value Local Govt Assessed Value School Assessed Value Acres Land SqFt
Improvement 1212 SINGLE FAMILY RESIDENTIAL IMPROVEMENTS 283,247 17,700 19,970 0.000 0
Land 1112 SINGLE FAMILY RESIDENTIAL-LAND 55,328 3,460 3,900 0.159 6,916
Totals - - 338,575 21,160 23,870 0.159 6,916


Account Parcel Account Type Tax Year Buildings Actual Value Local Govt Assessed Value School Assessed Value
R6143286 147106112008 Residential 2026 1 338,575 21,160 23,870

Tax Area District ID District Name Local Govt
Mill Levy
School
Mill Levy
Estimated
Taxes
5392 0700 AIMS JUNIOR COLLEGE 6.313 0.000 $133.58
5392 0407 FORT LUPTON CITY 42.931 0.000 $908.42
5392 0506 FORT LUPTON FIRE 9.357 0.000 $197.99
5392 0951 FORT LUPTON URBAN RENEWAL AUTHORITY (FLURA) 0.000 0.000 $0.00
5392 1050 HIGH PLAINS LIBRARY 3.044 0.000 $64.41
5392 0301 NORTHERN COLORADO WATER (NCW) 1.000 0.000 $21.16
5392 0208 SCHOOL DIST RE8-FORT LUPTON AND DACONO 0.000 18.198 $434.39
5392 0100 WELD COUNTY 15.956 0.000 $337.63
Total - - 78.601 18.198 $2,097.58


The estimate of tax is based on the prior year mill levy and the 2025 projected assessment rates. Mill levies and tax estimates will be updated yearly on December 22nd for the current year. Additional information can be found at https://assessor.weld.gov










Select Reports to Print: