Account: R6147486

April 1, 2026

Account Parcel Account Type Tax Year Buildings Actual Value Local Govt Assessed Value School Assessed Value
R6147486 147106117001 Residential 2026 1 232,855 14,560 16,420

Legal
FTL 15475 L13-14 BLK6 WULFEKUHLERS

Subdivision Block Lot Land Economic Area
WULFEKUHLERS ADD 6 13 OLD FORT LUPTON

Property Address Property City Section Township Range
110 6TH ST FORT LUPTON 06 01 66




Account Parcel Account Type Tax Year Buildings Actual Value Local Govt Assessed Value School Assessed Value
R6147486 147106117001 Residential 2026 1 232,855 14,560 16,420

Account Owner Name Address
R6147486 MONTELLANO CARLOS 110 6TH ST FORT LUPTON, CO 806212102


Account Parcel Account Type Tax Year Buildings Actual Value Local Govt Assessed Value School Assessed Value
R6147486 147106117001 Residential 2026 1 232,855 14,560 16,420

Reception Rec Date Type Grantor Grantee Doc Fee Sale Date Sale Price
01985773 10-22-1984 WDN 0.00 01-01-1900 0
2213017 05-07-1990 WD FAST DELBERT L FIRST SECURITY BANK 4.68 05-12-1989 46,800
2241665 02-19-1991 WD FIRST SECURITY BANK PARMETER ROBERT E 4.20 02-15-1991 42,000
327483 NA SUB SUBDIVISION WULFEKUHLERS ADD 0.00 NA 0
3859387 07-17-2012 PTDE PARMETER ROBERT E BEAR STEARNS ABS I LLC 2004-HE4 0.00 07-16-2012 0
3877388 10-01-2012 SWD U S BANK NATIONAL ASSOCIATION VILLELA JOSE R 6.60 09-25-2012 66,000
4006779 04-03-2014 QCN VILLELA JOSE R VILLELA JOSE R 0.00 03-20-2014 0
4255127 11-21-2016 QCN VILLELA JOSE R; GARFIO JOSE MANUEL VILLELA VILLELA JOSE M 0.00 11-21-2016 0
4385578 03-26-2018 WD VILLELA JOSE M KRIZNAR BRADLEY; KRIZNAR CHERYL 22.50 03-23-2018 225,000
4926641 10-19-2023 WD KRIZNAR CHERYL; KRIZNAR BRADLEY MONTELLANO CARLOS 34.80 10-18-2023 348,000
X0013975 10-22-1984 CON FAST DELBERT L 1.30 10-22-1984 13,000



Account Parcel Account Type Tax Year Buildings Actual Value Local Govt Assessed Value School Assessed Value
R6147486 147106117001 Residential 2026 1 232,855 14,560 16,420

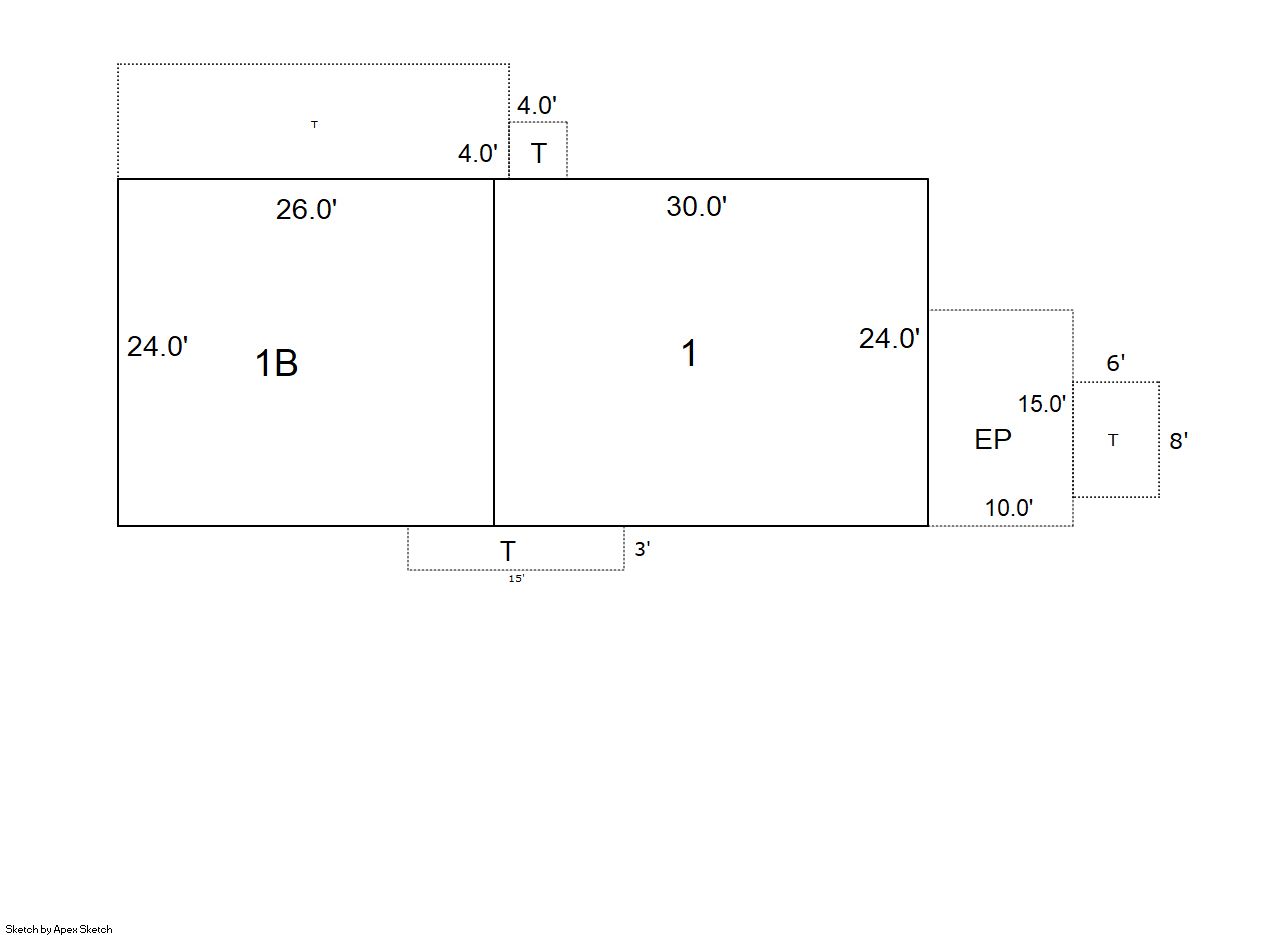
Building 1

AccountNo Building ID Occupancy
R6147486 1 Single Family Residential


ID Type NBHD Occupancy % Complete Bedrooms Baths
1 Manufactured Hm 4F1005 Single Family Residential 100 5 2.00


ID Exterior Roof Cover Interior HVAC Perimeter Units Unit Type Make
1 Hardboard Sheet Shingle Comp Drywall Central Air to Air 160 0 NA NA


ID Square Ft Condo SF Total Basement SF Finished Basement SF Garage SF Carport SF Balcony SF Porch SF
1 1,344 0 624 624 0 0 0 150


Built As Details for Building 1
ID Built As Square Ft Year Built Stories Length Width
1.00 Mnfctrd Home 1 Story 1,344 1975 1 56 24


Additional Details for Building 1
ID Detail Type Description Units
1 Add On MH Flue Only 1.00
1 Basement Finished 624.00
1 Basement Total Basement SF 624.00
1 Fixture Full Bath 1.00
1 Fixture Half Bath 1.00
1 Porch Encl Solid Wall 150.00
1 Porch Open Slab 325.00





Account Parcel Account Type Tax Year Buildings Actual Value Local Govt Assessed Value School Assessed Value
R6147486 147106117001 Residential 2026 1 232,855 14,560 16,420

Type Code Description Actual Value Local Govt Assessed Value School Assessed Value Acres Land SqFt
Improvement 1212 SINGLE FAMILY RESIDENTIAL IMPROVEMENTS 177,855 11,120 12,540 0.000 0
Land 1112 SINGLE FAMILY RESIDENTIAL-LAND 55,000 3,440 3,880 0.158 6,875
Totals - - 232,855 14,560 16,420 0.158 6,875


Account Parcel Account Type Tax Year Buildings Actual Value Local Govt Assessed Value School Assessed Value
R6147486 147106117001 Residential 2026 1 232,855 14,560 16,420

Tax Area District ID District Name Local Govt
Mill Levy
School
Mill Levy
Estimated
Taxes
5392 0700 AIMS JUNIOR COLLEGE 6.313 0.000 $91.92
5392 0407 FORT LUPTON CITY 42.931 0.000 $625.08
5392 0506 FORT LUPTON FIRE 9.357 0.000 $136.24
5392 0951 FORT LUPTON URBAN RENEWAL AUTHORITY (FLURA) 0.000 0.000 $0.00
5392 1050 HIGH PLAINS LIBRARY 3.044 0.000 $44.32
5392 0301 NORTHERN COLORADO WATER (NCW) 1.000 0.000 $14.56
5392 0208 SCHOOL DIST RE8-FORT LUPTON AND DACONO 0.000 18.198 $298.81
5392 0100 WELD COUNTY 15.956 0.000 $232.32
Total - - 78.601 18.198 $1,443.24


The estimate of tax is based on the prior year mill levy and the 2025 projected assessment rates. Mill levies and tax estimates will be updated yearly on December 22nd for the current year. Additional information can be found at https://assessor.weld.gov










Select Reports to Print: