Account: R6149886

April 1, 2026

Account Parcel Account Type Tax Year Buildings Actual Value Local Govt Assessed Value School Assessed Value
R6149886 147106119002 Residential 2026 1 408,539 25,540 28,800

Legal
FTL 15378 L15-16 BLK8 WULFEKUHLERS

Subdivision Block Lot Land Economic Area
WULFEKUHLERS ADD 8 15 OLD FORT LUPTON

Property Address Property City Section Township Range
205 4TH ST FORT LUPTON 06 01 66




Account Parcel Account Type Tax Year Buildings Actual Value Local Govt Assessed Value School Assessed Value
R6149886 147106119002 Residential 2026 1 408,539 25,540 28,800

Account Owner Name Address
R6149886 QUIJADA JUAN F 2037 E 114TH ST LOS ANGELES, CA 900592219
R6149886 QUIJADA VICTOR A


Account Parcel Account Type Tax Year Buildings Actual Value Local Govt Assessed Value School Assessed Value
R6149886 147106119002 Residential 2026 1 408,539 25,540 28,800

Reception Rec Date Type Grantor Grantee Doc Fee Sale Date Sale Price
02046575 03-18-1986 QCN 0.00 01-01-1900 0
02275052 01-14-1992 WDN 0.00 11-15-1991 0
2117954 10-16-1987 WD BACA MARK & TALONA CADDELL DAVID P & DIANE M 6.89 10-14-1987 68,900
2567903 09-09-1997 QCN BACA ROBERT H BACA ROBERT H & ELVIRA M 0.00 08-29-1997 0
3009558 11-27-2002 DTHC BACA ROBERT H BACA ELVIRA M 0.00 04-14-2001 0
327483 NA SUB SUBDIVISION WULFEKUHLERS ADD 0.00 NA 0
4833523 06-08-2022 DTHC BACA ELVIRA M BACA ELVIRA M (HEIRS OF) 0.00 06-01-2022 0
4860951 10-13-2022 AFFD BUSSELL SCOTT BACA ROBERT H 0.00 10-06-2022 0
4860952 10-13-2022 PRDE BACA ELVIRA M (HEIRS OF) QUIJADA JUAN F; QUIJADA VICTOR A 37.00 10-06-2022 370,000



Account Parcel Account Type Tax Year Buildings Actual Value Local Govt Assessed Value School Assessed Value
R6149886 147106119002 Residential 2026 1 408,539 25,540 28,800

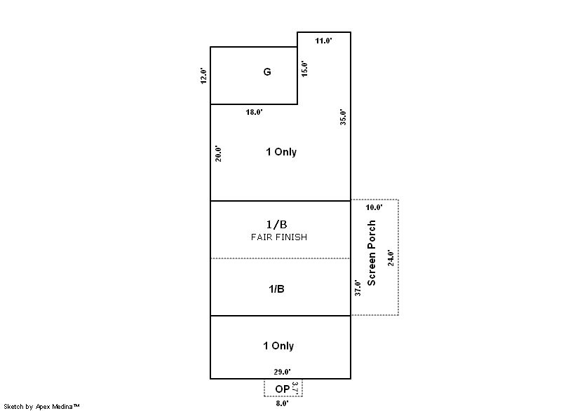
Building 1

AccountNo Building ID Occupancy
R6149886 1 Single Family Residential


ID Type NBHD Occupancy % Complete Bedrooms Baths
1 Residential 4F1005 Single Family Residential 100 3 3.00


ID Exterior Roof Cover Interior HVAC Perimeter Units Unit Type Make
1 Frame Hardboard Composition Shingle Drywall Central Air to Air 0 0 NA NA


ID Square Ft Condo SF Total Basement SF Finished Basement SF Garage SF Carport SF Balcony SF Porch SF
1 1,818 0 696 348 216 0 0 30


Built As Details for Building 1
ID Built As Square Ft Year Built Stories Length Width
1.00 Ranch 1 Story 1,818 1936 1 0 0


Additional Details for Building 1
ID Detail Type Description Units
1 Add On Fireplace Wood 1.00
1 Basement Fair Finish 348.00
1 Basement Total Basement SF 696.00
1 Fixture Full Bath 2.00
1 Fixture Half Bath 1.00
1 Garage Attached 216.00
1 Porch Screen 240.00
1 Porch Slab Roof 30.00
1 Rough In Rough In 1.00





Account Parcel Account Type Tax Year Buildings Actual Value Local Govt Assessed Value School Assessed Value
R6149886 147106119002 Residential 2026 1 408,539 25,540 28,800

Type Code Description Actual Value Local Govt Assessed Value School Assessed Value Acres Land SqFt
Improvement 1212 SINGLE FAMILY RESIDENTIAL IMPROVEMENTS 353,539 22,100 24,920 0.000 0
Land 1112 SINGLE FAMILY RESIDENTIAL-LAND 55,000 3,440 3,880 0.158 6,875
Totals - - 408,539 25,540 28,800 0.158 6,875


Account Parcel Account Type Tax Year Buildings Actual Value Local Govt Assessed Value School Assessed Value
R6149886 147106119002 Residential 2026 1 408,539 25,540 28,800

Tax Area District ID District Name Local Govt
Mill Levy
School
Mill Levy
Estimated
Taxes
5392 0700 AIMS JUNIOR COLLEGE 6.313 0.000 $161.23
5392 0407 FORT LUPTON CITY 42.931 0.000 $1,096.46
5392 0506 FORT LUPTON FIRE 9.357 0.000 $238.98
5392 0951 FORT LUPTON URBAN RENEWAL AUTHORITY (FLURA) 0.000 0.000 $0.00
5392 1050 HIGH PLAINS LIBRARY 3.044 0.000 $77.74
5392 0301 NORTHERN COLORADO WATER (NCW) 1.000 0.000 $25.54
5392 0208 SCHOOL DIST RE8-FORT LUPTON AND DACONO 0.000 18.198 $524.10
5392 0100 WELD COUNTY 15.956 0.000 $407.52
Total - - 78.601 18.198 $2,531.57


The estimate of tax is based on the prior year mill levy and the 2025 projected assessment rates. Mill levies and tax estimates will be updated yearly on December 22nd for the current year. Additional information can be found at https://assessor.weld.gov










Select Reports to Print: