Account: R6295186
April 4, 2026
| Account | Parcel | Account Type | Tax Year | Buildings | Actual Value | Local Govt Assessed Value | School Assessed Value |
|---|---|---|---|---|---|---|---|
| R6295186 | 147131004001 | Industrial | 2026 | 2 | 2,659,210 | 717,980 | 717,980 |
| Legal |
|---|
| BRI BIP1-1 L1 BLK1 BRIGHTON INDUSTRIAL PARK LTD |
| Subdivision | Block | Lot | Land Economic Area |
|---|---|---|---|
| BRIGHTON INDUSTRIAL PARK LIMITED | 1 | 1 | BRIGHTON INDUSTRIAL <3 ACRES |
| Property Address | Property City | Section | Township | Range |
|---|---|---|---|---|
| 899 BASELINE PL | BRIGHTON | 31 | 01 | 66 |
| Account | Parcel | Account Type | Tax Year | Buildings | Actual Value | Local Govt Assessed Value | School Assessed Value |
|---|---|---|---|---|---|---|---|
| R6295186 | 147131004001 | Industrial | 2026 | 2 | 2,659,210 | 717,980 | 717,980 |
| Account | Owner Name | Address |
|---|---|---|
| R6295186 | VECCHIARELLI HOLDINGS LLC | 625 BASELINE RD BRIGHTON, CO 806038321 |
| Account | Parcel | Account Type | Tax Year | Buildings | Actual Value | Local Govt Assessed Value | School Assessed Value |
|---|---|---|---|---|---|---|---|
| R6295186 | 147131004001 | Industrial | 2026 | 2 | 2,659,210 | 717,980 | 717,980 |
| Reception | Rec Date | Type | Grantor | Grantee | Doc Fee | Sale Date | Sale Price |
|---|---|---|---|---|---|---|---|
| 02005797 | 04-15-1985 | WDN | 0.00 | 01-01-1900 | 0 | ||
| 02335241 | 06-02-1993 | WDN | 0.00 | 06-18-1990 | 0 | ||
| 1868356 | NA | SUB | SUBDIVISION | BRIGHTON INDUSTRIAL PARK LIMITED | 0.00 | NA | 0 |
| 4639546 | 10-12-2020 | SWD | BAKER HUGHES OILFIELD OPERATIONS LLC | VECCHIARELLI HOLDINGS | 200.00 | 10-09-2020 | 2,000,000 |
| 4645938 | 10-30-2020 | AFFD | WHITLEY LEE | BAKER HUGHES OILFIELD OPERATIONS LLC | 0.00 | 09-24-2020 | 0 |
*If the hyperlink for the reception number does not work, try a manual search in the Clerk and Recorder records. Use the Grantor or Grantee in your search.
| Account | Parcel | Account Type | Tax Year | Buildings | Actual Value | Local Govt Assessed Value | School Assessed Value |
|---|---|---|---|---|---|---|---|
| R6295186 | 147131004001 | Industrial | 2026 | 2 | 2,659,210 | 717,980 | 717,980 |
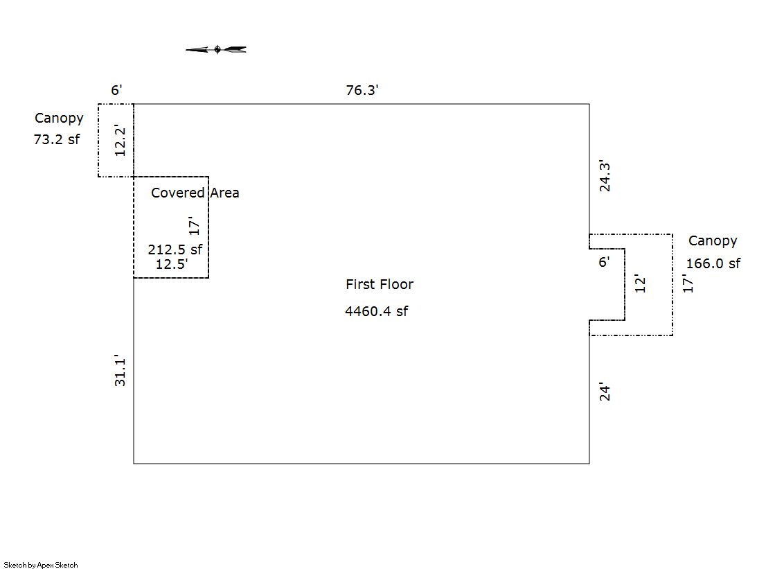
Building 2
| AccountNo | Building ID | Occupancy |
|---|---|---|
| R6295186 | 2 | Office Building |
| ID | Type | NBHD | Occupancy | % Complete | Bedrooms | Baths |
|---|---|---|---|---|---|---|
| 2 | Commercial | 4903 | Office Building | 100 | NA | 0.00 |
| ID | Exterior | Roof Cover | Interior | HVAC | Perimeter | Units | Unit Type | Make |
|---|---|---|---|---|---|---|---|---|
| 2 | NA | NA | NA | Package Unit | 310 | 0 | NA | NA |
| ID | Square Ft | Condo SF | Total Basement SF | Finished Basement SF | Garage SF | Carport SF | Balcony SF | Porch SF |
|---|---|---|---|---|---|---|---|---|
| 2 | 4,460 | 0 | 0 | 0 | 0 | 0 | 0 | 0 |
| ID | Built As | Square Ft | Year Built | Stories | Length | Width |
|---|---|---|---|---|---|---|
| 2.00 | Office Building | 4,460 | 2006 | 1 | 0 | 0 |
| ID | Detail Type | Description | Units |
|---|---|---|---|
| 2 | Add On | Com Canopies Steel Average | 452.00 |
| 2 | Add On | Concrete Slab Average | 20000.00 |
Building 3
| AccountNo | Building ID | Occupancy |
|---|---|---|
| R6295186 | 3 | Warehouse |
| ID | Type | NBHD | Occupancy | % Complete | Bedrooms | Baths |
|---|---|---|---|---|---|---|
| 3 | Commercial | 4903 | Warehouse | 100 | NA | 0.00 |
| ID | Exterior | Roof Cover | Interior | HVAC | Perimeter | Units | Unit Type | Make |
|---|---|---|---|---|---|---|---|---|
| 3 | NA | NA | NA | Radiant | 450 | 0 | NA | NA |
| ID | Square Ft | Condo SF | Total Basement SF | Finished Basement SF | Garage SF | Carport SF | Balcony SF | Porch SF |
|---|---|---|---|---|---|---|---|---|
| 3 | 12,600 | 0 | 0 | 0 | 0 | 0 | 0 | 0 |
| ID | Built As | Square Ft | Year Built | Stories | Length | Width |
|---|---|---|---|---|---|---|
| 3.00 | Service Garage | 12,600 | 2015 | 1 | 0 | 0 |
| ID | Detail Type | Description | Units |
|---|---|---|---|
| 3 | Add On | Chain Link Fence 6Ft. | 975.00 |
| 3 | Add On | Concrete Slab Average | 11115.00 |
| Account | Parcel | Account Type | Tax Year | Buildings | Actual Value | Local Govt Assessed Value | School Assessed Value |
|---|---|---|---|---|---|---|---|
| R6295186 | 147131004001 | Industrial | 2026 | 2 | 2,659,210 | 717,980 | 717,980 |
| Type | Code | Description | Actual Value | Local Govt Assessed Value | School Assessed Value | Acres | Land SqFt |
|---|---|---|---|---|---|---|---|
| Improvement | 2220 | OFFICES-IMPROVEMENTS | 350,227 | 94,560 | 94,560 | 0.000 | 0 |
| Improvement | 3225 | REFINING/PETROLEUM-IMPS | 1,915,039 | 517,060 | 517,060 | 0.000 | 0 |
| Land | 3125 | REFINING/PETROLEUM-LAND | 393,944 | 106,360 | 106,360 | 2.261 | 98,486 |
| Totals | - | - | 2,659,210 | 717,980 | 717,980 | 2.261 | 98,486 |
Comparable sales for your Residential or Commercial property may be found using our SALES SEARCH TOOL
Values are updated annually on May 1st for Real Property and June 15th for Personal Property and Oil and Gas.
| Account | Parcel | Account Type | Tax Year | Buildings | Actual Value | Local Govt Assessed Value | School Assessed Value |
|---|---|---|---|---|---|---|---|
| R6295186 | 147131004001 | Industrial | 2026 | 2 | 2,659,210 | 717,980 | 717,980 |
| Tax Area | District ID | District Name | Local Govt Mill Levy |
School Mill Levy |
Estimated Taxes |
|---|---|---|---|---|---|
| 2032 | 0429 | BRIGHTON TOWN | 6.650 | 0.000 | $4,774.57 |
| 2032 | 0302 | CENTRAL COLORADO WATER (CCW) | 0.980 | 0.000 | $703.62 |
| 2032 | 0309 | CENTRAL COLORADO WATER SUBDISTRICT (CCS) | 1.462 | 0.000 | $1,049.69 |
| 2032 | 0503 | GREATER BRIGHTON FIRE | 17.504 | 0.000 | $12,567.52 |
| 2032 | 1050 | HIGH PLAINS LIBRARY | 3.044 | 0.000 | $2,185.53 |
| 2032 | 0216 | SCHOOL DIST 27J-BRIGHTON | 0.000 | 56.290 | $40,415.09 |
| 2032 | 0100 | WELD COUNTY | 15.956 | 0.000 | $11,456.09 |
| Total | - | - | 45.596 | 56.29 | $73,152.11 |
The estimate of tax is based on the prior year mill levy and the 2025 projected assessment rates. Mill levies and tax estimates will be updated yearly on December 22nd for the current year. Additional information can be found at https://assessor.weld.gov


