Account: R6329786
April 4, 2026
| Account | Parcel | Account Type | Tax Year | Buildings | Actual Value | Local Govt Assessed Value | School Assessed Value |
|---|---|---|---|---|---|---|---|
| R6329786 | 147303404008 | Residential | 2026 | 1 | 312,399 | 19,520 | 22,030 |
| Legal |
|---|
| HUD 10952-B L19-20 & N2 L21 BLK40 |
| Subdivision | Block | Lot | Land Economic Area |
|---|---|---|---|
| HUDSON TOWN | 40 | 19 | OLD HUDSON |
| Property Address | Property City | Section | Township | Range |
|---|---|---|---|---|
| 745 GRAPE ST | HUDSON | 03 | 01 | 65 |
| Account | Parcel | Account Type | Tax Year | Buildings | Actual Value | Local Govt Assessed Value | School Assessed Value |
|---|---|---|---|---|---|---|---|
| R6329786 | 147303404008 | Residential | 2026 | 1 | 312,399 | 19,520 | 22,030 |
| Account | Owner Name | Address |
|---|---|---|
| R6329786 | KRAUS JERALDINE E | 3301 COUNTY ROAD 41 HUDSON, CO 806429003 |
| Account | Parcel | Account Type | Tax Year | Buildings | Actual Value | Local Govt Assessed Value | School Assessed Value |
|---|---|---|---|---|---|---|---|
| R6329786 | 147303404008 | Residential | 2026 | 1 | 312,399 | 19,520 | 22,030 |
| Reception | Rec Date | Type | Grantor | Grantee | Doc Fee | Sale Date | Sale Price |
|---|---|---|---|---|---|---|---|
| 01965274 | 05-02-1984 | WDN | 0.00 | 01-01-1900 | 0 | ||
| 125091 | NA | SUB | SUBDIVISION | HUDSON TOWN | 0.00 | NA | 0 |
| 2210775 | 04-13-1990 | WD | BAKER STEVEN DALE & TAMMY JEAN | KRAUS JERALDINE E | 5.08 | 04-11-1990 | 50,800 |
| 4332679 | 09-05-2017 | BN | KRAUS JERALDINE E | KRAUS JERALDINE E (BN) | 0.00 | 08-25-2017 | 0 |
| X0014412 | 05-02-1984 | CON | BAKER STEVEN DALE & TAMMY JEAN | 5.00 | 05-02-1984 | 50,000 |
*If the hyperlink for the reception number does not work, try a manual search in the Clerk and Recorder records. Use the Grantor or Grantee in your search.
| Account | Parcel | Account Type | Tax Year | Buildings | Actual Value | Local Govt Assessed Value | School Assessed Value |
|---|---|---|---|---|---|---|---|
| R6329786 | 147303404008 | Residential | 2026 | 1 | 312,399 | 19,520 | 22,030 |
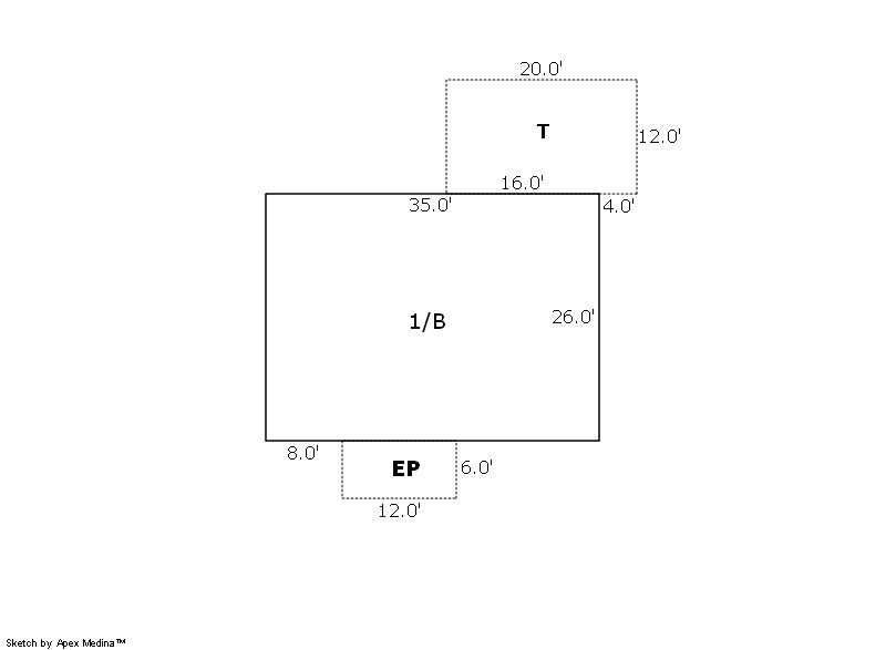
Building 1
| AccountNo | Building ID | Occupancy |
|---|---|---|
| R6329786 | 1 | Single Family Residential |
| ID | Type | NBHD | Occupancy | % Complete | Bedrooms | Baths |
|---|---|---|---|---|---|---|
| 1 | Residential | 5H0001 | Single Family Residential | 100 | 2 | 1.00 |
| ID | Exterior | Roof Cover | Interior | HVAC | Perimeter | Units | Unit Type | Make |
|---|---|---|---|---|---|---|---|---|
| 1 | Frame Vinyl | Composition Shingle | Drywall | Forced Air | 0 | 0 | NA | NA |
| ID | Square Ft | Condo SF | Total Basement SF | Finished Basement SF | Garage SF | Carport SF | Balcony SF | Porch SF |
|---|---|---|---|---|---|---|---|---|
| 1 | 910 | 0 | 910 | 0 | 0 | 0 | 0 | 72 |
| ID | Built As | Square Ft | Year Built | Stories | Length | Width |
|---|---|---|---|---|---|---|
| 1.00 | Ranch 1 Story | 910 | 1922 | 1 | 0 | 0 |
| ID | Detail Type | Description | Units |
|---|---|---|---|
| 1 | Basement | Total Basement SF | 910.00 |
| 1 | Fixture | Full Bath | 1.00 |
| 1 | Porch | Encl Solid Wall | 72.00 |
| 1 | Porch | Open Slab | 240.00 |
| Account | Parcel | Account Type | Tax Year | Buildings | Actual Value | Local Govt Assessed Value | School Assessed Value |
|---|---|---|---|---|---|---|---|
| R6329786 | 147303404008 | Residential | 2026 | 1 | 312,399 | 19,520 | 22,030 |
| Type | Code | Description | Actual Value | Local Govt Assessed Value | School Assessed Value | Acres | Land SqFt |
|---|---|---|---|---|---|---|---|
| Improvement | 1212 | SINGLE FAMILY RESIDENTIAL IMPROVEMENTS | 242,082 | 15,130 | 17,070 | 0.000 | 0 |
| Land | 1112 | SINGLE FAMILY RESIDENTIAL-LAND | 70,317 | 4,390 | 4,960 | 0.179 | 7,813 |
| Totals | - | - | 312,399 | 19,520 | 22,030 | 0.179 | 7,813 |
Comparable sales for your Residential or Commercial property may be found using our SALES SEARCH TOOL
Values are updated annually on May 1st for Real Property and June 15th for Personal Property and Oil and Gas.
| Account | Parcel | Account Type | Tax Year | Buildings | Actual Value | Local Govt Assessed Value | School Assessed Value |
|---|---|---|---|---|---|---|---|
| R6329786 | 147303404008 | Residential | 2026 | 1 | 312,399 | 19,520 | 22,030 |
| Tax Area | District ID | District Name | Local Govt Mill Levy |
School Mill Levy |
Estimated Taxes |
|---|---|---|---|---|---|
| 0307 | 0700 | AIMS JUNIOR COLLEGE | 6.313 | 0.000 | $123.23 |
| 0307 | 0302 | CENTRAL COLORADO WATER (CCW) | 0.980 | 0.000 | $19.13 |
| 0307 | 0309 | CENTRAL COLORADO WATER SUBDISTRICT (CCS) | 1.462 | 0.000 | $28.54 |
| 0307 | 1050 | HIGH PLAINS LIBRARY | 3.044 | 0.000 | $59.42 |
| 0307 | 0509 | HUDSON FIRE | 12.237 | 0.000 | $238.87 |
| 0307 | 0413 | HUDSON TOWN | 30.343 | 0.000 | $592.30 |
| 0307 | 0301 | NORTHERN COLORADO WATER (NCW) | 1.000 | 0.000 | $19.52 |
| 0307 | 0203 | SCHOOL DIST RE3J-KEENESBURG | 0.000 | 15.822 | $348.56 |
| 0307 | 0100 | WELD COUNTY | 15.956 | 0.000 | $311.46 |
| Total | - | - | 71.335 | 15.822 | $1,741.02 |
The estimate of tax is based on the prior year mill levy and the 2025 projected assessment rates. Mill levies and tax estimates will be updated yearly on December 22nd for the current year. Additional information can be found at https://assessor.weld.gov



