Account: R6399486
April 4, 2026
| Account | Parcel | Account Type | Tax Year | Buildings | Actual Value | Local Govt Assessed Value | School Assessed Value |
|---|---|---|---|---|---|---|---|
| R6399486 | 147320000020 | Residential | 2026 | 4 | 433,587 | 27,100 | 30,560 |
| Legal |
|---|
| 10804B N1482' W300' NE4 20 1 65 EXC N30' (1/8R) |
| Subdivision | Block | Lot | Land Economic Area |
|---|---|---|---|
| ECON 5 RURAL |
| Property Address | Property City | Section | Township | Range |
|---|---|---|---|---|
| 19526 COUNTY ROAD 8 | WELD | 20 | 01 | 65 |
| Account | Parcel | Account Type | Tax Year | Buildings | Actual Value | Local Govt Assessed Value | School Assessed Value |
|---|---|---|---|---|---|---|---|
| R6399486 | 147320000020 | Residential | 2026 | 4 | 433,587 | 27,100 | 30,560 |
| Account | Owner Name | Address |
|---|---|---|
| R6399486 | ALARPE ADEBAYO | 19526 COUNTY ROAD 8 HUDSON, CO 806429035 |
| R6399486 | CROWE KAREN D |
| Account | Parcel | Account Type | Tax Year | Buildings | Actual Value | Local Govt Assessed Value | School Assessed Value |
|---|---|---|---|---|---|---|---|
| R6399486 | 147320000020 | Residential | 2026 | 4 | 433,587 | 27,100 | 30,560 |
| Reception | Rec Date | Type | Grantor | Grantee | Doc Fee | Sale Date | Sale Price |
|---|---|---|---|---|---|---|---|
| 07-09-2003 | USR | USE BY SPECIAL REVIEW | USR-1404 SINGLE FAMILY DWELLING | 0.00 | NA | 0 | |
| 2328163 | 04-08-1993 | WD | CRAIN JAMES D & NORMA P | WITHERSPOON DAVID S & CAROLYN | 13.65 | 03-31-1993 | 136,500 |
| 2896753 | 10-31-2001 | WD | WITHERSPOON DAVID S & CAROLYN A | ALARAPE BAYO & CROWE KAREN D | 27.00 | 10-26-2001 | 270,000 |
| 3071641 | 06-11-2003 | WDN | WITHERSPOON DAVID S & CAROLYN A | ALARAPE BAYO & CROWE KAREN D | 0.00 | 10-26-2001 | 0 |
| 4170190 | 01-04-2016 | QCN | ALARAPE BAYO | ALARPE ADEBAYO | 0.00 | 12-22-2015 | 0 |
*If the hyperlink for the reception number does not work, try a manual search in the Clerk and Recorder records. Use the Grantor or Grantee in your search.
| Account | Parcel | Account Type | Tax Year | Buildings | Actual Value | Local Govt Assessed Value | School Assessed Value |
|---|---|---|---|---|---|---|---|
| R6399486 | 147320000020 | Residential | 2026 | 4 | 433,587 | 27,100 | 30,560 |
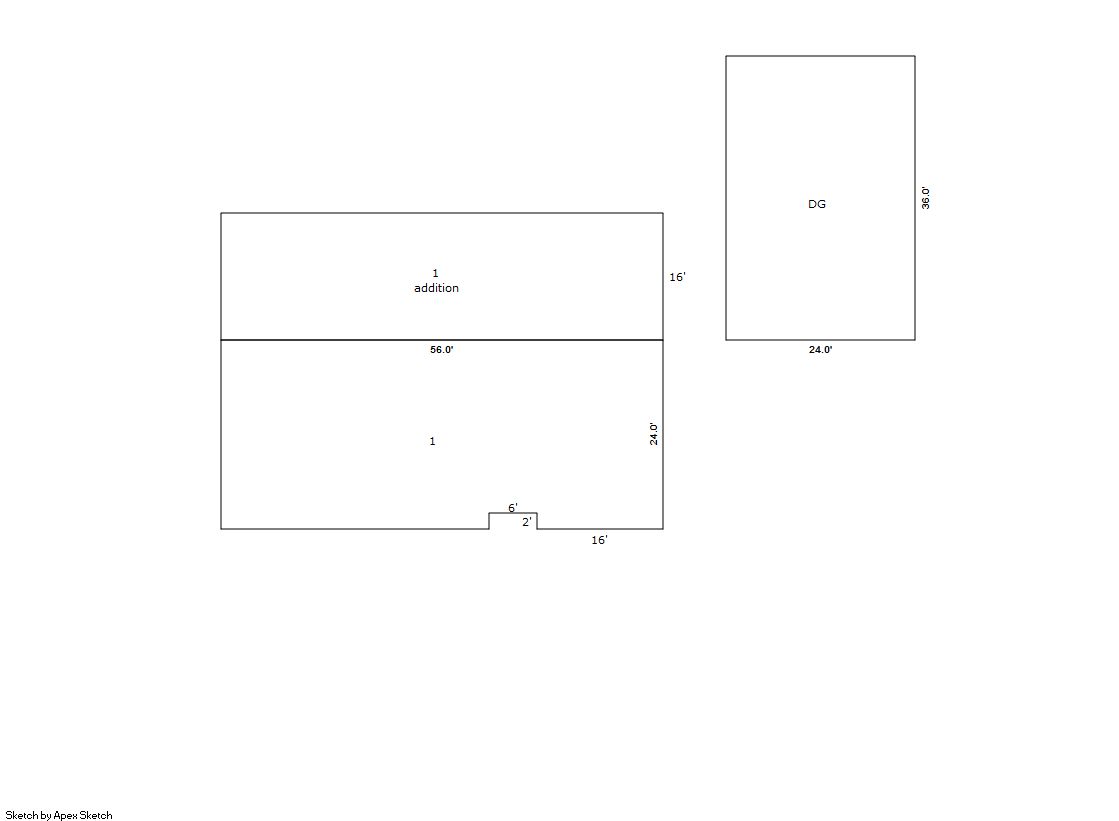
Building 1
| AccountNo | Building ID | Occupancy |
|---|---|---|
| R6399486 | 1 | Single Family Residential |
| ID | Type | NBHD | Occupancy | % Complete | Bedrooms | Baths |
|---|---|---|---|---|---|---|
| 1 | Manufactured Hm | 5R0008 | Single Family Residential | 100 | 4 | 2.00 |
| ID | Exterior | Roof Cover | Interior | HVAC | Perimeter | Units | Unit Type | Make |
|---|---|---|---|---|---|---|---|---|
| 1 | Vinyl Siding | Shingle Comp | Drywall | Forced Air | 308 | 0 | NA | NA |
| ID | Square Ft | Condo SF | Total Basement SF | Finished Basement SF | Garage SF | Carport SF | Balcony SF | Porch SF |
|---|---|---|---|---|---|---|---|---|
| 1 | 2,240 | 0 | 0 | 0 | 864 | 0 | 0 | 0 |
| ID | Built As | Square Ft | Year Built | Stories | Length | Width |
|---|---|---|---|---|---|---|
| 1.00 | Mnfctrd Home 1 Story w/ Additions | 2,240 | 1969 | 1 | 56 | 40 |
| ID | Detail Type | Description | Units |
|---|---|---|---|
| 1 | Fixture | Full Bath | 2.00 |
| 1 | Garage | Detached | 864.00 |
Building 2
| AccountNo | Building ID | Occupancy |
|---|---|---|
| R6399486 | 2 | Shed - Utility |
| ID | Type | NBHD | Occupancy | % Complete | Bedrooms | Baths |
|---|---|---|---|---|---|---|
| 2 | Out Building | NA | Shed - Utility | 100 | 0 | 0.00 |
| ID | Exterior | Roof Cover | Interior | HVAC | Perimeter | Units | Unit Type | Make |
|---|---|---|---|---|---|---|---|---|
| 2 | NA | NA | NA | None | 64 | 0 | NA | NA |
| ID | Square Ft | Condo SF | Total Basement SF | Finished Basement SF | Garage SF | Carport SF | Balcony SF | Porch SF |
|---|---|---|---|---|---|---|---|---|
| 2 | 512 | 0 | 0 | 0 | 0 | 0 | 0 | 0 |
| ID | Built As | Square Ft | Year Built | Stories | Length | Width |
|---|---|---|---|---|---|---|
| 2.00 | Shed - Utility | 512 | 1973 | 1 | 32 | 16 |
No Additional Details for Building 2
Building 3
| AccountNo | Building ID | Occupancy |
|---|---|---|
| R6399486 | 3 | Utility Building |
| ID | Type | NBHD | Occupancy | % Complete | Bedrooms | Baths |
|---|---|---|---|---|---|---|
| 3 | Out Building | NA | Utility Building | 100 | NA | 0.00 |
| ID | Exterior | Roof Cover | Interior | HVAC | Perimeter | Units | Unit Type | Make |
|---|---|---|---|---|---|---|---|---|
| 3 | NA | NA | NA | NA | 160 | 0 | NA | NA |
| ID | Square Ft | Condo SF | Total Basement SF | Finished Basement SF | Garage SF | Carport SF | Balcony SF | Porch SF |
|---|---|---|---|---|---|---|---|---|
| 3 | 1,500 | 0 | 0 | 0 | 0 | 0 | 0 | 0 |
| ID | Built As | Square Ft | Year Built | Stories | Length | Width |
|---|---|---|---|---|---|---|
| 3.00 | Utility Building | 1,500 | 2005 | 1 | 50 | 30 |
No Additional Details for Building 3
Building 4
| AccountNo | Building ID | Occupancy |
|---|---|---|
| R6399486 | 4 | Detached Garage |
| ID | Type | NBHD | Occupancy | % Complete | Bedrooms | Baths |
|---|---|---|---|---|---|---|
| 4 | Residential | NA | Detached Garage | 100 | NA | 0.00 |
| ID | Exterior | Roof Cover | Interior | HVAC | Perimeter | Units | Unit Type | Make |
|---|---|---|---|---|---|---|---|---|
| 4 | Frame Hardboard | Composition Shingle | Drywall | NA | NA | 0 | NA | NA |
| ID | Square Ft | Condo SF | Total Basement SF | Finished Basement SF | Garage SF | Carport SF | Balcony SF | Porch SF |
|---|---|---|---|---|---|---|---|---|
| 4 | 729 | 0 | 0 | 0 | 0 | 0 | 0 | 0 |
| ID | Built As | Square Ft | Year Built | Stories | Length | Width |
|---|---|---|---|---|---|---|
| 4.00 | Detached Garage | 729 | 2003 | 1 | 0 | 0 |
No Additional Details for Building 4
| Account | Parcel | Account Type | Tax Year | Buildings | Actual Value | Local Govt Assessed Value | School Assessed Value |
|---|---|---|---|---|---|---|---|
| R6399486 | 147320000020 | Residential | 2026 | 4 | 433,587 | 27,100 | 30,560 |
| Type | Code | Description | Actual Value | Local Govt Assessed Value | School Assessed Value | Acres | Land SqFt |
|---|---|---|---|---|---|---|---|
| Improvement | 1212 | SINGLE FAMILY RESIDENTIAL IMPROVEMENTS | 243,162 | 15,200 | 17,140 | 0.000 | 0 |
| Land | 1112 | SINGLE FAMILY RESIDENTIAL-LAND | 190,425 | 11,900 | 13,420 | 9.880 | 430,373 |
| Totals | - | - | 433,587 | 27,100 | 30,560 | 9.880 | 430,373 |
Comparable sales for your Residential or Commercial property may be found using our SALES SEARCH TOOL
Values are updated annually on May 1st for Real Property and June 15th for Personal Property and Oil and Gas.
| Account | Parcel | Account Type | Tax Year | Buildings | Actual Value | Local Govt Assessed Value | School Assessed Value |
|---|---|---|---|---|---|---|---|
| R6399486 | 147320000020 | Residential | 2026 | 4 | 433,587 | 27,100 | 30,560 |
| Tax Area | District ID | District Name | Local Govt Mill Levy |
School Mill Levy |
Estimated Taxes |
|---|---|---|---|---|---|
| 2497 | 0700 | AIMS JUNIOR COLLEGE | 6.313 | 0.000 | $171.08 |
| 2497 | 0302 | CENTRAL COLORADO WATER (CCW) | 0.980 | 0.000 | $26.56 |
| 2497 | 0309 | CENTRAL COLORADO WATER SUBDISTRICT (CCS) | 1.462 | 0.000 | $39.62 |
| 2497 | 1050 | HIGH PLAINS LIBRARY | 3.044 | 0.000 | $82.49 |
| 2497 | 0509 | HUDSON FIRE | 12.237 | 0.000 | $331.62 |
| 2497 | 0203 | SCHOOL DIST RE3J-KEENESBURG | 0.000 | 15.822 | $483.52 |
| 2497 | 0100 | WELD COUNTY | 15.956 | 0.000 | $432.41 |
| 2497 | 1209 | WEST ADAMS CONSERVATION | 0.000 | 0.000 | $0.00 |
| Total | - | - | 39.992 | 15.822 | $1,567.30 |
The estimate of tax is based on the prior year mill levy and the 2025 projected assessment rates. Mill levies and tax estimates will be updated yearly on December 22nd for the current year. Additional information can be found at https://assessor.weld.gov


