Account: R6773997

April 5, 2026

Account Parcel Account Type Tax Year Buildings Actual Value Local Govt Assessed Value School Assessed Value
R6773997 070535405004 Residential 2026 1 710,739 44,430 50,110

Legal
SEV SL-4 L4 SETTLERS LANDING AMD

Subdivision Block Lot Land Economic Area
SETTLERS LANDING AM PLAT 4 SETTLERS LANDING

Property Address Property City Section Township Range
402 IMMIGRANT TRL SEVERANCE 35 07 67




Account Parcel Account Type Tax Year Buildings Actual Value Local Govt Assessed Value School Assessed Value
R6773997 070535405004 Residential 2026 1 710,739 44,430 50,110

Account Owner Name Address
R6773997 TINES ROXENE ROCHELLE 402 IMMIGRANT TRL SEVERANCE, CO 805502624
R6773997 BREWTON STEPHEN


Account Parcel Account Type Tax Year Buildings Actual Value Local Govt Assessed Value School Assessed Value
R6773997 070535405004 Residential 2026 1 710,739 44,430 50,110

Reception Rec Date Type Grantor Grantee Doc Fee Sale Date Sale Price
2177183 04-21-1989 WDN WRIGHT KENNEY D & MARY ANN 0.00 04-21-1989 0
2435500 04-25-1995 WD WRIGHT KENNEY D & MARY ANN ELK RIDGE DESIGN BUILDERS INC 35.90 04-21-1995 359,000
2466131 12-04-1995 WD ELK RIDGE DESIGN BUILDERS INC VAILLANCOURT JOSEPH L & MAUREE 3.90 11-28-1995 39,000
2468390 NA SUB SUBDIVISION SETTLERS LANDING AMD 0.00 NA 0
2662690 12-23-1998 WD VAILLANCOURT JOSEPH L & MAUREE WALTER ROGER D & GAIL D 4.99 12-22-1998 49,900
3341682 11-21-2005 WD WALTER ROGER D & GAIL D RAMSEL MONICA R & 32.52 11-10-2005 325,200
4051329 10-03-2014 QCNE RAMSEL MONICA R; RAMSEL NORMAN A RAMSEL MONICA R; RAMSEL NORMAN A 0.00 09-22-2014 0
4174971 01-25-2016 WD RAMSEL NORMAN A; RAMSEL MONICA R MEANS DONALD; MEANS MARY ANNE 43.50 01-22-2016 435,000
4528322 10-01-2019 WD MEANS DONALD; MEANS MARY ANNE TINES ROXENE ROCHELLE; BREWTON STEPHEN 55.00 09-26-2019 550,000



Account Parcel Account Type Tax Year Buildings Actual Value Local Govt Assessed Value School Assessed Value
R6773997 070535405004 Residential 2026 1 710,739 44,430 50,110

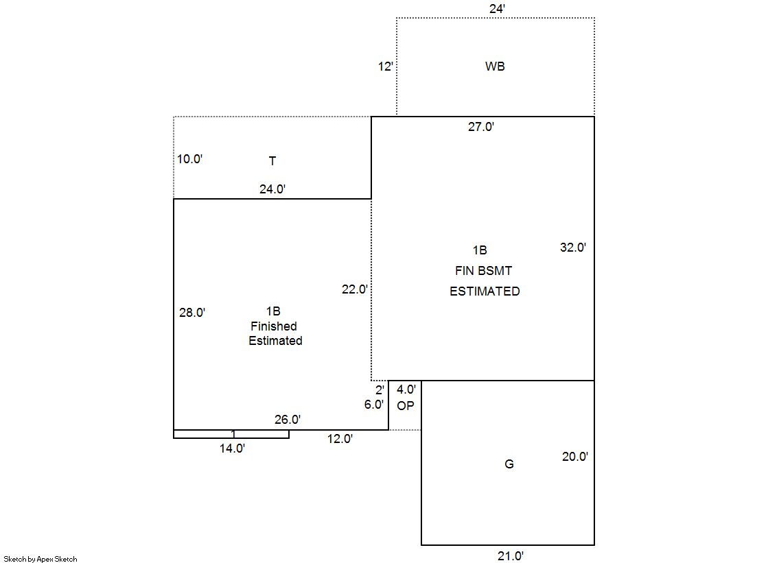
Building 1

AccountNo Building ID Occupancy
R6773997 1 Single Family Residential


ID Type NBHD Occupancy % Complete Bedrooms Baths
1 Residential 2R4052 Single Family Residential 100 4 3.00


ID Exterior Roof Cover Interior HVAC Perimeter Units Unit Type Make
1 Frame Siding Composition Shingle Drywall Central Air to Air 180 0 NA NA


ID Square Ft Condo SF Total Basement SF Finished Basement SF Garage SF Carport SF Balcony SF Porch SF
1 1,562 0 1,548 1,548 420 0 0 240


Built As Details for Building 1
ID Built As Square Ft Year Built Stories Length Width
1.00 Ranch 1 Story 1,562 1999 1 0 0


Additional Details for Building 1
ID Detail Type Description Units
1 Add On Fireplace Gas 1.00
1 Add On Flue Only 1.00
1 Basement Finished 1548.00
1 Basement Total Basement SF 1548.00
1 Basement Walkout 1.00
1 Fixture Full Bath 3.00
1 Garage Attached 420.00
1 Porch Open Slab 240.00
1 Porch Slab Roof Ceil 24.00





Account Parcel Account Type Tax Year Buildings Actual Value Local Govt Assessed Value School Assessed Value
R6773997 070535405004 Residential 2026 1 710,739 44,430 50,110

Type Code Description Actual Value Local Govt Assessed Value School Assessed Value Acres Land SqFt
Improvement 1212 SINGLE FAMILY RESIDENTIAL IMPROVEMENTS 556,739 34,800 39,250 0.000 0
Land 1112 SINGLE FAMILY RESIDENTIAL-LAND 154,000 9,630 10,860 2.250 98,010
Totals - - 710,739 44,430 50,110 2.250 98,010


Account Parcel Account Type Tax Year Buildings Actual Value Local Govt Assessed Value School Assessed Value
R6773997 070535405004 Residential 2026 1 710,739 44,430 50,110

Tax Area District ID District Name Local Govt
Mill Levy
School
Mill Levy
Estimated
Taxes
0434 0700 AIMS JUNIOR COLLEGE 6.313 0.000 $280.49
0434 1051 CLEARVIEW LIBRARY 3.546 0.000 $157.55
0434 0304 NORTH WELD COUNTY WATER (NWC) 0.000 0.000 $0.00
0434 0301 NORTHERN COLORADO WATER (NCW) 1.000 0.000 $44.43
0434 0204 SCHOOL DIST RE4-WINDSOR 0.000 46.646 $2,337.43
0434 0427 SEVERANCE TOWN 12.635 0.000 $561.37
0434 0100 WELD COUNTY 15.956 0.000 $708.93
0434 1200 WEST GREELEY CONSERVATION 0.414 0.000 $18.39
0434 0521 WINDSOR-SEVERANCE FIRE 8.535 0.000 $379.21
Total - - 48.399 46.646 $4,487.80


The estimate of tax is based on the prior year mill levy and the 2025 projected assessment rates. Mill levies and tax estimates will be updated yearly on December 22nd for the current year. Additional information can be found at https://assessor.weld.gov










Select Reports to Print: