Account: R6777121
April 1, 2026
| Account | Parcel | Account Type | Tax Year | Buildings | Actual Value | Local Govt Assessed Value | School Assessed Value |
|---|---|---|---|---|---|---|---|
| R6777121 | 147715300021 | Agricultural | 2026 | 4 | 351,873 | 22,820 | 25,590 |
| Legal |
|---|
| PT SW4 15-1-63 LOT A REC EXEMPT RE-4845 |
| Subdivision | Block | Lot | Land Economic Area |
|---|---|---|---|
| ECON 5 RURAL |
| Property Address | Property City | Section | Township | Range |
|---|---|---|---|---|
| 3398 COUNTY ROAD 67 | 15 | 01 | 63 |
| Account | Parcel | Account Type | Tax Year | Buildings | Actual Value | Local Govt Assessed Value | School Assessed Value |
|---|---|---|---|---|---|---|---|
| R6777121 | 147715300021 | Agricultural | 2026 | 4 | 351,873 | 22,820 | 25,590 |
| Account | Owner Name | Address |
|---|---|---|
| R6777121 | ALARCON RAUL | 3398 COUNTY ROAD 67 KEENESBURG, CO 806438519 |
| R6777121 | ALARCON CESAR |
| Account | Parcel | Account Type | Tax Year | Buildings | Actual Value | Local Govt Assessed Value | School Assessed Value |
|---|---|---|---|---|---|---|---|
| R6777121 | 147715300021 | Agricultural | 2026 | 4 | 351,873 | 22,820 | 25,590 |
| Reception | Rec Date | Type | Grantor | Grantee | Doc Fee | Sale Date | Sale Price |
|---|---|---|---|---|---|---|---|
| 3631743 | 06-22-2009 | RE | RECORDED EXEMPTION | RE-4845 | 0.00 | NA | 0 |
| 3631743 | 06-22-2009 | PLT | RE 4845 | 0.00 | 01-01-1900 | 0 | |
| 3714293 | 08-26-2010 | QCN | PV WATER III LLC | FRONT RANGE RESOURCES LLC | 0.00 | 01-01-1900 | 0 |
| 3722869 | 10-04-2010 | BSD | FRONT RANGE RESOURCES LLC | WHITFIELD THERON | 0.00 | 01-01-1900 | 0 |
| 4181806 | 02-18-2016 | RBN | WHITFIELD THERON | WHITFIELD THERON | 0.00 | 02-17-2016 | 0 |
| 4181807 | 02-18-2016 | WD | WHITFIELD THERON; WHITFIELD CORETTA P | CMH HOMES INC | 5.50 | 02-17-2016 | 55,000 |
| 4301885 | 05-15-2017 | WD | CMH HOMES INC | DAUGHERTY BRIAN L; DAUGHERTY ANNE M | 32.49 | 05-12-2017 | 324,900 |
| 4312903 | 06-23-2017 | AFFD | DAUGHERTY BRIAN L; DAUGHERTY ANNE M | DAUGHERTY BRIAN L; DAUGHERTY ANNE M | 0.00 | 05-12-2017 | 0 |
| 4993015 | 11-06-2024 | SWD | DAUGHERTY BRIAN L; DAUGHERTY ANNE M | ALARCON RAUL; ALARCON CESAR | 60.50 | 11-04-2024 | 605,000 |
*If the hyperlink for the reception number does not work, try a manual search in the Clerk and Recorder records. Use the Grantor or Grantee in your search.
| Account | Parcel | Account Type | Tax Year | Buildings | Actual Value | Local Govt Assessed Value | School Assessed Value |
|---|---|---|---|---|---|---|---|
| R6777121 | 147715300021 | Agricultural | 2026 | 4 | 351,873 | 22,820 | 25,590 |
Building 1
| AccountNo | Building ID | Occupancy |
|---|---|---|
| R6777121 | 1 | Single Family Residential on Ag |
| ID | Type | NBHD | Occupancy | % Complete | Bedrooms | Baths |
|---|---|---|---|---|---|---|
| 1 | Manufactured Hm | 5R0006 | Single Family Residential on Ag | 100 | 4 | 2.00 |
| ID | Exterior | Roof Cover | Interior | HVAC | Perimeter | Units | Unit Type | Make |
|---|---|---|---|---|---|---|---|---|
| 1 | Hardboard Sheet | Shingle Comp | Drywall | Central Air to Air | 192 | 0 | NA | Southern Energy |
| ID | Square Ft | Condo SF | Total Basement SF | Finished Basement SF | Garage SF | Carport SF | Balcony SF | Porch SF |
|---|---|---|---|---|---|---|---|---|
| 1 | 1,980 | 0 | 0 | 0 | 0 | 0 | 0 | 365 |
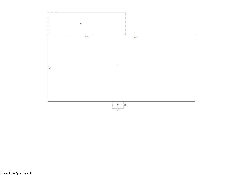
| ID | Built As | Square Ft | Year Built | Stories | Length | Width |
|---|---|---|---|---|---|---|
| 1.00 | Mnfctrd Home 1 Story | 1,980 | 2016 | 1 | 66 | 30 |
| ID | Detail Type | Description | Units |
|---|---|---|---|
| 1 | Add On | Fireplace Gas | 1.00 |
| 1 | Add On | Shed Frame | 81.00 |
| 1 | Fixture | Full Bath | 2.00 |
| 1 | Porch | Open Slab | 365.00 |
Building 2
| AccountNo | Building ID | Occupancy |
|---|---|---|
| R6777121 | 2 | Utility Building |
| ID | Type | NBHD | Occupancy | % Complete | Bedrooms | Baths |
|---|---|---|---|---|---|---|
| 2 | Out Building | NA | Utility Building | 100 | NA | 0.00 |
| ID | Exterior | Roof Cover | Interior | HVAC | Perimeter | Units | Unit Type | Make |
|---|---|---|---|---|---|---|---|---|
| 2 | NA | NA | NA | NA | 70 | 0 | NA | NA |
| ID | Square Ft | Condo SF | Total Basement SF | Finished Basement SF | Garage SF | Carport SF | Balcony SF | Porch SF |
|---|---|---|---|---|---|---|---|---|
| 2 | 300 | 0 | 0 | 0 | 0 | 0 | 0 | 0 |
| ID | Built As | Square Ft | Year Built | Stories | Length | Width |
|---|---|---|---|---|---|---|
| 2.00 | Utility Building | 300 | 2020 | 1 | 20 | 15 |
No Additional Details for Building 2
Building 3
| AccountNo | Building ID | Occupancy |
|---|---|---|
| R6777121 | 3 | Utility Building |
| ID | Type | NBHD | Occupancy | % Complete | Bedrooms | Baths |
|---|---|---|---|---|---|---|
| 3 | Out Building | NA | Utility Building | 100 | NA | 0.00 |
| ID | Exterior | Roof Cover | Interior | HVAC | Perimeter | Units | Unit Type | Make |
|---|---|---|---|---|---|---|---|---|
| 3 | NA | NA | NA | NA | 52 | 0 | NA | NA |
| ID | Square Ft | Condo SF | Total Basement SF | Finished Basement SF | Garage SF | Carport SF | Balcony SF | Porch SF |
|---|---|---|---|---|---|---|---|---|
| 3 | 168 | 0 | 0 | 0 | 0 | 0 | 0 | 0 |
| ID | Built As | Square Ft | Year Built | Stories | Length | Width |
|---|---|---|---|---|---|---|
| 3.00 | Utility Building | 168 | 2018 | 1 | 12 | 14 |
No Additional Details for Building 3
Building 4
| AccountNo | Building ID | Occupancy |
|---|---|---|
| R6777121 | 4 | Equipment Building |
| ID | Type | NBHD | Occupancy | % Complete | Bedrooms | Baths |
|---|---|---|---|---|---|---|
| 4 | Out Building | NA | Equipment Building | 100 | NA | 0.00 |
| ID | Exterior | Roof Cover | Interior | HVAC | Perimeter | Units | Unit Type | Make |
|---|---|---|---|---|---|---|---|---|
| 4 | NA | NA | NA | NA | 180 | 0 | NA | NA |
| ID | Square Ft | Condo SF | Total Basement SF | Finished Basement SF | Garage SF | Carport SF | Balcony SF | Porch SF |
|---|---|---|---|---|---|---|---|---|
| 4 | 1,800 | 0 | 0 | 0 | 0 | 0 | 0 | 0 |
| ID | Built As | Square Ft | Year Built | Stories | Length | Width |
|---|---|---|---|---|---|---|
| 4.00 | Equipment Building | 1,800 | 2025 | 1 | 30 | 60 |
No Additional Details for Building 4
| Account | Parcel | Account Type | Tax Year | Buildings | Actual Value | Local Govt Assessed Value | School Assessed Value |
|---|---|---|---|---|---|---|---|
| R6777121 | 147715300021 | Agricultural | 2026 | 4 | 351,873 | 22,820 | 25,590 |
| Type | Code | Description | Actual Value | Local Govt Assessed Value | School Assessed Value | Acres | Land SqFt |
|---|---|---|---|---|---|---|---|
| Improvement | 4277 | FARM/RANCH RESIDENCE-IMPS | 347,942 | 21,750 | 24,530 | 0.000 | 0 |
| Improvement | 4279 | FARM RANCH SUPPORT BLDGS | 3,846 | 1,040 | 1,040 | 0.000 | 0 |
| Land | 4147 | GRAZING LAND-AGRICULTURAL | 82 | 20 | 20 | 4.870 | 212,137 |
| Land | 4167 | WASTE LAND | 3 | 10 | 0 | 0.430 | 18,731 |
| Totals | - | - | 351,873 | 22,820 | 25,590 | 5.300 | 230,868 |
Comparable sales for your Residential or Commercial property may be found using our SALES SEARCH TOOL
Values are updated annually on May 1st for Real Property and June 15th for Personal Property and Oil and Gas.
| Account | Parcel | Account Type | Tax Year | Buildings | Actual Value | Local Govt Assessed Value | School Assessed Value |
|---|---|---|---|---|---|---|---|
| R6777121 | 147715300021 | Agricultural | 2026 | 4 | 351,873 | 22,820 | 25,590 |
| Tax Area | District ID | District Name | Local Govt Mill Levy |
School Mill Levy |
Estimated Taxes |
|---|---|---|---|---|---|
| 2449 | 0700 | AIMS JUNIOR COLLEGE | 6.313 | 0.000 | $144.06 |
| 2449 | 0302 | CENTRAL COLORADO WATER (CCW) | 0.980 | 0.000 | $22.36 |
| 2449 | 1050 | HIGH PLAINS LIBRARY | 3.044 | 0.000 | $69.46 |
| 2449 | 0308 | LOST CREEK GROUNDWATER (LCGW) | 0.945 | 0.000 | $21.56 |
| 2449 | 0518 | S. E. WELD FIRE | 10.470 | 0.000 | $238.93 |
| 2449 | 0203 | SCHOOL DIST RE3J-KEENESBURG | 0.000 | 15.822 | $404.88 |
| 2449 | 1208 | SOUTHEAST WELD CONSERVATION | 0.000 | 0.000 | $0.00 |
| 2449 | 0100 | WELD COUNTY | 15.956 | 0.000 | $364.12 |
| Total | - | - | 37.708 | 15.822 | $1,265.38 |
The estimate of tax is based on the prior year mill levy and the 2025 projected assessment rates. Mill levies and tax estimates will be updated yearly on December 22nd for the current year. Additional information can be found at https://assessor.weld.gov


