Account: R6777258

April 1, 2026

Account Parcel Account Type Tax Year Buildings Actual Value Local Govt Assessed Value School Assessed Value
R6777258 080704100061 Residential 2026 6 1,380,401 87,370 98,350

Legal
PT NE4 4-6-67 LOT A 3RD AMD REC EXEMPT AMD RE-326

Subdivision Block Lot Land Economic Area
WINDSOR RURAL

Property Address Property City Section Township Range
8962 COUNTY ROAD 74 WELD 04 06 67




Account Parcel Account Type Tax Year Buildings Actual Value Local Govt Assessed Value School Assessed Value
R6777258 080704100061 Residential 2026 6 1,380,401 87,370 98,350

Account Owner Name Address
R6777258 HOUSTOUN JOHN M REV LIVING TRUST 8962 COUNTY ROAD 74 WINDSOR, CO 805502608
R6777258 HOUSTOUN WENDY L REV LIVING TRUST


Account Parcel Account Type Tax Year Buildings Actual Value Local Govt Assessed Value School Assessed Value
R6777258 080704100061 Residential 2026 6 1,380,401 87,370 98,350

Reception Rec Date Type Grantor Grantee Doc Fee Sale Date Sale Price
10-16-1984 USR USE BY SPECIAL REVIEW USR-649 THERAPIST STUDIO 0.00 NA 0
1759977 07-12-1978 RE RECORDED EXEMPTION RE-326 3RD AM 0.00 NA 0
2226061 09-04-1990 RE RE-326 RE-326 0.00 09-04-1990 0
3708914 08-02-2010 QCN SCHUMP DAVID E ESTATE HOUSTOUN JOHN M REV LIVING TRUST 0.00 06-23-2010 0
3870665 09-04-2012 PRDN SCHUMP DAVID E HOUSTOUN JOHN M REVOCABLE LIVING TRUST 0.00 09-04-2012 0
3870666 09-04-2012 PRDN SCHUMP ELIZABETH M HOUSTOUN JOHN M REVOCABLE LIVING TRUST 0.00 09-04-2012 0



Account Parcel Account Type Tax Year Buildings Actual Value Local Govt Assessed Value School Assessed Value
R6777258 080704100061 Residential 2026 6 1,380,401 87,370 98,350

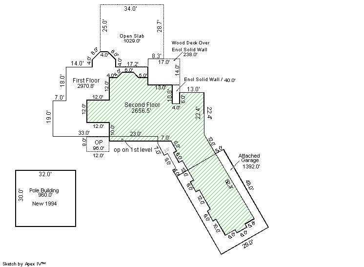
Building 1

AccountNo Building ID Occupancy
R6777258 1 Single Family Residential on Ag


ID Type NBHD Occupancy % Complete Bedrooms Baths
1 Residential 2R2001 Single Family Residential on Ag 100 5 5.00


ID Exterior Roof Cover Interior HVAC Perimeter Units Unit Type Make
1 Frame Brick Veneer Concrete Tile Drywall Central Air to Air 0 0 NA NA


ID Square Ft Condo SF Total Basement SF Finished Basement SF Garage SF Carport SF Balcony SF Porch SF
1 5,626 0 0 0 1,392 0 0 1029


Built As Details for Building 1
ID Built As Square Ft Year Built Stories Length Width
1.00 2 Story 5,626 1989 2 0 0


Additional Details for Building 1
ID Detail Type Description Units
1 Add On MH Fireplace Gas 1.00
1 Add On Swimming Pools 1.00
1 Fixture Full Bath 4.00
1 Fixture Half Bath 1.00
1 Garage Attached 1392.00
1 Porch Encl Solid Wall 278.00
1 Porch Open Slab 1029.00
1 Porch Wood Roof 96.00



Building 2

AccountNo Building ID Occupancy
R6777258 2 Secondary Single Family Res on Ag


ID Type NBHD Occupancy % Complete Bedrooms Baths
2 Residential 2R2001 Secondary Single Family Res on Ag 100 2 1.00


ID Exterior Roof Cover Interior HVAC Perimeter Units Unit Type Make
2 Frame Hardboard Composition Shingle Drywall Forced Air NA 0 NA NA


ID Square Ft Condo SF Total Basement SF Finished Basement SF Garage SF Carport SF Balcony SF Porch SF
2 936 0 0 0 0 0 0 20


Built As Details for Building 2
ID Built As Square Ft Year Built Stories Length Width
2.00 Ranch 1 Story 936 1924 1 0 0


Additional Details for Building 2
ID Detail Type Description Units
2 Fixture Full Bath 1.00
2 Porch Open Slab 20.00



Building 3

AccountNo Building ID Occupancy
R6777258 3 Secondary Single Family Res on Ag


ID Type NBHD Occupancy % Complete Bedrooms Baths
3 Residential 2R2001 Secondary Single Family Res on Ag 100 0 1.00


ID Exterior Roof Cover Interior HVAC Perimeter Units Unit Type Make
3 Frame Hardboard Composition Shingle Drywall Electric Baseboard NA 0 NA NA


ID Square Ft Condo SF Total Basement SF Finished Basement SF Garage SF Carport SF Balcony SF Porch SF
3 342 0 0 0 0 0 0 100


Built As Details for Building 3
ID Built As Square Ft Year Built Stories Length Width
3.00 Ranch 1 Story 342 1929 1 19 18


Additional Details for Building 3
ID Detail Type Description Units
3 Fixture Full Bath 1.00
3 Porch Open Slab 100.00



Building 4

AccountNo Building ID Occupancy
R6777258 4 Utility Building


ID Type NBHD Occupancy % Complete Bedrooms Baths
4 Out Building NA Utility Building 100 0 0.00


ID Exterior Roof Cover Interior HVAC Perimeter Units Unit Type Make
4 NA NA NA None NA 0 NA NA


ID Square Ft Condo SF Total Basement SF Finished Basement SF Garage SF Carport SF Balcony SF Porch SF
4 960 0 0 0 0 0 0 0


Built As Details for Building 4
ID Built As Square Ft Year Built Stories Length Width
4.00 Utility Building 960 1994 1 32 30

No Additional Details for Building 4




Building 5

AccountNo Building ID Occupancy
R6777258 5 Utility Building


ID Type NBHD Occupancy % Complete Bedrooms Baths
5 Out Building NA Utility Building 100 0 0.00


ID Exterior Roof Cover Interior HVAC Perimeter Units Unit Type Make
5 NA NA NA None 48 0 NA NA


ID Square Ft Condo SF Total Basement SF Finished Basement SF Garage SF Carport SF Balcony SF Porch SF
5 140 0 0 0 0 0 0 0


Built As Details for Building 5
ID Built As Square Ft Year Built Stories Length Width
5.00 Utility Building 140 1994 1 14 10

No Additional Details for Building 5




Building 6

AccountNo Building ID Occupancy
R6777258 6 Utility Building


ID Type NBHD Occupancy % Complete Bedrooms Baths
6 Out Building NA Utility Building 100 0 0.00


ID Exterior Roof Cover Interior HVAC Perimeter Units Unit Type Make
6 NA NA NA None 60 0 NA NA


ID Square Ft Condo SF Total Basement SF Finished Basement SF Garage SF Carport SF Balcony SF Porch SF
6 216 0 0 0 0 0 0 0


Built As Details for Building 6
ID Built As Square Ft Year Built Stories Length Width
6.00 Utility Building 216 1994 1 18 12

No Additional Details for Building 6






Account Parcel Account Type Tax Year Buildings Actual Value Local Govt Assessed Value School Assessed Value
R6777258 080704100061 Residential 2026 6 1,380,401 87,370 98,350

Type Code Description Actual Value Local Govt Assessed Value School Assessed Value Acres Land SqFt
Improvement 4277 FARM/RANCH RESIDENCE-IMPS 1,375,149 85,950 96,940 0.000 0
Improvement 4279 FARM RANCH SUPPORT BLDGS 4,630 1,250 1,250 0.000 0
Land 4127 DRY FARM LAND-AGRICULTURAL 313 80 80 3.669 159,822
Land 4137 MEADOW HAY LAND-AGRICULTURAL 293 80 80 6.900 300,564
Land 4167 WASTE LAND 16 10 0 2.490 108,464
Totals - - 1,380,401 87,370 98,350 13.059 568,850


Account Parcel Account Type Tax Year Buildings Actual Value Local Govt Assessed Value School Assessed Value
R6777258 080704100061 Residential 2026 6 1,380,401 87,370 98,350

Tax Area District ID District Name Local Govt
Mill Levy
School
Mill Levy
Estimated
Taxes
0405 0700 AIMS JUNIOR COLLEGE 6.313 0.000 $551.57
0405 1051 CLEARVIEW LIBRARY 3.546 0.000 $309.81
0405 0304 NORTH WELD COUNTY WATER (NWC) 0.000 0.000 $0.00
0405 0301 NORTHERN COLORADO WATER (NCW) 1.000 0.000 $87.37
0405 0204 SCHOOL DIST RE4-WINDSOR 0.000 46.646 $4,587.63
0405 0100 WELD COUNTY 15.956 0.000 $1,394.08
0405 0521 WINDSOR-SEVERANCE FIRE 8.535 0.000 $745.70
Total - - 35.35 46.646 $7,676.16


The estimate of tax is based on the prior year mill levy and the 2025 projected assessment rates. Mill levies and tax estimates will be updated yearly on December 22nd for the current year. Additional information can be found at https://assessor.weld.gov










Select Reports to Print: