Account: R6780298
April 1, 2026
| Account | Parcel | Account Type | Tax Year | Buildings | Actual Value | Local Govt Assessed Value | School Assessed Value |
|---|---|---|---|---|---|---|---|
| R6780298 | 147708400011 | Residential | 2026 | 1 | 627,313 | 39,210 | 44,220 |
| Legal |
|---|
| PT SE4 8 1 63 LOT A REC EXEMPT RE-5084 |
| Subdivision | Block | Lot | Land Economic Area |
|---|---|---|---|
| ECON 5 RURAL |
| Property Address | Property City | Section | Township | Range |
|---|---|---|---|---|
| 4401 COUNTY ROAD 65 | WELD | 08 | 01 | 63 |
| Account | Parcel | Account Type | Tax Year | Buildings | Actual Value | Local Govt Assessed Value | School Assessed Value |
|---|---|---|---|---|---|---|---|
| R6780298 | 147708400011 | Residential | 2026 | 1 | 627,313 | 39,210 | 44,220 |
| Account | Owner Name | Address |
|---|---|---|
| R6780298 | PEREZ J GUADALUPE PEREZ | 4401 COUNTY ROAD 65 KEENESBURG, CO 806438732 |
| R6780298 | ALONZO JOSE GUADALUPE PEREZ | |
| R6780298 | JAUREGUI ESTELA ALONZO |
| Account | Parcel | Account Type | Tax Year | Buildings | Actual Value | Local Govt Assessed Value | School Assessed Value |
|---|---|---|---|---|---|---|---|
| R6780298 | 147708400011 | Residential | 2026 | 1 | 627,313 | 39,210 | 44,220 |
| Reception | Rec Date | Type | Grantor | Grantee | Doc Fee | Sale Date | Sale Price |
|---|---|---|---|---|---|---|---|
| 3798370 | 10-12-2011 | RE | RECORDED EXEMPTION | RE-5084 | 0.00 | NA | 0 |
| 3798370 | 10-12-2011 | PLT | JOHNSON PEARL | 0.00 | 01-01-1900 | 0 | |
| 3943193 | 06-26-2013 | WDE | JOHNSON PEARL HELLENE | VILLARREAL ARMAND N | 22.20 | 06-21-2013 | 222,000 |
| 4417591 | 07-25-2018 | DN | VILLARREAL ARMAND N | ROCKY MOUNTAIN INVESTMENT GROUP LLC | 0.00 | 07-24-2018 | 0 |
| 4454228 | 12-17-2018 | WD | ROCKY MOUNTAIN INVESTMENT GROUP LLC | SALAZAR RAUDEL MARIN JR; SALAZAR CESAR E | 39.00 | 12-13-2018 | 390,000 |
| 4706747 | 04-21-2021 | WD | SALAZAR CESAR E; SALAZAR RAUDEL MARIN JR | PEREZ J GUADALUPE PEREZ; ALONZO JOSE GUADALUPE PEREZ | 53.00 | 04-19-2021 | 530,000 |
| 4706749 | 04-21-2021 | WDN | PEREZ J GUADALUPE PEREZ; ALONZO JOSE GUADALUPE PEREZ | JAUREGUI ESTELA ALONZO; PEREZ J GUADALUPE PEREZ; ALONZO JOSE GUADALUPE PEREZ | 0.00 | 04-20-2021 | 0 |
*If the hyperlink for the reception number does not work, try a manual search in the Clerk and Recorder records. Use the Grantor or Grantee in your search.
| Account | Parcel | Account Type | Tax Year | Buildings | Actual Value | Local Govt Assessed Value | School Assessed Value |
|---|---|---|---|---|---|---|---|
| R6780298 | 147708400011 | Residential | 2026 | 1 | 627,313 | 39,210 | 44,220 |
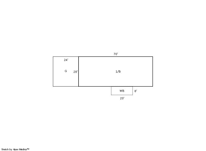
Building 1
| AccountNo | Building ID | Occupancy |
|---|---|---|
| R6780298 | 1 | Single Family Residential |
| ID | Type | NBHD | Occupancy | % Complete | Bedrooms | Baths |
|---|---|---|---|---|---|---|
| 1 | Residential | 5R0006 | Single Family Residential | 100 | 3 | 2.00 |
| ID | Exterior | Roof Cover | Interior | HVAC | Perimeter | Units | Unit Type | Make |
|---|---|---|---|---|---|---|---|---|
| 1 | Frame Vinyl | Composition Shingle | Drywall | Forced Air | 0 | 0 | NA | Magnolia |
| ID | Square Ft | Condo SF | Total Basement SF | Finished Basement SF | Garage SF | Carport SF | Balcony SF | Porch SF |
|---|---|---|---|---|---|---|---|---|
| 1 | 1,960 | 0 | 1,960 | 0 | 672 | 0 | 160 | 0 |
| ID | Built As | Square Ft | Year Built | Stories | Length | Width |
|---|---|---|---|---|---|---|
| 1.00 | Modular 1 Story | 1,960 | 1997 | 1 | 70 | 28 |
| ID | Detail Type | Description | Units |
|---|---|---|---|
| 1 | Balcony | Wood Wood Fin | 160.00 |
| 1 | Basement | Total Basement SF | 1960.00 |
| 1 | Fixture | Full Bath | 2.00 |
| 1 | Garage | Attached | 672.00 |
| Account | Parcel | Account Type | Tax Year | Buildings | Actual Value | Local Govt Assessed Value | School Assessed Value |
|---|---|---|---|---|---|---|---|
| R6780298 | 147708400011 | Residential | 2026 | 1 | 627,313 | 39,210 | 44,220 |
| Type | Code | Description | Actual Value | Local Govt Assessed Value | School Assessed Value | Acres | Land SqFt |
|---|---|---|---|---|---|---|---|
| Improvement | 1212 | SINGLE FAMILY RESIDENTIAL IMPROVEMENTS | 461,616 | 28,850 | 32,540 | 0.000 | 0 |
| Land | 1112 | SINGLE FAMILY RESIDENTIAL-LAND | 165,697 | 10,360 | 11,680 | 6.440 | 280,526 |
| Totals | - | - | 627,313 | 39,210 | 44,220 | 6.440 | 280,526 |
Comparable sales for your Residential or Commercial property may be found using our SALES SEARCH TOOL
Values are updated annually on May 1st for Real Property and June 15th for Personal Property and Oil and Gas.
| Account | Parcel | Account Type | Tax Year | Buildings | Actual Value | Local Govt Assessed Value | School Assessed Value |
|---|---|---|---|---|---|---|---|
| R6780298 | 147708400011 | Residential | 2026 | 1 | 627,313 | 39,210 | 44,220 |
| Tax Area | District ID | District Name | Local Govt Mill Levy |
School Mill Levy |
Estimated Taxes |
|---|---|---|---|---|---|
| 2449 | 0700 | AIMS JUNIOR COLLEGE | 6.313 | 0.000 | $247.53 |
| 2449 | 0302 | CENTRAL COLORADO WATER (CCW) | 0.980 | 0.000 | $38.43 |
| 2449 | 1050 | HIGH PLAINS LIBRARY | 3.044 | 0.000 | $119.36 |
| 2449 | 0308 | LOST CREEK GROUNDWATER (LCGW) | 0.945 | 0.000 | $37.05 |
| 2449 | 0518 | S. E. WELD FIRE | 10.470 | 0.000 | $410.53 |
| 2449 | 0203 | SCHOOL DIST RE3J-KEENESBURG | 0.000 | 15.822 | $699.65 |
| 2449 | 1208 | SOUTHEAST WELD CONSERVATION | 0.000 | 0.000 | $0.00 |
| 2449 | 0100 | WELD COUNTY | 15.956 | 0.000 | $625.63 |
| Total | - | - | 37.708 | 15.822 | $2,178.18 |
The estimate of tax is based on the prior year mill levy and the 2025 projected assessment rates. Mill levies and tax estimates will be updated yearly on December 22nd for the current year. Additional information can be found at https://assessor.weld.gov



