Account: R6780529

April 4, 2026

Account Parcel Account Type Tax Year Buildings Actual Value Local Govt Assessed Value School Assessed Value
R6780529 130327400029 Residential 2026 2 651,422 40,720 45,930

Legal
PT W2SE4 27 2 63 LOT A REC EXEMPT RE-5104

Subdivision Block Lot Land Economic Area
ECON 5 RURAL

Property Address Property City Section Township Range
33577 COUNTY ROAD 16 WELD 27 02 63




Account Parcel Account Type Tax Year Buildings Actual Value Local Govt Assessed Value School Assessed Value
R6780529 130327400029 Residential 2026 2 651,422 40,720 45,930

Account Owner Name Address
R6780529 ARNUSCH LAND COMPANY LLC 33521 COUNTY ROAD 16 KEENESBURG, CO 806438812


Account Parcel Account Type Tax Year Buildings Actual Value Local Govt Assessed Value School Assessed Value
R6780529 130327400029 Residential 2026 2 651,422 40,720 45,930

Reception Rec Date Type Grantor Grantee Doc Fee Sale Date Sale Price
3807642 11-22-2011 RE RECORDED EXEMPTION RE-5104 0.00 NA 0
3807642 11-22-2011 RE RE 5104 RE 5104 0.00 11-22-2011 0
3816839 01-09-2012 SWD ARNUSCH MARC C SHAKLEE CATHLEEN E 20.00 01-05-2012 200,000
3886278 11-02-2012 WDE SHAKLEE CATHLEEN E QUINTANA EUGENE M 25.96 10-31-2012 259,600
4800182 02-07-2022 SURV SURVEY SURVEY 0.00 07-27-2021 0
4850358 08-23-2022 SWD QUINTANA EUGENE M; QUINTANA KIMBERLY ARNUSCH LAND COMPANY LLC 31.50 08-18-2022 315,000



Account Parcel Account Type Tax Year Buildings Actual Value Local Govt Assessed Value School Assessed Value
R6780529 130327400029 Residential 2026 2 651,422 40,720 45,930

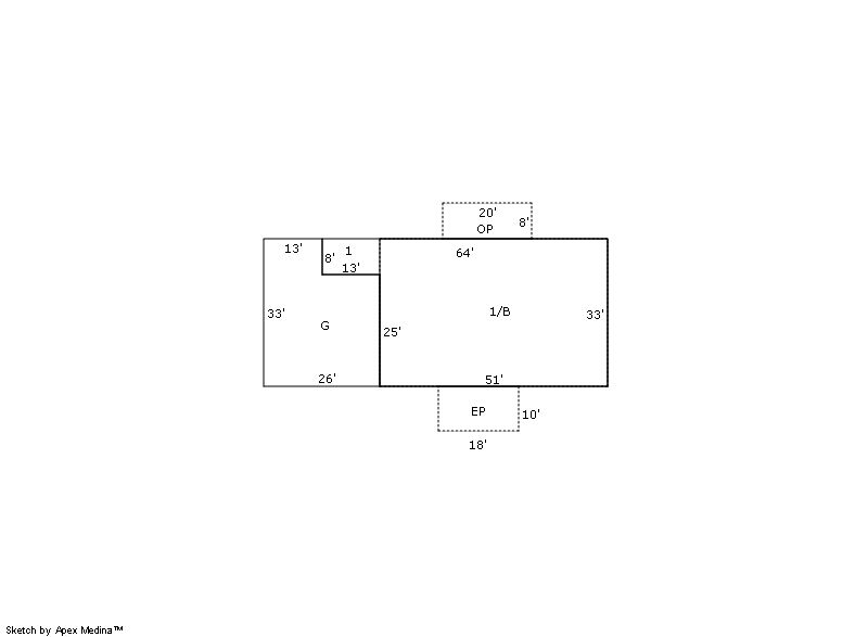
Building 1

AccountNo Building ID Occupancy
R6780529 1 Single Family Residential


ID Type NBHD Occupancy % Complete Bedrooms Baths
1 Residential 5R0006 Single Family Residential 100 4 2.00


ID Exterior Roof Cover Interior HVAC Perimeter Units Unit Type Make
1 Frame Masonry Veneer Composition Shingle Drywall Hot Water Baseboard 0 0 NA NA


ID Square Ft Condo SF Total Basement SF Finished Basement SF Garage SF Carport SF Balcony SF Porch SF
1 1,787 0 1,683 1,683 754 0 0 160


Built As Details for Building 1
ID Built As Square Ft Year Built Stories Length Width
1.00 Ranch 1 Story 1,787 1974 1 0 0


Additional Details for Building 1
ID Detail Type Description Units
1 Add On Fireplace Wood 2.00
1 Basement Finished 1683.00
1 Basement Total Basement SF 1683.00
1 Fixture Full Bath 2.00
1 Garage Attached 754.00
1 Porch Encl Solid Wall 180.00
1 Porch Slab Roof Ceil 160.00



Building 2

AccountNo Building ID Occupancy
R6780529 2 Utility Building


ID Type NBHD Occupancy % Complete Bedrooms Baths
2 Out Building NA Utility Building 100 0 0.00


ID Exterior Roof Cover Interior HVAC Perimeter Units Unit Type Make
2 NA NA NA None 192 0 NA NA


ID Square Ft Condo SF Total Basement SF Finished Basement SF Garage SF Carport SF Balcony SF Porch SF
2 1,820 0 0 0 0 0 0 0


Built As Details for Building 2
ID Built As Square Ft Year Built Stories Length Width
2.00 Utility Building 1,820 1950 1 70 26

No Additional Details for Building 2






Account Parcel Account Type Tax Year Buildings Actual Value Local Govt Assessed Value School Assessed Value
R6780529 130327400029 Residential 2026 2 651,422 40,720 45,930

Type Code Description Actual Value Local Govt Assessed Value School Assessed Value Acres Land SqFt
Improvement 1212 SINGLE FAMILY RESIDENTIAL IMPROVEMENTS 526,205 32,890 37,100 0.000 0
Land 1112 SINGLE FAMILY RESIDENTIAL-LAND 125,217 7,830 8,830 2.720 118,483
Totals - - 651,422 40,720 45,930 2.720 118,483


Account Parcel Account Type Tax Year Buildings Actual Value Local Govt Assessed Value School Assessed Value
R6780529 130327400029 Residential 2026 2 651,422 40,720 45,930

Tax Area District ID District Name Local Govt
Mill Levy
School
Mill Levy
Estimated
Taxes
2449 0700 AIMS JUNIOR COLLEGE 6.313 0.000 $257.07
2449 0302 CENTRAL COLORADO WATER (CCW) 0.980 0.000 $39.91
2449 1050 HIGH PLAINS LIBRARY 3.044 0.000 $123.95
2449 0308 LOST CREEK GROUNDWATER (LCGW) 0.945 0.000 $38.48
2449 0518 S. E. WELD FIRE 10.470 0.000 $426.34
2449 0203 SCHOOL DIST RE3J-KEENESBURG 0.000 15.822 $726.70
2449 1208 SOUTHEAST WELD CONSERVATION 0.000 0.000 $0.00
2449 0100 WELD COUNTY 15.956 0.000 $649.73
Total - - 37.708 15.822 $2,262.17


The estimate of tax is based on the prior year mill levy and the 2025 projected assessment rates. Mill levies and tax estimates will be updated yearly on December 22nd for the current year. Additional information can be found at https://assessor.weld.gov










Select Reports to Print: