Account: R6782990

April 1, 2026

Account Parcel Account Type Tax Year Buildings Actual Value Local Govt Assessed Value School Assessed Value
R6782990 131334352010 Residential 2026 1 645,464 40,340 45,510

Legal
L10 BLK15A WYNDHAM HILL 1ST FG RPLT A

Subdivision Block Lot Land Economic Area
WYNDHAM HILL 1ST FG RPLT A 15A 10 WYNDHAM HILLS

Property Address Property City Section Township Range
6256 WALNUT GROVE ST FREDERICK 34 02 68




Account Parcel Account Type Tax Year Buildings Actual Value Local Govt Assessed Value School Assessed Value
R6782990 131334352010 Residential 2026 1 645,464 40,340 45,510

Account Owner Name Address
R6782990 WANEKA JASON 6256 WALNUT GROVE ST FREDERICK, CO 805169506
R6782990 WANEKA MICHELE L


Account Parcel Account Type Tax Year Buildings Actual Value Local Govt Assessed Value School Assessed Value
R6782990 131334352010 Residential 2026 1 645,464 40,340 45,510

Reception Rec Date Type Grantor Grantee Doc Fee Sale Date Sale Price
3849377 NA SUB SUBDIVISION WYNDHAM HILL FG #1 RPLT A 0.00 NA 0
3849377 05-31-2012 PLT WYNDHAM HILL FG 1 RPLT A 0.00 01-01-1900 0
4003025 03-18-2014 SWD RICHMOND AMERICAN HOMES RAYBURN EMILY LENAE 35.50 03-14-2014 355,000
4406905 06-13-2018 WD RAYBURN EMILY LENAE; RAYBURN PATRICK LANCE HEATHMAN JASON HUGH 47.00 06-11-2018 470,000
4604275 07-01-2020 WD HEATHMAN JASON HUGH WANEKA JASON; WANEKA MICHELE L 49.00 06-30-2020 490,000



Account Parcel Account Type Tax Year Buildings Actual Value Local Govt Assessed Value School Assessed Value
R6782990 131334352010 Residential 2026 1 645,464 40,340 45,510

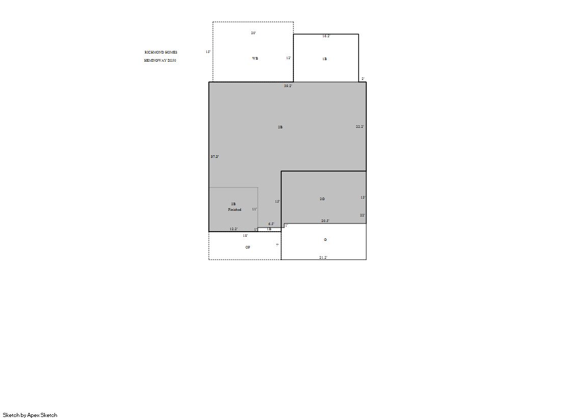
Building 1

AccountNo Building ID Occupancy
R6782990 1 Single Family Residential


ID Type NBHD Occupancy % Complete Bedrooms Baths
1 Residential 3K2030 Single Family Residential 100 5 3.00


ID Exterior Roof Cover Interior HVAC Perimeter Units Unit Type Make
1 Frame Hardboard Composition Shingle Drywall Central Air to Air 330 0 NA NA


ID Square Ft Condo SF Total Basement SF Finished Basement SF Garage SF Carport SF Balcony SF Porch SF
1 2,746 0 1,335 134 466 0 300 126


Built As Details for Building 1
ID Built As Square Ft Year Built Stories Length Width
1.00 2 Story 2,746 2013 2 0 0


Additional Details for Building 1
ID Detail Type Description Units
1 Add On Fireplace Gas 1.00
1 Balcony Wood Wood Fin 300.00
1 Basement Finished 134.00
1 Basement Total Basement SF 1335.00
1 Fixture Full Bath 2.00
1 Fixture Half Bath 1.00
1 Garage Attached 466.00
1 Porch Slab Roof Ceil 126.00
1 Rough In Rough In 1.00





Account Parcel Account Type Tax Year Buildings Actual Value Local Govt Assessed Value School Assessed Value
R6782990 131334352010 Residential 2026 1 645,464 40,340 45,510

Type Code Description Actual Value Local Govt Assessed Value School Assessed Value Acres Land SqFt
Improvement 1212 SINGLE FAMILY RESIDENTIAL IMPROVEMENTS 530,464 33,150 37,400 0.000 0
Land 1112 SINGLE FAMILY RESIDENTIAL-LAND 115,000 7,190 8,110 0.162 7,066
Totals - - 645,464 40,340 45,510 0.162 7,066


Account Parcel Account Type Tax Year Buildings Actual Value Local Govt Assessed Value School Assessed Value
R6782990 131334352010 Residential 2026 1 645,464 40,340 45,510

Tax Area District ID District Name Local Govt
Mill Levy
School
Mill Levy
Estimated
Taxes
4118 0900 CARBON VALLEY REC 4.427 0.000 $178.59
4118 0408 FREDERICK TOWN 6.555 0.000 $264.43
4118 0507 FREDERICK-FIRESTONE FIRE 15.559 0.000 $627.65
4118 1050 HIGH PLAINS LIBRARY 3.044 0.000 $122.79
4118 0311 LEFT HAND WATER 0.000 0.000 $0.00
4118 1202 LONGMONT CONSERVATION 0.000 0.000 $0.00
4118 0301 NORTHERN COLORADO WATER (NCW) 1.000 0.000 $40.34
4118 0213 SCHOOL DIST RE1J-LONGMONT 0.000 57.717 $2,626.70
4118 0620 ST VRAIN SANITATION 0.316 0.000 $12.75
4118 0100 WELD COUNTY 15.956 0.000 $643.67
4118 1357 WYNDHAM HILL METRO 2 63.054 0.000 $2,543.60
Total - - 109.911 57.717 $7,060.51


The estimate of tax is based on the prior year mill levy and the 2025 projected assessment rates. Mill levies and tax estimates will be updated yearly on December 22nd for the current year. Additional information can be found at https://assessor.weld.gov










Select Reports to Print: