Account: R6783345

April 1, 2026

Account Parcel Account Type Tax Year Buildings Actual Value Local Govt Assessed Value School Assessed Value
R6783345 080707430005 Residential 2026 1 515,591 32,220 36,350

Legal
L5 BLK19 WINDSHIRE PARK 3RD FG

Subdivision Block Lot Land Economic Area
WINDSHIRE PARK 3RD FG 19 5 WINDSHIRE PARK

Property Address Property City Section Township Range
915 BIRCHDALE CT WINDSOR 07 06 67




Account Parcel Account Type Tax Year Buildings Actual Value Local Govt Assessed Value School Assessed Value
R6783345 080707430005 Residential 2026 1 515,591 32,220 36,350

Account Owner Name Address
R6783345 BARKER STEVEN RYAN 915 BIRCHDALE CT WINDSOR, CO 805502760


Account Parcel Account Type Tax Year Buildings Actual Value Local Govt Assessed Value School Assessed Value
R6783345 080707430005 Residential 2026 1 515,591 32,220 36,350

Reception Rec Date Type Grantor Grantee Doc Fee Sale Date Sale Price
3902349 NA SUB SUBDIVISION WINDSHIRE PARK 3RD FG 0.00 NA 0
4211652 06-15-2016 WD WINDSOR FARM INVESTMENTS LLC WINDSHIRE GROUP DEVELOPMENT INC 575.00 06-13-2016 5,750,000
4365605 01-05-2018 SWDN WINDSHIRE GROUP DEVELOPMENT INC MELODY HOMES INC 0.00 01-04-2018 0
4419628 07-31-2018 SWD MELODY HOMES INC BARKER STEVEN RYAN 37.56 07-26-2018 375,600



Account Parcel Account Type Tax Year Buildings Actual Value Local Govt Assessed Value School Assessed Value
R6783345 080707430005 Residential 2026 1 515,591 32,220 36,350

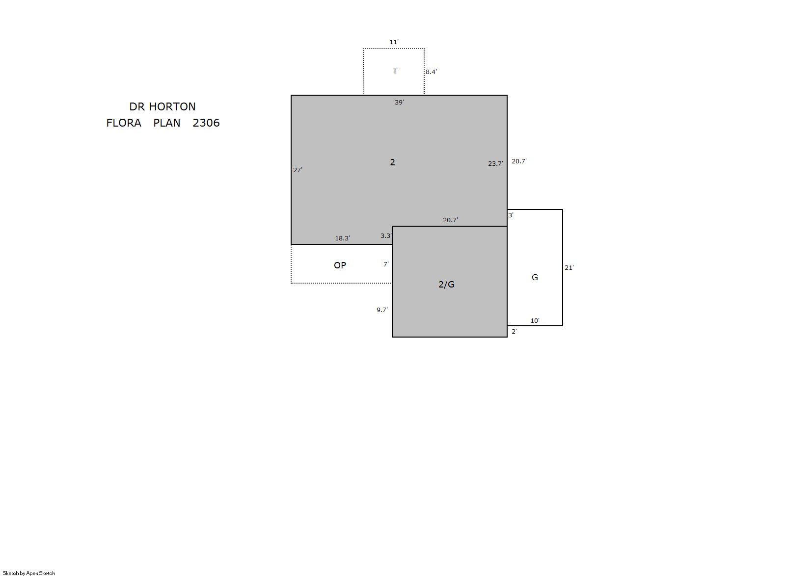
Building 1

AccountNo Building ID Occupancy
R6783345 1 Single Family Residential


ID Type NBHD Occupancy % Complete Bedrooms Baths
1 Residential 2W0016 Single Family Residential 100 3 3.00


ID Exterior Roof Cover Interior HVAC Perimeter Units Unit Type Make
1 Frame Siding Composition Shingle Drywall Central Air to Air 297 0 NA NA


ID Square Ft Condo SF Total Basement SF Finished Basement SF Garage SF Carport SF Balcony SF Porch SF
1 2,384 0 0 0 624 0 0 92


Built As Details for Building 1
ID Built As Square Ft Year Built Stories Length Width
1.00 2 Story 2,384 2018 2 0 0


Additional Details for Building 1
ID Detail Type Description Units
1 Fixture Full Bath 2.00
1 Fixture Half Bath 1.00
1 Garage Attached 624.00
1 Porch Open Slab 92.00
1 Porch Slab Roof Ceil 128.00





Account Parcel Account Type Tax Year Buildings Actual Value Local Govt Assessed Value School Assessed Value
R6783345 080707430005 Residential 2026 1 515,591 32,220 36,350

Type Code Description Actual Value Local Govt Assessed Value School Assessed Value Acres Land SqFt
Improvement 1212 SINGLE FAMILY RESIDENTIAL IMPROVEMENTS 410,591 25,660 28,950 0.000 0
Land 1112 SINGLE FAMILY RESIDENTIAL-LAND 105,000 6,560 7,400 0.167 7,287
Totals - - 515,591 32,220 36,350 0.167 7,287


Account Parcel Account Type Tax Year Buildings Actual Value Local Govt Assessed Value School Assessed Value
R6783345 080707430005 Residential 2026 1 515,591 32,220 36,350

Tax Area District ID District Name Local Govt
Mill Levy
School
Mill Levy
Estimated
Taxes
3480 0700 AIMS JUNIOR COLLEGE 6.313 0.000 $203.40
3480 1051 CLEARVIEW LIBRARY 3.546 0.000 $114.25
3480 0304 NORTH WELD COUNTY WATER (NWC) 0.000 0.000 $0.00
3480 0301 NORTHERN COLORADO WATER (NCW) 1.000 0.000 $32.22
3480 0204 SCHOOL DIST RE4-WINDSOR 0.000 46.646 $1,695.58
3480 0100 WELD COUNTY 15.956 0.000 $514.10
3480 1200 WEST GREELEY CONSERVATION 0.414 0.000 $13.34
3480 1386 WINDSHIRE PARK METRO 2 38.695 0.000 $1,246.75
3480 0428 WINDSOR TOWN 12.030 0.000 $387.61
3480 0521 WINDSOR-SEVERANCE FIRE 8.535 0.000 $275.00
Total - - 86.489 46.646 $4,482.26


The estimate of tax is based on the prior year mill levy and the 2025 projected assessment rates. Mill levies and tax estimates will be updated yearly on December 22nd for the current year. Additional information can be found at https://assessor.weld.gov










Select Reports to Print: