Account: R6784454

April 2, 2026

Account Parcel Account Type Tax Year Buildings Actual Value Local Govt Assessed Value School Assessed Value
R6784454 131334361016 Residential 2026 1 722,973 45,190 50,970

Legal
L16 BLK5 WYNDHAM HILL FG #1 RPLT B

Subdivision Block Lot Land Economic Area
WYNDHAM HILL FG #1 REPLAT B 5 16 WYNDHAM HILLS

Property Address Property City Section Township Range
6532 EMPIRE AVE FREDERICK 34 02 68




Account Parcel Account Type Tax Year Buildings Actual Value Local Govt Assessed Value School Assessed Value
R6784454 131334361016 Residential 2026 1 722,973 45,190 50,970

Account Owner Name Address
R6784454 AGNEW TIMOTHY M 6532 EMPIRE AVE FREDERICK, CO 805169756
R6784454 AGNEW ELIZABETH K


Account Parcel Account Type Tax Year Buildings Actual Value Local Govt Assessed Value School Assessed Value
R6784454 131334361016 Residential 2026 1 722,973 45,190 50,970

Reception Rec Date Type Grantor Grantee Doc Fee Sale Date Sale Price
3946798 NA SUB SUBDIVISION WYNDHAM HILL FG #1 RPLT B 0.00 NA 0
3946798 07-11-2013 PLT WYNDHAM FILING NO 1 RPLT B 0.00 01-01-1900 0
3951734 07-30-2013 SWD FREDERICK DEVELOPMENT COMPANY INC RICHMOND AMERICAN HOMES COLORDO INC 141.39 07-24-2013 1,413,900
4216357 07-06-2016 SWD RICHMOND AMERICAN HOMES OF COLORADO INC AUSHERMAN HEIDI; SMITH KENNETH 47.96 06-22-2016 479,600
4749410 08-25-2021 WD AUSHERMAN HEIDI; SMITH KENNETH AGNEW TIMOTHY M; AGNEW ELIZABETH K 63.50 08-20-2021 635,000



Account Parcel Account Type Tax Year Buildings Actual Value Local Govt Assessed Value School Assessed Value
R6784454 131334361016 Residential 2026 1 722,973 45,190 50,970

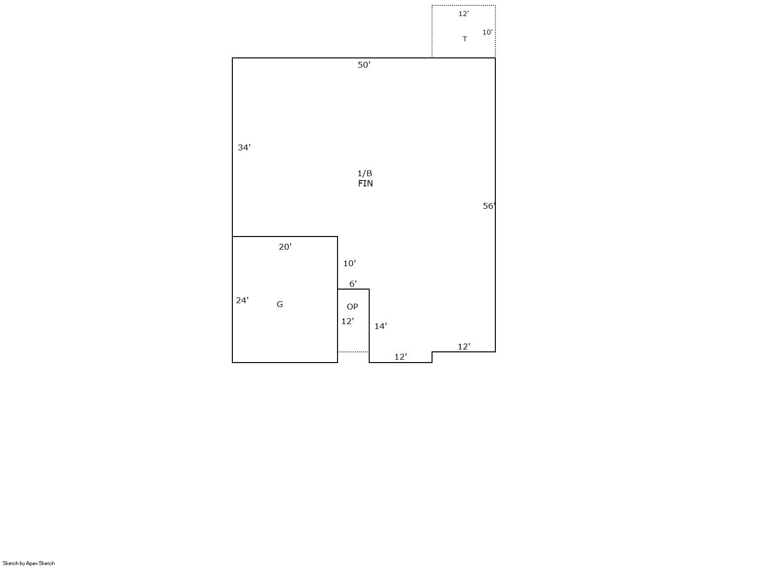
Building 1

AccountNo Building ID Occupancy
R6784454 1 Single Family Residential


ID Type NBHD Occupancy % Complete Bedrooms Baths
1 Residential 3K2030 Single Family Residential 100 6 3.00


ID Exterior Roof Cover Interior HVAC Perimeter Units Unit Type Make
1 Frame Siding Composition Shingle Drywall Central Air to Air 216 0 NA NA


ID Square Ft Condo SF Total Basement SF Finished Basement SF Garage SF Carport SF Balcony SF Porch SF
1 2,312 0 2,312 2,312 480 0 0 72


Built As Details for Building 1
ID Built As Square Ft Year Built Stories Length Width
1.00 Ranch 1 Story 2,312 2015 1 0 0


Additional Details for Building 1
ID Detail Type Description Units
1 Add On Fireplace Gas 1.00
1 Basement Finished 2312.00
1 Basement Total Basement SF 2312.00
1 Fixture Full Bath 3.00
1 Garage Attached 480.00
1 Porch Open Slab 120.00
1 Porch Slab Roof Ceil 72.00
1 Rough In Rough In 1.00





Account Parcel Account Type Tax Year Buildings Actual Value Local Govt Assessed Value School Assessed Value
R6784454 131334361016 Residential 2026 1 722,973 45,190 50,970

Type Code Description Actual Value Local Govt Assessed Value School Assessed Value Acres Land SqFt
Improvement 1212 SINGLE FAMILY RESIDENTIAL IMPROVEMENTS 607,973 38,000 42,860 0.000 0
Land 1112 SINGLE FAMILY RESIDENTIAL-LAND 115,000 7,190 8,110 0.152 6,600
Totals - - 722,973 45,190 50,970 0.152 6,600


Account Parcel Account Type Tax Year Buildings Actual Value Local Govt Assessed Value School Assessed Value
R6784454 131334361016 Residential 2026 1 722,973 45,190 50,970

Tax Area District ID District Name Local Govt
Mill Levy
School
Mill Levy
Estimated
Taxes
4118 0900 CARBON VALLEY REC 4.427 0.000 $200.06
4118 0408 FREDERICK TOWN 6.555 0.000 $296.22
4118 0507 FREDERICK-FIRESTONE FIRE 15.559 0.000 $703.11
4118 1050 HIGH PLAINS LIBRARY 3.044 0.000 $137.56
4118 0311 LEFT HAND WATER 0.000 0.000 $0.00
4118 1202 LONGMONT CONSERVATION 0.000 0.000 $0.00
4118 0301 NORTHERN COLORADO WATER (NCW) 1.000 0.000 $45.19
4118 0213 SCHOOL DIST RE1J-LONGMONT 0.000 57.717 $2,941.84
4118 0620 ST VRAIN SANITATION 0.316 0.000 $14.28
4118 0100 WELD COUNTY 15.956 0.000 $721.05
4118 1357 WYNDHAM HILL METRO 2 63.054 0.000 $2,849.41
Total - - 109.911 57.717 $7,908.71


The estimate of tax is based on the prior year mill levy and the 2025 projected assessment rates. Mill levies and tax estimates will be updated yearly on December 22nd for the current year. Additional information can be found at https://assessor.weld.gov










Select Reports to Print: