Account: R6784525

April 1, 2026

Account Parcel Account Type Tax Year Buildings Actual Value Local Govt Assessed Value School Assessed Value
R6784525 106106102003 Residential 2026 2 1,025,495 64,100 72,300

Legal
L3 MEADOW ESTATES PUD

Subdivision Block Lot Land Economic Area
MEADOW ESTATES PUD 1 THE MEADOWS ESTATES PUD

Property Address Property City Section Township Range
849 SCHRAGE WAY WELD 06 04 68




Account Parcel Account Type Tax Year Buildings Actual Value Local Govt Assessed Value School Assessed Value
R6784525 106106102003 Residential 2026 2 1,025,495 64,100 72,300

Account Owner Name Address
R6784525 DOOLITTLE ANN MARIE 849 SCHRAGE WAY LOVELAND, CO 805378203


Account Parcel Account Type Tax Year Buildings Actual Value Local Govt Assessed Value School Assessed Value
R6784525 106106102003 Residential 2026 2 1,025,495 64,100 72,300

Reception Rec Date Type Grantor Grantee Doc Fee Sale Date Sale Price
3611557 03-18-2009 COZ WELD COUNTY ZONING CASE: PZ-1079 ZONING E, PUD 0.00 NA 0
3948537 NA SUB SUBDIVISION MEADOWS ESTATES PUD 0.00 NA 0
3948537 07-18-2013 PLT MEADOW ESTATES P U D PF 1079 MEADOW ESTATES P U D PF 1079 0.00 10-23-2012 0
4077533 01-21-2015 PLT MEADOWS ESTATES PUD MEADOWS ESTATES PUD 0.00 01-21-2015 0
4088460 03-06-2015 WD SCHRAGE LIVING TRUST DOOLITTLE ANN MARIE 18.00 03-06-2015 180,000



Account Parcel Account Type Tax Year Buildings Actual Value Local Govt Assessed Value School Assessed Value
R6784525 106106102003 Residential 2026 2 1,025,495 64,100 72,300

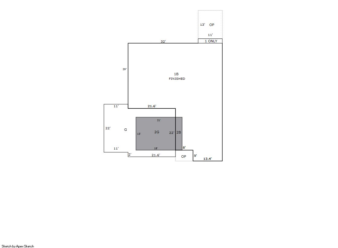
Building 1

AccountNo Building ID Occupancy
R6784525 1 Single Family Residential


ID Type NBHD Occupancy % Complete Bedrooms Baths
1 Residential 0R0061 Single Family Residential 100 4 3.00


ID Exterior Roof Cover Interior HVAC Perimeter Units Unit Type Make
1 Frame Siding Composition Shingle Drywall Central Air to Air 270 0 NA NA


ID Square Ft Condo SF Total Basement SF Finished Basement SF Garage SF Carport SF Balcony SF Porch SF
1 2,092 0 1,755 1,755 717 0 0 183


Built As Details for Building 1
ID Built As Square Ft Year Built Stories Length Width
1.00 1 1/2 Story Fin 2,092 2015 2 0 0


Additional Details for Building 1
ID Detail Type Description Units
1 Add On Fireplace Gas 1.00
1 Basement Finished 1755.00
1 Basement Total Basement SF 1755.00
1 Fixture Full Bath 4.00
1 Garage Attached 717.00
1 Porch Slab Roof Ceil 183.00



Building 2

AccountNo Building ID Occupancy
R6784525 2 Equipment Building


ID Type NBHD Occupancy % Complete Bedrooms Baths
2 Out Building NA Equipment Building 100 NA 0.00


ID Exterior Roof Cover Interior HVAC Perimeter Units Unit Type Make
2 NA NA NA None 132 0 NA NA


ID Square Ft Condo SF Total Basement SF Finished Basement SF Garage SF Carport SF Balcony SF Porch SF
2 1,080 0 0 0 0 0 0 0


Built As Details for Building 2
ID Built As Square Ft Year Built Stories Length Width
2.00 Equipment Building 1,080 2015 1 30 36


Additional Details for Building 2
ID Detail Type Description Units
2 Add On OB Open Shelter Lean To Steel 0.00
2 Add On OB Open Shelter Lean To Wood 360.00





Account Parcel Account Type Tax Year Buildings Actual Value Local Govt Assessed Value School Assessed Value
R6784525 106106102003 Residential 2026 2 1,025,495 64,100 72,300

Type Code Description Actual Value Local Govt Assessed Value School Assessed Value Acres Land SqFt
Improvement 1212 SINGLE FAMILY RESIDENTIAL IMPROVEMENTS 770,040 48,130 54,290 0.000 0
Land 1112 SINGLE FAMILY RESIDENTIAL-LAND 255,455 15,970 18,010 3.210 139,828
Totals - - 1,025,495 64,100 72,300 3.210 139,828


Account Parcel Account Type Tax Year Buildings Actual Value Local Govt Assessed Value School Assessed Value
R6784525 106106102003 Residential 2026 2 1,025,495 64,100 72,300

Tax Area District ID District Name Local Govt
Mill Levy
School
Mill Levy
Estimated
Taxes
5915 0502 BERTHOUD FIRE 13.342 0.000 $855.22
5915 1050 HIGH PLAINS LIBRARY 3.044 0.000 $195.12
5915 1206 LARIMER CONSERVATION DISTRICT 0.000 0.000 $0.00
5915 0306 LITTLE THOMPSON WATER (LTW) 0.000 0.000 $0.00
5915 0301 NORTHERN COLORADO WATER (NCW) 1.000 0.000 $64.10
5915 0214 SCHOOL DIST R2J-LOVELAND 0.000 44.836 $3,241.64
5915 0100 WELD COUNTY 15.956 0.000 $1,022.78
Total - - 33.342 44.836 $5,378.87


The estimate of tax is based on the prior year mill levy and the 2025 projected assessment rates. Mill levies and tax estimates will be updated yearly on December 22nd for the current year. Additional information can be found at https://assessor.weld.gov










Select Reports to Print: