Account: R6784941

April 1, 2026

Account Parcel Account Type Tax Year Buildings Actual Value Local Govt Assessed Value School Assessed Value
R6784941 120934200003 Agricultural 2026 6 479,633 37,000 40,560

Legal
PT NW4 34-3-67 LOT A REC EXEMPT RECX13-0086

Subdivision Block Lot Land Economic Area
NW ECON 4 RURAL

Property Address Property City Section Township Range
9268 COUNTY ROAD 28 WELD 34 03 67




Account Parcel Account Type Tax Year Buildings Actual Value Local Govt Assessed Value School Assessed Value
R6784941 120934200003 Agricultural 2026 6 479,633 37,000 40,560

Account Owner Name Address
R6784941 MARTINI JOHN I 9268 COUNTY ROAD 28 PLATTEVILLE, CO 806519119
R6784941 MARTINI KIMBERLY R


Account Parcel Account Type Tax Year Buildings Actual Value Local Govt Assessed Value School Assessed Value
R6784941 120934200003 Agricultural 2026 6 479,633 37,000 40,560

Reception Rec Date Type Grantor Grantee Doc Fee Sale Date Sale Price
3970886 10-15-2013 RE RECORDED EXEMPTION RECX13-0086 0.00 NA 0
3970886 10-15-2013 RE RECX13 0086 RECX13 0086 0.00 10-15-2013 0
3973505 10-24-2013 WDE WILSON ROBERTA M MARTINI JOHN I 45.99 10-24-2013 459,900
5038181 06-27-2025 BN MARTINI JOHN I; MARTINI KIMBERLY R MARTINI JOHN I; MARTINI KIMBERLY R 0.00 06-27-2025 0



Account Parcel Account Type Tax Year Buildings Actual Value Local Govt Assessed Value School Assessed Value
R6784941 120934200003 Agricultural 2026 6 479,633 37,000 40,560

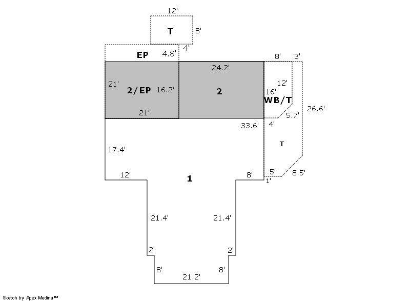
Building 1

AccountNo Building ID Occupancy
R6784941 1 Single Family Residential on Ag


ID Type NBHD Occupancy % Complete Bedrooms Baths
1 Residential 4R1013 Single Family Residential on Ag 100 3 4.00


ID Exterior Roof Cover Interior HVAC Perimeter Units Unit Type Make
1 Frame Masonry Veneer Composition Shingle Drywall Central Air to Air 0 0 NA NA


ID Square Ft Condo SF Total Basement SF Finished Basement SF Garage SF Carport SF Balcony SF Porch SF
1 2,619 0 0 0 0 0 120 437


Built As Details for Building 1
ID Built As Square Ft Year Built Stories Length Width
1.00 2 Story 2,619 1900 2 0 0


Additional Details for Building 1
ID Detail Type Description Units
1 Add On Fireplace Wood 1.00
1 Add On Heat Cool Air Separate Ducts 1.00
1 Add On Swimming Pools 1.00
1 Balcony Wood Wood Fin 120.00
1 Fixture Full Bath 3.00
1 Fixture Half Bath 1.00
1 Porch Encl Solid Wall 441.00
1 Porch Open Slab 437.00



Building 2

AccountNo Building ID Occupancy
R6784941 2 Utility Building


ID Type NBHD Occupancy % Complete Bedrooms Baths
2 Out Building NA Utility Building 100 0 0.00


ID Exterior Roof Cover Interior HVAC Perimeter Units Unit Type Make
2 NA NA NA None 54 0 NA NA


ID Square Ft Condo SF Total Basement SF Finished Basement SF Garage SF Carport SF Balcony SF Porch SF
2 180 0 0 0 0 0 0 0


Built As Details for Building 2
ID Built As Square Ft Year Built Stories Length Width
2.00 Utility Building 180 1950 0 15 12

No Additional Details for Building 2




Building 3

AccountNo Building ID Occupancy
R6784941 3 Barn


ID Type NBHD Occupancy % Complete Bedrooms Baths
3 Out Building NA Barn 100 0 0.00


ID Exterior Roof Cover Interior HVAC Perimeter Units Unit Type Make
3 NA NA NA None 140 0 NA NA


ID Square Ft Condo SF Total Basement SF Finished Basement SF Garage SF Carport SF Balcony SF Porch SF
3 3,172 0 0 0 0 0 0 0


Built As Details for Building 3
ID Built As Square Ft Year Built Stories Length Width
3.00 Barn 2,068 1950 1 47 44
3.00 Utility Building 1,104 1950 1 46 24


Additional Details for Building 3
ID Detail Type Description Units
3 Add On OB Open Shelter Lean To Wood 320.00



Building 4

AccountNo Building ID Occupancy
R6784941 4 Shed - Hay


ID Type NBHD Occupancy % Complete Bedrooms Baths
4 Out Building NA Shed - Hay 100 0 0.00


ID Exterior Roof Cover Interior HVAC Perimeter Units Unit Type Make
4 NA NA NA None NA 0 NA NA


ID Square Ft Condo SF Total Basement SF Finished Basement SF Garage SF Carport SF Balcony SF Porch SF
4 1,296 0 0 0 0 0 0 0


Built As Details for Building 4
ID Built As Square Ft Year Built Stories Length Width
4.00 Shed - Hay 1,296 1950 1 54 24


Additional Details for Building 4
ID Detail Type Description Units
4 Add On OB Open Shelter Lean To Wood 1.00



Building 5

AccountNo Building ID Occupancy
R6784941 5 Utility Building


ID Type NBHD Occupancy % Complete Bedrooms Baths
5 Out Building NA Utility Building 100 0 0.00


ID Exterior Roof Cover Interior HVAC Perimeter Units Unit Type Make
5 NA NA NA None 100 0 NA NA


ID Square Ft Condo SF Total Basement SF Finished Basement SF Garage SF Carport SF Balcony SF Porch SF
5 600 0 0 0 0 0 0 0


Built As Details for Building 5
ID Built As Square Ft Year Built Stories Length Width
5.00 Utility Building 600 1950 1 30 20

No Additional Details for Building 5




Building 6

AccountNo Building ID Occupancy
R6784941 6 Utility Building


ID Type NBHD Occupancy % Complete Bedrooms Baths
6 Out Building NA Utility Building 100 0 0.00


ID Exterior Roof Cover Interior HVAC Perimeter Units Unit Type Make
6 NA NA NA None NA 0 NA NA


ID Square Ft Condo SF Total Basement SF Finished Basement SF Garage SF Carport SF Balcony SF Porch SF
6 1,056 0 0 0 0 0 0 0


Built As Details for Building 6
ID Built As Square Ft Year Built Stories Length Width
6.00 Utility Building 748 1950 1 34 22
6.00 Utility Building 308 1950 1 22 14

No Additional Details for Building 6






Account Parcel Account Type Tax Year Buildings Actual Value Local Govt Assessed Value School Assessed Value
R6784941 120934200003 Agricultural 2026 6 479,633 37,000 40,560

Type Code Description Actual Value Local Govt Assessed Value School Assessed Value Acres Land SqFt
Improvement 4277 FARM/RANCH RESIDENCE-IMPS 445,815 27,860 31,430 0.000 0
Improvement 4279 FARM RANCH SUPPORT BLDGS 33,643 9,080 9,080 0.000 0
Land 4147 GRAZING LAND-AGRICULTURAL 173 50 50 7.200 313,632
Land 4167 WASTE LAND 2 10 0 0.360 15,682
Totals - - 479,633 37,000 40,560 7.560 329,314


Account Parcel Account Type Tax Year Buildings Actual Value Local Govt Assessed Value School Assessed Value
R6784941 120934200003 Agricultural 2026 6 479,633 37,000 40,560

Tax Area District ID District Name Local Govt
Mill Levy
School
Mill Levy
Estimated
Taxes
2179 0700 AIMS JUNIOR COLLEGE 6.313 0.000 $233.58
2179 0305 CENTRAL WELD COUNTY WATER (CWC) 0.000 0.000 $0.00
2179 1050 HIGH PLAINS LIBRARY 3.044 0.000 $112.63
2179 0301 NORTHERN COLORADO WATER (NCW) 1.000 0.000 $37.00
2179 1201 PLATTE VALLEY CONSERVATION 0.000 0.000 $0.00
2179 0516 PLATTEVILLE-GILCREST FIRE 7.540 0.000 $278.98
2179 0201 SCHOOL DIST RE1-GILCREST 0.000 15.382 $623.89
2179 0100 WELD COUNTY 15.956 0.000 $590.37
Total - - 33.853 15.382 $1,876.45


The estimate of tax is based on the prior year mill levy and the 2025 projected assessment rates. Mill levies and tax estimates will be updated yearly on December 22nd for the current year. Additional information can be found at https://assessor.weld.gov










Select Reports to Print: