Account: R6785033
April 4, 2026
| Account | Parcel | Account Type | Tax Year | Buildings | Actual Value | Local Govt Assessed Value | School Assessed Value |
|---|---|---|---|---|---|---|---|
| R6785033 | 146717322006 | Residential | 2026 | 1 | 848,927 | 53,060 | 59,850 |
| Legal |
|---|
| LOT 6 BLOCK 3 DAYBREAK FG #2B |
| Subdivision | Block | Lot | Land Economic Area |
|---|---|---|---|
| DAYBREAK FG #2B | 3 | 6 | COLLIERS HILL |
| Property Address | Property City | Section | Township | Range |
|---|---|---|---|---|
| 538 POLARIS CIR | ERIE | 17 | 01 | 68 |
| Account | Parcel | Account Type | Tax Year | Buildings | Actual Value | Local Govt Assessed Value | School Assessed Value |
|---|---|---|---|---|---|---|---|
| R6785033 | 146717322006 | Residential | 2026 | 1 | 848,927 | 53,060 | 59,850 |
| Account | Owner Name | Address |
|---|---|---|
| R6785033 | KOLLING SABRINA | 538 POLARIS CIR ERIE, CO 805162565 |
| R6785033 | KOLLING BRANDON |
| Account | Parcel | Account Type | Tax Year | Buildings | Actual Value | Local Govt Assessed Value | School Assessed Value |
|---|---|---|---|---|---|---|---|
| R6785033 | 146717322006 | Residential | 2026 | 1 | 848,927 | 53,060 | 59,850 |
| Reception | Rec Date | Type | Grantor | Grantee | Doc Fee | Sale Date | Sale Price |
|---|---|---|---|---|---|---|---|
| 3958996 | 08-26-2013 | ORD | DAYBREAK METROPOLITAN DISTRICT NO 1 | 0.00 | 01-01-1900 | 0 | |
| 3974455 | NA | SUB | SUBDIVISION | DAYBREAK FG #2B | 0.00 | NA | 0 |
| 3974455 | 10-30-2013 | PLT | DAYBREAK FG NO 2B FINAL PLAT | DAYBREAK FG NO 2B FINAL PLAT | 0.00 | 10-30-2013 | 0 |
| 3974467 | 10-30-2013 | SWD | COMMUNITY DEVELOPMENT GROUP ERIE INC | SHEA HOMES LIMITED PARTNERSHIP | 467.18 | 05-22-2013 | 4,671,800 |
| 4331898 | 08-31-2017 | SWD | SHEA HOMES LIMITED PARTNERSHIP | KOLLING BRANDON; KOLLING SABRINA | 64.43 | 08-09-2017 | 644,300 |
*If the hyperlink for the reception number does not work, try a manual search in the Clerk and Recorder records. Use the Grantor or Grantee in your search.
| Account | Parcel | Account Type | Tax Year | Buildings | Actual Value | Local Govt Assessed Value | School Assessed Value |
|---|---|---|---|---|---|---|---|
| R6785033 | 146717322006 | Residential | 2026 | 1 | 848,927 | 53,060 | 59,850 |
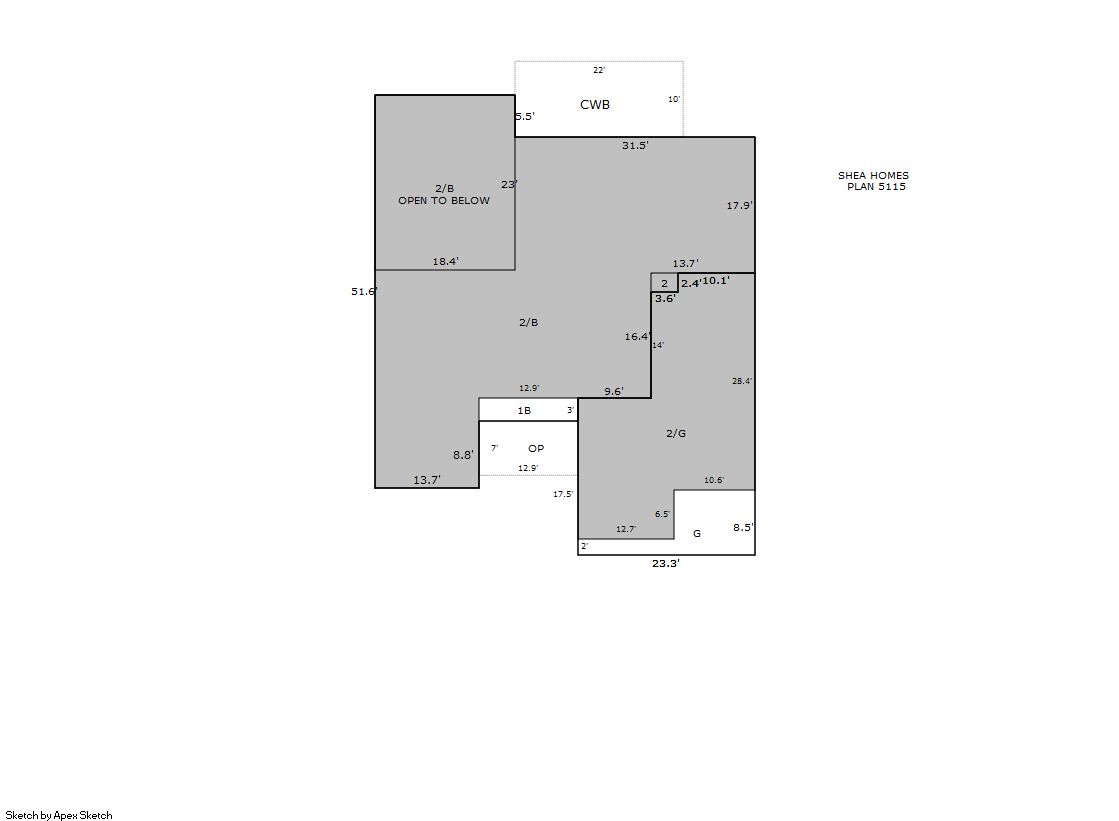
Building 1
| AccountNo | Building ID | Occupancy |
|---|---|---|
| R6785033 | 1 | Single Family Residential |
| ID | Type | NBHD | Occupancy | % Complete | Bedrooms | Baths |
|---|---|---|---|---|---|---|
| 1 | Residential | 3E1008 | Single Family Residential | 100 | 4 | 5.00 |
| ID | Exterior | Roof Cover | Interior | HVAC | Perimeter | Units | Unit Type | Make |
|---|---|---|---|---|---|---|---|---|
| 1 | Frame Siding | Composition Shingle | Drywall | Central Air to Air | 526 | 0 | NA | NA |
| ID | Square Ft | Condo SF | Total Basement SF | Finished Basement SF | Garage SF | Carport SF | Balcony SF | Porch SF |
|---|---|---|---|---|---|---|---|---|
| 1 | 3,711 | 0 | 1,788 | 0 | 694 | 0 | 220 | 90 |
| ID | Built As | Square Ft | Year Built | Stories | Length | Width |
|---|---|---|---|---|---|---|
| 1.00 | 2 Story | 3,711 | 2017 | 2 | 0 | 0 |
| ID | Detail Type | Description | Units |
|---|---|---|---|
| 1 | Add On | Fire Pit | 1.00 |
| 1 | Add On | Fireplace Gas | 1.00 |
| 1 | Balcony | Cover Wood Balc | 220.00 |
| 1 | Basement | Full Daylight | 1.00 |
| 1 | Basement | Total Basement SF | 1788.00 |
| 1 | Fixture | Full Bath | 4.00 |
| 1 | Fixture | Half Bath | 1.00 |
| 1 | Garage | Attached | 694.00 |
| 1 | Porch | Open Slab | 90.00 |
| 1 | Rough In | Rough In | 1.00 |
| Account | Parcel | Account Type | Tax Year | Buildings | Actual Value | Local Govt Assessed Value | School Assessed Value |
|---|---|---|---|---|---|---|---|
| R6785033 | 146717322006 | Residential | 2026 | 1 | 848,927 | 53,060 | 59,850 |
| Type | Code | Description | Actual Value | Local Govt Assessed Value | School Assessed Value | Acres | Land SqFt |
|---|---|---|---|---|---|---|---|
| Improvement | 1212 | SINGLE FAMILY RESIDENTIAL IMPROVEMENTS | 688,927 | 43,060 | 48,570 | 0.000 | 0 |
| Land | 1112 | SINGLE FAMILY RESIDENTIAL-LAND | 160,000 | 10,000 | 11,280 | 0.177 | 7,689 |
| Totals | - | - | 848,927 | 53,060 | 59,850 | 0.177 | 7,689 |
Comparable sales for your Residential or Commercial property may be found using our SALES SEARCH TOOL
Values are updated annually on May 1st for Real Property and June 15th for Personal Property and Oil and Gas.
| Account | Parcel | Account Type | Tax Year | Buildings | Actual Value | Local Govt Assessed Value | School Assessed Value |
|---|---|---|---|---|---|---|---|
| R6785033 | 146717322006 | Residential | 2026 | 1 | 848,927 | 53,060 | 59,850 |
| Tax Area | District ID | District Name | Local Govt Mill Levy |
School Mill Levy |
Estimated Taxes |
|---|---|---|---|---|---|
| 5367 | 1204 | BOULDER VALLEY CONSERVATION | 0.000 | 0.000 | $0.00 |
| 5367 | 1455 | COLLIERS HILL METRO 1 | 63.511 | 0.000 | $3,369.89 |
| 5367 | 0948 | ERIE AREA 4 TIF | 0.000 | 0.000 | $0.00 |
| 5367 | 0404 | ERIE TOWN | 13.237 | 0.000 | $702.36 |
| 5367 | 1050 | HIGH PLAINS LIBRARY | 3.044 | 0.000 | $161.51 |
| 5367 | 0512 | MOUNTAIN VIEW FIRE PROTECTION DISTRICT | 16.342 | 0.000 | $867.11 |
| 5367 | 0301 | NORTHERN COLORADO WATER (NCW) | 1.000 | 0.000 | $53.06 |
| 5367 | 1360 | RTD | 0.000 | 0.000 | $0.00 |
| 5367 | 0213 | SCHOOL DIST RE1J-LONGMONT | 0.000 | 57.717 | $3,454.36 |
| 5367 | 0100 | WELD COUNTY | 15.956 | 0.000 | $846.63 |
| Total | - | - | 113.09 | 57.717 | $9,454.92 |
The estimate of tax is based on the prior year mill levy and the 2025 projected assessment rates. Mill levies and tax estimates will be updated yearly on December 22nd for the current year. Additional information can be found at https://assessor.weld.gov


